Jastrzębia Góra之家,波兰 / Archmondo
位于距离波罗的海不到一公里的森林边缘,Jastrzębia Góra的这座住宅既是一个度假胜地,也是其周围环境的反映。由位于格但斯克的ARCHMONDO事务所设计,该事务所由Piotr Kowalczyk创立,这个项目凝练了一个家庭的愿景,他们放弃了大城市的生活,选择了海滨小村庄的宁静节奏。业主的要求非常简单:一座单层住宅,功能性强,明亮且形式简洁。
Set on the edge of a forest less than a kilometer from the Baltic Sea, House in Jastrzębia Góra is both a retreat and a reflection of its surroundings. Designed by ARCHMONDO, the Gdansk-based studio founded by Piotr Kowalczyk, the project distils the vision of a family who traded big city life for the quiet rhythms of a coastal village. Their brief was disarmingly simple: a one-story home that would be functional, bright and honest in form.
▼项目概览,overview

场地本身对建筑的设计逻辑起到了决定性作用。被树木环绕,面向海风,它要求设计出一座能够融入自然景观的建筑,而不是凌驾于其上。建筑师设计了两条略有不同长度的延伸体,按L形布局排列。通过一个简约的连接体将两者相连,隐蔽了入口,这一构成定义了一个被混凝土墙隔离的绿色露台庭院,远离街道的喧嚣。
The site itself dictated much of the architecture’s logic. Framed by trees and open to the sea breeze, it called for a structure that would blend into the landscape rather than rise above it. Architects responded with two elongated volumes of slightly different lengths, arranged in an L-shaped plan. Joined by a minimalist connector that discreetly hides the entrance, the composition defines a sheltered courtyard with a green terrace screened from the street by a concrete wall.
▼隐蔽的入口,Hidden entrance

▼L形布局,L-shaped plan


▼从远处看,Viewed from a distance

▼立面,facade

这座房屋的形态参考了谷仓的原型,其外形被精炼为现代而简洁的轮廓。立面采用垂直铺设的云杉木板,随着时间的推移自然老化,而浅灰色金属的双坡屋顶呼应了波罗的海的地平线。几何形态的简洁性是传统与克制的精心平衡。
The house references the archetype of a barn, its form refined into a contemporary, measured silhouette. Vertically laid spruce cladding wraps the façades, ageing naturally over time, while a twin-pitch roof in light grey metal echoes the tones of the Baltic horizon. The clarity of the geometry is a careful balance of tradition and restraint.
▼浅灰色金属的双坡屋顶,twin-pitch roof in light grey metal

▼车库,Garage

住宅的生活区和卧室区朝南和朝西,透过全高的玻璃窗大开,阳光全天灿烂地照进室内。超大的窗户和推拉玻璃门使每间卧室和主客厅都可以直接进入花园,模糊了室内外的界限。沿着玻璃窗和入口区域的细长雕塑式屋檐温柔地遮挡阳光,使立面呈现出精致而线性的特色。房屋的核心是一个单一而宽敞的房间,结合了厨房、餐厅和客厅,位于一个开放式的天花板下。它是家庭日常生活的交汇点——一个明亮、宽敞的空间,鼓励家庭成员之间的亲密互动。
Oriented south and west, the living and bedroom wings open wide to the courtyard through full-height glazing, allowing sunlight to flood the interior throughout the day. Oversized windows and sliding glass doors provide direct access to the garden from every bedroom and the main living room, blurring boundaries between inside and out. A subtle, sculptural overhang runs along the glazing and entrance zone, tempering the sun and giving the façades a refined, linear accent. At the heart of the house lies a single, spacious room combining kitchen, dining and living areas beneath an open ceiling. It is the meeting point of the family’s everyday life — a bright and lofty space that encourages togetherness.
▼主客厅,main living room

▼厨房,kitchen

▼室内望向花园,view from the interior towards the garden

第二个区域则是孩子们的房间,按顺序排列,并通过紧凑的阁楼层延伸,变成了富有趣味的私人空间。主卧室也采用了开放式天花板,扩展了空间感和光线。
The second wing houses the children’s rooms, arranged in sequence and extended by compact mezzanine levels beneath the roof, turning them into playful private zones. The main bedroom also adopts an open ceiling, expanding both air and light.
▼卧室,bedroom


▼卧室一角,a corner of the bedroom

自然材料贯穿整个空间。云杉木、混凝土、金属和花岗岩的使用创造了建筑与周围环境之间的连续性。室内则采用了柔和的色调,呼应了原始的海滨气候:柔软的灰色、温和的棕色以及木材的天然纹理,共同营造出宁静的氛围。
Natural materials dominate throughout. The use of spruce, concrete, metal and granite creates a continuity between the building and its surroundings. Inside, a muted colour palette complements the raw, coastal climate: soft greys, gentle browns and the natural texture of timber contribute to a calm atmosphere.
▼宁静的氛围,calm atmosphere

项目中的每一项建筑决策——从屋顶的形状到开口的位置——都遵循着功能和光线的逻辑,没有任何为了展示或奢华的姿态。两体交汇的构成创造了开放与私密的结合:既是聚集的空间,也是退隐的场所。
Every architectural decision in the project – from the shape of the roof to the position of openings – follows the logic of function and light, with no gestures for show or excess. The composition of two intersecting volumes creates a mix of openness and intimacy: a place to gather and a place to withdraw.
▼一瞥,A glimpse

▼材料细部,material detail

Jastrzębia Góra的住宅展示了简朴建筑如何创造强大的空间。没有宏伟的气势,它直接回应了自身的地方性和居住者的需求。忠实于ARCHMONDO的设计理念,它是兼具逻辑与情感的建筑,旨在随着珍贵的自然景观优雅地老去。
House in Jastrzębia Góra exemplifies how modest architecture can create powerful space. Without monumentality, it directly answers its place and its people. True to ARCHMONDO’s philosophy, it is architecture guided by logic and emotion in equal measure, designed to age gracefully alongside its precious landscape.
▼项目区位,site plan

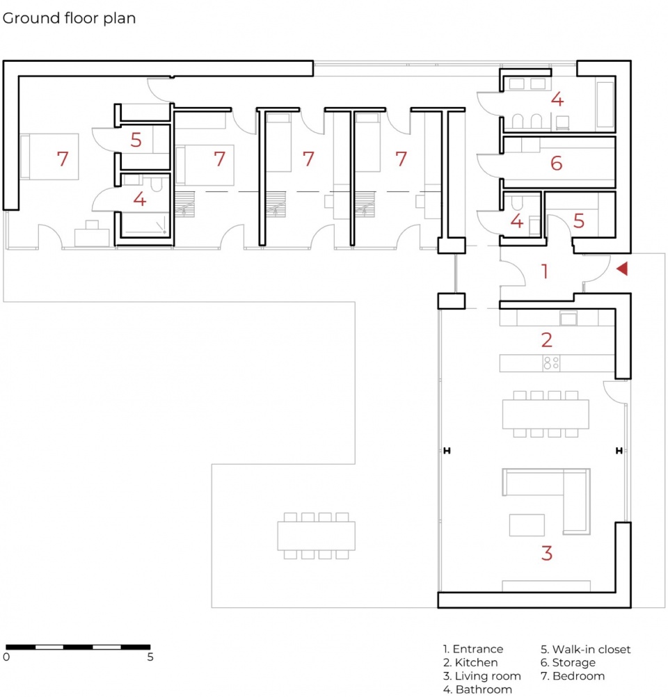
▼首层平面图,ground floor plan

▼立面,elevation


Project Details:
Official name: House in Jastrzębia Góra
Location: Jastrzębia Góra, Poland
Province: Pomorskie
Type: Single-family house
Architectural studio: Archmondo
Design team: Piotr Kowalczyk, Karolina Kotowska-Kusiak
Investor: Private
Built area: 226.34 m²
Usable area: 213.08 m²
Site area: 1,132 m²
Volume: 952.97 m³
Photography: Jakub Certowicz














