Pivadenco乡村学校,智利 / CLAAP + Duque Motta & AA
Pivadenco 学校是“阿劳卡尼亚乡村学校(Escuelas Rurales de la Araucanía)”项目的一部分——这是教育部的一项计划,通过建筑竞赛的方式,在该地区的乡村区域提出建设 8 所小型公立学校的构想。阿劳卡尼亚是智利最贫困的地区,拥有高比例的马普切(Mapuche)人口,并长期存在未解决且不断加深的历史冲突。我们的事务所负责设计其中四所学校,两所在 Los Sauces 区,两所在 Melipeuco 区。这些区域拥有多元的社区,需要具备跨文化教育理念的学校。
The Pivadenco School is part of the “Escuelas Rurales de la Araucanía” project, an initiative of the Ministry of Education that, through architectural competitions, proposed the development of 8 small public schools in rural areas of this region. La Araucania is the poorest region in Chile, with a high percentage of Mapuche population, and an unresolved historical conflict that deepens. Our offices developed four schools, two in the Los Sauces district and two in the Melipeuco district, territories with diverse communities that required schools with an intercultural approach.
▼校园鸟瞰,Aerial view

▼建筑外观,Overall exterior building


▼建筑与场地,Building & site

▼屋顶与立面细节,Roof and façade detail


▼校园入口,the Gate

在这个人口分散的乡村地区,学校是社区生活的中心。因此,我们为四所学校制定了一套共同策略:我们将这些建筑视为不仅是教育中心,也是地域性的社会中心。为了强化这一理念,竞赛要求中所有用于公共使用与休闲的空间——餐厅、交通流线、入口大厅以及带顶棚的庭院——均被整合到同一个空间之中。由此形成一个具有层次感的核心空间,能够组织其他功能空间,与外部世界相连,并适应不同的教育与社会活动。此外,为了获得更大的适应性与流动性,我们尝试通过滑动门弱化该中心空间与教室之间的界限,从而实现空间整合与灵活使用。
▼结构轴测图,Overall exterior building

In this rural territory with a scattered population, the school is the center of community life. Then we defined a common strategy for the four schools, we understand these buildings not only as an educational center but also as the social center of a territory. To promote this idea, all the programs for common use and recreation set out in the competition requirements, the dining room, the circulations, the access hall, and the covered patio were brought together in a single space. Thus, a hierarchical space was created, capable of ordering the other enclosures, linking with the outside world, and adapting to host different educational and social activities. In addition, to achieve greater adaptability and fluidity, it was sought to dilute the boundaries between this central space and the classrooms through sliding doors that allow integration and flexibility of use.
▼公共入口广场,Building & site


▼教室内部,Building & site

▼孩子们在公共空间玩耍,Children playing in the central communal space

在形式层面,建筑形象让人联想到当地传统的生产型仓库及其材料,但以当代视角进行了重新诠释,使用金属覆层、木结构和本地的火山石。其场地布局旨在通过围合出三块不同用途的区域来组织整个基地:其一是公共入口广场,以强化对社区开放的理念,并可作为举办活动与聚会的场所;其二是儿童游戏与运动区域;其三是包含本土植被、果树与蔬菜的辅助教育区。
▼建筑模型,model


In formal terms, the building image recalls old productive warehouses of the region and their materials, but from a contemporary perspective, using metallic cladding, wooden structures, and local volcanic stone. Its location seeks to organize the land by arranging in its surroundings three areas with different uses; a public access square, which accentuates the idea of openness to the community and allows hosting events and meetings; a play and sports area for children. And a complimentary educational zone with native flora, fruit trees, and vegetables.
▼屋架与天窗顶部视角,Roof structure and skylight from below

▼光线与结构,Light and structure in the central space

▼细节,details


最后,为了实现学校的能源效率与热舒适性,设计将中央空间定义为冬夏两季建筑的热调节器,并依靠三项要素实现这一功能:
i)天窗:夏季捕捉来自北侧的间接自然光,冬季引入直射阳光以积累热量;
ii)混凝土墙:作为热惰性墙体,在有阳光的时段吸收热能,并在一天中其余时间缓慢释放;
iii)穿堂通风系统:在夏季能显著降低室内温度。
Finally, seeking energy efficiency and thermal comfort for the school, it is defined that the central space also acts as a thermo regulator of the building in winter and summer, through 3 elements:
i) skylights that capture indirect natural light from the north in the summer and direct sunlight in the winter to collect temperature,
ii) concrete walls as a thermal mass that absorbs this heat in the hours of sunlight and delivers it during the rest of the day, and
iii) a cross-ventilation system that allows to significantly lower the interior temperature in the summer.
▼夜览,nightview


▼总平面图,master plan

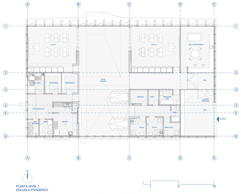
▼平面图,plan

▼立面图,elevation


▼剖面图,section

▼细节节点图,detail drawing

Architects:
Cristían Larraín L. CLAAP (@claap.office) (www.claap.cl)
Rodrigo Duque M. Duque Motta & AA (www.duquemotta.com)
Matias Madsen J.
Design Team:
Francois Julian
Alessandra De Lisio
Nicoló Zingoni
Client: Ministry of Education, Government of Chile
Structural Engineer: Patricio Stagno + Daniel Publins
Contractor: Constructora Mallín
Localization: Los Sauces, Region de la Araucanía, Chile.
Building Area: 417m2
Design Projects years: 2018-2019
Completion 2020
Photographs: Pablo Casals Aguirre (@pablocasalsaguirre_works)
Models: Benjamín Wilson
Construction System: Wood Machining Engineered
Construction Cost: $1.100 USD/m2
Materials: Thermowood, Thermoglass, Volcanic Stone, Architectural Concrete.














