前海深港青年梦工厂北区竣工,广东深圳 / RSHP
由RSHP(罗杰斯建筑事务所)设计的前海深港青年梦工场北区,是一座象征前海整体发展重要里程碑的创新“城市绿洲”。项目坐落于新兴城市开发区林立的高楼之间,以“超低层”建筑形态构筑出科技创新的核心载体,成为连接本地社区与崭新天际线的活力纽带。
Shenzhen, China – 17 November 2025 – Designed by RSHP, the Qianhai SZHK Youth Innovation and Entrepreneur Hub, Northern District is an urban oasis of innovation that signifies a major milestone in the wider growth of Qianhai. Nestled within the burgeoning high rises of the new urban development zone, the ‘super low rise’ hub is a nucleus of tech talent that provides a dynamic link between the local community and an emerging skyline.
▼项目概览,Overview of project

▼鸟瞰,Aerial view

▼立面,Facade

▼沿街步行界面与塔楼立面,Street-level pedestrian frontage and tower facade

▼彩色立面体块,Coloured facade volumes

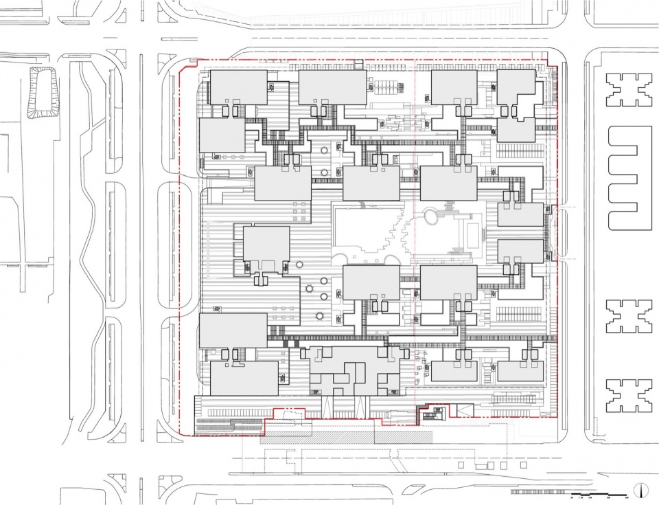
以“城市客厅”为核心理念,RSHP的总体规划在多层面促进协作与交流。项目由16座建筑组成,通过三层的高架连廊与空中花园相连,内部设置灵活的办公空间。商业空间可根据需求分为开放式、单元式或混合式布局。园区内还设有地铁与公交枢纽,实现与周边住宅片区的便捷联通。中央广场作为共享户外空间,兼容社交、运动、休闲等多种活动。大型景观公园融合休憩与商业配套,进一步激发社区互动与城市活力。
Centred around the concept of an ‘urban living room’, the masterplan by RSHP fosters collaboration and connection at multiple levels. Sixteen buildings are connected by an elevated sky deck at level three with landscaped gardens that accommodate flexible office space. Commercial spaces can be divided into open plan, cellular or mixed office units meanwhile an on-site metro and bus station create an easy commute to surrounding residential areas. The central square provides a space for shared outdoor activities – from social meetings to sports, relaxation and regeneration. A large, landscaped park offers amenity and retail programs, furthering opportunities for interaction.
▼高架连廊,Elevated sky deck

▼连桥系统,Connecting bridges

▼空中连廊及屋顶绿化步道,Sky deck and rooftop landscaped walkway


▼中央广场,Central plaza

项目的亮点是一座地标性的文化艺术中心,位于公园主入口处,内含大型多功能厅、展览及办公空间。该高架地标建筑不仅展示本地创新科技成果,同时融入丰富的文化艺术活动。2023年,园区作为前海分会场成功承办了第九届深港城市\建筑双城双年展,彰显其在前海深港现代服务业合作区中的重要地位。项目的落成进一步促进了前海、香港与澳门的深度融合与协同发展。
At the heart of the development is the landmark cultural and arts building located at the main entrance to the park with a large multi-purpose hall, exhibition and office spaces. The raised landmark building offers the opportunity to showcase locally developed innovative technologies combined with a series of cultural programmes. The hub hosted the 9th Bi-City Biennale of Urbanism\Architecture as a Qianhai Subvenue in 2023 – exemplifying its prominence within the Qianhai Shenzhen-Hong Kong Modern Service Industry Cooperation Zone. The completion of the hub also encourages greater integration between Qianhai, Hong Kong and Macau.
▼文化艺术中心,Cultural and arts building

▼大堂,Lobby

▼办公空间,Office space

▼室内通往户外平台的出入口,Interior–exterior transition

与RSHP一贯的设计理念一致,项目总体规划始终坚持“以人为本”。设计团队将一块约350米×350米的棕地成功转化为全步行化街区,四周环绕便捷的步行街道、绿色庭院、城市花园、林荫大道及水景空间。整个园区被形容为一座“会呼吸的有机体”,通过绿色建筑节能运营与管理体系,实现可持续发展,并荣获BEAM Plus在管理与能源使用方面的卓越级认证。项目采用色彩鲜明的建筑挑檐以强化导向识别,同时营造舒适的户外活动空间。
As with all RSHP projects, the masterplan has placed people first. Transforming a 350m x 350m plot of brownfield land, the fully pedestrianised development is surrounded by walkable streets, green courtyards with urban gardens, avenues lined with trees, and water features. Described as a ‘breathing organism’, the hub applies green building energy-saving operation and management solutions and as a result has been awarded the BEAM Plus Excellence grade in Management and Energy Use. Wayfinding is encouraged through coloured overhangs that also serve as a comfortable setting for outside events.
▼广场与开放草坪,Plaza and open lawn


▼休憩亭,Pavilion

▼D区入口景观,Entrance landscape of Zone D

▼D区公共空间,Public space of Zone D

▼挑檐下的步行长廊,Pedestrian colonnade beneath overhang



▼大草坪,Lawn

▼景观轴线与步行街区,Pedestrian axis and landscaped walkway


▼垂直绿化,Retail frontage

▼夜景外观,Night view

▼位置图,Location plan

▼总平面图,Master plan

▼立面和剖面,Combined Elevations and Sections

▼B5剖面透视,B5 Sectional perspective

媒体垂询:
RSHP 公关经理 Eleanor Hargreaves
press@rshp.com
项目信息
位置:中国深圳
日期:2018–2023
业主:深圳市前海产业发展集团有限公司
造价:£167,000,000
基地面积:90,000 平方米
层高:7 米 / 23 英尺
层数:标准建筑 6 层;地标建筑 8 层
协同建筑师:香港华艺设计顾问
结构工程师:香港华艺设计顾问
设备工程师:香港华艺设计顾问
项目管理单位 中国海外集团有限公司
景观设计:奥雅设计
造价顾问:中建国际投资集团有限公司
总包商:中建国际投资集团有限公司
消防顾问:香港华艺设计顾问
Media enquiries:
Eleanor Hargreaves, Communications Coordinator, RSHP
press@rshp.com
Location: Shenzhen, China
Date: 2018 – 2023
Client: Shenzhen Qianhai Industrial Development Group Ltd. Co.
Cost: £167m
Site Area: 90 000m2
Height: 7m / 23ft
Floors: Typically, 6; Landmark has 8
Co-Architect: Hong Kong Huayi Design
Structural Engineer: Hong Kong Huayi Design
Services Engineer: Hong Kong Huayi Design
Project Manager: China Overseas Construction
Landscape Architect: AOYA-HK
Cost Consultant: China State Construction International Co., Ltd
Contractor: China State Construction International Co., Ltd
Fire Consultant: Hong Kong Huayi Design Consultants














