Aesop Thonglor,泰国 / Sher Maker
Aesop Thonglor是一个注重在设计中使用微型家居材料,特别是木材的项目。这里使用木材不仅仅是为了展示当地的建筑技能和创意,更是通过以符合品牌需求的方式重新利用原址的木材。
Aesop Thonglor is a project that focuses on using micro domestic materials, specifically wood, in its design. The use of wood here is not just about showcasing local architectural skills and ideas, but also about reusing existing wood from the original site in a way that fits the brand’s needs.
▼室内概览,Interior overview

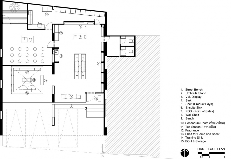
店面分为两个主要区域:
The storefront is divided into two main sections:
▼柜台水槽,Counter sink


商店区域:包括柜台水槽、货架、销售点(POS)和视觉陈列元素。木材在这里的使用简洁而实用,突出了来自旧木材店的木材自然纹理和结构。家具的接合处采用传统的木工榫卯工艺,如在乡村木屋中常见的榫头与卯眼接合。目标是诚实地对待材料,尊重其不完美之处,而不进行过度精加工。水槽采用泰国黑花岗岩制作,这种材料通常用于传统的泰式厨房臼,强调泰国日常生活中的普通材料。
▼草图,Sketch


Shop Area: This includes the counter sink, shelves, point of sale (POS), and visual merchandising elements. The wood is used simply and functionally, highlighting the natural lines and structure of the wood sourced from old lumber shops. Furniture joints are crafted using traditional wood joinery techniques, such as mortise and tenon joints often seen in rural wooden houses. The goal is to be honest with the material, respecting its imperfections and not over-finishing it. The sink is made from Thai black granite, the same material used for traditional Thai kitchen mortars, emphasizing common, everyday materials in Thai life.
▼感官室,Sensorium Room

▼一角,A corner

感官室:也被称为“fa lai”房间,这个空间专门用于与气味相关的产品。它的设计旨在营造一种宁静、昏暗的氛围,主要的感官体验来自嗅觉。墙壁由回收的柚木垂直排列而成,体现了民间建筑工艺,这是一种传统的地方建筑技术。这个设计尊重当地木匠的工艺,他们巧妙地将木材用于实用目的。 “fa lai”墙通常出现在厨房或洗衣房中,用于通风,可以通过简单的滑动机制开关,以保障隐私。这个设计细节至今仍在使用,突显了传统木结构的巧妙与实用。
▼轴测,Axonometric


Sensorium Room: Also known as the “fa lai” room, this space is dedicated to products related to scents. It is designed to create a calm and dim atmosphere where the primary sensory experience is through smell. The walls are made from reclaimed teak wood arranged vertically, representing folk tectonics, a traditional local building technique. This design respects the craftsmanship of local carpenters who ingeniously used wood for practical purposes. The “fa lai” walls, typically found in kitchens or laundry rooms for ventilation, can be opened and closed for privacy using simple sliding mechanisms. This design detail, still used today, highlights the ingenuity and practicality of traditional wooden structures.
▼家具细部,Furniture detail


▼木工榫卯,Wood joinery

在感官室的中央,除了香水柜和产品货架,还有一个茶炉,模仿了乡村泰式厨房中用于烹饪的传统土制炉灶。这个设置作为家庭和朋友聚集的场所,象征着火炉的温暖。尽管空间不大,它代表了乡村生活的丰富与欢乐,在那里,精细的工艺和对日常活动如烹饪和交谈的诗意处理创造了有意义的空间。这个元素是该项目的重要象征性特征,代表了日常生活中深刻的联系与互动。
In the middle of the Sensorium room, along with perfume cabinets and product shelves, there’s a tea warming stove modeled after a traditional earthen box used for cooking in rural Thai kitchens. This setup serves as a gathering place for family and friends, symbolized by the warmth of the fire. Despite its small size, it represents the richness and joy of rural life, where detailed craftsmanship and a poetic approach to daily activities like cooking and conversing create a meaningful space. This element is an important symbolic feature of the project, representing deep connections and interactions in daily life.
▼搭建过程,Construction process

▼平面图,AESOP plan

Project name: Aesop Thonglor
Company name: Sher Maker
Website: www.shermaker.com
E-mail: shermakers@gmail.com, https://www.instagram.com/sher_maker/, https://www.facebook.com/shermaker
Project location: Bangkok, Thailand
Building Type: Retail, Interior
Completion Year: 2024
Area: 190 sq.m.
Lead Architect: Patcharada Inplang, Thongchai Chansamak, Sirilanna Siripen, Patthaporn Phuangmalai
Contractor: legend interior
Photo credits: Courtesy of Aesop by Studioperiphery
Documentary: Pordee Studio
Mock-up Wood workshop team: Thongchai Chansamak, Putipong Upatum, Wachira Pakkla, Thanapong Liwyodsingkorn














