梶原住宅,日本 / ROOVICE
位于镰仓柔和丘陵环绕的梶原住宅区,距离大海仅几步之遥,这栋建于1960年代的两层木结构住宅经过精心翻新,成为一对创意夫妻与他们两只猫的新家。镰仓这座城市——山海相接、时间以自己的步调流动——正好映照了项目的精神:平静、层次丰富,并深深扎根于日常生活。
Located in Kajiwara, a residential area surrounded by the soft hills of Kamakura and just a short distance from the sea, this two-story wooden house from the 1960s has been carefully renovated for a couple of creatives and their two cats. The city’s landscape — where mountains meet ocean and time moves at its own pace — reflects the spirit of the project: calm, layered, and deeply tied to everyday life.
▼住宅外观,exterior of the house

当屋主找到我们时,他们刚购入这处老房子,希望能够恢复它原有的宁静魅力——不是彻底改变它,而是将原本就存在的美好重新唤醒。设计策略很简单:能保留的尽量保留,只在必要之处介入。每一个决定都以尊重房子的原始气质与比例为前提。
When the owners contacted us, they had just purchased the property and were looking for a way to restore its quiet charm — not by transforming it completely, but by bringing back what was already there. The design approach was simple: preserve what could be saved, and only intervene where necessary. Every decision was made to respect the existing character and proportions of the house.
▼住宅外观,exterior of the house


入口与动线Entrance and Flow
翻新从外部开始:外墙被重新漆成黑色,入口门与窗框也选用同一色调,营造出统一且沉稳的外观。进入室内后,入口处保留了房子最具特色的细节之一:位于红色地砖与混凝土台阶之间的一条细长白色鹅卵石带。鹅卵石保持着原本的松散状态,脚踩时会轻微移动——细微却难忘的触感,体现着过去时代的手工气息。因年代久远而剥落的木墙板被替换成新的材料,同时在入口附近加装了一道简单的木质围栏,以确保开门时猫不会跑出去。
The renovation began from the exterior, which was repainted black, with the entrance door and windows finished in the same tone to create a unified appearance. Inside, the entrance retains one of the house’s most distinctive original details: a narrow strip of smooth white pebbles placed between the reddish floor tiles and the concrete step. The pebbles remain loose, allowing a subtle shift underfoot — a modest but memorable feature that speaks to the craftsmanship of the time. The wooden wall panels, which had started to peel with age, were replaced with new ones, and a simple wooden fence was added near the entrance to keep the cats safe when the door opens.
▼住宅入口,entrance of the house

▼玄关细部,threshold detail


一楼的第一间房被改造为工作室和书房。原先内置收纳中使用的玻璃推拉门经过修复,如今成为室内的一处独特亮点。房屋后方朝向花园的两间房被打通,形成一个明亮通透的起居空间,大窗户带来充沛自然光,也很快成为猫咪最爱的地方。沿着缘侧走廊,饰有障子纸的墙面被完整保留,天花板的原木板也得到修复。新连通的部分则使用新的木材,使旧与新的质感形成温柔对比——像是一块由时间缝补而成的拼布。统一的地板从入口延续至各处,让空间保持连贯的流动感。
The first room on the ground floor was transformed into a studio and office. Its glass sliding doors, part of the original built-in storage, were repaired and now stand out as a unique feature.Toward the back of the house, two rooms facing the garden were opened up to create a single living area filled with light from the large windows. It quickly became the cats’ favourite spot.Along the engawa corridor, the shoji-lined walls were kept in place, and the original ceiling boards were preserved. The newly connected ceiling areas were finished with new wooden panels, creating a gentle contrast — a patchwork of materials and time. The same flooring continues throughout, tying the spaces together in a continuous flow.
▼客厅空间,living room


▼明亮通透的起居空间,living room



▼天花板的原木板也得到修复,the original ceiling boards were preserved


▼一楼房间被改造为工作室和书房,The first room on the ground floor was transformed into a studio and office


时光的拼贴A Mosaic of Times
浴室保留了一个相当特别的细节:面向走廊的室内窗,这个奇妙的小窗保持原样。为了使用上的便利,空间略微扩大,但原有的墙砖尽可能被保存下来。
The bathroom features an unusual interior window facing the hallway — a curious detail that was kept intact. The space was slightly enlarged to improve usability, while the original wall tiles were preserved wherever possible.
▼浴室空间,bathroom


在无法找到相同款式瓷砖时,新的白色瓷砖以刻意对比的方式加入,使新旧之间的关系更加明确。地面仍保留原有的“玉平(tamaira)”瓷砖,带来岁月交叠的触感——一幅静谧的、关于时间与手作的马赛克。
When matching replacements couldn’t be found, new white tiles were added intentionally as a contrast, highlighting the relationship between old and new. The floor retains its original tamaira tiles, creating a textured and layered impression — a quiet mosaic of time and care.
▼新的白色瓷砖以刻意对比的方式加入,new white tiles were added intentionally as a contrast

厨房里的原有橱柜被保留下来并重新整理,只有老旧的一部分被替换为简单的定制木质操作台。根据屋主的要求,地面使用水泥收面。尽管我们说明未来可能会出现裂纹,但屋主把它当作房子成长的一部分欣然接受——也反映出他们对时间与变化的平静态度。
In the kitchen, the built-in cupboards were kept and refreshed, while only the outdated section was replaced with a simple custom-made wooden counter. At the owners’ request, the floor was finished in mortar. Though we explained that cracks might appear over time, the clients accepted them as part of the home’s ongoing story — a gesture that reflects their calm acceptance of change and time.\
▼厨房里的原有橱柜被保留下来,the built-in cupboards were kept

生活中的持续演变Living and Evolving
二楼的两间小房被合并成一间宽敞的卧室。宽大的窗户让自然光倾泻入室,而两间房原有的壁橱(oshiire)亦被整合成一整排连续的储物空间。
Upstairs, two smaller rooms were merged into one large, open bedroom. Natural light fills the space through the wide windows, and the oshiire closets from both rooms were combined into a single, continuous storage area.
▼宽敞的卧室,one large, open bedroom


▼让自然光倾泻入室,Natural light fills the space through the wide windows


▼辅助空间,servant space


尽管翻新工作已完成,但房子尚未停止变化。屋主计划未来亲手以“漆喰(shikkui)”涂料为墙面收尾,以自己的手艺让房子慢慢成熟。他们的生活方式与美学静静融入空间,让整个家一点一点变得更加温暖、有个性。
Even though the renovation work is complete, the house continues to evolve. The owners plan to finish the walls themselves with shikkui plaster, adding their own craftsmanship over time. Their style and sense quietly blend with the house, enhancing its warmth and character little by little.
▼生活方式与美学静静融入空间,Their style and sense quietly blend with the house


▼生活方式与美学静静融入空间,Their style and sense quietly blend with the house


这个项目展现了一种重视过程而非完美的生活方式——一个与居住者一起成长、变化、成熟的家。
This project embodies a way of living that values process over perfection — a home that grows, changes, and matures together with the people who inhabit it.
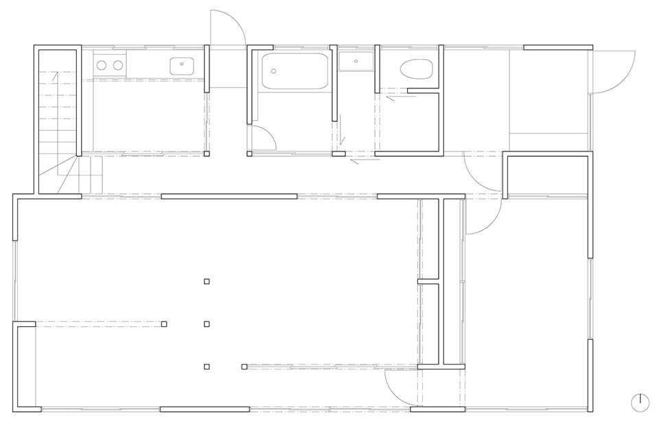
▼改造后一层平面,ground floor plan after renovation

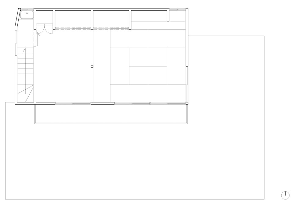
▼改造后二层平面,first floor plan after renovation

Project Name: Kajiwara House
Completion Year: 2022
Gross Built Area (m2/ ft2): 127㎡
Project Location: Kamakura, Japan
Program / Use / Building Function: Residential
Website link to project: https://www.roovice.com/works/28952/
Project Lead Architect: Daiki Kasagi | Roovice + owners diy
Project Site Manager: Daiki Kasagi | Roovice + owners diy
Photo Credits: Akira Nakamura
Photographer’s Website: http://akiranakamura.info/
Photographer’s e-mail: naka2300@gmail.com














