Abby Kortrijk艺术中心,比利时 / Barozzi Veiga + Tab Architects
Abby Kortrijk项目延展并改造了具有重要历史价值的Groeninge修道院建筑群,将其转变为一个用于特定场地的临时展览和公共活动的艺术空间。Abby Kortrijk是一种全新的博物馆形态:它对所有人开放、具有高度的可变性,位于科特赖克市中心Begijnhof公园中一个供公众使用的城市生活场所。
The project for Abby Kortrijk extends and transforms the historically significant complex of Groeninge Abbey into an arts space for site-specific temporary exhibitions and public events. Abby Kortrijk is a new kind of museum: a place for everyone, open and versatile, an urban living space in the wonderful setting of Begijnhof Park in the centre of Kortrijk.
▼位于Begijnhof公园中,In the setting of Begijnhof Park

设计聚焦于对“身份”这一主题的广义解读,将延续、修复与转化等概念谨慎平衡,从而为这一整体重新发现一种深深扎根于现存建筑的新身份。
The design focused on a broad interpretation of the theme of identity, where concepts like persistence, restoration and transformation have been carefully balanced to rediscover a new identity for the ensemble, deeply rooted in the existing.
▼建筑概览,Building overview




方案揭示了修道院礼拜堂与宿舍原有结构中极为美妙的空间特质,恢复了原有庭院,并新增了一个先进的地下展厅。每一个“空间”都拥有不同的氛围,以各自独特的方式容纳艺术与共享活动。
The proposal reveals the beautiful spatiality of the original structure of the abbey chapel and dormitories, restores the former courtyard and adds a state-of-the-art subterranean exhibition space. Each of these ‘rooms’ has a different atmosphere, creating space for art and shared activities in their own specific ways.
▼建筑立面,Building facade

▼礼拜堂近景,Chapel close view


地下展区位于整体建筑之下,而新建的公园展馆以其鲜明的存在感与历史建筑展开对话,无论是在形态上呼应其坡屋顶的垂直感,还是在正交的布局逻辑上。新建筑以可辨识的姿态融入现有建筑语境,成为延续城市构成历史的又一座展馆。其立面覆以深色砖材,使其作为历史建筑群中独立要素的特质更加突出。
While the exhibition area is located below the complex, the distinctive presence of the new park pavilion establishes a dialogue with the historic structures, both through its form, which evokes the verticality of their sloping roofs, and through the logic of its orthogonal arrangement. The new building comes as a clearly recognizable element in dialogue with the existing architecture; one more pavilion that continues the history of the urban composition. Its facades, covered in dark-coloured brick, give it the character of an independent element within the historical complex.
▼展馆远观,Pavilion view from a distance

▼展馆近景,Pavilion close view


新的建筑介入克制而严谨,通过细腻且深思熟虑的方式处理,使新旧之间取得平衡,在强化场地历史的同时,也为未来提供了新的空间。
The new architecture is restrained and reasoned, defined by subtle and well-considered interventions that create a balance between the new and the existing, enhancing the history of the site and providing new spaces for the future.
▼展馆立面覆以深色砖材,Pavilion facade covered in dark-coloured brick


设计介入说明 Description of the intervention
从城市设计角度来看,项目移除了并非源自修道院原始布局的部分构筑物,并新增一座展馆,其正交布置于现有体系之上,并朝向Begijnhof公园探出。此举重新界定了原有回廊,并创建了从Groeningestraat通向公共花园的路径。
From an urban design perspective, the project removes elements that were not part of the original abbey layout and introduce a new pavilion, positioned orthogonally to the existing composition and peeking out towards the Begijnhof Park. This intervention redefines the original cloister and creates a passage from the Groeningestraat to the public garden.
▼展馆入口,Pavilion entrance

▼展馆窗户,Pavilion window

展馆通过原宿舍建筑与整体相连,内部设有酒吧与餐厅。其倾斜的立面营造了友好、庇护性的氛围,同时最大化内部空间。在这里可以布置一张长桌,呼应修道院中集体食堂的传统。
The pavilion, connected to the complex through the former dormitory building, houses a bar and restaurant. Its inclined facades create a welcoming, sheltered atmosphere while maximizing space inside. Here a long table can be arranged, referencing the communal refectory of an abbey.
▼展馆内部,Pavilion interior


对原宿舍建筑的介入极为克制,原有的窗户、天花板与红陶地面得到了修复。同时新增了一整面长展柜,用以展示科特赖克市的馆藏作品,也邀请艺术家与该收藏展开创作互动。
Minimal interventions were made to the former dormitory building, restoring the original windows, ceiling, and red terracotta floor. A long display case was added to showcase works from the city of Kortrijk, inviting artists to engage with the collection.
▼展廊,Gallery


修道院作为艺术之家,访客可以在其各个房间中体验艺术。从宿舍到展馆,公众无需购票即可欣赏这些展品。宿舍上方是会客室,与原礼拜堂相邻。
The abbey serves as an art house, where visitors experience art throughout its rooms. From the dormitory to the pavilion, one can enjoy the exhibits without needing a ticket. Above the dormitory is the parlour, adjacent to the former chapel.
▼室内望向庭院,View from interior towards the courtyard

▼走廊,Corridor


原礼拜堂是构成中的最古老的建筑之一。通过拆除附加的连廊和夹层,项目恢复了礼拜堂原有的庄严尺度;在没有中间楼层的情况下,这座 16 世纪的建筑重新获得其最初的氛围,成为一个新的垂直展览空间。
The former chapel is one of the oldest elements in the composition. By removing the existing attached corridors and mezzanines, the project reinstates the abbey’s original grandeur; without intermediate floors, the sixteenth-century building regains its original atmosphere and provides a new vertical space for exhibitions.
▼礼拜堂室内,Chapel interior


▼展览陈列,Exhibits on display


为了避免对公园造成额外负担并给现有建筑留出呼吸空间,项目在地下增设展厅。这些中性的、先进的博物馆级展览空间提供了灵活的展示画布。礼拜堂、宿舍与亭阁为项目带来历史层次,而地下的“白盒子”则提供了与其互补的中性背景。多样且协调的空间序列具备清晰的内部逻辑与功能性。
To avoid overburdening the park and to give the existing building breathing space around, the project includes an underground expansion for exhibition areas. These neutral, state-of-the-art museum-quality rooms, providing a flexible canvas for exhibitions. The chapel, dormitory, and pavilion buildings bring historical richness to the project, whereas the ‘white boxes’ below offer a neutral space that complements this historic context. The sequence of spaces, diverse yet cohesive, is functional with an internal logic.
▼窗户细部,Window details


原有立面在尊重其图纸的前提下被修复。至于新的构筑,亭阁的立面采用由回收建筑材料制成的定制砖块,构成具有纪念性与表现力的结构,强化了其在城市肌理中的存在感。
The original facades were restored respecting their original drawing. As for the new element, the pavilion’s facade features custom-made bricks—made of recycled construction components—that conform a monumental and expressive structure, reinforcing its presence in the urban fabric.
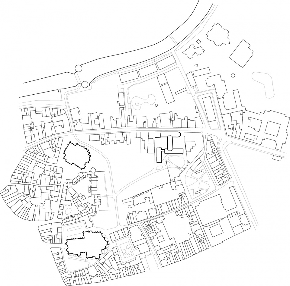
▼场地平面图,Site plan

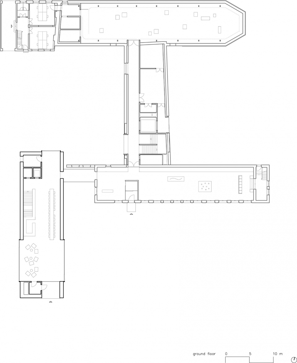
▼一层平面图,Ground floor plan

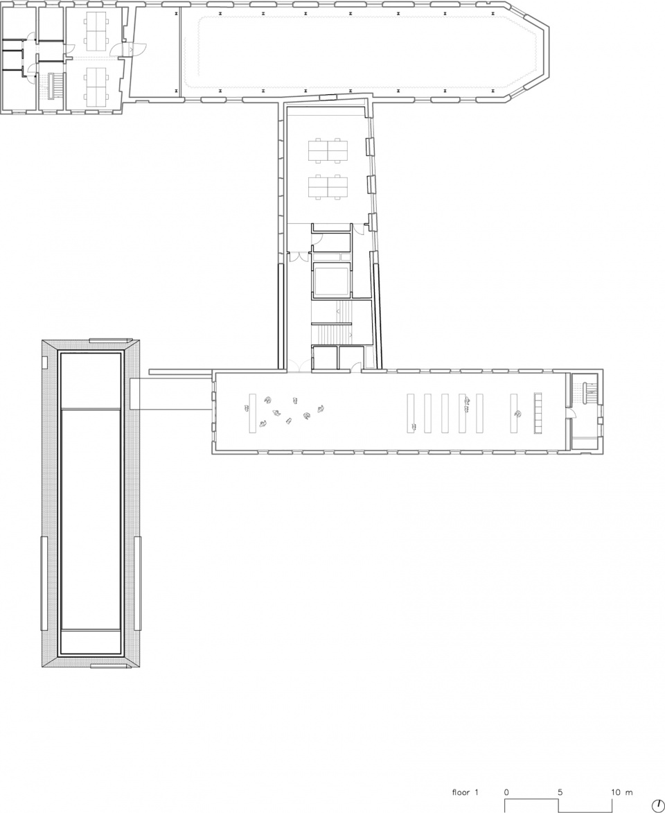
▼二层平面图,Floor 1 plan

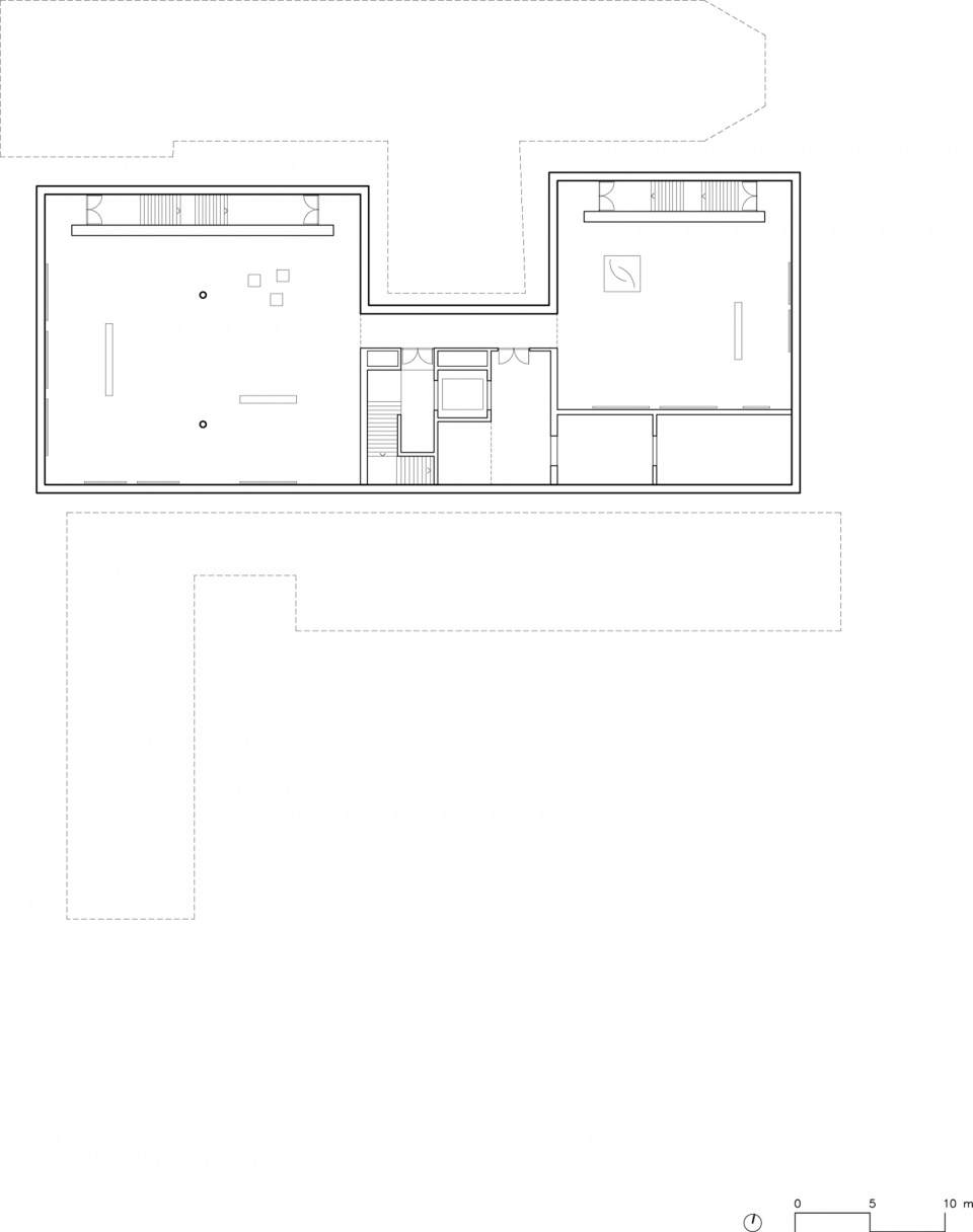
▼地下层平面图,Basement floor plan

▼立面图,Elevation

▼礼拜堂剖面图,Chapel section

▼展廊剖面图,Galleries section

▼亭阁剖面图,Pavilion section


Abby Kortrijk
Kortrijk, Belgium 2020–2025
Client:
Stad Kortrijk
Architects:
Barozzi Veiga, Fabrizio Barozzi & Alberto Veiga
Tab Architects, Tom Debaere & Bert Bultereys
Competition team:
(Barozzi Veiga) Yorgos Apostolopoulos, Jonghyun Choi, Pieter Janssens, Alessandro Lussignoli, Tea Marta, Toni Poch
(Tab Architects) Eva De Bels, Lando De Keyzer, Jonathan Toye,
Ilja De Pelsmaeker
Project team:
(Barozzi Veiga) Pieter Janssens; Chen-Hsin Chang, Tomás Mesquita, Ivanna Sanjuán, Guillermo Sidrach, Antonis Tasoulis, Maria Ubach
(Tab Architects) Jonathan Toye, Bert Lescouhier, Bert Devos, Pieter Frantzen, Ilja De Pelsmaeker, Lotte Engelborghs, Maxime Honoré, Luisa Soares
Heritage architect:
Koplamp Architecten
Structural engineer:
Sileghem & Partners Architecten en Ingenieurs
Services engineer:
Studiebureau Boydens Engineering
Building physics and acoustic consultant:
Daidalos Peutz bouwfysisch ingenieursbureau bvba
Façade consultant:
Xmade
Gross floor area:
4037 m2














