MM006住宅,北京 / 过半儿 guò bàn er
这所房子位于北京市中心东北约35公里处的顺义区,是“关于100计划”新社区住宅网络的最新成员,该项目由过半儿guò bàn er提供一站式服务的自主独立项目。这一倡议旨在培养一个邻里互助的社区,培养独特的生活方式,并在北京提供一种创新的生活方式。
Located around 35 km northeast of Beijing’s city center in the district of Shunyi, this house is the latest addition to a network of homes in a new neighborhood known as the “About 100 Project,” initiated by 过半儿guò bàn er. This initiative aims to cultivate a community where neighbors support one another, fostering a unique lifestyle and offering an innovative way of living in Beijing.
▼项目概览,overview of the project

▼改造前与改造后,Before and after the renovation


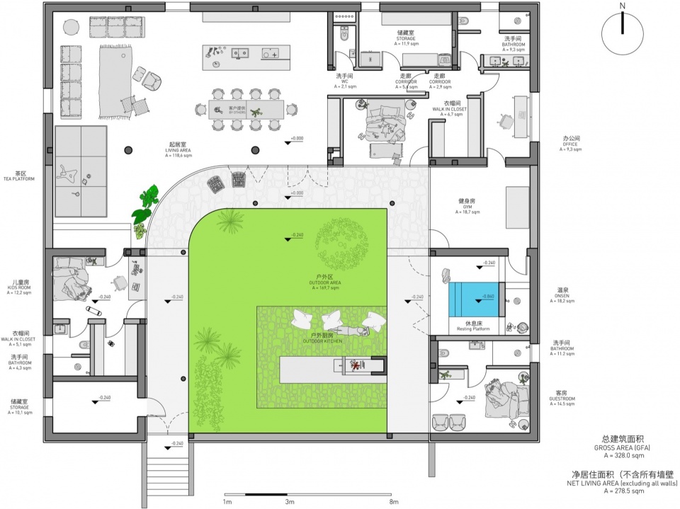
一栋现有的180平方米的主房和两栋45平方米的厢房,是北京郊区典型农村房代表,在这个院子里,建筑师留下了170平方米的室外花园,增加了60平方米的建筑面积,将主房与两个独立的厢房连接起来。
An existing 180-square-meter main house and two 45-square-meter side wings, typical of the rural fringes of Beijing, occupied the plot, leaving 170 sqm of outdoor garden area. The architects added 60 square meters of building area to connect the main house with the two detached side wings.
▼室外花园,outdoor garden area

该建筑具有独特的弧形屋顶线,种花池沿其整个长度延伸,该设计强调简洁的线条和简单的色调。建筑的中心是一个中央庭院,作为组织和聚会的主要空间,促进了整个结构中的光线和空气流动。巨大的落地窗在室内和花园之间创造了无缝连接,允许充足的自然光照射进入室内,布局创造了一个开放的生活空间,使户外景观感觉像是家的一部分。清水混凝土户外厨房和壁炉为社交聚会和烧烤活动营造了氛围。“我们想创造一个简单的生火场所,人们聚集在一起做饭。”过半儿 guò bàn er说。巨石是一种自然元素,与室外厨房结构的混凝土平面形成鲜明对比。
The building features a unique curved roofline with a planter box running along its entire length. The design emphasizes clean lines and a simple color palette. At the heart of the building is a central courtyard that serves as the primary space for organization and movement, facilitating the flow of light and air throughout the structure. The large floor-to-ceiling windows create a seamless connection between the interior and the garden, allowing plenty of natural light. The layout creates an open living space, making the outdoor landscape feel like part of the home. The fair-faced concrete outdoor kitchen and fireplace set the scene for social gatherings and barbecues. “We wanted to create a simple place for fire, where people gather and cook,” says Christian Taeubert, Co-founder of 过半儿 guò bàn er. The boulder serves as a natural element, contrasting sharply with the concrete planes of the outdoor kitchen structure.
▼户外厨房和壁炉,concrete outdoor kitchen and fireplace

住宅的内部空间具有高度的连续性:它延伸了外部建筑所建立的简约美学,注重宽敞和视觉清晰度。开放式布局将厨房、餐饮和生活功能无缝地融合在一个独特、流畅的空间中。可操作的白色透明窗帘在调节光线和隐私方面提供了灵活性。客厅里有一个“漂浮”的木制平台,上面铺着传统的榻榻米,为茶道或放松提供了一个独特的区域。

The interior volume of the home is characterized by a high degree of spatial continuity. It extends the clean aesthetic established by the exterior architecture, focusing on spaciousness and visual clarity. The open-plan format seamlessly merges the kitchen, dining, and living functions into a singular, flowing space. Operable white sheer curtains offer flexibility in modulating light and privacy. A raised wooden platform in the living room, topped with traditional tatami mats, defines a distinct area for tea ceremonies or relaxation.
▼厨房,kitchen



▼家具细部,furniture details


▼客厅,living room




三间卧室都面向庭院花园。主卧室连接工作室,毗邻水疗区和健身房。专门的水疗区强调精心策划的生活享受,它有一个由斑驳的灰色和粉色花岗岩制成的恒温泡池,折叠大窗户,可以通往庭院,欣赏四季,营造出宁静的自然水疗氛围。健身房位于庭院旁,全高的窗户可以欣赏到中央庭院的全景。这种连接将锻炼体验与庭院的自然光线和花园环境融为一体。
All three bedrooms face the courtyard garden. A main bedroom with an en suite bathroom is situated next to a spa area and gym. The dedicated spa area emphasizes the focus on curated living. It features a built-in low-soak pool and a plunge bath made of speckled gray and pink granite, with large windows with sheer curtains that open to the courtyard, creating a calm, spa atmosphere. The gym is positioned along the courtyard. The full-height windows offer a framed view of the central yard. This connection integrates the exercise experience with the courtyard’s natural light and garden environment.
▼望向卧室,look into the bedroom

▼水疗区,spa area



▼健身房,gym

将现有的普通农村住宅改造成现代住宅,重新定义了城市边缘的适应性再利用。“通过重新思考这些城市周边地区的中心地位,我们的复兴项目正在推动家庭层面的社会变革。”过半儿 guò bàn er说。该项目的成功为那些在北京面临高租金、相对低质量生活空间的人带来了创新式的生活方式。”孙敏(Sammy)过半儿guò bàn er说。
The transformation of the existing nondescript dwelling into a contemporary bungalow redefines adaptive reuse at the city’s fringes. “By rethinking the centrality of these urban peripheral zones, our revitalization projects are driving social change on a family level,” says Christian Taeubert, Co-founder of 过半儿 guò bàn er. The project’s success has inspired a new lifestyle for those who were facing high rent for relatively low-quality living space in Beijing,” said Sammy (Sun Min), founder of guò bàn er.
▼总平面,master plan

Project Name: House MM006
Project Type: Residential Addition
Completion: October 2025
Size: 330 sqm of living area and 180 sqm of garden area
Location: Shunyi, Beijing
Architecture and Interior: 过半儿 guò bàn er
Design Director: Christian Taeubert, Sun Min
Contractor: Beijing Qitong Construction Engineering Co., Ltd
Photos: Boris Shiu
Styling: So Far So Good Studio














