MAISON MARTIN住宅改造,法国 / ARCHIEE STUDIO
该项目为法国中部的康塔尔地区一座传统民居的翻新。当地民居的特征是覆盖着当地片岩瓦片的大坡屋顶以及厚重的石墙。
Refurbishment of a traditional house of Cantal, a rural area in the centre of France, characterized by a large sloping roof covered with local schist tiles and thick stone walls.
▼建筑外景,Exterior of the Building


▼建筑测入口,Building side entrance

▼厨房空间,Kitchen space


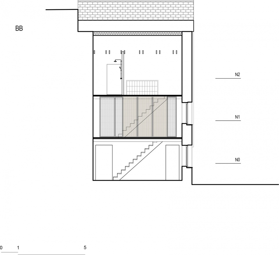
项目的挑战在于将自然光引入这类传统上往往昏暗且由许多小房间组成的住宅内部。为此,设计在南侧立面开设了一处大面积开口,并拆除了室内所有隔墙。这座 90 平方米的房子分布在三层空间中,通过楼梯和贯通的竖向挑空相互连接,使光线能够在屋内流动,同时获得更大的横向视野。一道由钢材与半透明聚碳酸酯制成的滑动隔断,以日本“障子”的方式重新诠释,用于调节一层空间的开合关系。
▼滑动隔断,A sliding partition

The challenge was to bring natural light into the heart of a house which is traditionally dark and made up of small rooms. A large opening was created on the south façade and all the partitions removed inside. The 90m2 house is distributed over three levels linked together by stairs and large voids that were opened up to allow the diffusion of light and increased transversal views. A sliding partition made of steel and translucent polycarbonate, as a reinterpretation of a Japanese “shoji”, modulates the space on the first floor.
▼走廊,Corridor

▼二层空间,Second floor space


▼通往三层的楼梯,Stairs to the third floor

▼三层空间,Third floor space


项目强调在极简的表达中使用自然与原始材料,同时将电缆槽和管线暴露呈现——这是一种带着某种激进气质的更新方式,却依旧尊重建筑本身与当地的文化遗产。
The project brings to the fore the use of naturals and raw materials in a minimalist implementation,leaving the cable trays and pipework visible; a renovation imbued with a certain radicalness but respectful of the building and local heritage.
▼材料细节,Material details

▼总平面图,Plan drawing for each floor

▼剖面图,Section


Housing refurbishment in Saint-Simon
France, 2022
Photos credits: Dorian Loubière














