天府七中小学部,成都/建筑设计
概况
Project overview
天府七中位于成都天府新区核心地段,为新区启动建设的首批校园项目。除了与七中共享运动场地等设施外,在其仅有的20亩预留建设用地上,计划新建设5.7万平方米建筑规模的小学部。
Located in the central district of Tianfu New Area, Tianfu No.7 High School was one of the first schools in the initial stage of district development. Besides the playground and stadiums that could be shared with the middle school, a completely new elementary school with the volume of 5.7 million square meters was planned on the relatively limited land of 1.35 million square meters.
▼西北街角透视
view of the project from northwest

我们认为整个建筑都应该成为一种非正式的学习场所,以一种更轻松更活泼的学习氛围,丰富学生的课余生活。如果说教室是一个固态的空间,那么非正式的学习场所,应该像流态空间,充满整个建筑,串联起各个固态空间。校园的二至五层通高的核心公共大厅,既是交通空间,又是可停驻的场所,也是师生们交流学习的地点,可以作为非正式的学习空间的典型。π型楼梯,承担了教室组团之间交通联系,也是内庭书院光影触媒。中庭下沉式讲堂也是校园记忆的仪式感空间,集会、交流、展示、教学……多重功能的组合会产生意想不到的偶发事件,实现空间的多样性功能转变。
We consider the new school as an unofficial space for learning, and the students could have a colorful life in a more vivid and relaxed atmosphere. If the classroom is considered as a constant solid space, then the unofficial space is a fluid space that can flow in the environment and connect every solid space as a whole. The double height of 4 levels lobby in the second floor provides the visual and spatial connections that invokes meetings and communications, which is the representative area of unofficial space. The π-shaped staircase connects different classroom clusters and catalyzes light and shades to move around the inside. The sunken space in the lobby will offer the opportunity for meeting, sharing, and showing, while varies kind of learning activities are anticipated in the overlaying functions.
▼中庭
atrium

▼中庭的π型楼梯 – 趣味性的交通空间
π-shaped staircase in the atrium – circulation space with fun

▼中庭空间的“看与被看”
visual connection in the atrium space

自由奔跑的流动庭院
Courtyard connected by runway
基于项目高容高密的特性,校园的多种运动功能置于地下空间,建筑内置大量架空、错动穿插的庭院,每个建筑功能享有自然采光通风及优越的景观视线。庭院中自由的跑道从操场延伸至一层架空区,并通过特色的环形坡道串联到负一层架空区,形成流动的、上下多层次共享的空间庭院。
Based on the restrictions of density and FAR, we place many functions underground, and we bring in large scale of courtyard with it to ensure those rooms can enjoy natural light and wind, and students are embraced by good quality views. The unconventional tracks run from the playground to the empty ground floor, and connect the courtyard in the underground floor through annular ramp tracks, so a multi-layer courtyard system is formed through the flowing tracks.
▼负一层下沉庭院 – 室内外运动空间的结合
sunken courtyard – combination of indoor and outdoor sports spaces

▼负一层下沉庭院 – 色彩的碰撞,空间的记忆
sunken courtyard – contrast of colors enhancing memory of the space

非正式教室/教室组群
Unofficial classroom/classroom units
研究当代教育模式的问题,试图采用教室+共享空间的空间组合模式,即三个年级的班级组成一个“教室组群”,不同年龄的学生放在一个建筑空间里。实现跨年级的新型教学模式。例如一年级一班、二年级一班、三年级一班纵向年级班组成一个教学组群。可以在组团的公共空间展开某些功能课程的教学,也可以是共同学习的场所,包括个体学习、小组学习、班级学习等不同的组合形态,孩子根据学习情况及兴趣纵向选择跨年级的课程。个性的释放与空间适应性的改变,教室形态、建筑空间上的改变与教学模式的变革相辅相成,促进了教学场所精神的变革。建筑每层三个教室组群,分别围绕共享中庭与庭院布置。
To study the problem of contemporary education model, we tries to adopt the space combination model of classroom + shared space, three grades of classes form a “classroom group”, and students of different ages are placed in one space. Realize the new teaching mode of cross grade. For example, class 1 grade 1, class 1 Grade 2,and class 1 Grade 3 form a teaching group. The teaching of some functional courses can be carried out in the group public space, or it can be a place for common learning, including individual learning, group learning, class learning and other different combination of forms, children according to the learning situation and interests of longitudinal selection of cross-grade courses. The release of individuality and the change of space adaptability, the change of classroom form and architectural space and the reform of teaching mode complement each other, and promote the reform of the spirit of teaching place. Three classrooms on each floor are grouped around a shared atrium and courtyard.
▼多层次的教学组团
multi layered classroom units

非正式图书馆/被阅读的走道
Unofficial library/walkway to be read
我们把图书馆就直接是放到了某一个交通空间,就是一个水平的走道,学生从他的教室到功能教室的一个必须要经过空间场所。走道就被放大成一个图书馆,就是说学生在经过这个交通空间的时候,它不再只是个交通,可能更多的是感受到这个阅读的氛围,或者学校的一种文化,本来很喧闹的走道,穿越成图书馆,孩子可能自然就会安静下来。
We put the library directly into a certain junction space, which is a horizontal walkway. Students must pass through the space from their classroom to the functional classroom. The walkway is enlarged into a library. What we want to achieve is that when students pass through this space, they don’t just walk by, they may feel the atmosphere of reading or a kind of school culture. When they pass through the noisy corridor, they will naturally calm down.
▼空中阅读长廊
suspended reading corridor

非正式运动空间/出教室即运动
Unofficial sport space/Exercise out of the classroom
在紧张的用地条件下,我们希望创造出多层次的运动空间。除了传统校园体育馆加运动场的标准化设定,我们利用多个标高、多种形态的场地空间,将运动功能分散植入,化解在小学生日常的行为动线中,形成正式和非正式结合的运动环境。位于主席台下方的小球馆,通过天光和下沉庭院双向的光线引入,加上倾斜的屋顶设计,为同学带来全新的地下空间认知和场所记忆;对室内公共空间尺度的扩大设计也为课间活动提供良好的平台。“出教室即可运动”;多标高的屋面平台通过楼梯、台阶串联起整体的系统,为课间的漫步游走提供更多的可能性。
We hope to create multi-level exercise space in the tight land conditions. Apart from the standardized setting of gymnasium and playground, we use multiple levels and various forms of space to disperse the sports functions and dissolve them into the daily behaviors of students, forming a formal and informal sports environment. The small gymnasium located below the platform enjoys the natural light from the sloping roof and the underground courtyard, and it brings an association of collective memories of the special underground space; The expanded scale of indoor public space also provides a good platform for relax activities. “Exercise out of the classroom”. The multi-level roof platforms are connected through stairs and steps, providing more possibilities for strolling during the break.
▼多标高的天空农场
roof garden on various heights

▼屋面的漫步平台
terrace on the roof

▼运动场与主席台
play ground and spectator standing

▼跑道与教学楼的穿插
track running into the teaching building

▼一层架空区的跑道
track in the elevated ground floor

非正式生活教育/家庭式套型宿舍
Unofficial life education/Dormitory units
针对低年龄小学生的心理特点,我们强调家庭式的居住空间设计,既有学生独立的生活空间,也有家庭式的辅助空间提供必要的引导和帮助。因此我们设计了三室一厅的组团式宿舍单元,客厅既是公共交流的空间也是生活教育的场所,便于学生从小培养家庭观念与集体意识。
In view of the psychological characteristics of children, we provide a family-style living space, which has both independent living space for students and family-style auxiliary space to provide necessary guidance and help. Therefore, we designed a dormitory unit with three bedrooms and one living room. The living room is not only a space for public communication, but also a place for life education, which emphasis more on the cultivation of habit and self-care ability of students.
▼家庭式套型宿舍
family type dormitory units

▼宿舍标准单元立面
elevation of the typical dormitory units

▼宿舍立面穿孔铝板细节
details of the perforated aluminum panels

▼宿舍山墙立面细节 – 陶板与铝板的碰撞
closer view to the dormitory facade – contrast between ceramic plates and aluminum panels

立体高密的活力校园
Dynamic school with high density
在设计之初即面临巨大的挑战,如何“螺蛳壳里做道场”是我们要完成的重要课题。受限于局促的建设用地,我们在完整的体量上做减法,塑造负空间,尽可能的为学生创造出更多的室外空间,通过首层架空,屋顶退台,空中花园,下沉庭院等方式打造出丰富多样的立体空间,并通过外挂楼梯和室外平台串联起多层次的负空间,打造立体式多维度的校园体验。
Due to the limitation of construction site, we do subtraction on the complete shape so the outdoor space for students is created as many as possible, through the empty space of first floor and underground courtyard, throught terraces and roof gardens, we make a rich variety of outdoor spaces. By means of platform and staircases, we connect multi-level outdoor spaces together to create a multi-dimensional environment experience.
▼西侧鸟瞰,东侧紧邻天府新区中央公园及中心商务区
aerial view of the project from the west side, with central park and commercial district to the north

▼东侧鸟瞰,立体式教育综合体
aerial view of the project from the north side, three-dimensional education complex

▼运动场看教学楼
view to the teaching building from the playground

▼运动场一侧下沉庭院
sunken courtyard beside the play ground

▼半圆形拉压楼梯
outdoor staircase

管控式社区共享
Controllable sharing with community
教学楼的主体位于场地临路的西侧和北侧,我们在设计之初就有意传达教育建筑开放和共享的理念,希望校园能更多融入社区环境。西侧通透的门厅和中庭设计,希望激发校园与城市良好的互动,中庭的公共讲堂也可以举办教育相关的讲座及展览活动,成为学校和社区共同成长的平台。位于地下的恒温游泳池、室内篮球场等体育设施可以通过专用走道直接与西侧道路连接,提供一条为社区开放的可控路径,真正实现和社区及周围校园的共享功能。
By locating the building by the road at the beginning of the design, we intended to convey an open and sharing educational concept, hoping that the school could be more integrated into the community. The transparent foyer and atrium on the west side are designed to stimulate good interaction between the school and the city. The public lecture hall in the atrium can also host education-related lectures and exhibitions, and become a platform for the school and the community to grow together. The swimming pool, the gym and other sports facilities located underground can be directly connected to the west side of the road through a dedicated walkway, providing a controllable path open to the community, truly realizing the sharing with the community and the surrounding schools.
▼校园入口不设围墙,退让作为公共广场,可供家长及市民休憩
entrance of the campus without bounding walls, building setback creating public plaza for the citizens to have a rest

展望
Wishes
我们希望该项目成为学生学习与生活样本的容器,希望各种各样我们所预想的或未曾预想到的行为在其中发生童。年是每个人最为美好的时光,希望我们的建筑也成为了他们美好回忆的一部分。
We hope that the project will become a container for students’ learning and living, and that many kinds of behaviors will be encouraged in it. Childhood is the best time for everyone, and hopefully our architecture will become a part of their wonderful memories.
▼首层平面图
first floor plan

▼二层平面图
second floor plan

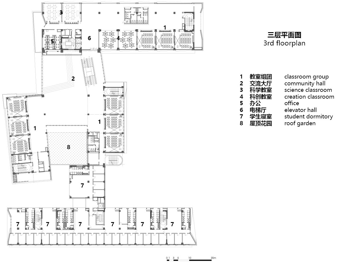
▼三层平面图
third floor plan

▼四层平面图
fourth floor plan

▼五层平面图
fifth floor plan

▼六层平面图
sixth floor plan

▼东立面图
east elevation

▼西立面图
west elevation

▼1-1剖面图
1-1 section

▼2-2剖面图
2-2 section















