谷仓工作室,美国 / Worrell Yeung
在罗得岛一处私密的林地之中,一座隐于岩石露头与天然湿地之间的静修空间,为一对知名艺术家夫妇提供了一个焕然一新的创作场所。布鲁克林建筑事务所Worrell Yeung将场地上一栋建于20世纪80年代的小型马厩建筑加以改造,设计出这座谷仓工作室,一个采光充沛、功能高度明确的艺术创作空间。谷仓工作室与主宅分离,位于树林与一片开阔草地之间。往返于两处建筑之间的路径,被构想为一段穿越草甸、环绕天然季节性水池的冥想式步行体验。
Set within a private, wooded site protected by rocky outcroppings and natural wetlands, a retreat in Rhode Island provides a renowned artist couple with a transformed space in which to create new work. Brooklyn-based architecture firm Worrell Yeung designed Studio Barn for the couple, a light-filled, highly functional art-making space out of the shell of a small, 1980s stable building on the property. Located apart from the main house, Studio Barn sits between the woods and a clearing in the landscape. The journey between the two spaces serves as a meditative walk through a meadow around a natural vernal pool.
▼林地中的工作室谷仓,Studio Barn in the wooded landscape


原有的马厩建筑并未做保温处理,既无重要历史价值,也缺乏建筑学意义,却恰恰为Worrell Yeung提供了一个重新构想空间的起点。通过引入新的开口方式、富有创意的材料选择以及附加的功能设置,建筑师得以对其进行彻底重塑。项目的第一步,是将原有结构回归至基本构成:拆除檐口、剥离装饰线脚,并通过立面重构,使建筑呈现出更为抽象的形态。
▼轴测图,Axonometric diagram

The original, uninsulated stable, neither historically important nor architecturally meritorious, offered Worrell Yeung a launchpad to creatively reinvent the space through the introduction of new apertures, inventive materials, and additional programs. Their first move was to strip back the existing structure to its elements: removing the eaves, stripping the trim, and creating a more abstract shape out of the stable’s elevation.
▼建筑外观概览,Building exterior overview

作为艺术家,业主希望尽可能捕捉柔和、均质的自然光。Worrell Yeung通过在主层引入一处尺度显著放大的开口实现这一目标:一面朝东、长达17英尺的玻璃墙,夜间或非使用时可由滑动式谷仓门关闭,在细微处呼应了农业建筑的语汇。建筑后侧二层上方设置了一处老虎窗,用以引入北向光线,同时在室内形成一处通高空间,其工作台高度达21英尺。
▼仰视轴测图,Worm’s-eye axonometric

As artists, the clients were keen to capture as much diffuse natural daylight as possible. Worrell Yeung accomplished this through the introduction of a much larger, dramatic opening to the Studio Barn on the main level, an east-facing, 17’ wall of glazing can be covered at night or when not in use by a sliding shutter barn door, subtly evoking the agricultural vernacular. Above the second level, a dormer at the rear of the structure captures northern light. This also creates a double height interior space with a 21’ tall work surface.
▼建筑正立面,Building front facade

▼建筑侧立面,Building side facade

在外观上,谷仓工作室最显著的特征是通体黑色的包覆。从远处看,建筑仿佛只是将原有木结构刷漆或染色,但近观之下便会发现其中的不同。Worrell Yeung选用了一种常规的商用级沥青屋面材料,将其同时包覆于屋顶与立面之上。由此形成的表面质感近似皮肤,隐约传达出其下方层次与纹理的存在。随着时间推移与天气变化,表面呈现出不断变化的状态。这一选择同样兼具经济性——相较于常用于此类改造中的石材、金属或木材等难以获取且价格高昂的材料,沥青板材在整栋建筑范围内的应用显得尤为高效而务实。
Most prominent on the exterior, the Studio Barn is clad in black. From afar, it appears as though the architects simply painted or stained the existing wood structure, but upon closer examination, it is quickly clear there is more going on. Worrell Yeung selected a conventional, commercial-grade asphalt roofing material and wrapped it around both the top and sides of the structure. The effect is textural, almost skinlike, telegraphing the layers of and texture beneath it. Depending on the time of day and the weather conditions outside, the surface transforms and evolves. The selection is also cost-effective; instead of hard-to-source (and often pricey) stone, metal, or wood traditionally deployed in a renovation of this sort, the asphalt sheets are economical, especially in the context of its application around the entire structure.
▼老虎窗特写,Dormer detail

▼入口,Entrance

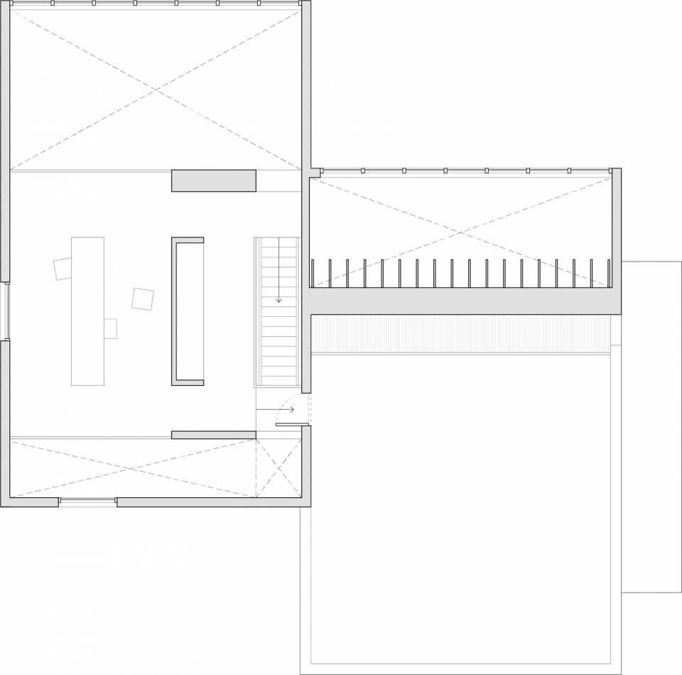
在谷仓工作室的室内,平面布局清晰而直接。一层空间整体保持开放,仅将水槽与卫生间等设备集中封闭于空间中央。南侧、与玻璃立面相对的一面,设置了一整墙由花旗松定制打造的储物柜,用以收纳艺术创作所需的材料与工具。建筑北侧位于老虎窗下方,是一处用于大型创作的通高空间。一层其余墙面则覆盖以灰泥,用于绘画,或铺设未完成的Homasote板材——一种以良好声学性能和耐用性著称的纤维板,适合钉挂与反复使用。看似简单、实用的材料选择,例如均匀分布在天花梁间的瓷质灯座,掩映着其高度整合、无缝执行的复杂性。空间中央的一部开放式楼梯通向夹层,该区域作为兼职办公及额外创作空间使用。
Inside Studio Barn, the floor plan is straightforward. The ground level is open around, with utilities like a sink and water closet closed in at the center of the space. On the south side, opposite the glazed facade, a custom-built wall of cabinets made of douglas fir contain art-making materials and supplies. The north side of the building sits beneath the dormer and contains the double height space for large-scale art creation. Other walls on the ground level are covered in plaster for drawings or unfinished Homasote, a practical fiberboard known for its acoustic qualities as well as its resilience to pin-ups and other physical demands of the creative process. Simple and utilitarian materials like porcelain light sockets evenly spaced between the ceiling joists belie the complication of their seamless execution. An open stair at the center leads to a loft which serves as a part-time office and additional art-making space.
▼一层室内空间概览,Ground floor interior overview



▼一层中央空间,Ground floor core area

▼一层南面室内空间,Ground floor interior on the south side

▼储物柜墙,Custom-built wall of cabinets

▼覆以灰泥的墙面,Wall covered in plaster

▼通高空间,Double-height space

▼楼梯入口,Stair entry

▼楼梯顶端,Top of stairs

▼老虎窗看向室外,Dormer towards landscape

▼夹层空间,Loft space


尽管面积不足1300平方英尺,谷仓工作室仍然充分满足了两位艺术家对于创作静修空间的需求。通过对日常材料的创新运用、设计语言的精简处理以及自然光的引入,Worrell Yeung在一座原本毫不起眼的既有建筑外壳中,塑造出一个完全原创的艺术空间。
While small at under 1,300 square feet, Studio Barn serves two artists well in their pursuit of a creative retreat in which to pursue their endeavors. Through the inventive deployment of quotidian materials, streamlining of design languages, and insertion of natural light, Worrell Yeung have designed a wholly original space out of the shell of an unremarkable, existing structure.
▼夜景远观,Studio Barn at night in landscape

▼夜景外观概览,Studio Barn at night exterior overview



▼夜景正立面,Front facade at night

▼夜间老虎窗,Dormer at night

▼地面层平面图,Ground floor plan

▼上层平面图,Upper floor plan

▼剖透视图,Section perspective
















