BALENMAGAZIJN GHENT工厂改造,比利时 / ATAMA
UCO厂址原为大型纺织工厂,其再开发为城市社会经济提供了新的空间。项目从重新利用一座原本用于存放棉包的仓库,这个大厅将未来入驻园区的公司所需的共享功能集中在一起。
The redevelopment of the UCO site, a former large-scale textile factory, offers space for the social economy in the city and begins with the repurposing of a warehouse that was previously designated for the storage of cotton bales. The hall centralizes the shared functions for companies that will locate their offices on this industrial site.
▼建筑外景,Exterior of the building


原有仓库本质上是一个具有预制混凝土结构、外覆精心砌筑砖壳的高大空间,三扇大门通向建筑内部。通过将新功能垂直布置于四层楼面,只占用了大厅面积的一半。因此,改造后的建筑由两个部分组成,可合并使用,也可独立运作。新建部分包含厨房、会议设施、就业中心及技术用房, 多功能空间与餐厅则继承了原仓库宽敞的高度与纵深。
The original warehouse is essentially a high space with a precast concrete structure and a carefully crafted brick shell. Three gates provide access to the building. By stacking the new program across four floors, only half of the area of the hall is allocated. The repurposed building therefore consists of two halves that can be used together or separately. The new construction houses a kitchen, meeting facilities, a job center, and technical spaces. The polyvalent space with a restaurant inherits the generous height and depth of the original warehouse.
▼建筑入口,Entrance of the building

这座立面封闭、沉静的建筑曾位于庞大厂区的边缘地带,如今它必须承担起作为社区纽带的先锋角色。建筑东西两侧设有两扇巨大的木门,迎接周边居民与园区员工。仓库檐口之上加建的新体量采用反光金属包覆,呼应商业厨房常用的材料,这也象征着Bale仓库及整个厂址在城市中未来的新面貌。
The building, with its silent, closed facades, existed on the margin of the sprawling factory. It must now take on a pioneering role as a link within the neighborhood. On the east and west sides, two oversized wooden gates welcome local residents and employees from the companies on the site. The new construction that rises above the warehouse’s cornice is clad in reflective metal, referencing the material generally used in commercial kitchens. This marks the new future of the Bale warehouse and the site within the city.
▼建筑上方延伸空间,Extended space above the building

▼建筑后方入口,Back entrance of the building

无痕改造 TRANSFORMATION WITHOUT A TRACE
仓库结构简单而脆弱,因此尽量避免因新功能需求而对其结构进行改动,而是通过调整方案来消除改造的必要性。这一策略得以始终坚持,最终对原建筑的介入仅压缩为两项关键性的改动。南侧立面将完全打开,形成一条长形开口,面向正在UCO厂址上自北向南延展的新建公园。北侧立面则遮蔽了商业厨房生产所需的三扇门,通过砖与天然石材饰面将其巧妙融合。
The constructive simplicity of the warehouse is fragile. Every modification necessitated by the new program is avoided by adjusting it in a way that eliminates the need for construction modifications.This strategy can be maintained, and ultimately the intervention on the existing building is reduced to two radical interventions.The southern facade will be completely opened up with a long, elongated façade that overlooks a park being developed from north to south on the UCO site. In the northern facade, three doors, essential for the production process of the commercial kitchen, are masked with a cladding of brick and natural stone.
▼立面改造,Facade Renovation

▼与墙壁融合的入口,The entrance integrated with the wall


功能表现 Performance
尽管我们高度关注在可持续建造中对材料工艺的精细处理,但我们同样重视对方案进行持续优化。在Bale仓库项目中,这种思考促成了多功能空间与配套区域(厨房、会议室、工作区)之间清晰的分区关系。
Although we pay a great deal of attention to the crafts man ship with which materials are incorporated into sustainable constructions, considerable attention is also paid to continuously optimizing the plan. In the Bale Warehouse, this has led to a clear division between multipurpose space and supporting areas (kitchen, meeting rooms, workplaces).
▼多功能空间,Multipurpose space

一体化设计:RWEG、技术、声学与可持续性 An integrated design: RWEG, techniques, acoustics, sustainability
▼这张图展示了我们的设计方法,以项目整体整合为核心。从第一天起,我们便让各领域的专家与工程团队共同参与设计讨论。无论是建筑、工程、结构稳定性、声学,还是可持续性……所有人共同书写同一个设计故事。多年来我们一直协同合作,如今这一过程已非常顺畅,但我们仍不断相互激励与挑战,只为获得一个值得骄傲的卓越成果。附加设施包括:带空气过滤与热回收功能的D类系统、日光控制、LED照明、配备外部可调遮阳的气象站、高效天然气锅炉、绿色屋顶以及雨水回收系统。This image illustrates our design approach, which focuses on integrated projects. From day one, we bring our experts and engineering firms together around the table to discuss the design. Architecture, engineering, stability, acoustics, sustainability..everyon.e contributes to the same story. We have been working together for years, and the writing process now runs very smoothly, but we continue to challenge each other in search of an excellent result that we can look back on with pride. Additional features: System D with air filtration and heat recovery – daylight control – LED lighting- weather station with external mnobile sun blinds -high-efficiency natural gas boiler – green roof – rainwater recovery.

▼内部空间,Interior space


▼内部采光,Internal daylighting

“地址”的塑造 Addressing
“地址感”的塑造对我们而言至关重要:我们如何让建筑在城市中拥有属于它的地址?这在Balen仓库项目中尤为重要,却并不容易。如何让一座仓库表达出它如今作为面向邻里的多功能公共建筑的身份?为此,我们回到现有的建筑元素,并最终聚焦于建筑庄重的大门。我们对其进行修复,并充分敞开它们:这里欢迎每一个人。
The notion of ‘address’ is very important within our agency: how can we give the building an address in the city? This was very important in the Balenmagazijn, but not easy. How can a warehouse express that it is now a multifunctional, neighborhood-oriented public building? For this, too, we looked to what already existed and ended up with the building’s majestic gates. We restored them and opened them ostentatiously: everyone is welcome here!
▼入口细节,Entrance detail

慎重的调整 Adapting with care
这座建筑最初并非为今日的功能而造,因此需要对其结构进行极为策略性的调整。这项工作必须谨慎进行,因为一个不恰当的介入就可能破坏建筑的简洁性。最终,我们选择在面向未来自行车道的南侧开设一条长形开口,并在北侧设置几处实用性开口,使砖结构建筑原有的品质得到更明确的呈现。
The building was not originally designed for the functions it houses today. This meant that very strategic adjustments had to be made to the structure. This is work that must be done with great care; one ill- advised intervention could completely destroy the simplicity of the building. The decision was made to create a single long opening on the south side, facing the future cycle route, and a few utilitarian openings in the north facade. The brick architecture is even more clearly affirmed as an existing quality.
▼项目区位,Site plan


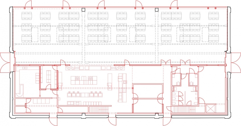
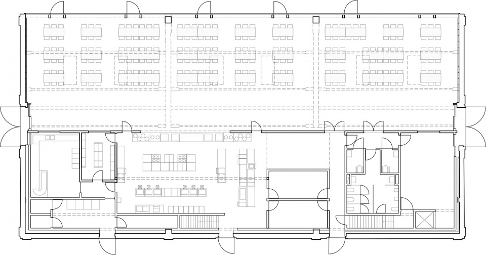
▼平面图,Floor plan


▼剖面图,Section



![[荒野之家#137]-美悦达个个世界-红磨坊,湖北 / 个个世界+先进建筑实验室](https://www.iecwww.com/uploads/images/20251225007/20251225007001.jpg)












