台绣院,浙江台州 / 可米设计+深源创新实验室
台绣的非遗传承与创新,是台州的文化名片。此次特殊的选址,也使得老房子活化如何在新工艺与设计下能够同时满足功能需求、文化意蕴以及空间呈现成为了该项目的主题。
The preservation and innovation of Taizhou embroidery as intangible cultural heritage serves as the city’s cultural calling card. This distinctive site selection has made the revitalisation of old buildings a central theme of the project, exploring how new techniques and design can simultaneously fulfil functional requirements, preserve cultural significance, and enhance spatial presentation.
▼改造后空中看向东北角,Aerial View from Southwest after Renovation

▼改造后空中看向西立面,Aerial View from West after Renovation

传统形制 Architectural Heritage
位于葭沚老街的周家里是一座江南传统三开间大院落的历史建筑,以七开间的主屋为合院核心,由两横屋(厢房)与倒座(单层门房)共同围合而成完整体量,中央为四方道地景观石庭,形成堂-横式空间布局,歇山顶与硬山顶相结合,四面皆有披檐。吴语区的台州片区的风土民居院落尺度较大,本身也适合转换为公共空间或商业场所。二层一般为储藏空间,也可为居住功能,“堂前”正中上方一间通常为仪式空间。设计团队在充分理解浙江民居的空间脉络的基础之上,针对新主题的提出,在保留原始木结构的限制条件下,寻找合适的改造策略。
▼周家里剖轴测,Exploded Axon

TaiSilk Courtyard is located in Jiazhi Street District, the Zhou Residence is a historic Jiangnan-style courtyard complex featuring a traditional three-bay main hall flanked by two wing rooms and a single-story gatehouse, collectively enclosing a central quadrangle stone courtyard. The spatial organization follows the “Main Hall-Wing Rooms” typology, with a combination of hip-and-gable and flush gable roofs, all encircled by overhanging eaves. As a representative vernacular dwelling of the Taizhou subregion in the Wu cultural area, its generous courtyard scale lends itself to conversion into public or commercial spaces. The second floor, originally used for storage or living quarters, features a central ceremonial space above the main hall. The design team developed an adaptive reuse strategy that respects the original timber structure while accommodating new programming.
▼向北看向石庭,Northern Vista Toward the Stone Courtyard

▼向南看向石庭与大门,Southern Vista toward Stone Courtyard and Main Gate

改造策略 Adaptive Reuse Strategy
结合原有空间格局,形成新的水岸-庭院-中庭-楼梯-艺廊的公共空间轴,将封闭的民居改造为公共活动与艺术商业展示的核心,结合台绣特色走秀和文化展示活动,成为葭沚老街新的文化核心。
The intervention reorganizes the enclosed residential compound into a public axis connecting waterfront-courtyard-atrium-staircase-gallery, transforming it into a hub for cultural exhibitions and commercial activities. Centered on Taizhou embroidery fashion displays and cultural events, the project revitalizes the site as Jiazhi Street Distriact’s new cultural anchor.
▼正厅的绸光褶墙,Silken Light-Folding Wall

▼向西看向正厅,Western Vista toward Main Hall

▼向东看向正厅的台面与通往二楼的楼梯,Eastern Vista Toward the Main Hall Platform & Staircase

台绣院的南侧大门朝向水畔,因其作为重要的历史界面与频繁展开活动的场所,我们选择对南立面只展开有限度的设计,仅将原本的木门换新,并增加了两联黄铜标识,让传统的砖墙与石刻门头成为主角。透过打开的大门,庭院与厅堂中发光景墙依然展露出汇聚向内的视觉引力。同样,东侧的外立面只将少量原本的木门更替为玻璃门,面向主街道提高可达性;西侧立面设置了部分橱窗,使得游客能够一睹台绣院沿街商业空间中展陈的服装产品。
▼原状空间形制和改造后空间形制,The Original Spatial System and Spatial system after renovation


Southern Facade (Waterfront): Retaining its historic prominence as an event space, the south elevation underwent minimal alterations—only refurbishing the wooden gate and adding dual brass signage—to highlight the original brick walls and carved stone gateframe. The opened gate frames a view of the courtyard’s illuminated feature wall, creating visual intrigue. Eastern Facade (Main Street): Select wooden doors were replaced with glass doors to enhance accessibility. Western Facade: Display windows were inserted to showcase embroidered garments from the commercial space.
▼朝向水面的南立面,South-facing Waterfront Facade

▼日落后的南立面,The South Facade at Dusk

入口处两厢门房被改造为氛围独到的茶室。庭院东西北三方位的原本的木门与窗扇被拆除只留下石头墙板,檐廊被玻璃幕墙围入,成为室内与的通行与展示空间,室内空间因此向庭院外扩与延展。为了创造新的地坪界面和增加净高,室内原本的石板地面被拆除,浇筑混凝土后以细颗粒的米色水磨石作为最终的完成面,部分石板也被利用回填至庭院与檐廊中部分因年久失修而损坏开裂的石板地面。
Gatehouse is Converted into an intimate tearoom. Original wooden doors and windows on three sides of the courtyard were removed, leaving stone walls. The perimeter corridors were enclosed with glass curtain walls, expanding indoor exhibition areas into the courtyard. The stone-paved ground was replaced with fine-grained beige terrazzo for a unified elevation; salvaged stones repaired damaged courtyard paving.
▼门厅的茶室空间,Tea Space in the Gate House

▼西厢入口空间处,West Wing Entry Space

▼西厢看向中央正厅,West Wing Vista toward Central Main Hall

▼东厢看向庭院,East Wing Framing the Courtyard

▼格栅围合的通高中庭,Atrium Enclosed by Timber Grilles

原正房中堂三开间楼板拆除,形成通高的大厅界面,厅堂通高也符合原民居常用形制。以绸缎般起伏的褶皱墙面作为通高空间的艺术氛围主角,其在透光玻璃钢的塑造下成为了自然的形态,也划分出堂前堂后的交通分割,维持了空间原型。轻盈无定形的悬浮吊灯作为点状的光亮一同为大堂提供照明,也与台绣的织造文化交相辉映。姿态纤柔的主楼梯与收银台相连一体,在结构之间如穿针引线,将人流导向二层的艺术展厅。
The three-bay central space was opened into a double-height volume, consistent with vernacular traditions. A sculptural, pleated glass-reinforced plastic (GRP) wall dominates the atrium, evoking draped silk while maintaining spatial legibility. Suspended amorphous lighting fixtures reference textile craftsmanship, complementing a slender main staircase that guides visitors to the second-floor gallery.
▼室内细节,Interior View of the opening wall

▼室内细节,Interior View of the display

▼楼梯扶手,Details of the Railing

一楼室内以大面积暖白色水磨石地面和沉淀的木色为基调,烘托出相宜又新旧并置的物与情境关系。定制化的设计贴合原生的结构,以柔和细润的形式介入,适当的创造出分区的节奏,又满足品牌展示与综合的功能需求。夹丝水纹玻璃紧靠原墙面设立,既成为悬挂服装的背景,又能透出背后老砖石的历史痕迹。
▼改造后一层空间横轴流线室内穿行层次,Transverse Flow– Layered Indoor Passage

The ground floor harmonizes warm-white terrazzo with rich wood tones, balancing heritage and contemporary elements. Custom-designed details—such as textured wired glass panels serving as garment backdrops while revealing historic masonry—ensure functional flexibility and brand visibility.
▼贴立于老墙面前的夹丝波纹玻璃作为服装展示背景的叠加效果,
Textured Wire-Glass Display Wall A Layered Dialogue Between Heritage and Fashion

▼改造后一层空间纵轴流线走秀观演活动创造公共性,
Longitudinal Flow – Runway and Public Engagement

二楼展厅划分为东西两翼,由空灵的格栅围成的中庭分隔,一条走廊将展厅串联,宛如穿越于历史的通道,展厅中汇聚了林霞老师多年积累的作品,精细的照明使得艺术作品落在墙面与地上的光影也是成为展览的重要部分。在这里可以寻觅传统刺绣工艺文化与现代艺术形式的碰撞,感受指尖上的生命力的同时,也能在观展中一窥庭院与四周景致。二层由于老房子的木地板变形,标高变化过大,又因层高和结构限制无法整体拆除重造,故划分出几处统一标高分区重新规整二层地坪,缓慢以坡度过渡,铺设弹性地垫改进行走体验与隔音效果。
Divided into east and west wings by an ethereal grille-partitioned atrium, the gallery corridor forms a “historical passage” showcasing the lifelong works of Master Lin Xia. Precision lighting transforms shadows into exhibit components. Visitors experience traditional embroidery’s dialogue with modern art, framed by courtyard vistas. Due to structural constraints, uneven original floorboards were reconciled with sloped transitions and elastic underlays to improve acoustics and circulation.
▼二层展厅入口处,Gallery Entrance (Second Floor)

▼二层展厅联名设计展示区,Collaborative Design Exhibition Zone (Second Floor Gallery)

▼二层展厅东翼,East Wing Gallery (Second Floor)

▼二层展厅西翼,West Wing Gallery (Second Floor)

▼二层面向庭院过道,Second Floor Passageway between Courtyard and Atrium_Tai-Silk

▼二层看庭院,Second Floor Courtyard Vista

整体设计 Holistic Design Approach
台绣中独具匠心的工艺,如拉、雕、镂、透、包、绕、贴、抽、镶等手法,也经由设计在空间中的转译,成为了介入并实现改造的有效手段。台绣院通过一种向内的整体设计思路,以较高的比例将空间改造、室内材料、家具陈设、细部物件、景观界面等都包涵在了定制化的设计控制之中,与业主共同完成设计与落地。无论是半透明的墙体材料还是造型各异的灯具,亦或是嵌入式的家具,还是自然形态弯折的悬挂衣架,都没有使用标准化的成品,夹丝玻璃中特定孔隙率与色泽的棉麻也由业主专门选择和制作。这也使得项目表达出自成体系的一致性。
▼改造策略,Renovation Components Diagram

Taizhou embroidery techniques—pulling, carving, perforating, wrapping, twisting, inlaying—inspired spatial interventions. The project adopted an inward-focused methodology, customizing everything from built-ins (e.g., free-form clothing racks) to translucent wall panels with bespoke linen textures. Collaborative improvisation resolved on-site discrepancies, repurposing demolition materials for new finishes.
▼定制家具介入原结构,Custom Furniture Interventions

▼贴立于老墙面前的夹丝波纹玻璃作为服装展示背景的叠加效果,
Layered Display System Textured Wire-Glass Against Historic Masonry

▼几种自然形态的吊挂衣杆,Organic Suspended Garment Rodso

▼空间作为秀场的使用状态,Fashion Show Configuration Spatial Transformation for Runway Events Outdoor


改造与内容的最终呈现中,我们可以用新古拼贴,润物无声,工法互意,自然赋形来概括其整体的氛围与品质。由于改造更新项目中往往存在现场建筑结构与图纸有大量出入的情况,因此整个设计与施工的过程中需要不断的调适。业主与我们在对于艺术效果的追求和商业运营需求的平衡的讨论中,落地也是一个充满即兴构建的经历,包括利用拆除材料重新组合拼凑完整界面。在新的技术工艺参与中,时间的痕迹与空间形制的记忆也都得到了保留。
▼展品逻辑,Exhibition Design

The outcome embodies four principles: new-old collage, subtle integration, craft-as-construction, and organic morphology. By preserving temporal traces and spatial memory, the design achieves a cohesive equilibrium between artistic expression and operational pragmatism.
▼场地规划图,Site Plan

▼葭沚片区保留历史建筑位置与新规划路网叠合关系,Historical Preservation & Urban Integration JIazhi District’s Architectural Legacy within the New Road Network

▼原始平面与拆除规整平面,Original Plan vs demolished and rebuild plan

▼一层平面,Ground Floor Plan

▼二层平面,Second Floor Plan

▼门房内院立面,Gate house facade inward


▼南立面,South Facade


▼西立面,West Facade


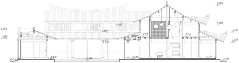
▼A-A剖面,A-A Section


▼B-B剖面,B-B Section


▼节点大样,Detail of the wall display system

Project name:Tai-Silk Courtyard
Project type:Interior Design / Commercial / Exhibition Space
Design:CO-MILIEU+ Deep Origin Lab
Contact e-mail: office@comilieu.com;deeporiginlab@gmail.com
Completion Year:2024
Leader designer & Team:
COMILIEU: Dai Qiaoqi, Tang Yini
Deep Origin Lab: Liu Qinrong, Yao Lu, Xu Chaocai
Historical Architecture Consultant: Cai Xuanhao, Li Kairan
Opening Ceremony Planner: Zhang Yilin
Project location:Jiazhi Street, Jiaojiang District, Taizhou City, Zhejiang Province, China
Gross built area: 1154㎡
Photo credit:Chen Hao, Yao Lu, Li Kairan, Tai-Silk, Luo Hao
Clients:Zhejiang Tai Silk Garments Co., Ltd.
Construction:Shanghai Supai Decoration Engineering Co., Ltd.
Lighting Consultant:Cheng Rong
Materials:Wired glass;Fibreglass;Terrazzo














