国家发电设备机械零部件产品质量监督检验中心项目,四川 / 四川省建筑设计研究院有限公司
概况:Project Overview
项目位于四川德阳,作为德阳市“南进”战略核心项目,坐落于经开区主干道交汇处(庐山路南路、天山南路、金沙江路),净用地仅14915.5m²,却需承载82873.93m²复合功能——既是填补德阳重装产业“国家级质检空白”的“六电”装备检测枢纽,也是整合公安、城管、卫生、应急等功能的城市智慧数据中心。
▼项目概况,Project Overview

Located in Deyang, Sichuan, and serves as a core initiative under the “Southward Expansion” strategy of Deyang, the project situates at the intersection of major roads in the Economic and Technological Development Zone (Lushan South Road, Tianshan South Road, and Jinsha River Road), which occupies a net land area of only 14,915.5m², yet is designed to accommodate a gross floor area of 82,873.93m² with mixed functions. It not only fills the gap in national-level quality inspection services for Deyang’s heavy equipment industry by serving as a testing hub for “six types of electrical equipment,” but also integrates urban smart governance functions including public security, urban management, health services, and emergency response. With a decorative height of 142.4m, it not only redefines the city’s skyline, but also embodies a dual role in both industrial service provision and urban governance, achieving a breakthrough in enabling a single parcel of land to support multiple strategic functions.
▼项目鸟瞰,Aerial View

挑战The Challenges
四大核心矛盾的精准研判:小地块与复合功能的冲突是设计首要难题:其一,1.49万m²用地需容纳8.28万m²建筑,规划指标与空间需求的平衡难度大;其二,国检中心(实验、检测)与数据中心(指挥、运算)功能差异显著,高效布局且互不干扰成为关键;其三,142m超限高层存在扭转不规则、13.2m大悬挑等技术难点,需兼顾结构安全与大空间诉求;其四,地标设计需规避“千城一面”,通过形态传递德阳重装产业特征。
Accurate Identification of Four Core Contradictions: The conflict between a small site and complex functions stands as the foremost challenge for design. Firstly, the 14,900m²site accommodates an 82,800m² building, making it difficult to balance planning regulations with spatial demands. Secondly, there is a significant functional disparity between the National Inspection Center (focused on experiments and testing) and the Data Center (dedicated to command and computing); thus, achieving efficient layout while ensuring mutual non-interference becomes critical. The third, the 142m super high-rise structure presents technical difficulties such as torsional irregularities and a large cantilever of 13.2m, requiring careful consideration of both structural safety and the need for expansive interior spaces. Fourthly, as a landmark building, the design must avoid the “uniformity of cities” phenomenon and instead convey the characteristics of Deyang’s heavy equipment industry through its form and expression.
▼局促地块容纳功能集合,Functional Integration within a Constrained Site

▼大悬挑,The Large Cantilever



破题Penetration
设计以“系统思维拆解+模块化整合”为核心,从布局规划、功能生成、形态塑造、流线组织、技术落地五大维度构建方案,聚焦“小地块高效利用、复杂功能有序整合、产业特征显性化、技术难题突破”四大目标。
The design is centered around the core concept of “systematic deconstruction + modular integration.” From five key dimensions—layout planning, functional generation, formal shaping, circulation organization, and technical implementation—the proposal focuses n four primary objectives: efficient utilization of a compact site, orderly integration of complex functions, explicit expression of industrial identity, and resolution of technical challenges.
▼南向鸟瞰,South Aerial View


一. 布局规划:地标性与城市协同的理性平衡(I) Layout Planning: A Rational Balance Between Landmark Identity and Urban Synergy
塔楼布局是空间决策的核心:基于城市人流分析,确定“东侧路口单塔楼”方案:既顺应主城区人流来向,形成庐山路南路视觉焦点,强化地标识别性;又确保多条道路视线通廊无遮挡,最大化建筑展示面。同时,塔楼与公共绿地形成“核心-环绕”关系,构建城市公园体系,联动周边地块破解小地块“孤立感”;通过“建筑退线+绿地渗透”,将场地边缘转化为城市公共界面,实现建筑与城市的无界融合。
▼根据城市展示界面确定后勤流线、车行流线关系
Determine the relationship between logistics & vehicle circulation based on the urban display interface.

▼视线上,双塔楼方案难以达到全方位的优质观赏效果
From a visual perspective, the twin-tower scheme is difficult to achieve all-round high-quality viewing effects.

▼主要人流来向庐山路口,西南角非最佳展示面
The main pedestrian flow comes from the Lushan Road intersection, and the southwest corner is not the optimal display façade.

▼单塔楼位于东北侧路口,顺应主城区人流来向,形成地标级别体量,为最合理塔楼布置方案;且各条道路视线通廊均能得到较佳的展示面
The single tower is positioned at the northeast intersection, aligning with the main pedestrian flow from the central urban area. It forms a landmark-scale volume and represents the most rational tower layout scheme. Moreover, each road corridor enjoys relatively favorable display facades along the sightlines.

The tower layout lies at the heart of the spatial decision-making process. Based on an analysis of urban pedestrian flow, the scheme adopts a “single tower at the eastern intersection” approach. This not only aligns with the direction of foot traffic from the main urban area, establishing a visual focal point along Lushan South Road and enhancing the landmark’s recognizability, but also ensures unobstructed sightlines along multiple road corridors, thereby maximizing the building’s exposure. Meanwhile, the tower forms a “core-surround” relationship with adjacent public green space, contributing to an urban park system that connects with surrounding plots and helps overcome the sense of isolation often associated with small-scale sites. Through strategies such as “building setback plus green space infiltration,” the edges of the site are transformed into urban public interfaces, achieving a seamless integration between architecture and the city.
▼西向鸟瞰,West Aerial View


二. 功能生成:双100L型交通体的“骨架式整合”(II) Functional Generation: “Skeleton-Style Integration” Through Dual 100L-Shaped Circulation Volumes
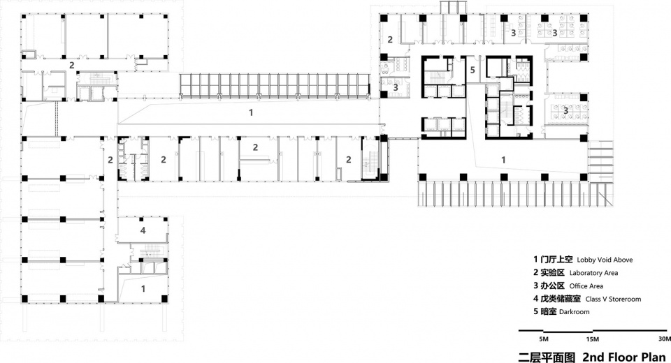
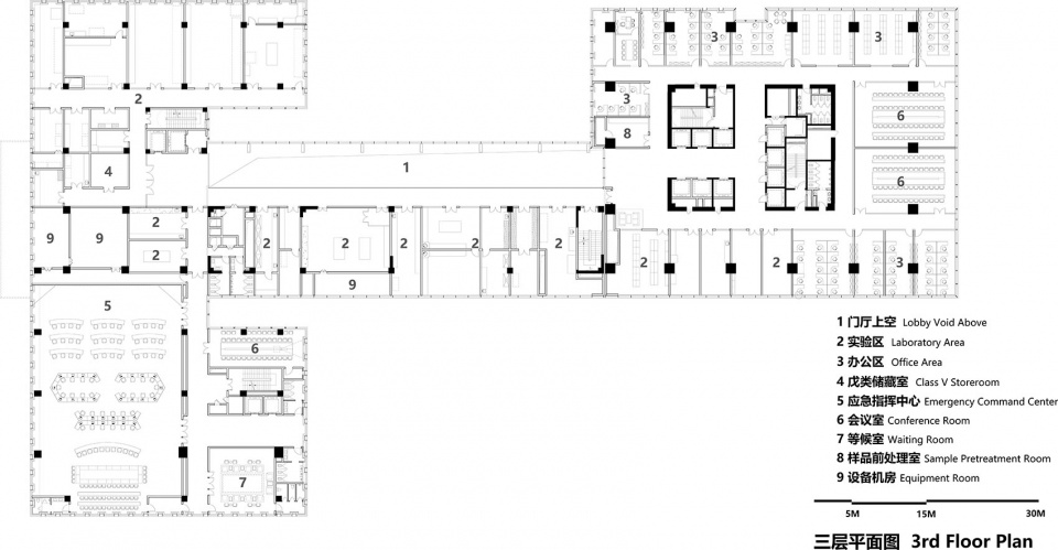
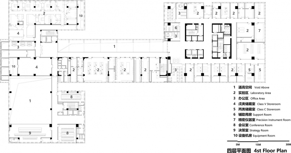
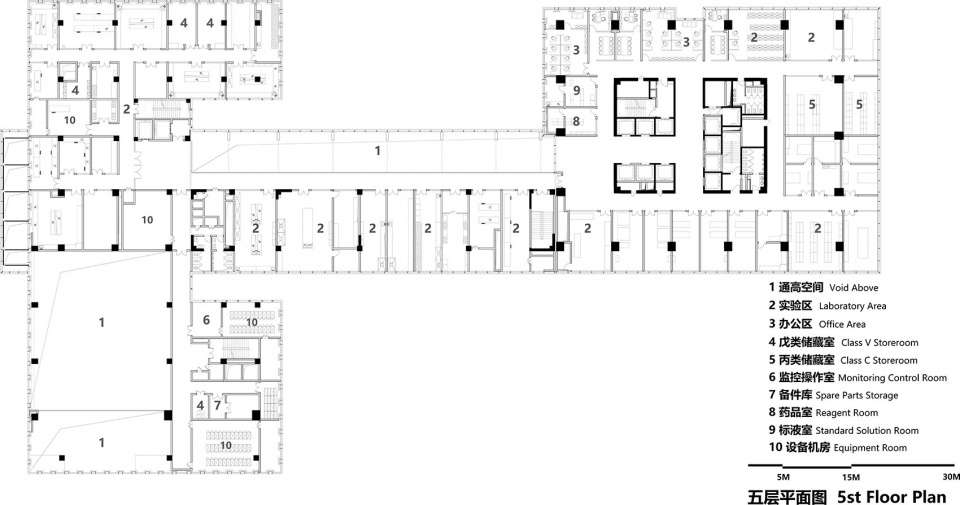
以“模块化拆分+骨架挂接”破解功能混杂难题:先将国检中心(实验、接样、力学检测)与数据中心(指挥、运算、展示)拆分为独立模块,按“使用需求+空间尺度”定制;再以横向+竖向双100L型交通体为“骨架”——横向串联裙房、展厅与地下空间,解决水平联动问题;竖向承载高低区电梯与管井,实现垂直分区。围绕“骨架”划分七大功能区(城市展厅、数据中心等),低区设国检中心、高区设数据中心,避免干扰。同步植入1000m²360云景展厅(塔楼顶层8m层高)、1000m²应急指挥中心(裙房无柱空间)等特色场景,提升使用价值。
Resolving Functional Complexity through “Modular Division + Skeleton Attachment”:To address the challenge of functional integration, the design begins by breaking down the National Inspection Center (encompassing laboratories, sample reception, and mechanical testing) and the Data Center (including command, computing, and exhibition functions) into independent modules, each tailored to specific usage requirements and spatial scales. These modules are then connected via dual 100L-shaped circulation volumes operating both horizontally and vertically, acting as a “skeletal framework.” Horizontally, the 100L-shaped volume links the podium, exhibition halls, and underground spaces, facilitating smooth horizontal connectivity; vertically, it accommodates high and low-zone elevators and utility shafts, enabling clear vertical zoning. Around the “skeleton,” seven major functional zones are organized—including the Urban Exhibition Hall and the Data Center. Specifically, the lower levels house the National Inspection Center, while the upper levels are dedicated to the Data Center, effectively avoiding operational interference. In addition, distinctive features are integrated to enhance spatial value, including a 1,000m² 360° Cloud View Exhibition Hall (with an 8-meter floor-to-floor height at the tower’s top level) and a 1,000m² Emergency Command Center (featuring a column-free space within the podium).
▼通高大堂与试验区走廊,Multi-height Lobby & Corridor of Laboratory Zone

▼实验区楼梯,Experimental Zone Stairway

三. 形态塑造:产业基因与绿色科技的融合(III) Formal Shaping: Integrating Industrial DNA with Green Technology
形态设计遵循“四大原则”:标志性采用“工业感金属线条+模块化玻璃幕墙”,提取“六电”装备的桁架结构语言,呼应重装产业美学;功能性按内部需求定制立面——国检区用高透光玻璃满足实验采光,数据中心用Low-E三银镀膜玻璃减少太阳辐射;特色性通过塔楼顶层“悬浮感”展厅、裙房斜柱转换的“动态线条”,丰富视觉层次;生态性优化建筑形体系数,屋面(第五立面)统筹设备机房(中间加盖廊棚)、管道(直通屋面)与休息平台,保障立面完整性。
The form design adheres to four guiding principles:
Iconicity: Employing “industrial-style metal lines + modular glass curtain walls,” the design draws inspiration from the truss structures characteristic of the “six types of electrical equipment,” echoing the aesthetic of Deyang’s heavy equipment industry.
Functionality:The façade is customized according to internal functional needs—high-transparency glass is used in the inspection area to meet laboratory lighting requirements, while Low-E triple-silver coated glass is applied to the data center to reduce solar heat gain.
Distinctiveness: Visual richness is enhanced through elements such as the “floating” exhibition hall at the tower’s summit and the dynamic lines created by sloping columns transitioning through the podium, adding depth and movement to the building’s appearance.
Sustainability: Building form and surface-area-to-volume ratio are optimized. The roof (the “fifth façade”) is carefully coordinated to integrate mechanical rooms (topped with covered walkways), piping (directly routed to the roof), and rest platforms, preserving the integrity and continuity of the façade design.
▼工业线条与重装产业美,Industrial Lines & Heavy-industry Aesthetics



四. 流线组织:多层级分流的高效与人性化(IV) Circulation Organization: Efficient and Human-Centered Multi-Level Flow Management
构建“地下-地面-塔楼-裙房”四维体系:地下空间创新“地面化”设计,围绕庭院规划“U”形主流线+2条次流线+2条后勤流线,串联实验室、车库等,自然光引入消解压抑感;地面按功能划分独立入口——国检中心设北侧接样厅、西侧实验厅,数据中心设南侧市民厅、东侧指挥厅,6条人行+4条车行流线实现“企业、市民、公务、后勤”完全分流;塔楼采用“T”字型核心筒,高低区电梯独立(纵向服务数据、横向服务国检),避免人流交叉;裙房以东西向主流线串联塔楼,结合南北次流线与实验支流线,适配“取样-检测-分析”流程。
Establish the four-dimensional circulation system—“underground, ground level, tower and podium”: For the underground level, an innovative “ground-like” design is adopted. Centered around a courtyard, the layout features a U-shaped main circulation route, complemented by two secondary routes and two dedicated service lanes. These pathways connect laboratories, parking areas, and other functions, while natural light is introduced to alleviate any sense of confinement.
At ground level, entrances are functionally zoned: the National Inspection Center has a sample reception hall on the north side and an experimental hall on the west; the Data Center features a citizen service hall to the south and a command hall to the east. Six pedestrian routes and four vehicular routes ensure complete segregation of flows—enterprise, public, official, and logistics—minimizing interference among user groups.
The tower employs a T-shaped core, with separate elevator banks serving high and low zones: vertical elevators serve the Data Center, while horizontal ones cater to the National Inspection Center, effectively preventing crossover between different user streams.
The podium is organized along an east–west main circulation spine connecting to the tower, supplemented by north–south secondary routes and branch paths for laboratory access. This arrangement aligns seamlessly with the workflow of “sample collection – testing – analysis.”
▼国检中心入口,Entrance to the National Inspection Center

▼142m超限塔楼,142m Super-high-rise Tower

▼国检中心次入口,Secondary Entry of the National Inspection Center

五. 技术创新:结构突破与绿色落地(V) Technological Innovation: Structural Breakthroughs and Green Implementation
超限结构处理是技术核心:塔楼顶层用“悬挑桁架+吊柱”,在120m高空实现1000m²8m层高无柱空间;15-24层“隔层设梁”形成5个300m²双层通高区;裙房用“斜柱转换”将内部柱移至边缘,实现三层1000m²无柱实验空间,兼强立面特色。绿色技术系统落地:通过建筑偏转、下沉庭院、绿色屋顶优化微气候;高性能玻璃幕墙(传热系数≤1.8W/(m²・K))+自然通风构造降低能耗;“植草沟+雨水花园+回用系统”实现85%雨水控制率,打造城市“海绵”。
▼剖透视,Perspective Section

Addressing the super-high-rise structural challenges is the core of technical design. At the tower’s summit, a “cantilevered truss + suspended columns” system enables a column-free space of 1,000m² with an 8-meter floor-to-floor height at an elevation of 120 meters. Floors 15-24 adopt an “inter-story beam” strategy to create five double-height zones, each spanning 300 m². In the podium, a “sloping column transfer” solution relocates interior columns to the perimeter, delivering a three-story, 1,000m² column-free laboratory space while simultaneously enhancing the building’s façade character.
Green technology systems have been fully implemented. Microclimate optimization is achieved through building orientation adjustments, a sunken courtyard, and a green roof. Energy consumption is reduced by employing high-performance glass curtain walls (with a thermal transmittance coefficient ≤ 1.8 W/(m²·K)) and incorporating passive ventilation design. A comprehensive stormwater management system—comprising grass swales, rain gardens, and reuse facilities—achieves an 85% stormwater retention rate, positioning the project as an urban “sponge” that contributes to ecological resilience.
▼斜柱转换,Inclined Column Transfer


▼高性能玻璃幕墙立面,High-performance Glass Curtain Wall Façade

▼花园广场,Landscaped Plaza

结语:小地块的大战略价值Conclusion: Strategic Value Beyond a Compact Site
本项目以设计创新破解小地块复合功能难题:产业层面填补“六电”质检空白,城市层面推动“南进”战略落地,设计层面构建“模块化整合+骨架挂接+多层级分流”范式,为中小地块承载大型复合公共建筑提供借鉴,更以产业基因与绿色科技的融合,树立“功能+文化+生态”三位一体的产业地标标杆。
The project addresses the challenge of integrating complex functions on a limited site through innovative design. On the industrial front, it fills the gap in national-level quality inspection services for Deyang’s “six types of electrical equipment”; on the urban scale, it advances the implementation of Deyang’s “Southward Expansion” strategy. From a design perspective, it establishes a replicable paradigm based on “modular integration + skeleton attachment + multi-level circulation,” offering valuable reference for accommodating large-scale, mixed-use public buildings on small and medium-sized parcels. Moreover, by blending industrial identity with green technology, the project sets a benchmark for industrial landmarks that achieve an integrated trinity of function, culture and ecology.
▼黄昏鸟瞰,Aerial View at Dusk

▼俯瞰绵远河,Aerial View over Mianyuan River

▼总平面,Site Plan

▼首层平面,1st Floor Plan

▼二层平面图,2nd Floor Plan

▼三层平面图,3rd Floor Plan

▼四层平面图,4st Floor Plan

▼五层平面图,5st Floor Plan

▼七层平面图,7st Floor Plan

▼二十四层平面图,24st Floor Plan

▼二十六层平面图,26st Floor Plan

▼剖面图(南),South Elevation Section

▼剖面图(西),West Elevation Section

Project name: National Power Generation Equipment Mechanical Components Product Quality Supervision and Inspection Center
Project type: Scientific research and office building
Project location: Deyang, Sichuan
Design unit: Sichuan Provincial Architectural Design and Research Institute CO., LTD
Construction unit:Guangxi Construction Engineering Group General Contracting CO., Ltd.
Chief architect/Design principal: Chai Tiefeng
Leader designer: Gao Rui
Design team: Li Chuandong, Tang Peng, He Jiaxi, Zhang Huan, He Qingsong, Yin Zhe, Luo Jie, Liu Mengfei, Zhou Shengdong, Peng Xianhui, Zhao Dongyang, Ding Pengyu, Wang Mengxiu, Feng Yanyan,Su Hang,Tang Junjie
Photo credit: 404NF STUDIO
Gross built area: 83,000m²
Completion Year:2024
Clients: Deyang Heavy Equipment Testing CO., LTD.














