嘉兴高铁新城文化中心,浙江嘉兴 / 清华大学建筑设计研究院有限公司素朴工作室
嘉兴,河网密布,九水连心。在这个自然、松弛的城市里,高铁新城将一块两面临水的半岛用地,留给了一座面向公众的文化中心。2020年第一次现场踏勘时,场地仍保有开阔的滨水视野与野趣生态,周边的新城建设还在酝酿中。如何避免大型公共建筑阻隔水岸,而是主动让渡水岸,成为设计的起点。业主对文化中心期待的使用场景林林总总,仿佛这座城市的微缩剪影:文艺演出,规划展览,电影沙龙,市民论坛;餐厅,咖啡,书店,文创,兴趣班,乐器行;聚餐会友,散步遛娃,逛街采风,观景打卡,即兴演出,街头快闪,周末市集……当这些生活场景铺陈展开,如同一把种子撒在这片特殊的场地里,就看怎么破土长出一座有趣、适用、开放包容的建筑。
Jiaxing High-Speed Rail New Town Cultural Center sits at a key node in the city’s water and landscape network, with open waterfronts to the north and west and major roads to the south and east. Conceived as the City Living Room and Eye of the Town, it anchors the community core, surrounded by residences, schools, and the hospital. It aims to provide the public with a high-quality, all-day accessible experience. Through rational zoning and flexible spatial layout, the project embraces a low-cost, multifunctional, and diversified operational model that responds to varied community needs. As a civic landmark with strong public appeal, it catalyzes the vitality of the new district, shaping future-oriented spaces while exemplifying the seamless integration of low-carbon technologies with the urban ecological environment.
▼嘉兴高铁新城文化中心鸟瞰图,Aerial view of the Cultural Center of Jiaxing High-Speed Railway New Town

▼嘉兴高铁新城文化中心夜景,The night view of the Cultural Center in Jiaxing High-Speed Railway New Town

▼半户外空间使用场景设想,Conception of usage scenarios for semi-outdoor Spaces

山体台地的立体客厅 An Inclusive Urban Living Room
设计将外部空间塑造为可攀登的“山体台地”,以全天候开放的立体公共平台,消解体量感,避免建筑成为通往滨水的屏障。展厅、接待门厅、多功能剧场等大体量的功能空间和为滨水空间服务的餐厅、书吧设置在首层;各类沙龙论坛和独立商店叠置其上,形成“三山夹两水”的立体公共街道。市民无需进入展馆,就能沿立体街道登临平台,逛遍各文化服务单元,全方位的欣赏自然水岸和城市景观。开放的立体游线与分区运营模式,为文化活动、市民休闲与夜间经济提供了弹性空间,使文化中心回归城市日常,生长为有烟火气的城市客厅。传统观念里“阳春白雪”的文化中心,落回城市日常之中,生长为充满烟火气的城市客厅。
▼屋架下的“山体台地”与场地景观整体设计(初始方案),The “mountain terrace” under the roof truss and the overall design of the site landscape (initial plan)

The project centers on openness and civic sharing, envisioning the cultural center as an inclusive urban living room. Flexible spatial zoning and all-day service accommodate exhibitions, performances, and other cultural activities while ensuring resilience for future programmatic changes. Major volumes, such as the exhibition hall and theater, are located on the ground floor for accessibility and efficiency. The theater, with a separate northwest entrance, can operate independently on weekends and evenings, supporting the local night-time economy. The under-roof area transforms into a three-dimensional public street—“three mountains embracing two rivers”— hovering above exhibition spaces, allowing citizens to stroll, enjoy urban scenery, and engage with culture without entering the galleries. Elevated circulation routes and a commercial street create diverse venues for exhibitions, creative industries, markets, and leisure. Exterior massing forms a climbable terraced mountain, offering a 24-hour open landmark. Rooftop plazas and elevated streets provide panoramic waterfront views. Rather than blocking the waterfront, the building enhances accessibility and participation, establishing a friendly, inclusive, and open environment.
▼嘉兴高铁新城文化中心夜景与日景,The night and day views of the Cultural Center in Jiaxing High-Speed Railway New Town


▼嘉兴高铁新城文化中心水岸视角,Waterfront perspective of Jiaxing High-Speed Railway New Town Cultural Center

四通八达的公共空间 Adaptive Spatial Strategies for Urban Resilience
建筑的公共性,通过去中心化、四通八达的空间结构进一步强化。各个功能单元既由完整的门厅系统串联,又保持独立可达:滨水餐厅与书店直接面向沿岸步道;多功能小剧场拥有独立前厅,支持夜间与非工作日运营;展厅、商店与二、三层服务单元均可经由户外街道与平台独立进出。半户外平台不仅连接功能,也为快闪活动等新型业态提供灵活场所。
The design responds to the region’s mild, humid climate, using spatial hierarchy and massing to limit areas requiring heating or cooling. Circulation paths and exhibition areas are transformed into semi-outdoor zones, reducing energy demand while enhancing spatial quality.
Outdoor platforms, paired with BIPV canopies and native vegetation, create semi-outdoor activity spaces that improve the microclimate. The waterfront landscape is carefully adapted to local conditions with multi-level ecological wetland terraces, integrated into stormwater management and sponge city systems. By responding to natural water level fluctuations, the design turns uncertainty into adaptive potential, establishing a resilient landscape paradigm that addresses climate variability. The flexible, open, and sustainable spatial strategy supports multifunctional, low-cost operations, meets the cultural center’s programmatic needs, and delivers long-term public value.
▼屋面下的立体街道,The three-dimensional street under the roof

▼屋面下的平台休息区,The platform rest area under the roof

屋檐之下的林荫漫步 Designing for Comfort and Humanity
在“山体台地”之上,一片钢木复合、光伏一体化的大屋面,为城市撑起连续的檐下空间。在遮阳避雨,提升户外舒适度的同时,模糊室内外的界限,让文化生活走向户外,也用自然体验回馈室内。屋架西高东低、南高北低,形似反宇向阳的传统屋檐,并通过单元化网架优化构造。实体屋面与ETFE天窗协同,将柔和的自然天光引入檐下,同时吸收设备与活动噪音。山体台地中心的“嘉兴之眼”中庭进一步引入通风与采光,使深檐之下仍能感知天空与气流,形成如林荫般舒适的公共场所。
The project embraces a “form-performance synergy” approach, integrating architectural form, environmental performance, and human experience. Indoor volumes are minimized and semi-outdoor spaces strategically organized, while a rooftop canopy—drawing inspiration from traditional Chinese eaves and expressed through contemporary curved forms—enhances natural lighting, thermal comfort, and shading. The canopy not only improves semi-outdoor spatial quality but also serves as a distinctive city landmark. Interior spaces focus on key areas such as the entrance hall, theater, and cinema lobby, with finishes and materials carefully selected to balance aesthetics, sustainability, and user comfort. Non-core areas minimize material use and emphasize green, natural materials. Spatial organization and lighting are coordinated to ensure even, comfortable illumination, while intelligent controls allow multifunctional spaces to adapt for performances, exhibitions, or conferences, enhancing both functionality and user experience. Exterior lighting adopts energy-efficient, precise strategies, with rooftop downlights discretely installed and adjustable to maintain uniform illuminance, safety, and spatial ambiance. Acoustic performance is enhanced through simulation-driven design: perforated curved panels with Helmholtz resonance absorb targeted frequencies on stage, while MLS diffusers evenly scatter sound in audience areas to prevent reflection issues and improve clarity.
▼“嘉兴之眼”中庭,The atrium of “Jiaxing Eye”


屋檐之上的光合共生 Low Carbon Construction with BIPV
屋檐之上,光伏系统与结构单元共生。约500kW的光伏装机容量,如同树冠般光合作用,为建筑空调、照明、充电桩等运行提供清洁能源。盛夏遮阳导风、雨天有序排水,延续风雨无阻的户外日常。建筑的技术系统不再隐藏,而是成为可被感知的日常体验。
The project integrates structure, architecture, and energy strategies to achieve lightweight, open, and resilient large-span spaces. It introduces a “flexible cable–rigid support synergy” system: high-strength prestressed cables form rhythmic spatial trusses that carry horizontal loads while creating continuous, lightweight forms; rigid steel supports provide stiffness to control deformations and wind response, ensuring stability and spatial comfort. This collaboration reduces steel usage by 23% compared to preliminary estimates, offering a low-carbon structural paradigm.
▼光伏一体化屋面的完成效果,The completion effect of the photovoltaic integrated roof

双螺旋坡道串联立体游览路径,建筑技术设备成为日常体验的一部分。市民在行走中近距离观察屋架、设备、光伏构造,建筑如同一枚透明的表盘,展示出的设备和构造细节如同表盘中的齿轮和螺丝,是其整体形态中不可分割的一部分,也是实现其性能至关重要的一部分,将低碳理念转化为直观可读的空间语言。
The roof serves as a multi-functional medium for daylighting, energy generation, and rainwater management, exemplifying synergy between form, structure, and performance in low-carbon architecture. A parametric design coordinates slope, drainage, PV layout, and shading for efficiency and visual continuity. Complex areas are clad in aluminum panels, while square skylights with diffused ETFE provide uniform natural light for semi-outdoor spaces. A steel-wood composite roof, elevated 1.1 m, accommodates PV arrays and drainage, with parametric modeling and 3D scanning ensuring precise construction and light-shadow effects.
▼双螺旋坡道,Double spiral ramp

▼双螺旋坡道人视角,Double spiral ramp human perspective

性能导向的室内空间设计 Intelligent and Adaptive Operation
室内设计遵循文化中心各功能单元在使用方式与运营周期上的差异,采用“公共区域先行,商业单元留白”的策略:优先完成门厅、中庭、大厅等公共空间,以及多功能小剧场与影音空间;独立运营单元则为未来使用者预留设计弹性,减少资源浪费,也为空间持续更新创造条件。整体室内设计以性能为导向展开。不同空间从实际使用需求出发,围绕声学、采光与设备整合等关键要素,形成清晰而克制的空间表达。入口门厅通过节奏变化的格栅展陈墙,兼顾活动展示与空间秩序控制,并将照明与机电系统自然融入其中。
The project adopts a graded “PV–Storage–DC–Flexible” energy strategy, creating an efficient system tailored to building use. PV generation feeds multiple subsystems to enhance resilience, while DC systems supply end devices directly, reducing conversion losses. Energy dispatch follows a “PV first, storage-assisted, grid backup” principle, optimizing renewable energy use across all scenarios.
▼入口门厅,The entrance foyer

大厅将结构柱与接待信息台、观众休息的需求相结合,用连续曲线的树状顶棚,和顶棚投影形成的铺地纹理,形成公共活动立体动线的空间限定。大厅立体动线串联展厅与多层会议空间,各会议单元从声学与照明性能出发整体设计。用吸音板吊顶单元和照明灯带实现构造与设备一体化处理。多功能小剧场设置独立门厅,运营时可分可合,内部通过可变座席与差异化声学设计,适应演出、论坛与发布会等多种使用场景。影音欣赏厅外的沙龙水吧,通过通透界面与户外平台衔接,使观影、交流与滨水公共生活自然延展。
A real-time monitoring platform continuously tracks indoor and outdoor conditions, enabling dynamic energy control and optimizing microclimate comfort. Intelligent control and adaptive strategies allow the building to balance low-carbon operation, energy efficiency, and high-quality environmental comfort.
▼大厅,The hall

▼影院水吧,cinema water bar

后记
嘉兴高铁新城文化中心的设计、建造过程,始终遵循形态追随低碳性能的原则。随着项目的落成,它将伴随周边社区的发展、公众使用需求的变化及运营业态的更新持续生长与演化。我们期待它不是一件静态的建筑雕塑,而是一个与社区共生、同呼吸的开放共同体。
▼整体可持续设计策略,Overall sustainable design strategy

▼光伏一体化屋面的平面布置,The planar layout of the photovoltaic integrated roof

▼一层平面图,1F floor plan

▼二层平面图,2F floor plan

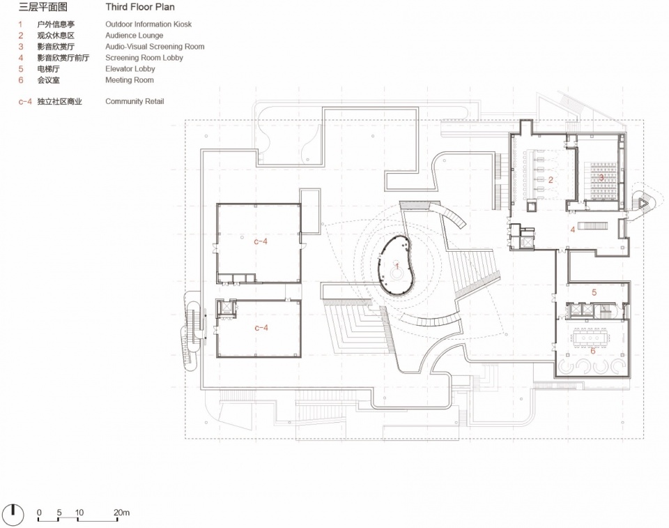
▼三层平面图,3F floor plan

▼西立面图,west elevation

▼东立面图,esat elevation

▼南立面图,south elevation

▼北立面图,north elevation

▼剖面A-A,section A-A

▼剖面C-C,section C-C

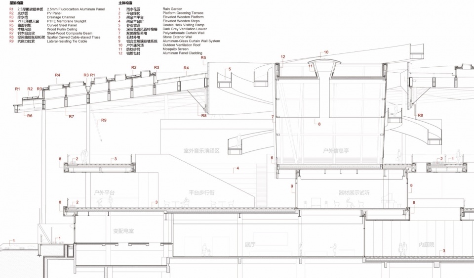
▼剖面局部空间与构造,Local space and structure of the section

Project Information(EN)
Project Name:Jiaxing HRNT Cultural Center
Project Location: Jiaxing City, Zhejiang Province
Owner:Jiaxing International Business District Investment & Construction Group Co., Ltd.
Design Firm:THAD (Architectural Design and Research Institute of Tsinghua University Co., Ltd.)
Architectural Design:SUP Atelier of THAD
Interior Design: SUP Atelier of THAD
Principal Architect: Song Yehao, Sun Jingfen
Architectural Design Team: Xie Dan, Gao Weizhi, Shi Lei, Liu Kunpeng, Chu Yingnan, Jing Xin, Shi Chunxue, Li Zhenru, Luo Yueci, Liu Xinyi (Intern), Liang Shuang (Intern), Yang Youyou (Intern), Chen Xinxing (Intern), Zhang Jingwen (Intern), Dang Yiwei (Intern)
Interior Team: Xie Dan, Yu Haiyue, Gao Weizhi, Shi Lei, Xin Jing, Liu Xinyi (Intern), Wang Ningxin (Intern)
Structural Design: THAD (Yang Xiao, Cui Juan, Yang Zhenrong, Wang Jianfei, Miao Lei, Hui Yexuan)
Structural Consultant: AND Office (Zhang Zhun, Hu Xiaojie)
MEP Design: THAD (Hou Qingyan, Liu Jie, Fang Jingpeng, Ai Tao, Li Xiaomin, Yang Heju, Liu Ting, Li Tianlong, Li Fangchao, Zhang Lihua)
Intelligent Systems Design:THAD (Xu Hua, Liu Lihong, Guo Hongyan, Liu Bingjun, Yan Yanli)
Landscape Design: Beijing YRRK Ecological Technology Co., Ltd.(Zhao Yang, Geng Jiali, Ju Chentao, Ren Mengyao)
Lighting Design: ONE LIGHTING Studio of THAD (Zhang Xin, Han Xiaowei, Zhao Xiaobo, Niu Bentian, Zhang Zhenhong, Jiang Bin, Zhou Xuanyu)
Acoustic Consultant: Acoustic Laboratory of Tsinghua University (Yan Xiang, Li Hui, Pan Ning)
Curtain wall Consultant: SuP Ingenieure GmbH
Site Services: Shi Lei, Yang Leidong, Zhu Fenglin
Construction:Zhejiang Nanhu Construction Co., Ltd
Design Period: 2021.01-2022.11
Construction Period: 2023.05 – 2025.06
Site Area: 14,412 m2
Total Floor Area (GFA): 26,082.06 m2














