Rumi Ñahui山居小屋 ,秘鲁 / rtresarquitectos
Rumi Nahui 小屋的设计构思源于对场地的谦逊顺应:即壮丽的安第斯山脉景观及其寒冷、多风的气候。在东侧,建筑通过模仿“悬浮岩石”的多面体元素与周围环境融为一体,在弱化建筑体量感的同时,有效抵御了寒风的侵袭。相比之下,西侧则采用连续的反射玻璃墙,如镜面般映射出周边的地貌,使建筑边界得以消解,在降低视觉冲击力的同时捕捉午后的阳光。
▼“悬浮岩石”,“Suspended rocks”

▼映射出周边的地貌,Mirrors the landscape

The Rumi Nahui Cabin is conceived from a premise of submission to its setting: the imposing Andean landscape and its cold, windswept climate. To the east, the architecture blends into its surroundings through the use of faceted elements that evoke suspended rocks, softening the built volume while providing protection from the wind. In contrast, to the west, a continuous wall of reflective glass mirrors the landscape, dissolving the building’s boundaries, reducing its visual impact, and capturing the afternoon sun.
▼建筑外景,Exterior of the Building



建筑体量架空于地面之上,使自然景观在下方自由流动,这进一步强化了一个核心理念:最终占据主导地位的是场域本身,而非建筑实体。
▼建筑与场地,Building and site

The elevation of the volume above the ground-allowing the landscape to flow freely beneath-reinforces the idea that it is the place, rather than the architectural object, that ultimately prevails.
▼架空在地面之上,The volume above the ground

▼建筑之下,The view under the building

从室内望去,东侧巨大的水平长窗将美景框入其中,而半反射玻璃面板则在视觉上将外部景观延伸至室内。甚至连家具也在强化这种与自然的对话:从带有镜面涂层的厨房设施,到让人联想到悬浮雕刻岩石的雕塑感洗手盆,无不体现出设计的巧思。
▼爆炸图,Exploded axonometric diagram

▼淋浴间剖切面,Shower room section chunk

From the interior, the landscape is framed through a large horizontal window facing east, while semi- reflective glazed panels visually extend the surroundings into the interior. Even the furniture reinforces this dialogue with the landscape, from the kitchen fittings with reflective finishes to the sculptural washbasin that evokes suspended carved rocks.
▼入口处楼梯,Entrance staircase

▼与岩石相融的台阶,The steps that blend with rocks

▼入口处平台,Entrance platform

▼泳池内望向远方,Looking outside from the swimming pool

▼雕塑感洗手盆,The sculptural washbasin

与此同时,该项目对当地气候做出了高效回应。其紧凑的长方形体量,长边朝向东西方向以优化太阳辐射得热,并通过高蓄热材料、气密窗及受控通风等被动式策略提升热工性能。这些措施与光伏板、生物降解池等主动式系统相辅相成,最终打造出一种既具有可持续性,又与自然景观深度契合的建筑作品。
At the same time, the project responds efficiently to the local climate. Its compact rectangular form, oriented with its long façades facing east and west to optimize solar gain, enhances thermal performance through passive strategies such as the use of thermally massive materials, airtight windows, and controlled ventilation. These measures are complemented by active systems, including photovoltaic panels and a biodigester for waste management, consolidating a sustainable architecture that remains deeply attuned to its landscape.
▼傍晚与自然融合的小屋,The cabin that blends with nature in the evening


▼夜景,Night view

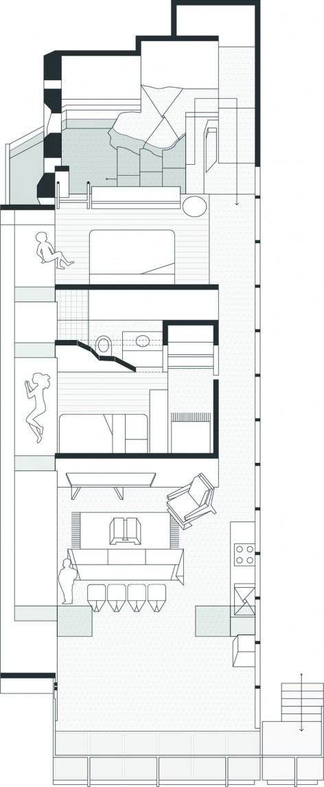
▼平面图,Floor plan

▼立面图与剖面,Elevation and section

Design Team:
Roberto Rojas, Danny Zamora, Jehu Rodriguez, Nilton Murga, Diana Ordóñez, Lesslie Castro, Darnar
Pacheco
Photography:
Vinicios Barros, Asiel Nuñez
Project Year:
2023
Construction Year:
2025
Project Type / Program:
Temporary Housing
Client:
Camper Proyectos
Built Area:
110 m2
Location:
Namora, Cajamarca, Peru














