马德里法国学校图书馆, 西班牙 / Alberto Campo Baeza
新建的图书馆是我们为马德里法国学校所做扩建项目中最引人注目的组成部分。该项目源于我们在2018年赢得的一项国际竞赛。
▼设计草图,Sketches


The new Library is the most striking element of our extension project for the French Lycée in Madrid, the result of an international competition that we won in 2018.
▼建筑概览,Building overview


▼建筑立面,Building façade

▼建筑立面近景,Building façade close view

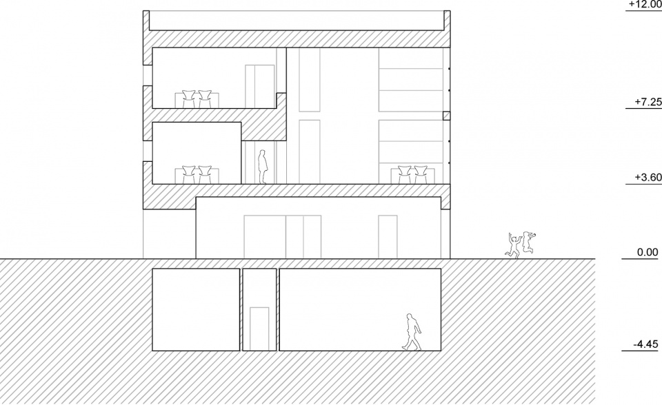
这是一座尺寸为34 × 15 × 12米的盒状建筑,外部采用清水混凝土,室内则呈现出近乎极致的纯白空间,并充满自然光。北立面自上而下完全采用玻璃幕墙,且在两个转角处形成连续的通透界面。其中一个转角处,屋顶同样完全由玻璃构成,形成一个由三面透光界面围合而成的“光之三面体”。
▼轴测图,Axonometric diagram

▼自然通风示意,Natural ventilation

This is a box measuring 34 x 15 x 12 metres, with exposed concrete on the outside, whiter than white on the inside and full of light. The north façade is entirely glazed from top to bottom, with the glass doubling up on both corners. In one of the corners, the roof is also entirely made of glass, forming a trihedron of light.
▼室内空间概览,Interior space overview




▼阅读区与书架,Reading area and bookshelves

▼半透明玻璃立面室内,Translucent glazed façade interior


▼充沛的自然采光,Interior with abundant natural light


通高的阅览空间作为核心,被周围向其敞开的其他功能空间所环绕与俯瞰。这是一个真正意义上的“光之盒子”。我们相信,这座外部呈现裸露混凝土质感、内部拥有明亮纯白空间的盒子式图书馆,不仅将极具实用价值,同时也将具备高度的审美品质。
▼模型,Model


▼室内模型,Interior model



▼剖切轴测渲染图,Sectioned axonometric rendering

▼施工过程,During construction




The double-height reading room space is overlooked by the other spaces that open onto it. This is a true boîte à lumière.We believe that our box-library, with its bare concrete exterior and luminous white interior, will be not only very useful but also very beautiful.
▼总平面图,Site plan

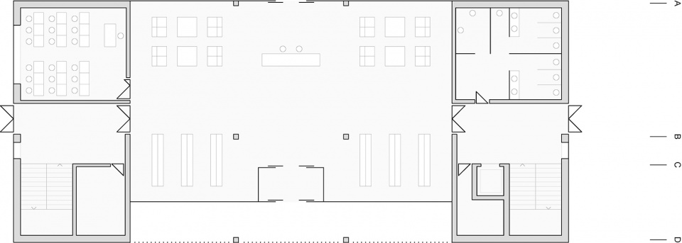
▼首层平面图,Ground floor plan

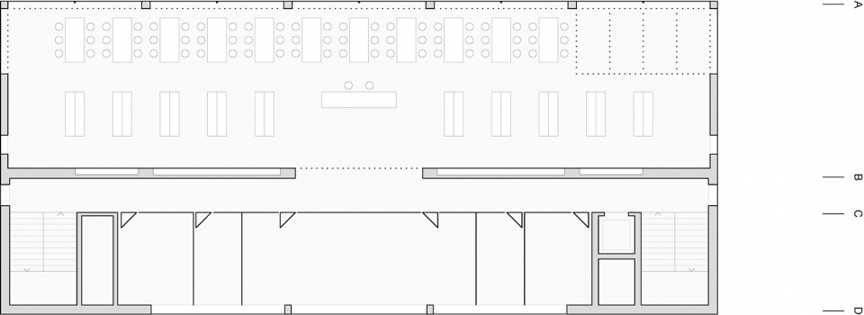
▼二层平面图,First floor plan

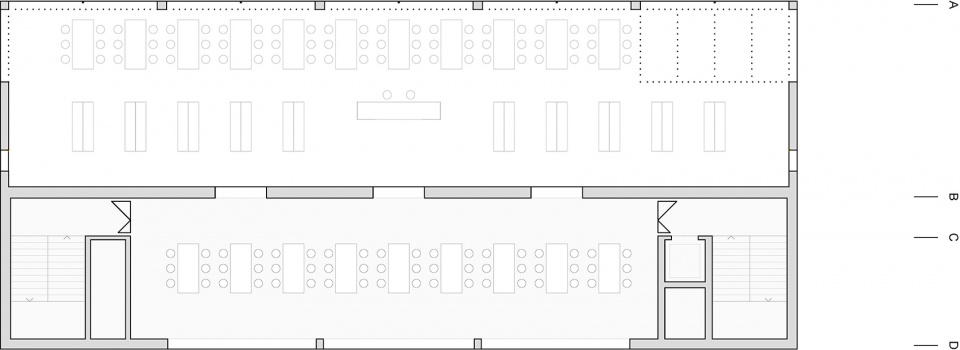
▼三层平面图,Second floor plan

▼立面图,Elevations




▼剖面图,Sections


▼构造平面图,Constructive plan

▼构造剖面图,Constructive sections















