明德五洲小学,广东深圳 / 众建筑
明德五洲小学是一个学习的地景校园,是强调好奇心、探索发现和动手实践的空间环境。随着深圳从工业经济向创新驱动型经济转型,教育的重心正由“流水线”式的学习模式转向注重创造力与游戏化探索的学习模式。位于深圳市中心的五洲小学,通过重新审视空间如何塑造日常教育体验,对这一转变做出了积极响应。
Wuzhou Primary School is designed to support new ways of learning that prioritize creativity, play, and exploration. Located in the center of Shenzhen, the school responds to the city’s transition from an industrial economy toward one driven by discovery and innovation by rethinking how space can shape everyday educational experience.
▼ 位于深圳市中心的五洲小学,Wuzhou Primary School in central Shenzhen

▼ 自南向北望向自然的公园,View from south to north toward the natural park

▼ 西南角街景,Street view at the southwest corner

▼ 放学期间校园入口聚集起接送的家长,Parents gathering at the school entrance during dismissal

这所公立学校被构思为一个立体的“学习地景”,在空间上呼应了强调好奇心、探索发现和动手实践的教学理念。学习不再局限于刻板排列的教室和走廊,而是发生在由多样化的空间所构成的流动场域中。这种多层次的空间支持各种学习和互动模式,在鼓励以学生为中心的同时,也使校园能够随着教育需求的演变而灵活调整。
▼ 五洲小学轴测图,Axonometric diagram of Wuzhou Primary School

▼ 自然以“立体学习景观”的形式置入城市,
Nature integrated into the city as a “learning landscape”

▼ 景观地形的生成,Formation of the landscape topography

The public school is conceived as a three-dimensional Learning Landscape, operating as a spatial analog to approaches that emphasize openness, curiosity, and hands-on learning. Learning is organized as a flowing field of varied spatial conditions rather than a rigid arrangement of classrooms and corridors. A gradient of spaces supports different modes of learning and interaction, encouraging student-centered engagement while allowing the school to adapt over time as educational needs evolve.
▼ 自对面住宅楼望向校园,View of the campus from the residential buildings across the street

▼ 南院多样化的空间所构成流动场域,
A flowing field formed by diverse spaces in the south courtyard

▼ 南院概览,South courtyard overview

▼ 入口山丘引发学生多样的课余活动,Entrance hill encouraging diverse after-school activities

▼ 北院山脚,Foot of the hill in the north courtyard

教室之外的环境被视为同等重要的学习场所。架空的户外区域、各种可供使用的建筑形体与部件,以及向外敞开的教室,模糊了室内与室外的边界。户外学习让学生们得以摆脱课桌的束缚,创造了动手实验以及与大自然直接互动的机会。
The environment beyond the classroom is treated as equally important for learning. Covered outdoor areas, architectural features designed for occupation, and classrooms that open to the outside blur the boundary between interior and exterior. Learning outside allows students to move beyond the limitations of the desk, creating opportunities for hands-on experimentation and direct engagement with nature.
▼ 屋顶课堂与操场,Rooftop classrooms and playground

▼ 学生奔跑在南院山谷走廊,Students running through the valley corridor in the south courtyard

▼ 北院大台阶成为室外教学的场所,
Grand steps in the north courtyard used as outdoor teaching space

▼ 内外相连的教室,Classrooms connected to both interior and exterior spaces

▼ 学生在宽敞的走廊课余玩耍,Students playing in the spacious corridors during breaks

▼ 操场入口台阶,Steps at the entrance of the playground

“学习地景”围绕三大核心景观元素构建:“山”、“谷”和“滩”。位于北庭院的“山”内部容纳了学校的剧场和食堂,其阶梯状的外部形态则提供了垂直动线和休憩座位。在其底部,隆起的地形形成了一个用于表演和活动的舞台。“谷”在南庭院,尺度上专为低年级学生设计,布局逻辑与“山”相似。两侧的阶梯向下延伸至中央土丘,形成了适合非正式聚会的阶梯式座位。紧邻“谷”的是“滩”,这是一片由起伏丘陵组成的充满趣味的地形,旨在促进低年级学生的体能发展并鼓励开放式的游戏探索。
▼ 剖透视,Sectional perspective

▼ 南区剖透视,Sectional perspective of the south zone

▼ 北区剖透视,Sectional perspective of the north zone

The Learning Landscape is structured around three primary landscape elements: the Mountain, the Valley, and the Beach. Located in the main courtyard, the Mountain contains the school’s theater and cafeteria, while its stepped exterior provides vertical circulation and seating. At its base, a raised landform functions as a stage for performances and events. The Valley, scaled for younger students, is organized in a similar way. Stairs on opposing sides step down toward a central mound, creating terraced seating for informal gatherings. Adjacent to the Valley, the Beach is conceived as a playful terrain composed of undulating hills that support younger students’ physical development and encourage open-ended play.
▼ 庭院中内置多功能厅与食堂的山丘,Courtyard hill housing the multifunction hall and cafeteria

▼ 南院山谷下的大台阶,Grand steps beneath the valley in the south courtyard

▼ 学生在架空滩丘上奔跑玩耍,Students running and playing on the elevated beach-like terrain

▼ 文艺汇演直接于北院大台阶上举行,
Performances held on the grand steps in the north courtyard

在整个校园中,大量宽敞开放的过渡空间支持着跨学科学习、团队协作和非正式交流。包括绿色屋顶、图书馆和体育设施在内的其他退台空间将不同楼层连接起来,增强了视觉和空间上的连续性。遍布校园的植被不仅有助于在深圳的热带气候中降温、过滤污染物并阻隔繁忙街道的噪音,同时也成为了学生们学习和养护的对象。在城市尺度上,这所学校被设计为北侧大型公园的南向延伸。校园自然绿化带来的降温作用也有助于缓解周边商业开发带来的城市热岛效应。五洲小学是与自然融合、灵活且生态可持续的学习环境。
Throughout the school, large, open interstitial spaces support cross-disciplinary learning, collaboration, and informal exchanges. Additional terraced spaces, including the green roof, library, and sports facilities, connect across levels and strengthen visual and physical continuity. Vegetation, integrated throughout the school, helps with cooling in Shenzhen’s tropical climate, filters pollution, and dampens noise from the busy streets. Students also study and nurture these plants. At an urban scale, the school is conceived as an extension of the large park directly to the north. In addition, the cooling effect of the school’s natural greenery helps mitigate the urban heat island effect of surrounding commercial development. Wuzhou Elementary School is a learning environment that integrates with nature, is flexible and ecologically sustainable.
▼ 南院立面遍布绿植,
Façade covered with greenery in the south courtyard

▼ 南院仰视,Worm’s eye view view of the south courtyard

▼ 北院俯瞰,Aerial view of the north courtyard

▼ 城市立面绿化局部,Detail of greenery on the urban façade

▼ 图书馆多层学习空间,Multi-level learning spaces in the library

▼ 可以完全打开的功能教室,Fully openable multipurpose classroom

▼ 课堂衬托在窗外绿化中,Classrooms framed by greenery outside the windows

▼ 北院鸟瞰夜景,Night aerial view of the north courtyard

▼ 北院多层次的空间支持各种学习和互动模式(夜景),
Multi-layered spaces in the north courtyard supporting learning and interaction (night view)

▼ 放学后校园入口安静的夜景,Quiet night view of the school entrance after dismissal

▼ 南院山谷立面夜景,
Night view of the valley façade in the south courtyard

▼ 立面局部夜景,Partial night view of the facade

▼ 总平面图,Master plan

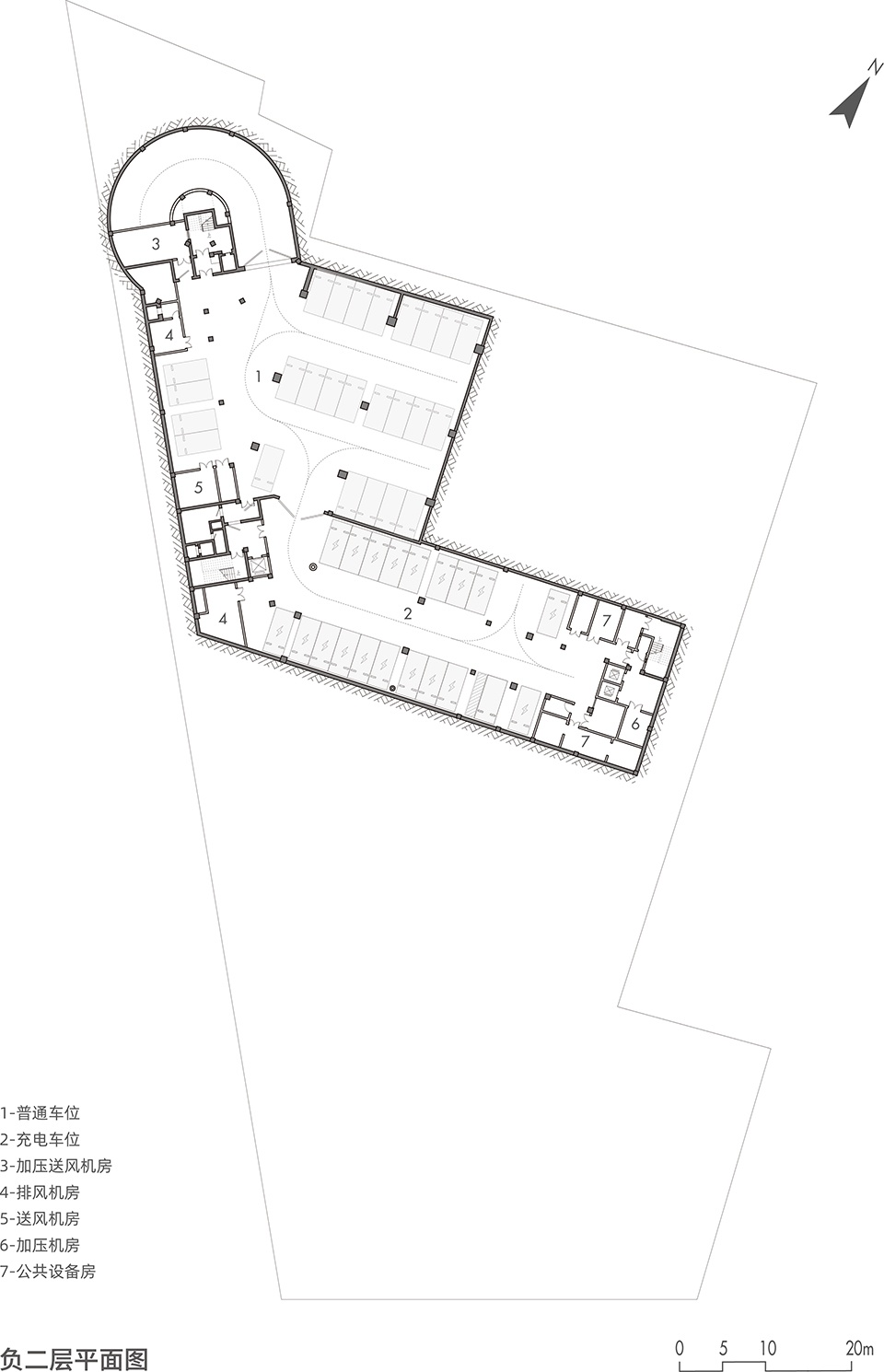
▼ 负二层平面图,Basement level -2 floor plan

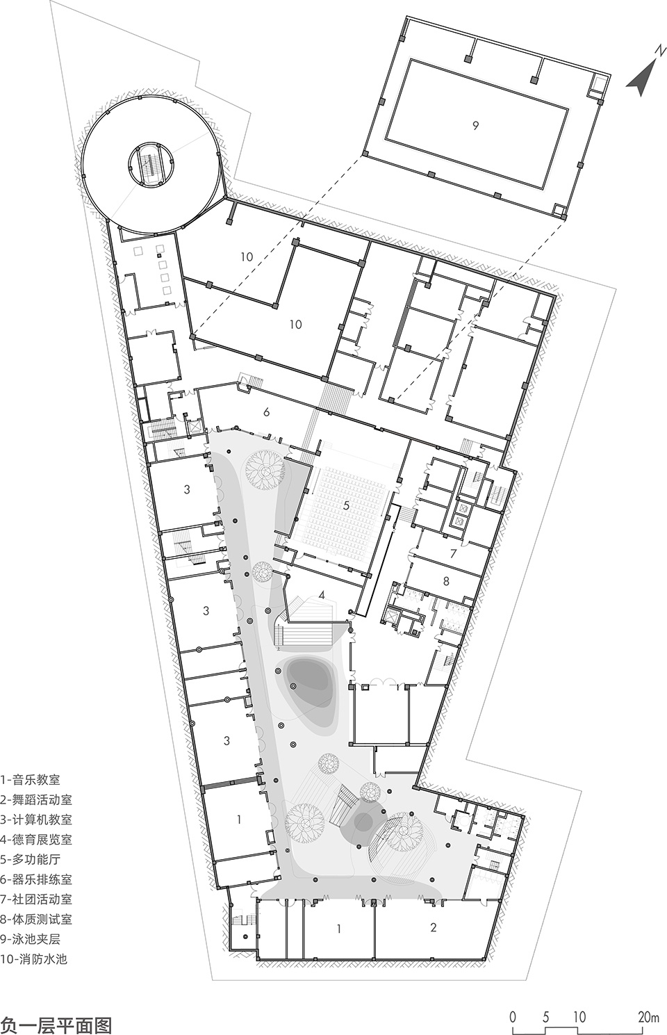
▼ 负一层平面图,Basement level -1 floor plan

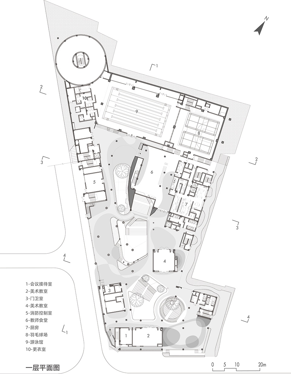
▼ 一层平面图,First floor plan

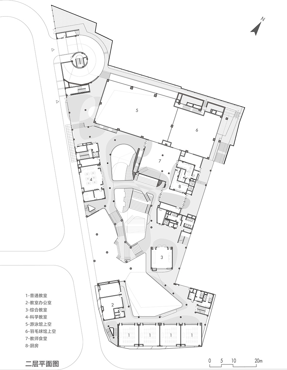
▼ 二层平面图,Second floor plan

▼ 三层平面图,Third floor plan

▼ 四层平面图,Fourth floor plan

▼ 五层平面图,Fifth floor plan

▼ 六层平面图,Sixth floor plan

▼ 立面图,Elevations


▼ 剖面图,Section


客户:深圳市福田区工务署/富通地产/明德实验学校(集团)福田五洲小学
地点:深圳,广东
时间:2020年-2025年
建筑面积:20535平方米
设计主持:何哲,James Shen,臧峰
竞赛团队:李正华,Kim Dahyun(金茶璇),许嘉玲,杨茜,王大卫,王赫
实施团队:李秋宛,张怡晨,李正华,王程琛,袁莹莹,罗沁铭,蒋颖,胡祉安,林铭锴,王谷一心,郭明冉,许卉航
联合设计院:中建科技集团有限公司
景观设计合作方:北京天兰立合景观设计有限责任公司(陈天力,韦兰岚,张鸿)
室内设计合作方:北京德真装饰设计有限公司,深圳市胜景设计顾问有限公司
照明设计合作方:同原(北京)照明设计有限公司
平面标识设计方:烁设计
北庭院山体结构设计:北京首昂建筑设计有限公司
施工总包团队:深圳泛华工程集团有限公司 Shenzhen Pan-China Group
摄影师:朱雨蒙,众建筑
Client: Shenzhen Futian District Public Works Department / Futong Real Estate / Shenzhen Mingde Wuzhou Primary School
Location: Shenzhen, China
Time: 2020–2025
Building Area: 20,535 square meters
Principals: He Zhe, James Shen, Zang Feng
Project Team: Li Zhenghua, Kim Dahyun, Xu Jialing, Yang Qian, Wang Dawei, Wang He, Li Qiuwan, Zhang Yichen, Li Zhenghua, Wang Chengchen, Yuan Yingying, Luo Qinming, Jiang Ying, Hu Zhi’an, Lin Mingkai, Wang Guyixin,Guo Mingran,Xu Huihang
Design Institute: China Construction Science and Technology Group
Landscape Consultant: Beijing Tianlan Lihe Landscape Design (Chen Tianli, Wei Lanlan, Zhang Hong)
Interior Consultant: The ZEN Design, Shenzhen Shengjing Design Consultants
Lighting Consultant: Tongyuan (Beijing) Lighting Design
Graphic and Signage Designer: Sure Deisgn
North Courtyard Mountain Structural Engineer: Beijing Shouang Architectural Design
General Construction Contractor: Shenzhen Pan-China Engineering Group
Photographers: Zhu Yumeng, People’s Architecture Office














