山东韩美林艺术中心项目改造,济南 / 同圆设计集团股份有限公司
一、改造本体分析 Analysis of Renovation of Existing Buildings
1、 场所沿革与功能迭代 Evolution of the venue and iterative changes in function
项目位于济南古城南门大街。明朝以来,济南的城市经济圈、居住圈日渐向城外发展,加之临靠护城河畔,自然景色优美,许多文人墨客、达官贵人在此兴建别业,走卒贩夫也来此建宅居住,南关一带因此逐渐形成街巷,成为城市的活力中心。20世纪80年代后期,济南剧院和美术总厂的兴建极大地改善了片区的面貌和文化氛围。1999 年,随着泉城广场的兴建,两栋建筑连接整合为一栋建筑,成为风靡一时的山东省科技馆。经过20余年的运营后,山东省科技馆选址新建,搬迁后的建筑也被荒废闲置。2023 年初,在济南市古城片区再生计划背景下,决定恢复济南剧院,植入韩美林艺术馆,以期再次盘活城市的核心空间。
▼1933年的济南地图,A map of Jinan in 1933

▼建筑功能迭代,Iteration of building functions

The project is located on South Gate Street in the ancient city of Jinan. Since the Ming Dynasty, the urban economic and residential areas of Jinan have gradually expanded beyond the city walls. Coupled with its proximity to the city wall, the natural scenery is beautiful. Many scholars, dignitaries, and wealthy individuals built their estates here, and even commoners and peddlers also built houses and settled down here. As a result, the area around Nanguan gradually formed streets and alleys, becoming the city’s vibrant center. In the late 1980s, the construction of Jinan Theatre and the Art General Factory greatly improved the appearance and cultural atmosphere of the area. In 1999, with the construction of Qiancheng Square, the two buildings were connected and integrated into one building, becoming the popular Shandong Provincial Science and Technology Museum. After more than 20 years of operation, the Shandong Provincial Science and Technology Museum was relocated and the building was abandoned and left idle. In early 2023, under the background of the regeneration plan for the ancient city area of Jinan, it was decided to restore Jinan Theatre and incorporate the Han Meilin Art Museum, in the hope of revitalizing the core space of the city again.
▼东南侧鸟瞰,A bird ‘s-eye view from the southeast side

2、 建筑结构与空间性能 Building structure and spatial performance
建筑本体经历过多次的功能变更及改造,结构体系多元复杂。经过现场踏勘及阅读不同时期的施工图,发现现场的结构分为三种类:第一类是1981年建成的济南剧院,为部分框架与砖混组合的混合结构;第二类是1991年按照工业建筑结构设计标准建成的美术总厂,为经典花篮梁结合预制板的排架结构体系;第三类是1999年改建科技馆时的框架结构体系。三种结构体系交织在一起,情况异常复杂且已接近使用年限。建筑空间同样存在大量问题,比如:改造前建筑南北两部分相对独立,公共空间连通性不足;内部空间封闭,存在大量黑房间及高耗能展厅,室内缺少自然通风采光;空调照明及消防设施老化,不满足新功能的使用要求等。
▼改造前建筑结构体系及建筑空间,The building structure system and building space before renovation


The building itself has undergone multiple functional changes and renovations, and its structural system is diverse and complex. Through on-site investigation and reading of the construction drawings from different periods, it was discovered that the structure on site is divided into three types: The first type is the Jinan Theatre, which was completed in 1981 and has a mixed structure of partial frame and brick-concrete; the second type is the Art General Factory built in 1991 according to the industrial building structure design standards, featuring a grid structure system combining classic flower basket beams and prefabricated plates; the third type is the frame structure system used during the renovation of the Science and Technology Museum in 1999. These three structural systems are intertwined, making the situation extremely complex and approaching the end of their service life. The building space also has numerous problems, such as: Before the renovation, the north and south parts of the building were relatively independent, and the connectivity of public spaces was insufficient; the internal space was closed, with many dark rooms and high-energy-consuming exhibition halls, and there was a lack of natural ventilation and lighting indoors; the air conditioning, lighting, and fire protection facilities were old and did not meet the requirements for new functions.
▼东侧鸟瞰,Bird ‘s-eye view from the east side

3、建筑风貌与城市关系 Architectural Style and Urban Relationship
改造前的建筑形态反映了不同时期建造叠加的耦合状态,反映了当时建筑技术应用的理性和真实性原则。虽经历多次立面提升,但从片区风貌而言,依然缺乏整体统一性,难以承担新文化地标的角色,且因展览和布展要求的科技馆基本呈现黑匣子的状态,自然失去了与城市对话的主动权。
The original architectural form reflected the combined state of multiple construction periods and embodied the rationality and authenticity principles of architectural technology application at that time. Although the facade has been improved several times, from the perspective of the overall style of the area, it still lacks overall unity and is unable to assume the role of a new cultural landmark. Moreover, due to the exhibition and display requirements of the science and technology museum, it basically presents a black box-like state, thus naturally losing the initiative to communicate with the city.
▼东侧鸟瞰,Bird ‘s-eye view from the east side

二、文化溯源与锚固 Cultural Traceback and Anchoring
1、寻脉而行:济南古城地域文化的相承 Following the pulse: The continuity of ancient city culture in Jinan
从历史上看,项目所在区域城市肌理受南门大街的影响,均采取南北建筑走向。所以我们借鉴济南府城水岸民居与水系的拓扑空间关系,使建筑肌理走向与历史脉络相吻合;其次应注意建筑体量不宜过大,要与古城建立尺度上的过渡关系。我们通过整合拆解建筑形体,形成七个框景体量,减少了对古城和护城河景观的压迫,同时将外部景色与内部空间建立联系。而在内外部空间衔接上,结合游览及观展动线,形成了不同体验空间的尺度转换。
▼建筑形体与城市关系,The relationship between architectural form and the city

▼建筑内部空间与城市关系,
The relationship between the interior space of buildings and the city

Historically, the urban layout of the project area was influenced by South Gate Street, and all buildings followed a north-south orientation. Therefore, we drew inspiration from the topological spatial relationship of water-front residential buildings and water systems in the Jinan Prefecture City, making the architectural layout conform to the historical context. Secondly, it is important to note that the building volume should not be too large, and a transitional relationship in scale should be established with the ancient city. We integrated and decomposed the building forms to create seven framed volume elements, reducing the compression on the ancient city and the landscape of the moat, and establishing a connection between the external scenery and the internal space. In terms of the connection between internal and external spaces, in combination with the circulation and exhibition viewing paths, different experience spaces have achieved scale transitions.
▼面对舜井街的建筑“窗口”,The building “window” facing Shunjing Street

2、为艺而生:艺术家创作理念的映射 Born for Art: The Reflection of Artists’ Creative Concepts
海友此亭古,济南名士多。韩美林作为从济南走出去的艺术家,其独特的艺术创作风格对于建筑形态的意蕴设计也有着诸多启发。受艺术家天书作品笔触的影响,建筑的外部形态采用的结构性肌理,用模数化构件表达了自然真实且富有光影变化的外部表情。色彩取意墨分五色,形成深浅变化的五种灰度,进一步增加了建筑的灵动气韵。
This pavilion is ancient, and there are many famous scholars in Jinan. As an artist who came from Jinan, Han Meilin has a unique artistic style. His distinctive artistic approach has provided many inspirations for the interpretation of the architectural form’s connotations. Influenced by the brushstrokes of the artist’s “Tianshu” works, the external form of the building adopts a structural texture, using modular components to express a natural, realistic external expression with changes in light and shadow. The color takes inspiration from the five colors of ink, forming five shades of gray, further enhancing the dynamic charm of the building.
▼五种灰度的建筑体量,Five shades of grayscale building volumes


▼由天书艺术作品抽象而来的建筑肌理,
The architectural texture abstracted from the art of celestial script


▼建筑设计理念融入亮化设计中,
The architectural design concept is integrated into the lighting design


三、绿色策略与手法 Green strategies and approaches
1、功能空间,适恰匹配 Functional space, appropriately matched
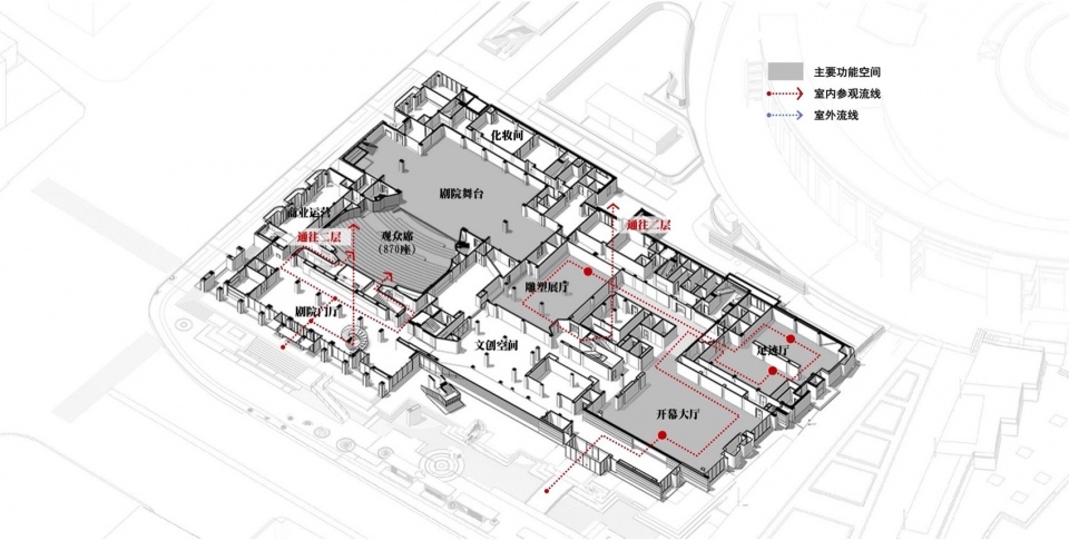
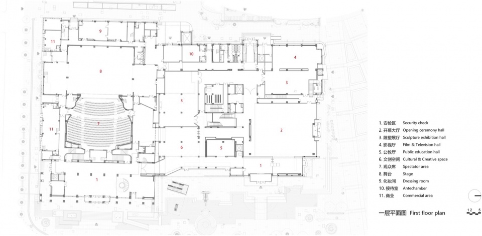
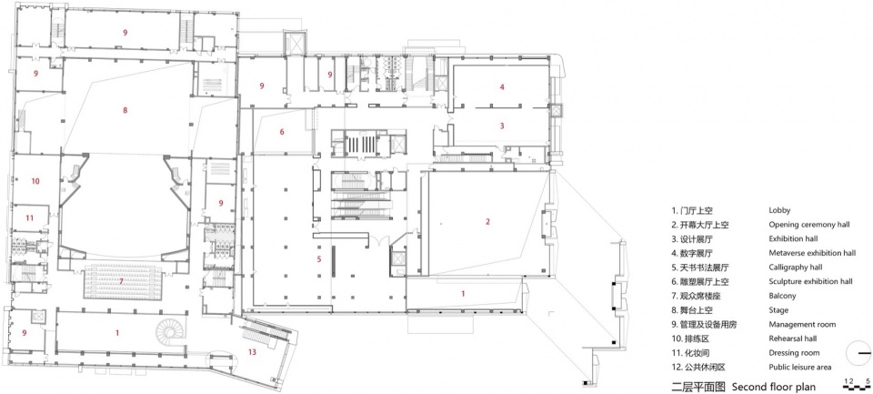
功能层面改造的目标是形成“一馆一院”,即打造艺术家韩美林的全国第五座艺术馆和恢复沉寂近30年的济南剧院。设计遵从多利用,少拆除,多公共,少专属,多开放,少封闭的“三多三少”原则,尽可能保留改造,提高空间利用效率,从使用的角度提高公共性与开放性,体现公共建筑的价值所在。北侧艺术馆在有限的空间内最大程度的拉长展线,充分利用公共走廊等空间布展,提升策展容量。结合原有建筑设计紧凑的采光中庭,解决观展疲劳等情绪出现。南侧济南剧院重新恢复原有经典剧场模式,在满足运营的要求下配置必要的功能。
▼首层流线分析,First-layer flow line analysis

The goal of the functional-level renovation is to create “one museum and one academy”, namely, to build the fifth art museum of artist Han Meilin across the country and restore the nearly 30-year-old Jinan Theatre. The design follows the principle of “three more and three less” – more reuse, less demolition, more public, less exclusive, more openness, and less enclosure. It aims to retain as much as possible during the renovation, improve the efficiency of space utilization, enhance publicity and openness from the perspective of usage, and reflect the value of public buildings. The northern art museum maximizes the extension of the exhibition line within the limited space, fully utilizes public corridors and other spaces for exhibition layout, and increases the exhibition capacity. By combining the compact lighting atrium from the original design, it addresses issues such as viewer fatigue and other emotional problems. The southern Jinan Theatre reverts to its original classic theater model, configuring necessary functions while meeting operational requirements.
▼艺术馆序厅,The preface hall of the art museum

▼艺术馆开幕大厅,The opening hall of the art museum

▼剧院门厅,Theatre foyer

▼剧院观众厅,Theatre auditorium

2、结构先行,利旧融新 Prioritize structure, reuse the old and integrate the new.
通过踏勘与图纸比对分析,我们保留了北侧大部分的框架体系并做加固处理,通过充分评估将结构的使用年限再次延长30年。原共享厅的网架结构多年风蚀无法继续使用,拆除后,新建钢结构体系并做上人景观屋面处理。南侧剧院保留东侧两品框架并加固,基于原有基础原址原柱基新建,将新旧结构体系充分融合。
▼结构改造加固分析,Analysis of Structural Renovation and reinforcement

Through on-site investigation and comparison with the drawings, we retained most of the frame system on the north side and carried out reinforcement work. After thorough assessment, the service life of the structure was extended by another 30 years. The original grid structure of the shared hall, which had been damaged by wind erosion over the years, could no longer be used. After being dismantled, a new steel structure system was constructed and a pedestrian landscape roof was installed. The theater on the south side retained the two-story frame on the east side and carried out reinforcement. Based on the original foundation, the original site and the column bases were rebuilt, and the new and old structural systems were fully integrated.
▼文创空间,Cultural and creative space

3、气候适应性的内外空间设计 Climate-adaptive interior and exterior space design
(1)空间形态主导的节能设计
基于对主动式建筑的思考,我们希望建筑空间形态为项目可持续运营提供更好的基础。在建筑布局层面,尽可能压缩用能空间规模,缩小高耗能空间。将高耗能空间如剧场、展厅等布置在建筑内部,外围以低能耗空间围合,减小气候接触界面而达到节能目的。
▼多维度生态空间廊道,Multi-dimensional ecological space corridor

(1) Energy-saving design based on spatial form
Based on the consideration of active buildings, we aim to make the architectural spatial form provide a better foundation for the sustainable operation of the project. At the architectural layout level, we try to minimize the scale of energy-consuming spaces and reduce high-energy-consuming spaces. High-energy-consuming spaces such as theaters and exhibition halls are arranged inside the building, and the periphery is surrounded by low-energy-consuming spaces to reduce the climate contact interface and achieve the purpose of energy saving.
▼东侧广场与镂空廊架,The east square and the perforated pergola

(2)建构多条多维度的生态空间廊道
在建筑必要用能的基础上,我们将一部分公共区域设计成可调节区域,在过渡季充分与室外气候相融合。比如一层连接两大功能主体的城市客厅,面向南、北、东三个方向均有自然开启,在过渡季把适宜的新鲜空气引入室内,减小空调的开放时段。再如竖向垂拔空间的交通厅,可利用热压通风原理组织内部通风。在屋面维度,结合不同标高的建筑体量,形成视野极佳的屋顶观景平台,而非上人屋面采用架空通风的方式降低夏季辐射得热。东侧广场设计镂空廊架隔离外部交通干扰,结合树木、水系形成宜人的室外空间廊道。
▼多维度生态空间廊道,Multi-dimensional ecological space corridor

(2) Construct multiple multi-dimensional ecological space corridors
Based on the necessary energy consumption of the building, we design some public areas as adjustable areas, fully integrating with the outdoor climate during the transitional seasons. For example, the urban living room on the first floor connects two main functional entities and has natural openings in the directions of south, north, and east. During the transitional seasons, it introduces suitable fresh air into the building and reduces the opening hours of air conditioning. Another example is the vertical vertical space traffic hall, which can organize internal ventilation using the principle of thermal pressure. In the roof dimension, by combining different elevation building volumes, an excellent roof viewing platform with excellent views is formed, while the upper man-made roof adopts the method of elevated ventilation to reduce heat gain in summer. The east square is designed with a perforated pergola to isolate external traffic interference, and combined with trees and water systems to form a pleasant outdoor space corridor.
▼景观水系,Landscape water system

(3)废旧材料循环利用
建筑拆除过程中产生的废旧材料也融入新建筑的设计中。例如,外墙UHPC材料中掺杂的黑色颗粒即来自原建筑一层黑色大理石柱廊,拆除的混凝土块凿碎后做成装饰石笼墙、拆除钢筋掺杂在大厅现浇水磨石中,明露的混凝土柱子等,既是延续利用建筑材料的新更新做法,也提示着观众这栋建筑的前世今生和改造历史。
▼废旧材料再利用,Reuse of waste materials

(3) Recycling of Waste Materials
The waste materials generated during the demolition of buildings are also incorporated into the design of new buildings. For instance, the black particles mixed in the exterior UHPC material come from the black marble colonnade on the first floor of the original building. The concrete blocks that were dismantled were crushed and used to make decorative stone cages, the removed reinforcing bars were mixed in the existing polished stone of the hall, and the exposed concrete columns, etc., are not only new and updated practices of reusing building materials, but also hint at the past, present and transformation history of this building for the audience.
▼石笼墙作为装饰立面,Gabion walls are used as decorative facades

四、文绿场所的重塑 The transformation of public spaces
1、重塑场所精神,打造文化高地 Reinforce the spirit of the place and build a cultural highland
项目通过近2年的设计与实施建造,最终形成“一馆一院”新格局,在社会各界的瞩目下顺利开馆。济南剧院的回归不仅是物理空间的重建,更是一场跨越时空的文化记忆唤醒。这座始建于1924年的老建筑,通过多维度的更新实践,成功实现了从历史坐标到情感载体的蜕变,与毗邻的韩美林艺术馆共同构成文化复合体。在项目的设计过程中,意外探得了七十二名泉之一的古鉴泉的原址泉脉,施工将其挖掘恢复将其重见天日,泉水汩汩涌出,池底清澈见底,结合艺术家的室外雕塑,为这座建筑注入了别样的自然灵动气息。
The project was designed and implemented over the course of nearly two years, eventually forming a new layout of “one theater and one academy”. It was successfully opened to the public under the attention of all sectors of society. The return of the Jinan Theater is not only the reconstruction of the physical space, but also a revival of cultural memories across time. This old building, which was constructed in 1924, successfully transformed from a historical coordinate to an emotional carrier through multi-dimensional renewal practices. Together with the adjacent Han Meilin Art Museum, it constitutes a cultural complex. During the design process of the project, the original water source of one of the seventy-two ancient springs, Gu Jian Spring, was unexpectedly discovered. The construction team excavated and restored it, allowing it to come back to the surface. The spring gushed forth, and the bottom of the pool was crystal clear. Combined with the outdoor sculptures by the artist, this building was infused with a unique natural and lively atmosphere.
▼回归后的济南剧院,The Jinan Theatre after its return

▼古鉴泉与景观水系,The Ancient Mirror Spring and the landscape water system

▼济南剧院二层公共空间,The public space on the second floor of Jinan Theatre


2、构建绿色空间,实现绿色运维 Build green spaces and achieve green operation and maintenance
绿色设计也是本项目在城市更新的一个重要实践内容。在建筑师的统筹之下,基于“气候分析——综合设计——评价反馈”的设计思路, 从总体到局部往复互动,并包含多专业协同的“集成化”系统设计成果,利用空间节能的原理实现建筑的绿色低碳化运营和持续再生。
▼室内风环境模拟与公共空间热环境模拟,Indoor wind environment simulation and public space thermal environment simulation


Green design is also an important practical aspect of this project in urban renewal. Under the coordination of the architect, based on the design concept of “climate analysis – comprehensive design – evaluation feedback”, it interacts repeatedly from the overall to the local, and includes the “integrated” system design results of multi-disciplinary collaboration. It utilizes the principle of space energy conservation to achieve the green and low-carbon operation and continuous regeneration of the building.
▼通往三层黑匣子剧场,Lead to the black Box theater on the third floor

3、运营思维改造,带动文商旅经济发展 Transforming operational thinking to drive the development of cultural, commercial and tourism industries
项目的改造充分结合市场需求,融合了流量转化、文化活化、技术赋能三大维度,将空间更新与商业模式相融合。针对目前城市更新的核心短板,建构“设计——建设——运营全周期模式,针对商业业态的空间需求优化空间布局,以实现良好的自我造血更新效果。
The renovation of the project fully takes into account market demands, integrating three dimensions: traffic conversion, cultural revitalization, and technological empowerment. It combines space renewal with business models. In response to the core weaknesses of current urban renewal, a “design – construction – operation” full-cycle model is constructed. The spatial layout is optimized to meet the spatial needs of commercial formats, in order to achieve a good self-sustaining renewal effect.
▼首层平面图,ground floor plan

▼二层平面图,first floor plan

▼墙身大样图,Detailed wall drawing


项目信息














