东院儿·启东,江苏 / 本哲建筑
东院儿位于江苏启东,近城临海。受常年在外工作的子女委托,本哲建筑为年过六旬的父母重建了这处居所。以现代设计语言,回应新农村的建设——既保留乡村的质朴,又提升居住的品质。
The East Courtyard is located in Qidong, Jiangsu, near the city and facing the sea. Commissioned by children who work away from home year-round, Benzhe Architecture rebuilt this residence for their parents, who are over sixty. It uses modern design language to respond to new rural construction—preserving rural simplicity while improving the quality of living.
▼与村同息,breathe with the village

▼夕阳下的东院儿,The East Courtyard at sunset

▼远视东南角,View of the southeast corner from a distance

启东位于长江入海口北翼,长江在这里卸下最后一口泥沙,转身汇入东海。原址为典型渔村宅基地,周边环绕风车阵列与滩涂景观。
▼项目所在位置,Project Location

Qidong is located on the north wing of the Yangtze River estuary, where the Yangtze unloads its last mouthful of sediment and turns to flow into the East China Sea. The original site was a typical fishing village homestead, surrounded by arrays of wind turbines and tidal flat landscapes.
▼东院儿西南角,Southwest corner of the East Courtyard

▼新旧共生,Symbiosis of the new and the old

与邻为融 Blending with Neighbors
建筑采用三层框架结构,遵循周边农宅的体量比例,通过多视廊渗透消解体量感。屋顶线与邻居房屋齐平,谦逊介入村落。
The building utilizes a three-story frame structure, adhering to the volume proportions of surrounding farmhouses, and dissolves its mass through multiple view corridors. The roofline is flush with neighboring houses, intervening humbly in the village.
▼北入口,North Entrance

▼北立面构成设计,North facade composition design

▼北面细部,North side details

不同于传统院墙的封闭,建筑师用低矮围墙及树木界定边界,既保证私密性,又让院落与村庄环境自然融合。旧时渔民将牡蛎壳夯入墙体,今朝外墙采用贝壳混合水洗石,随时间推移逐渐显露粗粷肌理。造价适中却自带海的气息,也允许农作时的泥土进入。
Unlike the enclosed nature of traditional courtyard walls, the architect used low walls and trees to define the boundaries, ensuring privacy while allowing the courtyard to blend naturally into its surroundings. In the old days, fishermen rammed oyster shells into walls; today, the exterior walls use shells mixed with washed stone, revealing a coarse texture over time. Moderate in cost yet carrying the breath of the sea, it also allows soil from farming to enter.
▼初醒生机,Awakening Vitality

▼东立面,East Facade

▼小窗大景,Small window, grand view

不追求符号化,通过材料与尺度延续乡村记忆。不造一栋“外来”的房子,但求与村共生,与自然同息。
Without pursuing symbolization, it extends rural memories through materials and scale. It does not seek to build a “foreign” house, but seeks to live in symbiosis with the village and breathe with nature.
▼南主立面及院子,South main facade and courtyard

▼主入口,Main Entrance

与自然游 Roaming with Nature
谦逊的外在形态下,有丰富的内在空间组合。功能克制,三层空间仅设6个房间,余下面积均留给公共区域。以天窗为轴,三层楼间散落起居室、睡眠区、休闲区,以楼梯与窗串联,呼吸流动。
Beneath the humble exterior form lies a rich combination of internal spaces. Functionally restrained, the three-story space has only 6 rooms, with the remaining area reserved for public zones. With the skylight as the axis, living rooms, sleeping areas, and leisure areas are scattered across the three floors, connected by stairs and windows, creating a sense of flow and connectivity.
▼挑高中庭与大厅,High-ceilinged atrium and hall

▼餐厅,Dining Room

▼餐厅与客厅,Dining Room and Living Room

▼从厨房看楼梯间,View of the stairwell from the kitchen

建筑内部呈现“三明治式”垂直聚落。底部“泥土层”:室内水洗石地面延伸至院外,模糊公私边界,呈半开放式院落。
The interior of the building presents a “sandwich-style” vertical settlement. Bottom “Soil Layer”: The interior washed stone floor extends outside the courtyard, blurring the boundary between public and private, presenting a semi-open courtyard.
▼楼梯间与中庭,Stairwell and Atrium

▼二楼中庭与孩子房的关系Relationship between the second-floor atrium and the children’s room

▼孩子房1 ,Children’s Room 1

▼孩子房2 ,Children’s Room 2

中部“生活层”:梯转窗移,四时田野入画,悬挂于粗粝墙面之上。延伸至外的露台,消融建筑与自然边界,随时走出,居于天地间。
Middle “Living Layer”: As the stairs turn and windows shift, the fields of the four seasons enter as paintings, hanging upon the coarse walls. The terrace extending outward melts the boundary between architecture and nature, allowing one to step out at any time and dwell between heaven and earth.
▼三楼小中庭,Small atrium on the third floor

▼三楼楼梯间,Third-floor stairwell

▼趣味小窗口,Playful small window

顶层“云层”:方形天窗,云影投至茶席,于室内感受时间流逝。雨天观雨,晴天观云,天高地阔。
Top “Cloud Layer”: A square skylight casts cloud shadows onto the tea mat, allowing one to feel the passage of time indoors. Watching rain on rainy days, watching clouds on sunny days—the sky is high and the land is wide.
▼茶室,Tea Room

▼茶室一角,A corner of the Tea Room

建筑内部开不同尺度的窗,首层落地窗消除室内外边界,横向长窗望向树干,也让晨光铺展于餐桌之上;三层天窗洒下菱形光斑,于夏日降临至茶室墙面;而楼梯间竖缝窗,则将阳光压缩成一道“光刃”,与墙面肌理相融,在楼梯间营造“神性场所”。在日常与精神之间,留出余地。
The building features windows of different scales internally: ground-floor floor-to-ceiling windows eliminate indoor-outdoor boundaries; horizontal long windows look towards tree trunks and also allow morning light to spread onto the dining table; the third-floor skylight casts diamond-shaped light spots, descending onto the tea room wall in summer; while the vertical slit window in the stairwell compresses sunlight into a “light blade,” blending with the wall texture to create a “divine place” in the stairwell. Leaving room between the daily and the spiritual.
▼起居室,Living Room

▼三楼天井,Third-floor light well

与城乡和Harmony with City and Countryside
门前有河,院后有田,院旁有树,屋边有邻。院落一角留菜畦,父母依然可“莳花种豆,拾趣园中”。林语堂曾写:”宅中有园,园中有屋,屋中有院,院中有树,树上见天,天中有月”,便如此。
There is a river in front of the door, fields behind the courtyard, trees beside the yard, and neighbors near the house. A corner of the courtyard is kept as a vegetable patch, so the parents can still “plant flowers and beans, finding joy in the garden.” As Lin Yutang once wrote: “A garden within a house, a house within a garden, a courtyard within the house, trees within the courtyard, the sky seen above the trees, and the moon within the sky”—it is just so.
▼天人合一,Unity of Heaven and Man

▼北阳台区,North Balcony Area

▼一角,A Corner

▼池塘边的东院儿,The East Courtyard by the pond

▼归家,Homecoming

东院儿在形式上回应乡村肌理,在功能上满足代际需求,在美学上与自然共生,在空间上重构传统院落关系。
The East Courtyard responds to rural texture in form, meets intergenerational needs in function, lives in symbiosis with nature in aesthetics, and reconstructs traditional courtyard relationships in space.
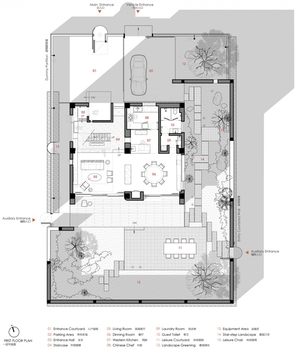
▼一层平面图,First Floor Plan

▼二层平面图,Second Floor Plan

▼三层平面图,Third Floor Plan

▼北立面图,North Elevation

▼西立面图,West Elevation

▼南立面图,South Elevation

▼东立面图,East Elevation

▼剖面图,Section View


Project Name: East Courtyard
Project Location: Xiexinggang Village, Jinhai Town, Qidong City, Jiangsu Province, China
Architecture/Interior/Landscape Design: Benzhe Architecture
Lead Architect: Jiang Huajian
Design Team: Yao Ruigen, Ruan Zelin, Zhao Guijun, Lin Tong
Building Area: 320 square meters
Design Period: March 2022 – August 2022
Completion Date: August 2025
Company Website: www.benzhedesign.com
Company Email: bd@benzhedesign.com
Photography: Su Shengliang
Brand collaboration: Whole House Solid Wood Customization (Yixing Linyi Wood Industry)
Marble Customization (Shanghai Xiangyi Stone Industry)
Curtain Customization (Mishu Soft Decoration)














