Allesamt综合家庭中心,奥地利 / Christian Schmoelz Architekt
一种全新的家庭支持模式:作为社会基础设施的建筑A New Model for Family Support: Architecture as Social Infrastructure
在奥地利奈青(Nenzing)这座市集小镇中,一座醒目的木结构建筑吸引着穿行于瓦尔高谷(Walgau valley)的列车乘客的目光。由 Christian Schmoelz Architekt 设计、并于 2024 年建成的 Allesamt 家庭中心(Allesamt Familycenter),代表了一种面向未来的社会基础设施实践——在同一屋檐下整合了托育、幼儿园与家庭咨询服务。这座建筑面积为 2,492 平方米的项目,既挑战了传统儿童设施的建筑类型学,又以克制而敏感的方式回应了其周边的居住环境与自然语境。 该项目回应了奥地利乃至更广泛地区日益增长的一项需求:家庭支持服务不应仅限于基础的儿童照护。通过将婴幼儿照料、学前教育与专业家庭咨询等多重功能整合在一起,Allesamt 家庭中心在服务提供者与家庭之间创造了协同效应。“Allesamt”一词大致可译为“所有人在一起”,这一名称恰如其分地概括了项目所倡导的包容性与整体性愿景。
In the market town of Nenzing, Austria, a striking wooden structure catches the eye of train passengers traveling through the Walgau valley. The Allesamt Familycenter, designed by Christian Schmoelz Architekt and completed in 2024, represents a progressive approach to social infrastructure—combining childcare, nursery facilities, and family counseling services under one roof. This 2,492-square-meter building challenges conventional typologies for children’s facilities while responding sensitively to its residential context and natural surroundings. The project addresses a growing need throughout Austria and beyond: the demand for comprehensive family support services that extend beyond basic childcare. By integrating multiple functions—infant care, preschool education, and professional family counseling—the Allesamt Familycenter creates synergies that benefit both service providers and the families they serve. The name “Allesamt,” which translates roughly as “all together,” perfectly captures this inclusive, holistic vision.
▼项目外观概览,overall of the project

场地与语境:介于小镇与铁路之间的建筑Site and Context: Building Between Town and Railway
Allesamt 家庭中心占据了一处极具标志性的场地,紧邻奈青火车站,直接沿着铁路线展开。对于一座儿童设施而言,这一选址或许并不寻常,但它为乘坐公共交通前来的家庭提供了极佳的可达性——这在当代强调可持续出行的城市规划语境中尤为关键。周边环境以居住功能为主,多为奥地利市集小镇常见的独栋住宅。这既带来了挑战,也蕴含着机遇:这样一座规模明显大于周边住宅的建筑,如何才能与既有城市肌理和谐共存?制度性建筑如何与日常居住建筑“说同一种语言”?场地内还保留着大量成熟植被,尤其是在北侧与东侧分布着多棵枫树与松树。这些树木历经数十年生长,对场地的性格与微气候具有重要意义。保护这些树木并非设计中的障碍,而是转化为核心的设计驱动力。
The Allesamt Familycenter occupies a prominent site adjacent to Nenzing railway station, positioned directly alongside the railway line. This location, while perhaps unconventional for a children’s facility, offers excellent accessibility for families arriving by public transport—a critical consideration in contemporary urban planning that prioritizes sustainable mobility. The surrounding context is predominantly residential, characterized by single-family homes typical of Austrian market towns. This presented both a challenge and an opportunity: how could a building of this scale (substantially larger than neighbouring houses) integrate harmoniously into the existing urban fabric? How could institutional architecture speak the same language as domestic architecture? The site also features significant existing vegetation—mature maples and pines particularly to the north and east. These trees represent decades of growth and contribute substantially to the character and microclimate of the area. Their preservation became a key design driver rather than an obstacle to overcome.
▼鸟瞰,aerial view of the site

设计策略:通过体量分解化解尺度问题Design Strategy: Breaking Down Scale Through Articulation
面对建筑尺度带来的挑战,Christian Schmoelz Architekt 以一种简洁而优雅的方式作出回应:将狭长的建筑体量在视觉上划分为四个较小的单元。这种体量分节在建筑立面上形成节奏,将原本可能显得庞大的整体拆解为一组彼此关联、却又各具特征的部分。这一策略同时服务于多重目标:
Christian Schmoelz Architekt’s response to the scale challenge was elegant in its simplicity: visually divide the elongated structure into four smaller volumes. This articulation creates a rhythm along the building’s length, breaking down what could have been a monolithic form into a composition of related but distinct parts. This strategy serves multiple purposes simultaneously:
▼鸟瞰,aerial view

语境融合:四段式体量使这座大型建筑被感知为一组类似住宅的体块,与周边独栋住宅形成视觉上的连续性。从某些角度看,它几乎会被误认为是一排住宅建筑,从而削弱了机构建筑的生硬感。树木保护:体量之间的间隙为既有树木的保留创造了条件,使其得以融入整体构图之中,而非被迫移除。建筑围绕成熟的枫树与松树展开,尤其是在北侧与东侧,使这些自然要素继续成为场地身份的一部分。建成体量与自然生长之间的互动,赋予场地更为复杂、层次丰富的解读。功能组织:四个体量在一定程度上对应建筑内部的功能分区,使空间组织更具可读性,并为不同区域建立各自的身份与其对外部环境的独特关系。采光与通风:体量之间的凹进空间为原本可能连续而单调的侧立面提供了额外的开窗机会,从而改善建筑内部的自然采光条件与交叉通风效果。
Contextual Integration: The four-part division allows the large structure to read as a collection of house-like volumes, creating visual continuity with the surrounding single-family homes. From certain angles, the building could almost be mistaken for a row of residential structures, softening its institutional character. Tree Preservation: The divisions between volumes create opportunities for existing trees to be incorporated into the composition rather than removed. The building works around the mature maples and pines, particularly on the northern and eastern sides, allowing these established elements to remain part of the site’s identity. The interplay between built form and natural growth creates a more complex, layered reading of the site. Functional Organization: The four volumes correspond loosely to functional zones within the building, providing legibility to the organization and creating opportunities for each area to have its own identity and relationship to the outdoors. Light and Ventilation: The recesses between volumes allow for additional window openings on what would otherwise be long, uninterrupted side walls. This improves natural light penetration and cross-ventilation throughout the building.
▼顶视图,top view

材料表达:木材的语言Material Expression: The Language of Wood
Allesamt 家庭中心最为引人注目的特征,是其对木材作为结构与饰面的全面运用。建筑外立面采用云杉木覆层——这种在阿尔卑斯地区广泛分布的软木材,数百年来一直是当地建筑传统的重要组成部分。建筑竣工时,云杉木仍保留着新鲜的金色调,正如建筑师所言,“尚未变灰”。随着时间推移,木材将在自然风化中逐渐转为银灰色,这一过程将建筑与传统阿尔卑斯建筑的时间维度紧密相连。
The most striking aspect of the Allesamt Familycenter’s appearance is its comprehensive use of timber, both as structure and finish. The façade is clad in spruce—a locally abundant softwood that has been used in Alpine construction for centuries. At the time of the building’s completion, the spruce cladding retained its fresh, golden tone—the wood “not yet greyed” as the architects note. Over time, weathering will transform this appearance, the wood silvering as it ages in a natural process that connects the building to traditional Alpine architecture.
▼外立面,facade of the building

选择未经处理、可自然风化的木材具有重要意义。它拒绝通过化学涂层或密封手段将材料“冻结”在崭新的状态,而是接纳变化,承认建筑外观将随阳光、雨水与温度变化而不断演进。这种态度与建筑本身的功能高度契合——一个关于成长、发展与变化的场所。在立面之外,木材同样主导着整体材料体系。窗框同样采用云杉木,使墙体与开口之间形成连续性。室内则大量使用白蜡木——这种更为坚硬、耐磨的木材适合用于地面与高频使用区域,出现在地板、墙面饰板与内置家具中。木材的整体使用营造出温暖、自然的环境,尤其适合儿童活动与成长。建筑主体结构采用木框架体系——由预制木板构成墙体与屋面,下部则为钢筋混凝土地下室,用于提供结构稳定性、容纳机电系统并防止地面潮气侵入。
The choice of unfinished, naturally weathering wood is significant. It rejects the impulse to freeze materials in their “new” state through chemical treatments or sealants. Instead, it embraces change, accepting that the building’s appearance will evolve over time in response to sun, rain, and temperature fluctuations. This philosophy aligns well with the building’s purpose—a place dedicated to growth, development, and change. Beyond the façade, timber continues to dominate the material palette. The window frames are also spruce, creating continuity between wall and opening. Inside, ash wood—a harder, more durable species suitable for flooring and high-traffic applications—appears throughout: on floors, in wall panelling, and in built-in furniture. The consistent use of wood creates a warm, natural environment particularly appropriate for young children.The underlying structure is timber frame construction—prefabricated wood panels forming walls and roof—sitting on a reinforced concrete basement that provides stability, houses mechanical systems, and protects against ground moisture.
▼建筑与环境,architecture and nature

建筑细部:拱形窗与立面凹进Architectural Details: Windows and Recesses
Allesamt 家庭中心的外观由两个极具辨识度的形式要素所定义:拱形窗与立面深凹空间。拱形窗:这些柔和弧线的开口弱化了建筑的几何感,使其呈现出比常规矩形窗更为亲切、易于接近的性格。拱形窗在不直接复刻历史样式的前提下,隐约呼应了历史建筑语言,兼具熟悉感与当代气质。对于儿童而言,这种非直线的开口形式也更具亲和力与生命感。立面凹进:立面中的深凹空间形成了受保护的半室外区域,为儿童提供了从室内过渡到室外的缓冲地带,或在雨天、强烈日照下仍可进行户外活动。这些凹进空间为立面增添了层次与阴影,避免建筑显得平板单调,同时也在公共空间与私密内部之间建立起柔性的阈限。
Two distinctive formal elements characterize the Allesamt Familycenter’s appearance: the arched windows and the deep recesses in the façade. Arched Windows: These gently curved openings soften the building’s geometry and create a more welcoming, approachable character than standard rectangular windows. The arches reference historical architecture while avoiding direct historicism—they feel both familiar and contemporary. For children, these shaped openings may read as friendlier, more animate than purely geometric forms. Façade Recesses: Deep setbacks in the façade create protected outdoor spaces—covered areas where children can transition between interior and exterior, or play outside while sheltered from rain or intense sun. These recessed zones add depth and shadow to the elevation, preventing the façade from appearing flat or monotonous. They also create threshold spaces that mediate between the public realm and the more private interior.
▼拱形窗,arched windows

▼外观细部,detail of the exterior

景观设计:为儿童创造一段“旅程”Landscape Design: Creating a Journey for Children
室外空间的设计,以及从公共人行道到建筑入口的路径,被视为儿童与家庭日常体验中同样重要的组成部分,因此得到了格外细致的处理。其中一项关键创新,是专门为儿童设计的导向系统。浅色铺装明确标示出步行路径,与周围地面区分开来。铺装中嵌入了一系列圆点标记,这些点以逐渐缩短的间距排列,形成视觉节奏与前进感。这些圆点具有多重功能:它们对儿童而言富有趣味性,清晰指引方向,而间距的变化又在无形中营造出接近建筑时的“加速”感。值得注意的是,这条标识路径延伸至“远超场地边界”的范围,使家庭中心自然融入更广泛的步行网络,并明确传达出对社区的开放姿态。
The design of the outdoor spaces and the route from public sidewalk to building entrance received careful attention, recognizing that arrival and departure are important parts of the daily experience for children and families. A key innovation is the wayfinding system created specifically for children. New light-coloured paving defines the pedestrian route, distinguished from surrounding surfaces. Set into this paving are dots—circular markers placed at decreasing intervals that create a visual rhythm and sense of progression. These dots serve multiple purposes: they’re playful and engaging for children, they provide clear direction, and their changing spacing creates a subtle acceleration effect as one approaches the building.
▼入园道路,path leading to the center

路径经过自行车停放区——既支持可持续出行方式,也在日常中向儿童传递非汽车依赖的交通观念——随后抵达游乐场。游乐场本身作为公共路径与建筑入口之间的过渡空间,使儿童在进入各自的“房子”(四个体量)之前,先经历一段户外游戏的过程。通过三个独立入口与衣帽间,儿童逐步从公共空间过渡到半私密再到完全室内的环境,在心理上完成自然调整。既有树木的保留与整合进一步丰富了室外环境。成熟的枫树与松树提供遮荫、季节变化(尤其是落叶枫树),并为鸟类与昆虫提供栖息地,让儿童得以在日常中观察自然循环。
Importantly, this marked route extends “well beyond the property boundary,” integrating the Allesamt Familycenter into the broader pedestrian network and making it clear that the building welcomes the community. The route passes bicycle parking facilities—supporting sustainable transportation and teaching children about alternatives to car-dependent mobility—before reaching the playground. The playground itself acts as a transitional space between public approach and building entry. Children move through outdoor play space before entering their respective “houses” (the four volumes) via three separate entrances and cloakrooms. This sequence creates a gradual transition from public to semi-private to fully interior space, allowing children to adjust psychologically as they move through the sequence. The preservation and integration of existing trees enriches the outdoor environment. Mature maples and pines provide shade, seasonal change (particularly the deciduous maples), habitat for birds and insects, and a connection to natural cycles that young children benefit from observing.
▼屋顶绿化,rooftop garden

组织理念:挑战单层儿童设施的惯例Organizational Concept: Challenging Single-Story Convention
项目中最具突破性的决策之一,是将主要的儿童活动与游戏空间设置在一层(美式语境中的二层),而非传统的首层。这一选择有意背离了儿童设施设计中普遍推崇的单层布局原则。建筑师与业主基于多方面考虑,作出了这一决定:空间效率:相较于同等面积的单层建筑,两层建筑占地更小,从而减少了对场地的干扰,保留了更多室外空间,也更有利于与周边住宅尺度相协调。教育理念:设计团队将多层结构视为一种“空间与教育资产”,而非风险。学习使用楼梯本身就是儿童发展的重要一环。在恰当的安全措施(扶手、看护)与训练下,儿童完全有能力安全地上下楼梯,这一日常行为也成为身体教育的一部分。
Perhaps the most significant programmatic decision was to locate the primary children’s play and recreation areas on the first floor (second level in American terminology) rather than at ground level. This choice contradicts conventional wisdom in childcare facility design, which typically prioritizes single-story layouts for young children. The architects and clients made this decision deliberately, based on several considerations: Spatial Efficiency: A two-story building requires less ground coverage than a single-story building of equivalent area. This meant less site disturbance, preservation of more outdoor space, and better integration with the residential scale of surrounding buildings. Educational Philosophy: The design team viewed the multi-story structure as a “spatial and educational asset” rather than a liability. Learning to navigate stairs is an important developmental skill. With appropriate safety measures (guardrails, supervision) and proper training, young children are quite capable of using stairs safely. The daily practice of ascending and descending becomes part of their physical education.
▼室内概览,overall of interior

▼由拱形窗看外部环境,viewing the exterior environment from the arched window

功能组织:将所有主题活动空间集中在同一层,为 Allesamt 所采用的教育理念创造了条件。儿童并非被固定分配到单一教室,而是可以在同一层自由移动,根据自身兴趣与当下需求选择活动空间。这种以儿童为导向的开放学习模式,要求所有空间彼此可达,在同一层面上实现显然更为有效。环境品质:一层位置带来更好的视野与采光条件(低位窗不被树木遮挡),并可能拥有更优的空气质量(远离地面尘土与污染)。对于每天在此停留数小时的儿童而言,这些环境因素对其身心发展具有重要影响。
Functional Organization: Placing all themed rooms on one level creates opportunities for the specific educational philosophy employed at Allesamt. Rather than being assigned to fixed groups that remain in single rooms, children “can move freely on their level,” choosing activities and spaces according to their interests and needs at any given time. This open, child-directed approach to learning requires all spaces to be readily accessible from one another—easier to achieve when they’re on one level rather than distributed across ground and first floor.Environmental Quality: The first-floor location provides better views, more natural light (no trees blocking low windows), and potentially better air quality (elevated above ground-level dust and pollution). For children who spend many hours daily in these spaces, these environmental factors significantly impact wellbeing and development.
▼室内同样采用了温暖的木制饰面,the interior also features warm wooden finishes

▼储藏空间,storage space

首层功能:支持性与服务空间Ground Floor Program: Support Functions and Services
随着主要儿童活动空间被抬升至一层,首层则容纳了多项支持功能与附加服务:
咨询中心:位于西侧,设有独立入口,容纳 Connexia 社会服务机构与市政家庭支持服务。独立入口使家庭可在不进入托育区域的情况下获得咨询,保障了私密性,也体现出对敏感议题的尊重。
With the primary children’s spaces elevated to the first floor, the ground level accommodates supporting functions and additional services: Counseling Center: Located at the western end with its own dedicated entrance from the forecourt, this area houses Connexia (a social service provider) and municipal family support services. The separate entry allows families to access counseling without necessarily entering the childcare areas, providing appropriate privacy for sensitive conversations. This integration of childcare and family counseling in one building recognizes that supporting children often means supporting their entire family system.
▼教室,classroom

员工设施:员工入口及后勤空间与咨询区相连,使工作人员可以在不干扰儿童活动的情况下进入与准备工作。
Gusto(餐饮与烹饪):专门设置的大面积餐饮与烹饪区域,名称取自当地的 Gurtis 地块,体现出与社区地理的联系。共享用餐被视为重要的社会与教育时刻。
卫生间与更衣设施:为儿童尺度与使用需求量身定制,通过内部楼梯与一层活动区便捷相连。
Staff Facilities: The staff entrance and associated back-of-house functions connect to the counseling area, allowing personnel to arrive and prepare for the day without disrupting children’s spaces. Gusto (Dining and Cooking): A significant area dedicated to food preparation and communal dining. The name “Gusto” references the local Gurtis parcel, part of a creative naming scheme that connects rooms to the community’s geography. Shared mealtimes are recognized as important social and educational moments. Toilets and Changing Facilities: Appropriately sized and equipped for young children, located for convenient access from the first floor play areas via the internal stairs.
▼教师与与员工休息空间,teacher and staff rest area

▼教师与与员工休息空间,teacher and staff rest area

工作坊:用于水、颜料、黏土等“脏乱”活动的空间,位于首层可直接通往室外,方便内外活动的切换。
Heia(休息与睡眠区):位于东侧,为年幼儿童提供午睡与安静时段。与活跃游戏区分离,使不同儿童群体可在不同节奏下活动。
员工休息室:认识到优质托育依赖于工作人员的身心状态,专门设置了供教育者休息、用餐与备课的空间。
Workshop: A messy activities space where water, paint, clay, and other materials can be used without concern for damaging finishes. The ground-floor location allows direct access to outdoor areas for activities that transition between inside and outside. Heia (Rest and Sleep Area): At the eastern end, this zone accommodates the youngest children’s need for naps and quiet time. The name references the Heimat parcel. Separating sleeping areas from active play spaces allows different groups of children to operate on different schedules without conflict. Staff Lounge: Recognizing that quality childcare depends on staff wellbeing, a dedicated break area provides space for educators to rest, eat, and prepare activities away from the children.
▼教室里的玩耍空间,playing space in the classroom

▼工坊,workshop

▼浴室,bathroom

▼宿舍,dormitory

二层:开放式学习环境First Floor: Open Learning Environments
二层平面体现了一种进步的教育理念:儿童不被限制在固定群组中,而是可以在不同主题空间之间自由移动。这种“开放概念”需要精心的空间规划,以在保持流动性的同时塑造清晰的功能分区。
主题空间以当地地块命名,将儿童的学习环境与社区地理建立联系:
Bewegung(运动):对应 Beschling 地块,支持身体活动与大运动技能发展。
Gusto:在上下两层均有设置,分别适应不同年龄段的烹饪与用餐体验。
Heia:为需要休息的儿童提供安静空间。
The first-floor layout embodies a progressive educational philosophy where children are not confined to fixed groups but can move freely among themed spaces according to their interests and developmental needs. This “open concept” approach requires careful spatial planning to create distinct zones that nonetheless flow together. The themed rooms are named after local parcels, creating a connection between the children’s learning environment and their broader community geography: Bewegung (Movement): References the Beschling parcel. This space supports physical activity, gross motor skill development, and active play. Gusto: Appears on both levels—cooking and dining experiences scaled appropriately for different age groups. Heia: Rest and quiet spaces for children who need downtime away from group activities.
▼滑梯,slide

▼二层空间,the first floor space

此外,还设置了艺术、建构、角色扮演、阅读等多种专项空间。关键在于,儿童可以看见并自由进入这些空间,自主选择活动内容,而非被动遵循成人制定的固定时间表。大面积窗户(包括标志性的拱形窗)提供自然采光、室外景观与对周边环境的视觉联系。一层的高度还使儿童能够越过邻近屋顶,远眺群山,感知自身所处的阿尔卑斯景观。白蜡木地板、墙面与内置家具在整层中形成统一的材料语言。木材的温暖触感与感官丰富性,对儿童成长尤为重要。内置家具——书架、储物格、长凳与桌面——在提高空间效率的同时,也呈现出一种精心制作、持久使用的品质,有别于机构中常见的模块化塑料家具。
Additional specialized spaces support the curriculum: areas for art, construction play, imaginative play, reading, and other activities. The key is that children can see and move between these spaces, making choices about how to spend their time rather than following rigid schedules imposed by adults. Large windows, including the distinctive arched openings, provide views to the outdoors, natural light, and visual connection to the landscape. The elevated position offers views over neighbouring rooftops toward the mountains—connecting children to the larger Alpine landscape they inhabit. The ash wood flooring, panelling, and built-in furniture create a consistent material language throughout the first floor. The warmth and tactile quality of wood provide sensory richness important for children’s development. Built-in furniture—shelves, cubbies, benches, tables—maximizes space efficiency while creating a crafted, permanent quality distinct from the modular plastic furniture often found in institutional childcare settings.
▼舞蹈活动室,dancing and event hall

建筑身份:居住尺度,公共使命Architectural Identity: Domestic Scale, Public Purpose
Allesamt 家庭中心在机构性功能与居住性气质之间取得了微妙平衡。它显然是一座公共建筑,却通过四段式体量、住宅尺度的构成、木材覆层与拱形窗,建立起亲近而熟悉的空间感。这种介于住宅与机构之间的模糊性是有意为之。对儿童而言,这里应当像家一样安全、温暖;同时又需承担专业教育功能。建筑通过占据二者之间的“第三空间”,实现了这种双重角色。外露的木结构还传达出明确的价值观:与自然的联系、地域建造传统、环境责任、温度与工艺。这些正是社区希望向其最年轻成员传递的理念。
The Allesamt Familycenter achieves a delicate balance between institutional function and domestic character. It is clearly a public building—too large, too regular, too carefully composed to be mistaken for houses. Yet the four-part articulation, the residential-scale volumes, the wood cladding and the arched windows all reference domestic architecture. This ambiguity is appropriate and intentional. For young children, the facility should feel homelike—comfortable, safe, nurturing. Yet it also needs to function as a professional educational environment with appropriate scale, equipment, and organization. By occupying the space between house and institution, the architecture creates a “third place”—neither strictly home nor strictly school, but something hybrid that can serve both functions. The visible timber construction also communicates values: connection to nature, regional building traditions, environmental responsibility, warmth, and craftsmanship. These are messages the community presumably wants to send about how it cares for its youngest members.
▼室内家具细部,details of the furniture

▼楼梯细部,details of the staircase

▼总平面图,master plan

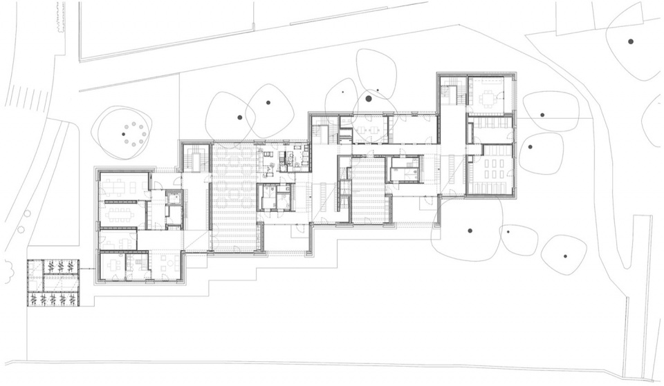
▼一层平面图,ground floor plan

▼二层平面图,first floor plan

▼立面图,elevations



▼剖面图,sections

Name of the building* Allesamt Family Centre
Year of completion* (four-digit year) 2024
Street, house number Gaisstraße 2a
Postcode* 6710
Town* Nenzing
Use* (e.g. office building, school, etc.) Elementary education family centre
Type of commission* Competition, 1st prize
Client* (name of institution, location, or “private”) Market town of Nenzing
Architecture* (office name, location, project manager, employees involved)
Christian Schmoelz Architekt, Sulz
Collaboration: Rüya Aydede-Francesko M.Sc. Arch, Desiree Kobald B.Sc. Arch, Tapiwa Mirirai Manase M.Sc.Arch, Andreas Stickel
Specialist planner* (office name(s), location)
Tree expert: Christoph Ölz Gehölz, Dornbirn
Nature-oriented construction: pulswerk GmbH, Katrin Löning, Bregenz
Landscape planning and playground planning: Markus Burtscher, Frastanz
Structural engineering: Dr. Brugger & Partner ZT GmbH, Bludenz
Building services: Technisches Büro Herbert Roth, Lauterach Electrical planning: ek-plan, Nenzing
Kitchen planning: Systemplan, Dornbirn
Fire protection planning: IHW-Ingenieurbüro Huber GmbH, Weiler
Building physics: Spektrum, Bauphysik & Bauökologie, Dornbirn
Sun protection consulting: GBD-Projects, Dornbirn / Jörg Hollenstein, Höchst
KGA tender specialist construction supervision Ecology: Siegfried Lerchbaumer, Bludenz
KGA building services: Energy Institute, Dornbirn
Municipal building certificate: Municipal Association, Dornbirn / Dietmar Lenz, Wolfurt
Geotechnics: Dr Peter Waibel ZT-GmbH, Hohenems
Cultural engineering/water management: Adler + Partner ZT GmbH, Klaus Surveying: Markowski Vermessung ZT GmbH, Altenstadt
Construction coordinator: Schuchter Dietmar, Göfis
Traffic planning: Verkehrsingenieure Gächter Lampert Fritz, Feldkirch
Guidance system and signage, colours: Atelier Andrea Gassner, Feldkirch
Contracting companies* (trade, company name, location)
Earthworks / building work: Ammannbau, Nenzing
Master carpenter and wooden façade: Dobler Holzbau GmbH, Röthis
Sun protection: Stampfl Sonnenschutz, Göfis
Ventilation: Hörburger Energietechnik mit Zukunft, Altach
Heating and plumbing: Summer Installationen, Nenzing Electrical installations: Stolz, Bludenz
Screed work: Burtscher Böden, Nüziders
Biodiversity roof: Loacker Sport + Gartenbau, Koblach
Windows and doors: Hartmann Fenster, Nenzing
Drywall construction / acoustic beam ceilings: Burtscher Trockenbau, Ludesch
Suspended ceilings, wood / acoustic walls, wood: Frick Burtscher / Holz mit Technik, Dornbirn
Wooden doors / fire doors: Tischlerei Telser OHG, Mals/Burgeis (IT)
Parquet flooring / dirt runners: Ludovikus, Lustenau
Cabinetmaker built-in furniture: Tischlerei Jussel, Nenzing
Office furniture: Paterno Bürowelt, Dornbirn
Children’s furniture: Resch Möbelwerkstätten, Aigen-Schlägl
Sports construction, impact protection walls and floors: Sportbau Walser, Altach
Commercial kitchen: Albers Gastro, Lauterach
Lift: Kone AG, Rankweil
Locksmith/rope nets: Geiger Technik, Nenzing
Tiler: Fliesenpool, Nenzing
Plumber/roofing contractor: IAT GmbH, Röthis
Locking system: Dorma Kaba, Innsbruck
MSRL control system: Siemens, Bregenz
Energy standard HWB 10 kWh/m² a, municipal building certificate
Gross floor area (X m²) 2,494 m
Building volume (X m³ ) 10,141 m³
Cubic metre price (X €/m³) 900 EUR/M3
Building costs (X.X €) 7.5M EUR
Total costs* (X.X €) 9M EUR
Award ZV Bauherr:innenpreis 2025 Nomination, ADC Award / New York
Photos* (author) Marc Lins, Cornelia Hefel














