中建万科嘉定未来城市“理想之地”春熙集和鼓浪馆,上海 / 致正建筑工作室
项目缘起Project Origin
“理想之地”紧邻轨交嘉定新城站以东,共由六个街区组成,是一个以“活力、低碳、智慧”为核心理念、总规模近60万平米的大型综合开发项目,也是万科2018年开启“未来城市”探索计划以来首个落地的未来社区理想单元。项目旨在探索新型城市化模式,树立上海5个新城作为独立节点城市的未来城市综合社区标杆,在步行可达范围内融合自然生态与多元城市场景,创造比上海中心城区更好的生活方式。春熙集(市集)和鼓浪馆(体育中心)位于理想之地的示范区,属于社区内首批落地的单体建筑,承担着示范先锋的角色,既是日常生活的容器,又是绿色生态的宣扬者。
NEXUS is located just east of Jiading New City Metro Station and consists of six urban blocks. Envisioned as a large-scale mixed-use development of nearly 600,000m2, the project is guided by the core principles of vibrancy, low carbon, and smart living. It marks the first realized “Ideal Unit” of a future community since Vanke launched its “Future City” program initiative in 2018. The project aims to explore new models of urbanization and to serve as a benchmark for integrated communities within Shanghai’s five emerging new cities, each of which envisioned as an independent node city. Within a walking distance, NEXUS seamlessly integrates natural ecology with diverse urban scenes, striving to create a lifestyle that surpasses even that of Shanghai’s central areas. Located within the demonstration zone of this development, CHUNXI Marketplace and GULANG Gymnasium are among the first batch buildings completed in the community. As early exemplars, they’re not only the container of everyday life, but also the advocate of green ecology.
城市设计Urban Design
理想之地在城市设计中顺应规划层面倡导的小街区、密路网的混合用地模式,以15分钟生活圈为基础,希望克服以往郊区新城开发中普遍存在的效率至上、功能切块、街区封闭、尺度失控、活力低下等问题,借鉴传统生活街区的成功要素,通过控制街道尺度、确立步行友好、引入有温度的社区生活氛围,以塑造本项目的街区精神。
In its urban design, NEXUS embraces the planning principles of small urban blocks, dense street networks, and mixed-use development. Anchored in the concept of a 15-minute living circle, the project seeks to overcome common problems seen in previous suburban new town developments, such as efficiency supremacy, functional segmentation, block closure, scale out of control and low vitality. Drawing on the successful elements of traditional urban neighborhoods, the project seeks to shape a strong sense of community by controlling street scale, establishing walkability, and introducing a warm neighborhood atmosphere.
▼理想之城鸟瞰,aerial view of the Ideal City

混合街区:在居非混合分布的各个街区中,将办公、商业、公共服务等多种业态及街头广场、街心花园等公共空间连续布置在居中串联整个社区的东西向混合慢行道路茂育路两侧,并向南北向的合作路两侧延伸,形成融合生活、工作、学习、娱乐和休憩功能的全时活力街区和微缩城市中心。
Mixed-Use Blocks: Within each blocks, a variety of programs and public spaces, which including offices, retail, public services, pocket plazas, and green courtyards, are continuously arranged along Maoyu Road, a central east-west mixed-use slow traffic spine that links the entire community. These functions also extend along the north-south axis of Hezuo Road. This integrated development creates an all-day vibrant urban hub that seamlessly combines living, working, learning, leisure, and recreation, forming a compact micro-city center.
▼城市设计街景轴测,urban design streetscape axonometric

超级十字路口:在以上两条道路的交叉口形成一个浓缩了丰富城市生活场景的超级十字路口,并在路口以东的南北两侧集中布局了作为市集的春熙集、作为文化中心的新新所、作为体育中心的鼓浪馆、以及作为邻里中心的陶然荟这四大公共建筑,成为社区的活力中心,以容纳当代年轻人对都市生活的各种向往。
Super Intersection: At the intersection of this two main thoroughfares, a vibrant Super Intersection is formed, condensing a rich tapestry of urban life. Clustered around the eastern side of this intersection, four key public buildings define the community’s heart: CHUNXI Marketplace, XINXIN Cultural Institutee GULANG Gymnasium, and TAORAN Neighborhood Hub. Together, they establish a dynamic core that reflects and supports the diverse aspirations of a new generation seeking an engaging, contemporary urban lifestyle.
▼嘉定未来城市卡通画,Jiading future city cartoon illustration

下店上厂:多种类型与规模的办公与产业分布于连续底商的上方,形成“下店上厂”的办公模式,为社区还原都市工作体验,也为商业带来更多消费支撑。
能量环廊:整个社区由二层空中连廊互相串联,并与高架轨交站点无缝连接,形成第二基面,激发城市的立体潜力。
Shopfronts Below, Work-spaces Above: A mix of office and light industrial spaces of various types and scales are strategically positioned above continuous ground-floor retail, forming a “shopfronts below, work-spaces above” model. This vertical integration restores the experience of urban working life within the community, while also generating a steady flow of users and foot traffic that supports and enhances local commercial vitality.
Energy Corridor: The entire community is interconnected by a network of second-floor elevated walkways, forming an Energy Corridor that seamlessly links to the nearby elevated metro station. This elevated circulation system creates a secondary urban layer, unlocking the three-dimensional potential of the city.
▼区位图,location map

理想之地的城市设计以丰富的公共空间串联高度垂直混合的各种业态,营造“密度+浓缩”的上海市心生活体验。我们在建筑设计之初就充分回应城市设计的理念,将原本市集与体育中心所在的茂育路以北地块做了进一步的街道空间梳理。靠近合作路茂育路的十字路口设置街角广场,市集与住宅地块之间引入商业内街,内街转向茂育路的街角放大成节点空间,并通过体育中心的一层架空将街道延续至东侧街心草坪运动公园。街道如同城市的毛细血管般在地块中延伸渗透,消解封闭住区对公共空间的侵占,将公共空间最大限度地释放并归还给城市。在项目落地阶段,随着业主对文化中心的战略定位有所调整,将市集与其用地互换调到了路南,尽管如此,我们对地块内街巷结构的梳理,仍然被保留了下来。
The urban design of NEXUS weaves a rich network of public spaces that connect a vertically and highly mixed-used environment, creating a dense and concentrated urban living experience of Shanghai’s city center. From the outset of our design, we closely responded to these urban design principles by further refining the street spatial layout north of Maoyu Road, originally designated for the marketplace and sports center. At the main intersection of this community, a street corner plaza was established. A commercial inner street was introduced between the market and residential blocks, which then bends to form a node space at the point turning to Maoyu Road and continues seamlessly to the east side, connecting through the elevated ground floor of the sports center to the lawn sports park. The streets function like the city’s capillaries, extending and permeating throughout the site, dissolving the enclosure typical of gated residential areas and maximizing public space that is returned to the city. During the project’s implementation phase, a strategic adjustment by the client led to swapping the market and cultural center sites, relocating the market south of the road. Nonetheless, the careful structuring of the inner streets and alleys within the block has been preserved.
▼西北侧轴测图,northwest axonometric view

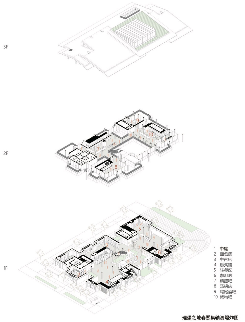
春熙集
CHUNXI Marketplace
空间组织
Spatial Organization
春熙集位于理想之地超级十字路口的西南角,东邻陶然荟,南侧隔内街与住区底商相对,它融合了生活购物、日常餐饮、咖啡烘焙等社区休闲消费业态,成为一个富有烟火气和凝聚力的精致生活集合空间。市集是有悠久历史的商业活动空间,兼具临时、自发、室内外一体、交易与社交融合等特征。我们在春熙集中选择将城市空间室内化的策略,除了将街道、广场内化之外,进一步引入庭院,将其内化为充满植物的绿色中庭,既丰富室内的社交空间,又将自然带入进来。单元化的店铺与档口如同传统市集的摊位,与不同社群文化相结合,被赋予性格迥异的体验场景,并且在未来可以被不断更新。
CHUNXI Marketplace is located at the southwest corner of NEXUS’s Super Intersection, adjacent to TAORAN Hub to the east and separated from the ground-floor retail of residential plots to the south by an inner street. It integrates everyday shopping, casual dining, coffee and bakery, and other community leisure consumption, creating a refined yet vibrant gathering space full of local life and social cohesion. Markets have a long history as commercial spaces characterized by their temporary, spontaneous, indoor-outdoor integration, and their blend of transaction and social interaction. At CHUNXI Marketplace, we adopted a strategy of internalizing urban space—beyond bringing the street and plaza indoors, we introduced a courtyard to create a lush, plant-filled green atrium. This not only enriches the indoor social environment but also brings nature inside. The modular shops and stalls, reminiscent of traditional market booths, combine with diverse community cultures to create distinct experiential settings that can be continually refreshed and updated over time.
▼北侧鸟瞰,aerial view of the north side

▼春熙集北立面,north facade of CHUNXI Marketplace

▼春熙集东立面,east facade of CHUNXI Marketplace

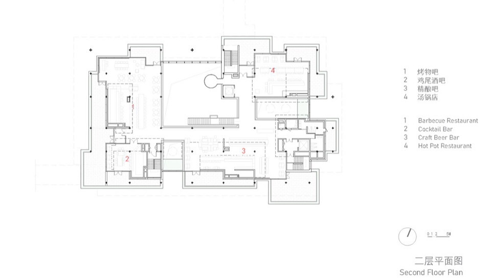
一层的十个综合店铺和二层的四个餐饮店铺都三面围绕朝北面街的两层通高绿中庭布置,主入口面向西侧街口广场,而东、南两侧面向内街的次入口之间以一条L形室内小街穿越中庭联通,并配以二层挑空的小边中庭将该小街提示出来。
On the first floor, ten mixed-use shops, along with four dining establishments on the second floor, are arranged on three sides around a two-story-high, north-facing green atrium. The main entrance faces the western street plaza, while secondary entrances on the east and south sides open onto inner streets. These secondary entrances are connected through the atrium by an L-shaped indoor lane, which is highlighted by two small double-height side atriums.
▼北侧局部,partial view of the north side

▼屋中屋,house within a house

尺度控制Scale Control
春熙集地上规模约3000平米,分为上下两层,被覆盖在一个钢木组合的双坡顶之下,营造了一个市集大棚的意象。由于是街区中是最大的商业单体,为了消解其对周边街巷的压迫感,我们从屋顶、沿街立面和室内界面三个方面做出尺度控制。
CHUNXI Marketplace spans approximately 3,000m2 over two floors and is covered by a steel-timber hybrid double-pitched roof, evoking the image of a traditional market canopy. As the largest commercial building within the community, measures were taken to alleviate its imposing presence on the surrounding streets and alleys by implementing scale control strategies focused on the roof, street-facing façades, and interior interfaces.
▼春熙集西北侧鸟瞰,northwest aerial view of CHUNXI Marketplace

借由屋脊的错动,双坡顶错落成多片连续的屋顶,两两之间形成高侧窗,消解体量的同时,有效控制了山墙面的建筑高度。屋顶出檐深远,将凹凸错动,边角模糊的建筑体量笼罩在阴影中。
By staggering the roof ridges, the double-pitched roof is articulated into multiple continuous segments, each separated by high-side windows. This not only breaks down the overall massing but also effectively controls the height of the gable ends. The deep eaves create a dynamic interplay of recesses and projections, softly blurring the building’s edges and enveloping the volume in shadow.
▼春熙集东南侧,southeast side of CHUNXI Marketplace

▼春熙集南侧局部,partial view of the south side of CHUNXI Marketplace

在外立面上,底层的店铺单元被统一限定的门式档口沿四周街巷及广场有节奏地展开。档口高3米,面宽有5.4米、7.2米和转角单元三种类型,档口之间相互错落游离,室内外边界退让出灰空间,结合门前外摆,如同一组从底层探出的尺度亲切的街边小店。档口门架边框由精细的定形铝板收口,口内立面根据店铺内容定制差异化填充,是店铺室内风格的外延。二层体量适当后退,形成数组错落转折分布的檐下露台,为每间二层店铺提供外摆空间。西南角和北面中庭东侧各有一处露台与二层跨街天桥相连,并设有直接进入二层的入口。这些化整为零的手法将 60米长的沿街立面转化为集合各色店铺与外摆、质地丰富、尺度宜人的多元商业界面。
▼春熙集爆炸图,exploded axonometric of CHUNXI Marketplace

On the exterior façade, the ground-floor shop units are rhythmically arranged along the surrounding streets, alleys, and plazas with standardized portal-style stalls. These stalls stand 3m high and have three types of width: 5.4m, 7.2m, and corner unit. The stalls are staggered and separated from each other, creating recessed gray spaces at the indoor-outdoor boundaries that, combined with outdoor seating, evoke the intimate scale of a cluster of boutique shops that extend from the ground level. The stall frames are finished with fine-shaped aluminum panels, while the façades within each frame are customized to reflect each store’s content and style. The second-floor massing is set back appropriately to form a series of staggered terraces under eaves that provide outdoor seating areas for each upstairs shop.
▼春熙集体,overall view of CHUNXI Marketplace

▼春熙集檐下露台,terrace under the eaves of CHUNXI Marketplace

坡顶覆盖下的二层室内空间,最高点屋脊下净高接近9米,围绕中庭形成高敞明亮的公共空间,但对于餐饮店铺而言尺度过大。我们在大屋顶下为每家店铺增设一个向内的批檐“屋中屋”小屋顶,覆盖住厨房操作区和一部分就餐空间,既将餐饮店铺所需的大量机电管线均隐蔽在大小屋顶之间的间隙,又为每家店铺限定出领域感,并将檐下净高控制在3米左右的近人尺度,为市集的二层空间营造出围绕中庭的室内街道感。
Under the pitched roof, the second-floor interior space reaches a maximum ceiling height of nearly 9m beneath the ridge, creating a spacious and bright public area centered around the atrium. However, this scale is excessive for dining establishments. To address this, each restaurant unit features an inward-facing “roof within a roof” canopy beneath the large pitched roof, covering the kitchen and part of the dining area. This design cleverly conceals the extensive mechanical and electrical systems within the gap between the main roof and canopies, while also defining a more intimate domain for each shop. The eave height is thus controlled to approximately 3m, creating a human-scaled environment and evoking the feel of an indoor street that wraps around the atrium on the second floor.
▼店铺与中庭的围绕关系,enclosure relationship between shops and the courtyard

▼多层次屋架,multi-layered roof structure

▼二层室内街道感空间,second-floor interior street-like space

▼二层室内看向露台,view from the second-floor interior toward the terrace

净零能耗设计Net-Zero Energy Design
理想之地社区倡导近零低碳价值观,塑造绿色生态环境、提倡低碳建造技术、推广被动式生态技术运用,支持未来新生活方式的实现。春熙集遵循低碳顾问的建议,通过一系列创新技术路径实现了近零能耗标准,具体包括:提高围护结构的热工性能、增加微气候调节功能、提升暖通系统效率、利用可再生能源、应用储能技术以及采用可循环材料等。
The NEXUS community advocates near-zero, low-carbon values by fostering a green ecological environment, promoting low-carbon construction techniques, and advancing the use of passive ecological technologies, to support the realization of future lifestyles. Following the guidance of low-carbon consultants, CHUNXI Marketplace achieves near-zero energy consumption through a series of innovative technical strategies, including enhancing the thermal performance of the building envelope, incorporating microclimate regulation features, improving HVAC system efficiency, utilizing renewable energy sources, implementing energy storage technologies, and employing recyclable materials.
▼南向局部鸟瞰,partial aerial view facing south

▼日间自然光下,under natural daylight

▼首层店铺看向中庭,ground-floor shops facing the courtyard

低碳建造技术Low-Carbon Construction Technology
春熙集全面采用低碳装配建造技术。首先主体结构采用钢木组合形式,木材取自于自然,其温润的质感拉近了人与自然的距离。为了满足国内的消防要求,建筑的主框架受力结构设计为钢构。柱子形式为带翼缘的纤细十字柱,其内侧面都用胶合木镶嵌,仅露出100mm宽的钢翼缘。主框架工字钢梁的底面与侧面都用胶合木镶嵌包裹,并与花旗松胶合木构次梁一起形成1.8米×1.8米的均质梁格,其上屋面望板采用185MM厚的NLT钉接胶合木板。二层室内小屋顶为钢木组合的小断面单向密檩木望板构造,与主屋顶保持合适的结构尺度差异。市集的钢木组合结构呈现肥梁细柱的效果,从另一个角度对结构做出真实与再现相结合的表达。
▼屋顶结构系统,roof structure system

CHUNXI Marketplace fully adopts low-carbon prefabricated construction techniques. The main structural system is a steel-timber hybrid, with a warm texture fostering a closer connection between people and nature. To meet domestic fire safety requirements, the primary load-bearing framework is designed as steel. The columns are slender cruciform shapes with flanges, with the inner faces clad in glued laminated timber (glulam), exposing only a 100mm-wide steel flange. The main steel I-beams are similarly wrapped with glulam on their bottom and sides, combining with pure glulam secondary beams to form a uniform beam grid measuring 1.8m by 1.8m. The roof decking above uses 185mm-thick NLT (Nail Laminated Timber) panels. The secondary indoor “roof within a roof” on the second floor is constructed with small-section steel-wood composite one-way purlin decking, maintaining a suitable structural scale contrast with the main roof. The steel-timber hybrid structure of the market presents an effect of “thick beams and slender columns,” expressing a blend of authentic structural performance and architectural representation from a fresh perspective.
▼屋顶出檐深远,deep roof overhangs

▼西侧立面,west facade

▼西侧主入口局部,partial view of the west main entrance

钢木结构的选择,一方面是预制装配理念的体现,是一种环境友好的建造技术;另一方面意味着结构与装饰可以一体化设计和实施,市集的室内屋顶面最大程度地呈现为彻上露明的纯净木构效果。这对机电管线的整合提出了挑战。首先,我们尽可能将需要环通的机电管线安排在一层吊顶内,通过垂直竖井引向二层。其次,二层不可避免的桥架,利用大小屋顶的外侧间隙将其隐藏。喷淋支管则利用NLT板需要留伸缩缝的建造工艺,统一加大伸缩缝尺寸,将喷淋隐蔽在其中。经过与业主、设计院机电以及BIM团队之间的紧密协作,在设计阶段将管线路由合理规划,对日后钢木结构完成的效果起到至关重要的作用。
▼剖面图1,section 1

▼剖面图2,section 2

The choice of steel-timber structure not only reflects the prefabrication and assembly philosophy as an environmentally friendly construction method but also enables integrated design and implementation of structure and finishes. The indoor ceiling of the market roof showcases a pure, fully exposed timber structure to the greatest extent, presenting a clean and refined timber aesthetic. This, however, poses challenges for integrating mechanical, electrical, and plumbing (MEP) systems. First, as much as possible, MEP conduits requiring circulation are routed within the first-floor ceiling, then vertically extended to the second floor via dedicated shafts. Second, unavoidable cable trays on the second floor are concealed within the gaps between the main and secondary roof structures. The sprinkler branch piping is hidden in the expansion gaps which must to be left in the construction process of NLT plates but deliberately enlarged. Through close collaboration among the client, design institute MEP engineers, and the BIM team during the design phase, the routing of all systems was carefully coordinated, which was an essential factor in achieving the seamless integration and visual purity of the finished steel-timber structure.
▼钢木结构组合作为主体结构,steel–wood structural combination as the main structure

装配式的设计理念也延伸到外立面和屋顶的材料选择及设计。立面主要材料为玻璃排窗及UHPC干挂系统、单元式钢木组合栏杆,屋面采用铝镁锰板叠加光伏组件,局部设置不锈钢坡屋面绿化种植格。设计前期对精确的网格模数的控制,在后期的实施中体现出其优势和潜力。立面及屋顶轮廓均被控制在一张隐形的网格模数内,这一网格模数有利于外墙材料、金属栏杆、屋顶光伏板及屋顶绿化种植格的标准化加工,减少非标构件数量。
▼标准档口详图,standard shop unit detailed drawing

The prefabrication design strategy also extends to the selection and detailing of façade and roofing materials. The façade primarily features Window strips combined with a UHPC (Ultra-High Performance Concrete) panel dry-hanging system and modular steel-timber composite railings. The roof is clad with Al-Mg-Mn Alloy Sheeting overlaid with photovoltaic (PV) modules, with select areas incorporating stainless-steel green roof planters. Early-stage precise control of the modular grid proved advantageous during construction. Both the façade and roof profiles are aligned within an invisible modular grid, facilitating standardized fabrication of exterior wall materials, metal railings, PV panels, and green roof planter units, thereby minimizing the number of bespoke components.
▼削弱体量的多片连续屋顶,multiple continuous roofs reducing the building mass

▼沿四周展开的底层门式档口,ground-floor portal-type shops arranged along the perimeter

人与植物的共栖—微生态调节Symbiosis Between People and Plants — Micro-Ecological Regulation
为营造人与植物共栖的人居环境,我们在市集室内引入了“绿中庭”。中庭以一个巨大的玻璃盒子的形象,穿透坡顶并突出屋面,向街道彰显其重要性。绿化从室外蔓延进室内,室内植栽2-3株乔木,林下以绿植打底,留出小道穿越。中庭入口正对的端景,我们设想一处台地塑造假山意向,并结合台阶,衔接上二楼的楼梯。悬浮于台地之上的镂空楼梯,以轻盈姿态出现在中庭内,半层高处的悬挑平台形成休憩平台,供行人驻足与中庭绿植对话。
To create a living environment where people and plants coexist harmoniously, we introduced a “green atrium” within the market interior. This atrium takes the form of a large glass box that penetrates the pitched roof and extends above the rooftop, prominently signaling its importance to the street outside. The greenery extends seamlessly from the exterior into the interior, featuring two to three tall trees planted indoors with a lush under-layer of ground-cover plants and pathways weaving through. At the end view point facing the atrium’s entrance, we envisioned a raised terrace shaping the impression of a rock garden combined with steps that connect to the staircase leading to the second floor. A floating, perforated staircase hovers above this terrace, appearing delicately within the atrium. A cantilevered platform at mid-level serves as a resting spot where visitors can pause and engage with the indoor greenery, fostering a serene dialogue between people and nature.
▼东北侧鸟瞰,aerial view of the northeast side

我们与业主、低碳顾问以及绿植顾问等多团队共同研究,在绿中庭的空间体验之外,更对人与植物共存的微环境调控进行了深入设计。我们根据上海地处夏热冬冷地区的不同季候特征来调控室内植物所需的日照、通风、及温湿度。春秋季非空调时节,我们所要做的就是加强室内外的气候联通,打开中庭高侧窗及一层低位的换气窗,利用拔风效应,提高室内通风率;收起顶面遮阳,为室内中庭加入充足采光。我们在玻璃幕墙内侧设计了可升降多层金属夹心保温隔热板,升起时悬挂在屋檐下;通过机械装置降下时互相搭接成一层保温墙体,并与玻璃幕墙间留有空气间层,形成类双层的可调节幕墙。夏季白天气温高于26℃时需关闭外窗,展开屋顶遮阳,加强室内温湿度控制;在中庭内补充喷雾以增加湿度;降下幕墙内侧保温隔热板,打开中庭高侧扇,形成通风隔热层带走表面热量。冬季当气温低于18℃时,需关闭外窗,收起屋顶遮阳,让更多的太阳辐射热进入,保持室内温度;降下幕墙内侧保温板形成密闭空腔,保存室内热量;开启中庭顶部的热回收装置将热空气输送至低位,增加室内近人高度的舒适度。然而在项目落地时,由于升降保温板的机械装置研发生产难以在市集建造周期内完成,双层可调节幕墙最终遗憾并未实施。
▼绿色建筑分析图,Green Building Analysis Diagram

Working closely with the client, low-carbon consultants, and landscape advisors, we conducted in-depth research not only on the spatial experience of the green atrium but also on the micro-climatic regulation for harmonious coexistence between people and plants. Our design responds to Shanghai’s climate—hot summers and cold winters—by carefully controlling sunlight, ventilation, temperature, and humidity to meet the needs of the indoor vegetation. During the mild spring and autumn seasons, when air conditioning is not required, we enhance indoor-outdoor climatic connectivity by opening the atrium’s high clerestory windows and low-level ventilation windows on the first floor. This utilizes the stack effect to improve indoor airflow. At the same time, the rooftop shading is retracted to maximize natural daylight in the atrium. On the interior side of the glass curtain wall, we designed a multilayered, vertically operable metal sandwich panel system. When raised, these panels hang beneath the eaves; when lowered, they interlock to form an insulated wall with an air gap between the panels and glass, creating an adjustable double-skin façade. In summer, when daytime temperatures exceed 26°C, exterior windows are closed and rooftop shading is deployed to better control indoor temperature and humidity. Misting systems supplement humidity in the atrium. Lowering the internal insulation panels while opening the atrium’s high clerestory windows creates a ventilated insulation layer that removes surface heat. In winter, when temperatures drop below 18°C, exterior windows close and rooftop shading retracts to allow more solar heat gain, maintaining indoor warmth. The internal insulation panels lower to form a sealed cavity, preserving heat. A heat recovery system at the atrium top circulates warm air to lower levels, enhancing occupant comfort at human height. Unfortunately, the double-skin adjustable curtain wall was not implemented in the end due to the difficulty of completing the research and production of it’s mechanical device within the construction cycle of the marketplace.
▼东侧林荫小道,tree-lined path on the east side

立体绿化Vertical Greening
引入“绿视率”概念,在“绿中庭”之外,市集还运用了多种立体绿化技术强化绿色场景体验,创造宜人景观环境。市集绿中庭上方周围的屋顶为绿植坡屋面,占整个屋顶面积的10%,对屋顶的保温隔热起到一定的辅助作用。绿植坡顶的难点在于防止土壤流失以及降低日常养护难度两方面。因此整个种植屋面被细分成450mm×500mm的不锈钢种植格,防止土壤下滑。屋顶配备自动灌溉系统,同时种植生命力顽强的佛甲草,尽量减少人工养护需求。市集二层露台栏杆外侧设置通长的不锈钢种植槽,搭配黄金香柳、迷迭香、大吴风草、金森女贞、亮金女贞、南天竹、细叶芒、狐尾天门冬、蓝雪花、常春藤等多样的植物。
▼中庭剖面详图,detail section of the courtyard

Introducing the concept of “green view ratio,” beyond the green atrium, the marketplace employs various vertical greening techniques to enhance the immersive green experience and create a pleasant landscape environment. The rooftops surrounding the market’s green atrium are designed as planted green sloped roofs, covering about 10% of the total roof area. These planted slopes provide supplementary insulation and thermal regulation for the building envelope. A key challenge for the green roof is preventing soil erosion and reducing routine maintenance demands. To address this, the entire planted roof is divided into stainless steel planting modules measuring 450mm by 500mm. An automatic irrigation system supports the roof planting, which primarily features hardy succulents such as Sedum to minimize manual upkeep. Along the exterior side of the market’s second-floor terrace railings, continuous stainless steel planting troughs are installed, housing a diverse palette of plants including golden willows, rosemary, green Leopard plant, golden privet, bright privet, nandina, fine-leaf silver-grass, fox-tail asparagus, blue leadwood, and ivy.
▼一层中庭的立体绿化,three-dimensional greenery in the ground-floor courtyard

▼中庭局部,partial view of the courtyard

被动式生态技术运用Application of Passive Ecological Technologies
春熙集还运用了以下其它几种被动式生态技术:
一,光伏屋面。市集约60%的屋顶铺设太阳能光伏组件,收集的太阳能直接纳入项目的光储直柔系统。光伏组件采用专业夹具,固定于金属屋面的直立锁边上,光伏与铝镁锰板之间自然形成一层高约300mm的空腔。
二,无动力风帽。利用光伏与屋面之间的空腔,我们在市集高屋脊位置布置10个无动力风帽,加速空腔内的空气流通,以降低屋顶表面的温度。
三,室内风扇。在市集室内大屋顶上,悬挂了3个直径2米的大风扇。在春秋天过渡季节,利用风扇加速空气的对流,实现通风降温。
CHUNXI Marketplace also incorporates several other passive ecological technologies:
Photovoltaic Roof: Approximately 60% of the market’s rooftop is covered with solar photovoltaic (PV) panels, with the harvested solar energy directly integrated into the project’s solar storage and flexible power system. The PV panels are mounted using specialized clamps fixed to the standing seam metal roof, naturally creating a roughly 300mm-high cavity between the PV modules and the metal sheeting.
Passive Ventilation Caps: Utilizing the cavity between the PV panels and the roof, ten passive ventilation caps are installed along the high ridges of the market’s roof to accelerate airflow within the cavity, thereby reducing surface temperatures on the rooftop.
Indoor Fans: Three large ceiling fans, each 2m in diameter, are suspended beneath the market’s main roof. During the transitional spring and autumn seasons, these fans enhance air circulation to promote natural ventilation and cooling indoors.
▼中庭直跑楼梯连接上下,straight-run staircase in the courtyard connecting upper and lower levels

鼓浪馆
GULANG Gymnasium
空间组织
Spatial Organization
鼓浪馆位于春熙集东北方向斜对街,西邻新新所,东侧是面街凹入的社区运动草坪,北侧紧贴住区入口大堂。作为社区体育中心,它既是多元复合、公共开放的运动与社交汇聚场所,又是绿色健康生活的示范引领之地。
GULANG Gymnasium is situated diagonally northeast across the street from CHUNXI Marketplace, adjacent to XINXIN Cultural Institute on its west side. To the east lies a recessed community sports lawn facing the street, while the north side directly connects to the residential entrance lobby. As a community sports facility, GULANG Gymnasium serves as a multifunctional and publicly accessible hub for sports and social gatherings. It also stands as a leading example promoting a green and healthy lifestyle within the community.
▼鼓浪馆东南侧鸟瞰,southeast aerial view of Gulang gym

▼鼓浪馆南侧立面,south facade of Gulang gym

整个南侧沿街正面是两层通高的浅进深通透门厅,由此引向地下带25米休闲泳池的健身中心、底层沿西侧内街带展示性质的通透健身操房、以及二层球类场馆。球类馆兼容一片篮球场与三片羽球场,也可作为冰壶场地以及小型的社区表演场地等使用,适应商业运动及社区活动的多场景切换。馆内沿西侧长边设通长的固定看台,北侧设球员更衣休息区,东侧面对运动草坪作为入口前廊并兼容运动周边展示,该廊北侧尽端通向建筑东北角的室外平台,可以通过挑空楼梯下到运动草坪。
▼鼓浪馆轴测爆炸图,exploded axonometric of Gulang gym

The entire south frontage facing the street features a two-story high, shallow-depth, transparent lobby that leads to the underground fitness center with a 25m leisure pool, the transparent aerobics room with display nature on the ground floor along the west inner street, and the ball game venue on the second floor. The ball game venue accommodates one full basketball court and three badminton courts and can also be converted into a curling rink or a small community performance venue, supporting versatile uses ranging from commercial sports to community activities. Along the long west side of the hall runs a continuous fixed spectator stand. The north side includes player locker and rest areas, while the east side faces the sports lawn, serving as an entrance porch and space for displaying sports-related items. At the northernmost end of this porch, an outdoor platform connects to the building’s northeast corner, with a suspended staircase providing access down to the sports lawn.
▼鼓浪馆东侧立面,east facade of Gulang gym

▼鼓浪馆西侧立面,west facade of Gulang gym

底层面向运动草坪一侧定义为运动主题餐饮,落地玻璃可以整面折叠开启。底层的北半部架空作为街道空间的延续,将新新所背后的内街与运动草坪打通,架空区中嵌入咖啡、体育零售能小型档口,并有天窗提示地下泳池的存在。运动、餐饮、休憩的场景在架空区叠加,将复合的空间体验的聚焦于此。
The ground floor facing the sports lawn is designated as a sports-themed dining area, featuring floor-to-ceiling glass walls that can be fully folded open. The northern part of the ground floor is elevated as a continuation of the street space, connecting the inner street behind the XINXIN Cultural Institute with the sports lawn. Within this elevated area, small kiosks for coffee and sports retail are embedded, and skylights highlight the presence of the underground swimming pool below. The combination of sports, dining, and relaxation scenes overlaps in this open-air zone, creating a vibrant and multifaceted spatial experience.
▼底层北侧局部架空空间,partially elevated space on the north side of the ground floor

▼东南侧活力街角,active street corner on the southeast side

建造系统与特征表达Construction System and Architectural Expression
鼓浪馆主体结构为现浇钢筋混凝土框架结构,球类馆屋顶采用了钢桁架结构。玻璃幕墙除外的围护墙体都采用了干挂的大尺寸氟碳喷涂铝夹芯墙板。球类馆作为建筑主体,结合自然采光需要,呈现为一个架在二层的金属盒子,六组锯齿屋顶都带有北向高侧窗,其南坡屋顶上铺设太阳能光伏组件,占整体屋顶的70%。
The main structure of GULANG Gymnasium is a cast-in-place reinforced concrete frame, while the ball game venue’s roof employs a steel truss system. All enclosure walls except the glass curtain walls are clad with large-size fluorocarbon-coated aluminum sandwich panels. As the main volume of the building, the ball game venue is expressed as a metal box elevated above the second floor. To meet the needs of natural lighting, It features six sets of sawtooth roofs, all equipped with north-facing clerestory windows. Solar photovoltaic panels cover the south-sloping roofs, accounting for 70% of the total roof.
▼鼓浪馆南侧鸟瞰,south aerial view of Gulang gym

▼鼓浪馆西侧鸟瞰,west aerial view of Gulang gym

鼓浪馆短边临街,南立面是其最重要的展示面。如何将球类馆的实体体量隐藏,并将绿色健康用一种具有力量的语言呈现,是鼓浪馆的设计重点。首先,沿街通高门厅的通透体量让球类馆退后于主街,减小对街道的压迫。
▼绿建分析,green building analysis

GULANG Gymnasium’s shorter façade faces the street, with the south elevation serving as its most important frontage. A key design challenge was how to conceal the solid mass of the ball game venue while powerfully expressing the theme of green and healthy living. Firstly, the transparent, double-height lobby along the street sets back the ball game venue from the main street, reducing its visual bulk and lessening its impact on the streetscape.
▼球类馆实体体量的隐藏,concealment of the solid volume of the ball sports hall

▼钢构架局部,partial view of the steel structure

▼钢构上的垂直绿化装置,vertical greening system on the steel structure

门厅的玻璃幕墙外悬挂钢构架搁置乔木种植池,并沿东立面向北延伸,形成面街和面运动草坪的大尺度垂直绿化装置,给人强烈的视觉提示。构架从主体混凝土结构柱挑出,每一榀出挑构件由6层水平挑梁及顶部拉索构成,竖向的槽钢两两相夹在工字钢挑梁上,每榀出挑构件之间左右上下间隔错位布置双层挑梁间隔高度的格构钢板平台,每个平台上搁置一对配有不锈钢种植池的油橄榄树。另在位置醒目的平台上安置数组大型运动主体彩色卡通塑像。整个悬挂构架利用平台下水平面内和立面竖平面内间隔布置的交叉拉索提高其整体稳定性。立面构架采用精致钢制作,构造细节完美,展现出精湛的工业技术感。
▼鼓浪馆剖透视,sectional perspective of Gulang gym

▼鼓浪馆墙身详图,wall detail of Gulang gym

Steel frameworks with tree planting pools are suspended outside the glass curtain wall of the lobby and extend northward along the east façade, forming a large-scale vertical green installation facing both the street and the sports lawn, delivering a strong visual statement. The steel frameworks project outward from the main concrete columns,and each cantilever assembly consists of six horizontal beams layered vertically and topped with tension cables. Vertical U-steels are clamped in pairs atop the I-beam cantilevers. Between each set of cantilever assemblies, lattice steel plate platforms are arranged in staggered intervals both in horizontal and vertical directions, and the upper and lower platforms are kept at twice the height of the cantilever beam spacing. Each platform is placed with a pair of olive trees equipped with stainless steel planting pools. Additionally, prominent platforms host a series of large, colorful cartoon-style sculptures representing various sports themes. The entire suspended frameworks gain overall stability from a network of crossing tension cables arranged within the horizontal plane beneath the platforms and the vertical plane of the façade. Crafted from finely detailed steel, the framework structure showcases exquisite industrial craftsmanship and technological finesse.
▼二层篮羽馆,second-floor badminton and basketball hall

▼馆内六组北向高侧采光,six groups of north-facing clerestory daylighting inside the hall

结语Epilogue
随着“理想之地”的交付及其公共服务设施的投用,未来城市的生活图景也将在社区居民们的亲身实践中逐步变为现实。理想之地将会以开放的公众参与格局,持续探索社区文化与社区营造新路径,增强社区凝聚力。而春熙集与鼓浪馆也将为社区日常活力的营造提供空间支撑。
With the delivery of NEXUS and the commissioning of its public service facilities, the vision of future urban living will gradually be realized through the everyday experiences of the community’s residents. NEXUS will continue to explore new paths for community culture and vitalization through an open model of public participation, strengthening social cohesion. Meanwhile, CHUNXI Marketplace and GULANG Gymnasium will provide vital spatial support to nurture the community’s daily vibrancy.
▼鼓浪馆西南侧鸟瞰夜景,southwest aerial night view of Gulang gym

▼春熙集总平面,overall site plan of CHUNXI Marketplace

▼春熙集一层平面,first-floor plan of CHUNXI Marketplace

▼春熙集二层平面,second-floor plan of CHUNXI Marketplace

▼西立面,west elevation

▼北立面,North Elevation

▼南立面,south elevation

▼西立面,west elevation

▼鼓浪馆总平面,overall site plan of Gulang gym

▼鼓浪馆一层平面,first-floor plan of Gulang gym

▼鼓浪馆二层平面,second-floor plan of Gulang gym

▼鼓浪馆剖面,section of Gulang gym

▼东立面,ELE-East

▼西立面,ELE-West

▼北立面,ELE-North

▼南立面,ELE-South

项目档案
Credits and Data
Project Name: CHUNXI Marketplace and GULANG Gymnasium, NEXUS, Jiading, Shanghai
Architects: ZHOU Wei + ZHANG Bin / Atelier Z+
Partner in Charge: ZHANG Bin
Project Architect: JIN Yanlin
Project Team:
Architectural Design: YANG Xinyue, YANG Shenghao, LIN Xiabin, HE Yongxian
CHUNXI Marketplace Interior Public Areas Design (2F Roof-Ceiling + Atrium Interfaces): YANG Xinyue, CHEN Ying, HE Yongxian, TAO Yi
GULANG Gymnasium Interior Design: Chen Ying, LIN Yujie
Design Consultant:
Shanghai Jiuban Architectural Design Co., Ltd./ Su Jiong, WU Qiaoyao, HUANG Feng, LI Junjie, YAN Hua, CHEN Quan (Alternative Conceptual Design Consultation of CHUNXI Marketplace)
Nanjing Yanji Interior Design Co., Ltd. / TAN Kai (Interior Construction Drawings of GULANG Gymnasium)
Design General Contractor: East China Architectural Design & Research Institute
Project Architect: SHAO Wenxiu, ZHANG Jun
Architectural Design: XU Zhendong, JIN Chunxu, ZHI Xiaowen
Structural Design: LIU Mingguo, SHEN Hao, LI Guangwei, NI Xiaowen
Drainage Design: BAN Shanxue, HU Bo, XUE Bing
HVAC Design: WO Licheng, CAI Siyu, ZHUAGN Yan
Electrical Design: HAN Fengming, HUANG Chenyun, LIAO Kang
Urban Design:
Verse Design / DAI Lie, HE Xiaojian
Atelier GOM / ZHANG Jiajing, XU Wenbin, XU Cong, WU Zijing, ZHANG Qicheng
Low-Carbon Consultant: East China Architectural Design & Research Institute
Timber Structure Detailing Consultant: Shanghai JAZ Build Technology Co., Ltd. / CHEN Dilong, YAO Junqiang, ZHUANG Bingyan
M&E Consultant: Shanghai Linxian Engineering Consulting Co., Ltd. / LIU Xuejun, MA Guo, CHEN Shi
CHUNXI Marketplace Exterior Design: Shenzhen Super Ordinary Space Design Co., Ltd. / WU Minwen, WANG Chuangzhe, GUAN Tianda, WU Ziwei, YU Xinting
Floodlighting and Interior Lighting Consultant: Shanghai MEICO Lighting Design Consultant Co., Ltd. / JIN Zhu, LI Ying, ZOU Yadi, WANG Kun
Landscape Design Consultant: Sense Lab / ZHU Wei, ZHEN Liming, WANG Zhou, WANG Kun, ZHOU Ran, SHEN Xu, ZHANG Xin, LIU Qiaoli, ZHOU Zihan, CHEN Yue, XU Xiafan, JIANG Tingting, LIN Feng
Curtain Wall Consultant: FORCITIS Building Technology Co., Ltd. / QIN Shaokun, CHEN Jiayin, JIANG Bin
Location: 398 Hezuo Road (CHUNXI Marketplace) & 158 Maoyu Road (GULANG Gymnasium), Jiading New City, Shanghai
Client: Shanghai Jia Future Real Estate Co., Ltd.
Construction General Contractor: China Construction 2nd Engineering Bureau East China Company
Timber Structure Construction: Shanghai Zhenyuan Timber Structure Design & Engineering Co., Ltd.
Curtain Wall Construction: Shandong Xiongshi Construction Decoration Co., Ltd.
CHUNXI Marketplace Interior Hard Decoration Construction:Beijing Baihe Jianye Construction Engineering Co., Ltd.
CHUNXI Marketplace Interior Soft Decoration Construction:Shenzhen Super Normal Space Design Co., Ltd.
GULANG Gymnasium Interior Hard Decoration Construction:Beijing Baihe Jianye Construction Engineering Co., Ltd.
GULANG Gymnasium Interior Soft Decoration Construction:Shanghai Zhijian Design Consulting Co., Ltd.
GULANG Gymnasium Installation Construction: Shanghai Yuanxing Culture & Art Co., Ltd.
GULANG Gymnasium Prop Construction: Zhejiang Nuoyin Home Furnishings Co., Ltd.
Design Period: 2022.08 – 2022.12
Construction Period:
CHUNXI Marketplace: 2022.12 – 2023.10
GULANG Gymnasium: 2023.10 – 2025.10
Building Area:
CHUNXI Marketplace: 3,500 m²
GULANG Gymnasium: 1,670 m²
Gross Floor Area:
CHUNXI Marketplace: Above Ground 3,400 m²,Basement 1,800 m²
GULANG Gymnasium: Above Ground 2,290 m²,Basement 1,300 m²
Structure:
CHUNXI Marketplace: Steel-Timber Hybrid Structure
GULANG Gymnasium: Concrete Frame Structure with Partly Steel Truss Elements
Building Story: 2 Stories, 1 Basement
Principal Use:
CHUNXI Marketplace: Retail Marketplace, Dining Marketplace
GULANG Gymnasium: Ball sports, Fitness, Swimming, Retail, Dining
Primary Materials:
CHUNXI Marketplace: Glued Laminated Timber of Douglas Fir, Ultra-High Performance Concrete (UHPC) Panels, Al-Mg-Mn Alloy Sheeting, Steel Profile, Pre-coated Aluminium Profile and Sheets, Sandblasted Stainless Steel, Fluorocarbon Coating, Ultra-Clear Slab Glass, White Coated Glass, Solar Panel
GULANG Gymnasium: Aluminum Composite Wall Panel, Al-Mg-Mn Alloy Sheeting, Corrugated Aluminum Sheet, Perforated Corrugated Aluminum Sheet, Refined Steel Profile, Grating Steel Plate, Pre-coated Aluminium Profile and Sheets, Fluorocarbon Coating, Glued Laminated Timber of Douglas Fir, Ultra-Clear Glass, Solar Panel
Cost: Undisclosed
Photography: YANG Min














