RadioMaster 办公空间数字峡谷,深圳 / E Studio 壹所
RadioMaster 是一支由资深玩家和顶尖工程师组成的 RC(遥控模型)领军团队,深耕行业多年并致力于开源平台的普及。品牌根植于中国科技之都深圳,产品凭借硬核的自研实力与原创设计风靡全球。此次,我们受邀为其打造办公空间,力求将这种“硬核开源”的极客精神转化为空间设计的视觉语言。
RadioMaster is a leading RC (radio control) team of veteran enthusiasts and top engineers dedicated to open-source platforms. Based in Shenzhen, China’s tech capital, the brand has built a global following through rigorous R&D and original design. We were commissioned to create an office that translates their hardcore open-source ethos into spatial form.
▼入口,Entrance

在电梯厅的受限尺度内,我们通过界面的切削与重构,建立起一段关于“物质性”的场域叙事,完成从公共园区到品牌精神世界的感知跨越。
In the compressed volume of the elevator lobby, we carved and reconstructed surfaces to build a material narrative, bridging the gap between the generic office park outside and the brand’s distinct world within.
▼前台,Front desk


数字矩阵Digital Matrix
步入前厅,21块方形LED屏幕经由裸露的金属构件固定,(通过细钢管与金属支架的多点拉索固定结构,对LED 屏幕进行稳当安装)以阵列形式嵌入阳光板隔断,构筑起一面流动的‘数字矩阵’。设计通过低保真与像素化(Lo-Fi / Pixelated)的视觉表达,刻意保留了画面的颗粒感,具象地映射了数字信号在空间中的采样、传输与瞬时跳跃。通过对固定构件与信号路径的系统性呈现,空间界面建立起一种基于技术规范的建构秩序。这种去装饰化的处理,将复杂的硬件逻辑转化为一种原生的空间序列,使技术本身成为了场域的主体。
Twenty-one square LED screens anchor the foyer. Mounted on exposed metal armatures (thin steel tubes and tensile cables lock each screen in place), they’re embedded in translucent polycarbonate panels to form a living digital matrix. The imagery is deliberately lo-fi and pixelated, its graininess a literal expression of how digital signals are sampled, transmitted, and jump through space. The mounting hardware and signal paths remain visible, turning the wall into a system governed by technical logic rather than decorative impulse.
▼展示空间与吧台,Display space and bar

▼展示空间细节,Details of the display space


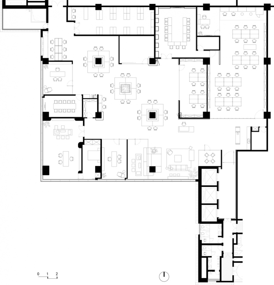
空间拓扑:对角线切割下的功能演进Spatial Topology: The Diagonal Cut
在1,000平方米的长方形平面内,设计通过对角线切割(Diagonal Cleavage)介入原始模数,打破了常规的矩阵排布。这一组织逻辑源于对场地条件的被动响应:两面连续采光窗与两面实体围护墙的对立,推演出了从“极度通透”到“物理屏蔽”的梯度过渡。开放办公区沿对角线形成的“斜向裂谷”展开,这种几何偏转在拉长空间透视深度的同时,实现了采光效能的最大化。与之相对,研发中心、仓库等高隐私区域锚固于实墙一侧,构成平面的“厚重面”,裂谷边缘则由会议及功能模块构成,界定出动静交替的转换边界。
▼功能分析,Program analysis


A diagonal slash reorganizes the 1,000-sqm rectangular floor plate, rejecting the usual office grid. The move responds directly to site conditions: two glazed walls opposite two solid walls, a binary of full transparency and full enclosure. The open workspace follows the diagonal “rift”, stretching sightlines and pulling daylight deep into the plan. High-privacy zones (R&D, storage) anchor to the solid walls, forming the plan’s dense edge. Meeting rooms and support spaces line the rift, mediating between open and enclosed, active and quiet.
▼接待室,Reception room

▼公共空间,Public space



▼办公区,Public area



▼茶室,Tea room

建构与物质性:原始与精密的并置Construction and Materiality: Raw Meets Precise
设计在材质表达上追求逻辑的透明度。针对不可避让的既有结构柱,采用半透明金属网进行包覆干预,利用材质的透光特征消解混凝土结构的体量感,使其异化为空间中的光影节点。核心协作区配置定制的方形围合木质工作站,以原木的温润感介入混凝土裸顶与铝制风管构成的工业基底,形成不同工业层级的物质性并置。这种基于模块化模数的家具系统,在确立当下空间视觉秩序的同时,也为未来职能的更替与扩充预留了结构性的生长冗余。
Material choices prioritize legibility. Existing structural columns are wrapped in semi-transparent metal mesh, using the material’s translucency to dematerialize the concrete mass and turn columns into light filters. At the core, custom square timber workstations bring warmth into the raw concrete ceilings and exposed aluminum ducts, a collision of craft and industry. The modular furniture system defines the current layout while allowing for future reconfiguration and growth.
▼办公区灯光,Light design in the office area


▼独立办公室,Independent office


▼研发区,Research and development area


▼会议室,Meeting area

▼会议室细节,Meeting area detail


▼细节,Detail


▼平面图,Floor plan

项目名称 Project Name:
Radiomaster Shenzhen Office 总部办公室
委托方 Client:
Radiomaster
项目地址 Project Location:
广东深圳 Shenzhen, Guang Dong
面积 Area:
970 sqm
落地时间 Completion Time:
Oct, 2025
空间设计 Interior Design:
E Studio 壹所
主持设计师 Lead Designers:
Fan,Junjian 范君健,
Zhou,Xuanzhuo 周炫焯
设计团队 Design Team:
Huang,Chenxi 黄晨曦
Liu,Shuqi 刘淑琦
Hu,Yulong 胡裕龙
Li,Xueqi 李雪琪
Zhou,Jing 周婧
Huang,Qiqi 黄琪琪
Chen,wanhuan 陈万欢
摄影 Photography:
张超建筑摄影工作室&
WM Studio














