A13公寓,法国 / BAST
一套公寓被清理,去除了不同时期形成的各类改造与加建。
承重墙将公寓划分为两个房间。
这些墙体经过凿毛与喷砂处理,以回归其原始材料状态。
▼室内轴测图,Indoor axonometric drawing

An apartment is purged of alterations made at different times.
The load-bearing walls divide the apartment into two rooms.
They are stitched and sanded to return to the original material.
▼室内概览,overview of the interior

▼墙体经过凿毛与喷砂处理,walls are stitched and sanded

▼墙体经过凿毛与喷砂处理,walls are stitched and sanded

以铝制“泥瓦匠直尺”为构件逻辑制作的家具,组织并界定了新的空间。
其中一部分为固定家具,用于容纳厨房与折叠床。
另一部分为可移动家具,可沿轨道滑动,使公寓的空间布局得以变化。
铝制地暖系统用于实现新公寓的热环境调节。
▼室内轴测图,Indoor axonometric drawing

Furniture made using a mason’s rule in aluminum furnishes the new space.
Some are fixed to accommodate the kitchen and Murphy beds.
Other mobiles slide on rails to change the layout of the apartment.
An aluminum heated floor allows thermal regulation of the new apartment.
▼铝制家具,aluminum furnishes



▼铝制家具细部,aluminum furnishes details




▼折叠床,Murphy beds

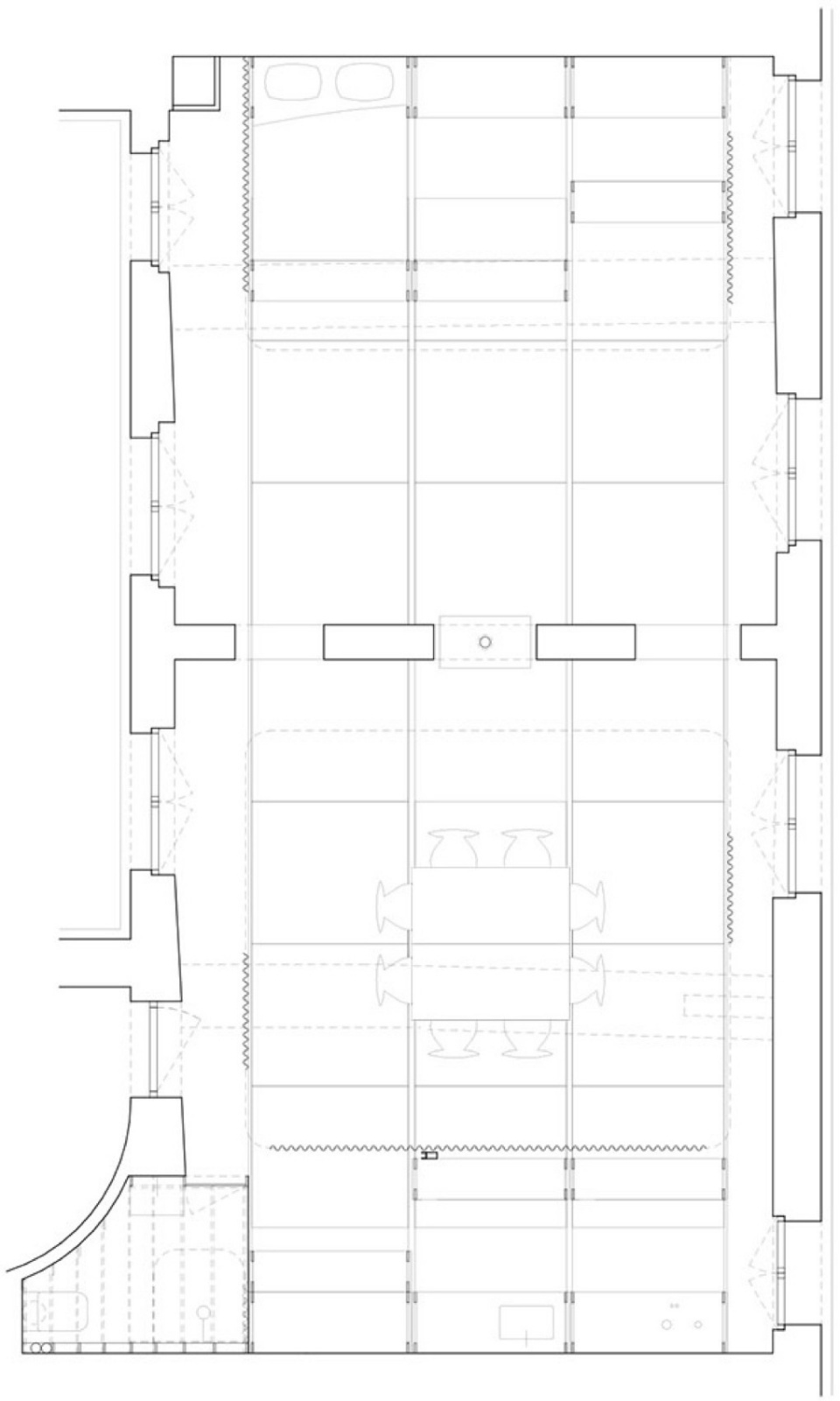
▼平面,floor plan

▼家具立面图,furnishes elevation

▼家具细部图,furnishes details plan

Paris FR 75
privée
75 m2
200 000 euros ht
mission complète
en cours
BAST architecte mandataire
SUPERSTANDARD architecte associé














