采光之屋,加拿大 / Williamson Williamson Inc.
士嘉堡断崖位于多伦多东区,曾因侵蚀作用而以每年约一米的速度向内退缩。20世纪60年代,为稳定地形并保护已逼近断崖边缘的郊区开发区,相关部门通过大规模植被种植进行生态修复。今日所见的“自然”景观,在很大程度上实为人工构建的结果。这一背景构成了采光之屋的场地语境:一处高达300英尺的工程化陡坡,支撑着郊区街道上一条狭窄的台地地带。对此,项目采取了克制的建筑占地与谨慎的体量布局,在尊重相邻住宅与脆弱边缘条件的同时,将长期稳定性、低调性与场地守护置于视觉张力之上。
The Scarborough Bluffs lie along Toronto’s East End, where erosion once retreated the land by a metre/year. In the 1960s, conservation efforts planted the bluff to stabilize erosion and protect suburban development that had advanced to the edge. What appears natural today is largely artificially constructed. This condition forms the context for the House of Monitors: a 300-foot-high engineered escarpment supporting a narrow sliver of tableland on a suburban street. In response, the project adopts a restrained footprint and carefully positioned massing to respect neighbouring houses and the fragile edge condition, prioritizing long-term stability, discretion, and stewardship over visual prominence.
▼建筑外观夜览,Building exterior night view


▼夜晚建筑立面近景,
Building main facade view at night

▼夜晚建筑立面近景,Building facade close view at night

采光之屋是一座捕捉并精心编排光线的住宅,同时突出建造过程中所使用的材料特性。该项目在与业主——加拿大国家芭蕾舞团的驻团布景艺术家——以及一位专长于复杂地质条件的支护工程师的密切合作下完成。设计通过取景框式视野、剖面切割以及层叠的空间联系,创造出与材料互动的多种可能,使居住者得以理解建筑的建造逻辑。光线在结构中的“雕刻”不仅是一种采光策略,更是一种将室内与室外交织在一起的方式,令住宅呈现为一系列经过精确校准的体量、质感与明暗氛围的连续序列。
The House of Monitors is a home that captures and choreographs light while highlighting the materials of production. Developed in close collaboration with the owners, the Resident Scenic Artist for the National Ballet of Canada, and a shoring engineer with expertise in complex ground conditions, the project designed opportunities to engage materials through framed views, sectional cuts, and layered spatial connections that support understanding of the building’s construction. Carving light through the structure is not only a daylighting strategy, but a way to intertwine interior and exterior, revealing the house as a calibrated sequence of volumes, textures, and luminous atmospheres.
▼建筑立面,Building facade

▼一层室内看向室外,
Ground floor interior towards landscape

▼一层空间,Ground floor interior

▼核心垂直室内空间,Core vertical interior

住宅入口位于前部悬挑体量之下,通过一扇竖纹压花玻璃门进入,在提供必要自然采光的同时,维护了临街密集环境中的私密性。混凝土构成了住宅的服务核心,将建筑牢固锚定于断崖之中,并同时承担结构、支护与热惰性体的多重功能。流线空间与主要房间则以木作定制家具加以围合,与原始的结构形成富有触感的对比。上方,白色涂装的采光天窗将自然光引入建筑深处,显著降低对人工照明的依赖。整体材料体系强调耐久性、可修复性以及长期的材料性能表现。
Entry occurs beneath the front cantilever through a reeded glass door, providing essential daylight while maintaining privacy along the closely spaced street edge. Concrete forms the service core of the house, anchoring it to the bluff and performing simultaneously as structure, shoring, and thermal mass. Circulation and primary rooms are lined with wood millwork, establishing a tactile counterpoint to the raw structure. Above, white painted light monitors amplify daylight deep into the plan, reducing reliance on artificial lighting. The elemental palette prioritizes durability, repairability, and long-term material performance.
▼一层楼梯入口,Ground floor staircase entrance

▼二层楼梯入口,Second floor staircase entrance

▼楼梯视角,Staircase view

▼楼梯视角近景,Staircase close view

▼中庭,Central courtyard

从街道一侧进入,储藏空间与食品储备区形成一道功能性“防护层”,以支持高效的日常组织。楼梯两侧,餐厅、厨房与起居空间朝向湖面展开。住宅中央,一座高达26英尺的采光筒形成以光线而非围合界定的垂直空间,在不增加建筑面积的前提下实现了空间的慷慨尺度。其上方,卧室、书房与起居空间彼此相连,并与上下空间及室外环境共享光线与视野。主卧与露台面向湖景,而次要空间则通过条板立面与街道保持距离,使各功能空间能够根据隐私需求与使用方式的变化灵活调整。
From the street, storage and pantry form a protective service layer supporting efficient organization. Flanking the stair, dining, kitchen, and living open to the lake. Centrally, a 26-foot-tall light monitor creates a vertical volume defined by daylight rather than enclosure, achieving spatial generosity without increasing floor area. Above, bedrooms, office, and a living space open to one another, to spaces above and below, and to the exterior, sharing light and views. The primary bedroom and deck face the lake, while secondary rooms are screened from the street by a slatted façade, allowing spaces to adjust to changing privacy and use.
▼办公/多功能空间,Office/Flex space

▼办公/多功能空间近景,Office/Flex space close view

▼主卧一角,A corner of master bedroom

▼客房一角,A corner of guest bedroom

▼二层露台,Upper deck

在由沙质土壤构成的断崖地基之中,混凝土体量如可居住的支护结构般从地面中生长出来,构成住宅的结构与空间框架。这一做法既直接回应了不稳定的土壤条件,也将对陡坡地形的扰动降至最低。其上方,一座木结构体量向街道与湖面两个方向悬挑延展。不同体量之间的交错与切削,形成了富有层次的剖面深度、交叉视线以及经过精确控制的自然采光分布。位于住宅核心位置的绘画工作室通过多轮研究与虚拟光环境模拟,与业主协作完成,其最终呈现为朝北的高侧窗与弧形顶棚,从而获得均匀而可控的自然光照条件。
From the sandy soils of the bluff, concrete volumes emerge as inhabitable shoring, forming the structural and spatial framework of the house, while responding directly to unstable soil conditions and minimizing disturbance to the escarpment. Above, a wood volume is cantilevered toward both the street and the lake. Intersections and subtractions between these elements generate sectional depth, cross-views, and a calibrated distribution of light. A centrally located painting studio was developed collaboratively with the owner through iterative studies and virtual light simulations, resulting in a north-facing clerestory and a radiused ceiling that produces even, controlled daylight.
▼绘画工作室,Paint Studio

▼卫生间,Bathroom


作为一座位于敏感场地上的私人住宅,该项目树立了一种以克制、耐久与清晰为基础的建筑实践范式。它展示了如何通过审慎设计,使建筑雄心、环境责任与场地守护得以并存。
As a private residence on a sensitive site, the project establishes a model for architectural excellence grounded in restraint, durability, and clarity. It demonstrates how ambition, environmental responsibility, and site stewardship can coexist through careful design.
▼区位图,Site plan

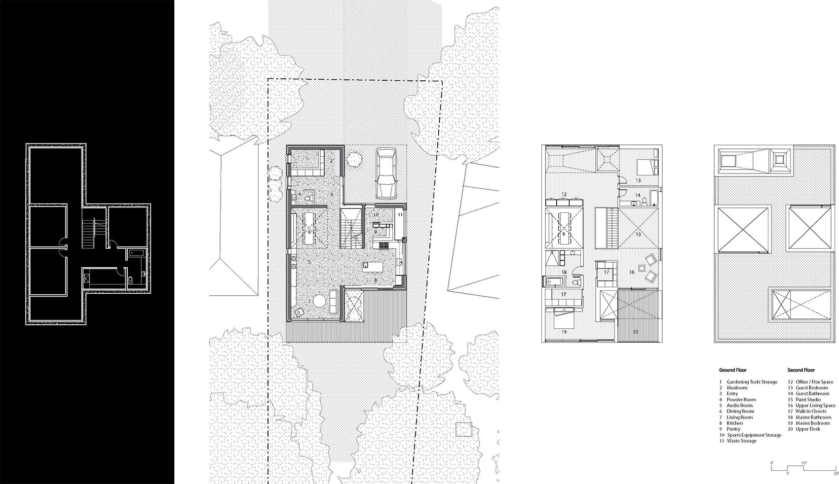
▼平面图,Floor plans

▼剖面图,Sections


Total Floor Area:
4175 sf
Design Team:
Betsy Williamson, OAA Partner
Shane Williamson, Partner
Sonia Ramundi
Structural Engineering: Blackwell Engineering
Construction Management: Ripple Projects
Millwork: BL Woodworking & Design
Wood Ceilings and Exterior Siding: Woodbecker
Windows: Torp
Lighting: Vintage by owner, Lightline, WAC Lighting, Titanium Technologie
Exterior Siding: TanTimber
Stair: Berman Stairs
Tile: Inax
Roofing and Barriers: Soprema
Appliances: Jenn-Air, Whirlpool
Bathtub: Kohler
Paint: Benjamin Moore
Kitchen Counter: Caesarstone
Wood Flooring: Moncer














