Červený Kostelec图书馆,捷克 / PAPUNDEKL ARCHITEKTI
2022年,Červený Kostelec 镇政府委托对布热季斯拉夫·卡夫卡图书馆(Břetislav Kafka Library)进行重新设计,该馆原有家具已达到使用年限。在设计过程中逐渐发现,建筑本身也需要更为全面的干预,最终促成了一次包含建筑保温在内的整体翻修工程。
In 2022, the town of Červený Kostelec commissioned the redesign of the Břetislav Kafka Library, whose furnishings had reached the end of their service life. During the design process, it became evident that the building required a more extensive intervention, resulting in a complete renovation including thermal insulation.
▼项目概览,overview of the project

▼街景,street view

▼立面,facade


▼入口,entrance



图书馆所在建筑为一座历史悠久的旧旅馆,其既有平面布局对空间使用形成了限制。项目并未对建筑结构进行改动,而是直接回应既有建筑条件,在满足当代公共图书馆需求的前提下,塑造出契合原建筑特质的室内空间。整体设计重点在于提升空间的清晰度、自然采光与视觉连贯性,同时保留地方图书馆所特有的熟悉氛围。
The library occupies a historic former inn, whose layout imposes spatial constraints. Rather than altering the structure, the project engages directly with the existing architecture, shaping an interior tailored to the building while meeting the contemporary requirements of a public library. The overall concept focuses on improving spatial clarity, daylight, and visual coherence, while maintaining the familiar atmosphere typical of a local library.
▼金属门,metal gates



入口区域在设计中获得了特别关注,以便从街道一侧更清晰地传达建筑的公共属性,并改善通往庭院花园的可达性。主入口通过一条设有全新大尺度门扇的通道进入:面向街道的金属门作为视觉标识,而面向花园的半透明门扇则使自然光得以进入通道。在街道入口之后设置的一扇大尺寸窗户,使人们能够直接看到图书馆内部空间。通道内部经过清理,原有壁柱被重新显露,并在其间嵌入公告板,形成一处小型展览空间。
▼入口剖面,entrance section

Special attention was given to the entrance area to clearly communicate the building’s public function from the street and to improve access to the courtyard garden. The main entrance is accessed through a passageway fitted with new, generously proportioned gates: metal gates facing the street act as a visual marker, while translucent gates facing the garden allow daylight to penetrate the passage. A large-format window placed just beyond the street entrance provides a direct visual connection to the library interior. The passageway was cleared, with original pilasters exposed and bulletin boards inserted between them to create a small exhibition area.
▼大尺寸窗户,A large-format window



▼走廊,corridor


项目还包括一套完整的家具系统设计。中性的灰色嵌入式家具沿周边墙体布置,而空间中央则通过可移动的红色多功能家具单元进行界定,这些家具整合了储物、座椅与内置照明功能,并配有滚轮,可根据需要移动,为公共活动腾出空间。在底层的成人阅览区,家具呈规则排布;而在上层的儿童区域,书架则以更具趣味性的形式与不同高度呈现,以适应不同年龄段的使用需求。儿童空间还设置了一件由艺术家 Linda Retterová 与当地儿童在工作坊中共同完成的织物顶篷,在改善声学效果的同时,也让柔和的漫射光线得以穿透。
▼家具轴测图,axonometry furniture

The project includes a comprehensive furniture concept. Neutral grey built-in furniture lines the perimeter walls, while the centre of the rooms is defined by mobile, multifunctional red furniture elements incorporating storage, seating, and integrated lighting. Mounted on wheels, these elements can be repositioned to free up space for public events. In the adult section on the ground floor, the furniture is arranged in regular rows, while in the children’s section on the upper floor, the shelving adopts playful forms and varied heights corresponding to different age groups. The children’s area is complemented by a textile canopy by artist Linda Retterová, created during a workshop with local children, which improves acoustic performance while allowing soft, diffused light to pass through.
▼室内概览,overview of the interior


▼儿童空间,children’s area





鲜明的色彩系统将室内新增干预统一起来。粉色与红色被运用于入口通道、地面及家具之中,不仅强化了图书馆的亲和氛围,也呼应了城镇名称及其标志性的红色教堂。与之形成对比的是不锈钢元素的引入,为空间增添了一种克制的优雅感,同时强调了图书馆作为重要市政公共机构的角色。
A distinctive colour palette unifies the new interventions throughout the interior. Shades of pink and red appear in the entrance passage, on the floors, and in the furniture, reinforcing the welcoming atmosphere of the library while referencing the town’s name and its landmark red church. In contrast, stainless steel elements introduce a restrained elegance and underscore the library’s role as an important municipal institution.
▼红色家具,pink furniture



▼不锈钢元素,stainless steel elements


▼材料细部,material details

Červený Kostelec城市建筑师Lukáš Ehl评述:“布热季斯拉夫·卡夫卡图书馆在 Červený Kostelec 已承担了超过一个世纪的重要社会职能。当更新过时设备成为必要时,图书馆决定对其空间进行一次更为全面的翻修,目标是将其打造为一个充满活力的文化与创意中心。经过审慎遴选,图书馆邀请了 Papundekl 工作室的建筑师团队,他们以富有创造性的方式打通并整合了图书馆各个空间,使之成为一个紧凑而统一的整体。空间及其家具的材料策略亦体现了这一理念。由此,图书馆成为一个能够回应使用者不断变化需求的‘有机体’,同时也体现了 Červený Kostelec 小镇开放包容的发展态度。”
Commentary by Lukáš Ehl, city architect of Červený Kostelec: “The Břetislav Kafka Library has played an important social role in Červený Kostelec for more than a hundred years. When it became necessary to replace outdated equipment, the library decided to undertake a generous renovation of its premises with the ambition of creating a lively cultural and creative center. After careful selection, the library approached architects from the Papundekl studio, who inventively opened up and connected the library spaces into a single compact whole. The material solution for the spaces and their furnishings reflects this. The library thus becomes a living organism, capable of responding to the changing demands of its users, while also representing the open approach of the town of Červený Kostelec.”
▼场地平面,site plan

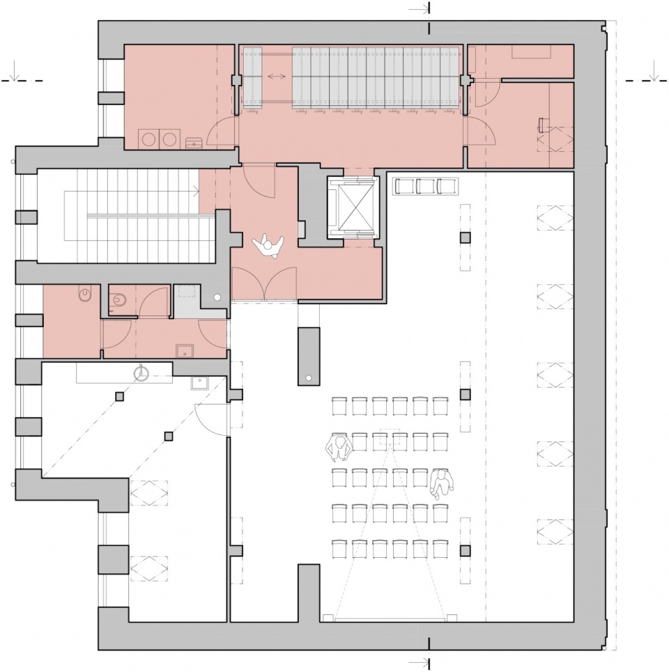
▼二层平面,first floor plan

▼三层平面,second floor plan

▼四层平面,third floor plan

▼剖面,section

Investor: Town of Červený Kostelec
Location: Sokolská 293, 549 41 Červený Kostelec, Czechia
Project Year: 2023
Completion Year: 2025
Built-up area: 285 m²
Usable Area: 649 m²
Enclosed Space: 3,650 m³
Investment Costs: CZK 35,000,000 (~EUR 1,400,000)
Architects: PAPUNDEKL ARCHITEKTI
Architects’ Website: www.papundekl.cz
Architects’ Instagram: @papundeklarchitekti
Design Team: Jan Bárta, Šimon Bierhanzl, Marek Fischer
Collaboration: Elif Avci, Lucia Čierna, Pavla Kejdanová, Kateřina Kollárová
Graphic Design: David Babka, Ilja Bažanov
Artistic Collaboration (Textile Ceiling): Linda Retterová (ROE) + children from ZUŠ Červený Kostelec
Photographer: Alex Shoots Buildings
Photographer’s Website: alexshootsbuildings.com
Photographer’s Instagram: @alex.shoots.buildings














