RENKA稻米厂更新住宅与商铺,日本 / raumus
RENKA是一座位于福冈县前田町中心的70年历史的稻米厂改造项目,经过现代化改造,适应现代生活方式,旨在展示改造的魅力和可能性。一座曾经深受当地人喜爱的稻米厂被改造为一座现代住宅,在保留建筑历史和魅力的基础上加以利用。
RENKA is a model house for renovating a 70-year-old rice mill in the center of the former Asakura Town in Fukuoka Prefecture, renovated to suit modern lifestyles, and built to convey the appeal and possibilities of renovation. A rice mill that has long been loved and supported by the local people was renovated into a modern residence that makes the most of the building’s history and charm while preserving it.
▼建筑外观,Exterior view



▼屋顶,Roof

可持续的样板房 Sustainable Model House
原本是一座稻米厂,建筑包括一栋一层的稻米加工厂和一栋主要作为仓库使用的两层建筑。由于作为独立住宅的规模较大,因此两层的部分被改造成住宅,而一层部分则设计为零售空间,面向社区开放。目前,在日本各地建造了许多样板房,但许多房屋在大约五年后因设计已过时而被重建,最终变得老旧。针对这种情况,我们致力于创造一座可持续发展的样板房,希望这座房屋能够深受当地社区喜爱,并与模型房+α之间保持互动关系。
Originally a rice mill, the building consisted of a one-story building used for rice milling and a two-story building used mainly as a warehouse.Because of its large scale as a stand-alone residence, the two-story portion was renovated as a house, and the one-story portion was designed as a retail space, open to the community. Currently, many model houses are being built all over Japan, but many of them are rebuilt after about five years because the design is consumed and they become old. In response to this situation, we sought to create a sustainable model house that would be loved by the local community and that would be interchangeably related to the model house +α.
▼一层社区零售空间,1st floor community retail area

▼一层起居室概览,1st floor living room overview

▼起居室近景,Living room close view


▼厨房与用餐区,Kitchen and dining area

▼厨房与用餐区,Kitchen and dining area

▼二层室内空间,2nd floor interior



具有节奏感和宽敞空间的大空间布局 Rhythmic and expansive space with large spaces at both ends
这座曾用作仓库的两层建筑有着四户的立面,并且采用了跨越大跨度的大梁结构。大梁是建筑最具特色的部分,我们考虑在住宅部分的改造中尽可能多地保留它们,作为室内设计元素。入口位于建筑的中央,建筑的一半用于租赁空间(社区空间),另一半作为住宅(样板房),土楼地面将两者分开。每个空间都旨在创造一种节奏感十足的空间体验,土楼地面穿过低顶区域,通向两端的大拱形空间。同时,我们将住宅的新部分设计为与现有粗大梁和木质材料和谐融合,使用强烈纹理的胶合板、大型家具和宽大木地板,以与30厘米的圆木梁相协调。
The two-story building, which used to be a warehouse, had a frontage of four houses and a large beam structure that skipped a large span. The large beams are the most distinctive feature of the building, and we considered using them as much as possible as an element of the interior design, even in the renovated residential portion of the building. The entrance is located in the center of the building, and half of the building is used as a tenant (community space) and the other half as a residence (model house), with the earthen floor dividing the two spaces. Each space is intended to be a rhythmical spatial experience, with the earthen floor passing through a low-ceilinged area to reach a large, vaulted space at both ends. At the same time, we designed the new part of the house to harmonize with the existing rough beams by using plywood with strong grain, large furniture, and wide wood flooring to harmonize with the 30-cm log beams.
▼两端挑高空间,Vaulted space at the end


▼低顶过渡空间,Low-ceiling transitional zone

▼楼梯,Staircase


▼二层1号房,2nd floor room 1

▼二层2号房,2nd floor room 2

内部框架 Inner frame
由于原有的柱子预期不足以承载重量,我们浇筑了新的坚固混凝土基础,并在现有的柱子和梁旁安装了新的柱子,使用牵引技术倾斜了这些梁。通过在使用现有柱子和梁的同时进行加固,建筑的抗震性达到了现行法规的标准。
Since the existing columns were not expected to be strong enough, a new solid concrete foundation was poured, and new columns were installed alongside the existing columns and beams, which were tilted using towing technique. By reinforcing the existing columns and beams while using them, the earthquake resistance of the building is equivalent to that of the current regulations.
▼室内细部,Interior detail


▼夜晚社区零售空间,Community retail area night view

▼夜晚起居室内,Living room night view

▼夜晚厨房与用餐区,Kitchen and dining area night view

▼夜晚室内一角,A corner of interior at night


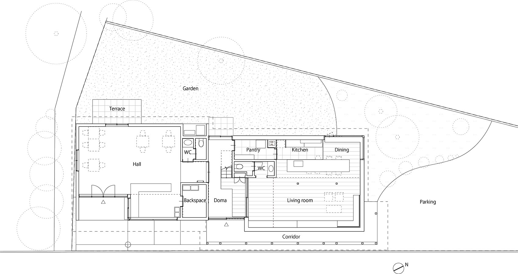
▼一层平面图,1st floor plan

▼二层平面图,2nd floor plan















