Kunst-As艺术校园,比利时 / FELT + Oskar Architecten
Kunst-As艺术校园锚定了Asse市中心不断壮大的文化机构群。其L形体量围合受保护的小教堂,并完成了城市街区的界面。在外侧转角处,建筑通过小尺度退让形成前广场,标识公共入口,并将街道与复兴后的回廊花园连接起来。自此,一条带顶棚的廊道引导访客沿绿色内院通往毗邻的图书馆与文化中心。通过这一方式,项目重塑历史遗产,打开原本封闭的街区,并将自身缝合进周边城市肌理之中。
The Arts Campus ‘Kunst-As’ anchors a growing cluster of cultural institutions in the centre of Asse. Its L-shape frames the protected chapel and completes the city block. On the outer corner, a small setback creates a forecourt that marks the public entrance and connects the street with the revived cloister garden. From here, a covered gallery leads visitors along the green interior towards the neighbouring library and cultural centre. In doing so, the project revives the heritage, opens up the formerly closed block and stitches itself into the surrounding urban fabric.
▼项目外观,Exterior view


建筑立面回应两种截然不同的城市语境。面向内院一侧,采用由方形预制混凝土构件构成的平静、开敞立面,为日常活动提供中性的背景;沿街一侧则节奏更为紧凑,色调转为温暖的粉彩色系,呼应周边建筑的色彩。贯穿两侧立面的是一套层叠式构造系统,包括深窗洞、方形大开口与细密而有节奏的分隔线条。混凝土、柔和陶瓷砖与优雅的蓝色框架共同构成校园的触感特征:结构坚实,色彩温润,比例表达清晰明确。
The façades respond to two very different contexts. Towards the inner court, a calm and open elevation of square prefab concrete elements sets a neutral backdrop for daily activity. Along the street, the rhythm tightens and the tone shifts to a warmer, pastel palette that picks up the colours of neighbouring buildings. Across both sides runs a layered system of deep reveals, large square openings and a fine rhythmic delineation. The combination of concrete, soft ceramic tiles and elegant blue framework gives the campus a tactile identity: robust in structure, gentle in colour and clearly articulated in its proportions.
▼内院立面,Courtyard facade

▼内院立面,Courtyard facade

▼沿街立面,Street facade

▼街角入口,Street corner entrance

▼街角入口近景,Street corner entrance close view


室内空间中,两条平行的交通动线自中央门厅分出,连接工作室、排练室与共享空间。通透的展示橱窗、展墙与宽阔的平台,使穿行于建筑中的流动转化为一系列可停留、观赏与展示作品的场所。
Inside, two parallel circulation routes branch out from the central foyer, connecting ateliers, rehearsal rooms and shared spaces. Transparent vitrines, exhibition walls and wide landings turn movement through the building into a sequence of places to linger, watch and show work.
▼室内交通空间,Circulation Space

▼走廊,Corridor

▼工作室与排练室,Ateliers and rehearsal rooms




▼入口廊道夜景,Entrance gallery night view

这是一座将多元使用者汇聚于同一屋檐下的建筑,同时以统一而自信的城市界面示人。它成为一片转型中的市民文化景观中的新基石。
This is a building that gathers multiple users under one roof, yet presents itself with a single, confident urban face. A new cornerstone for a civic landscape in transformation.
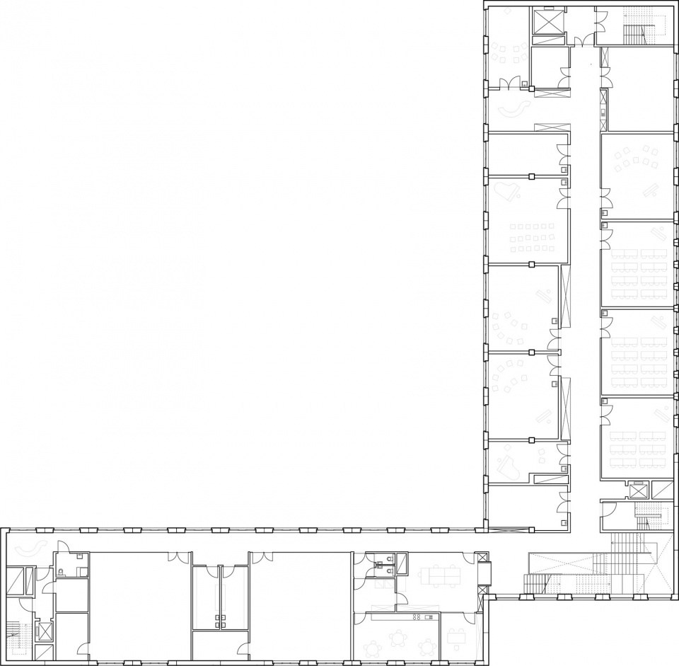
▼首层平面图,Ground floor plan

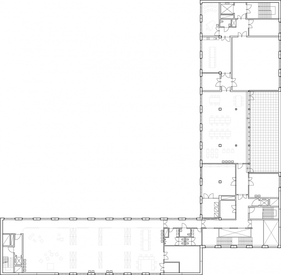
▼二层平面图,First floor plan

▼三层平面图,Second floor plan

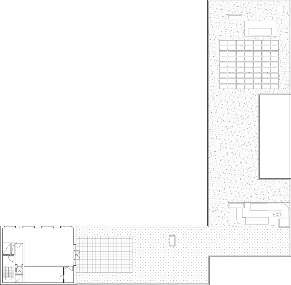
▼四层平面图,Third floor plan

▼剖面图,Sections


location: BE, Asse
client: Gemeente Asse
surface: 7688 sqm
status: built (2025)
images: FELT + Oskar Architecten
photos: Stijn Bollaert














