PADI休息区,印度尼西亚 / MIV Architects
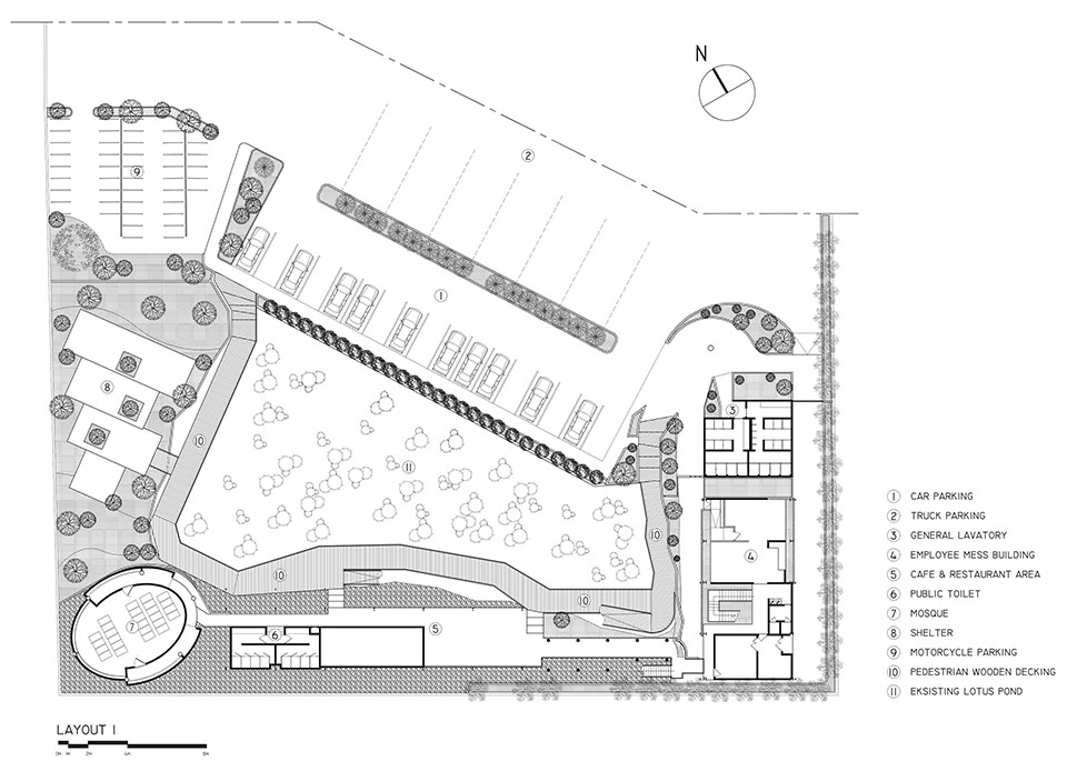
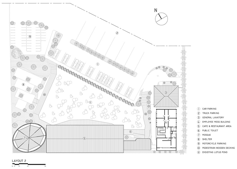
坐落于印度尼西亚南苏拉威西省(South Sulawesi)瓦焦县(Wajo Regency)阿纳巴努阿村(Anabanua Village)的稻田之中,PADI休息区(PADI Rest Area)将一处原本的工业取土坑转化为兼具建筑与生态功能的复合场所。该项目由MIV Architects设计,通过将交通服务功能与社区参与及环境修复相结合,重新定义了传统意义上的“休息区”。该场地最初是加油站的弃土填埋挖坑,随着时间推移逐渐积水,并生长出大片莲花。设计顺应并再利用这一现状,将原本的施工废弃场地转化为中央水体景观,围绕其组织四个主要建筑体量:公共卫生间、管理办公室、餐厅以及小型礼拜室(musholla)。建筑顺应池塘轮廓布局,促进自然穿堂通风,同时在视觉与空间上强化水体这一核心元素。
Situated within the rice fields of Anabanua Village, Wajo Regency, South Sulawesi, Indonesia, the PADI Rest Area transforms a former industrial excavation pit into a multi-functional architectural and ecological site. The project, developed by MIV Architects, redefines the traditional rest area by combining transit utility with community engagement and environmental restoration. The site originally functioned as a landfill excavation for a gas station, which, over time, filled with water and became overgrown with lotuses. The design repurposes this condition, converting construction waste into a central water feature around which the project’s four main building volumes, public toilets, a management office, a restaurant, and a musholla (prayer room), are organized. The buildings are arranged to follow the contours of the pond, facilitating natural cross-ventilation and creating a visual and spatial focus on the water element.
▼项目鸟瞰,aerial view of the project


沿池塘设置的漂浮式木栈道为访客营造了一段渐进式体验路径,使人们从跨苏拉威西公路(Trans-Sulawesi road)的高强度交通环境过渡至更加安静、沉思的氛围。两层高的管理楼既作为员工宿舍的遮挡界面,也构成视觉缓冲,在访客抵达餐厅之前延缓稻田景观的完整呈现,从而强化受控的空间序列与层层递进的视线组织。
A floating wooden decking path along the pond guides visitors through a transitional experience, shifting from the high activity of the Trans-Sulawesi road to a quieter, more contemplative environment. The two-story management building functions as both a screen for staff dormitories and a visual buffer, delaying the main view of the rice fields until visitors reach the restaurant, reinforcing a controlled spatial sequence and a layered approach to sightlines.
▼中央水体景观,a central water feature

▼与水体景观相结合,combined with the water feature


建筑语言借鉴了布吉族(Buginese)的传统居住形式,尤其是“Rumah Panggung”(高脚屋)的概念。抬高的楼板有效避免地面湿气侵蚀,宽大的屋顶为半开放空间提供遮蔽,将地方文化语汇与当代建造技术结合。外露钢结构、锌板屋面、天然石材与木构件的运用,在工业化效率与地方材料美学之间取得平衡。
The architectural language draws on vernacular Buginese traditions, particularly the concept of the ‘Rumah Panggung’ (stilt house). Elevated floor plates protect the buildings from ground moisture while wide roofs shelter semi-open spaces, combining cultural references with contemporary construction methods. Exposed steel structures, zinc roofing, natural stone, and wood elements integrate industrial efficiency with local material aesthetics.
▼抬高的楼板,Elevated floor plates


▼外露钢结构,Exposed steel structures

▼半开放空间,semi-open spaces


MIV Architects在项目中同样重视社会经济与社区参与。施工采用“自主管理”(swakelola)模式,使当地工匠承担主要建造责任。这种方式不仅降低成本、使投资在本地流通,也促进了技术知识的转移。当地劳动力还参与后续运营管理,强化社区对项目的归属感,并确保该设施作为共享资源持续发挥作用。
The project by design studio MIV Architects also prioritizes socio-economic and community engagement. Construction followed a self-management (swakelola) model, enabling local artisans to take primary responsibility for building execution. This method reduced costs, circulated investment locally, and facilitated technical knowledge transfer. The participation of local labor extended to operational staffing, reinforcing community ownership and ensuring the facility functions as a shared resource.
▼礼拜空间,the musholla


场地内部的流线组织鼓励人们在前往礼拜室之前经过咖啡与餐饮区域,在支持本地经济活动的同时,保持礼拜空间的完整性与庄重性。通过整合生态修复、地方建筑传统与社区参与,PADI休息区不仅是一处交通服务设施,更成为融合实用性、文化性与环境意识的公共节点。
Circulation throughout the site is designed to encourage interaction with the café and restaurant areas before reaching the musholla, supporting local economic activity while maintaining the integrity of the worship space. By integrating ecological restoration, vernacular references, and community involvement, PADI Rest Area operates as both a transit facility and a public hub, blending utility with cultural and environmental engagement.
▼咖啡与餐饮区域,the café and restaurant areas

▼咖啡与餐饮区域,the café and restaurant areas


▼一层平面,the ground floor plan

▼二层平面,the first floor plan

▼立面图,elevation


▼剖面图,section




Project Name: PADI Rest Area
Office Name: MIV Architects
Office Website: https://linktr.ee/MIV_Architects
Social Media Accounts: @miv.architects
Contact email: mivarchitects@gmail.com
Firm Location: https://goo.gl/maps/EXarHRwy1XgXhRxaA
Mutiara Indah Village Residences, DD. 15, Romang Polong, Somba Opu, Gowa City, South Sulawesi, Indonesia
Completion Year: 2024
Gross Built Area (m2/ ft2): 1100 m2
Project Location: https://maps.app.goo.gl/XVX6yCbzcUaioNxh7?g_st=aw
PADI Rest Area & Resto, Wajo Regency, South Sulawesi, Indonesia
Program / Use / Building Function: Commercial (rest area)
Lead Architects: M. Ikhsan Hamiru
Lead Architects e-mail:ichankikhsan@gmail.com
Photographer
Photo Credits: Agung Fadriansyah
Photographer’s Website: @agungfadriansyah (Instagram)
Photographer’s e-mail: agoenk.fadriansyah@gmail.com














