苏黎世Guggach住宅区,瑞士 / Donet Schäfer Reimer Architekten
松散组合的整体 A Loose Ensemble
建筑体量在简洁的同时精准表达,构成了一个松散组合的整体。在与周边环境的对话中,呈现出尺度与氛围的多样性,从而营造出城市性的条件。长期以来难以被识别为城市节点的Wehntalerstrasse与Hofwiesenstrasse交汇处,通过一个包含带幼儿园的住宅与商业开发项目(DOSCRE)、小学(Weyell Zipse)以及公园(Atelier Loidl)的混合功能整体得以重新界定。设计通过精确布置简洁体量,回应分散的城市语境。建筑面向Wehntalerstrasse定向,同时沿Hofwiesenstrasse打开空间,界定出新的邻里公园,为其提供噪声屏障,并将其连接至现有开放空间网络。住宅建筑的旋转布局在电车站对面形成空间拓宽,塑造出一个小型邻里广场及一系列特征鲜明的公共场所。高度的通透性取代了内向型庭院的类型。商业功能直接面向广场,建立起电车站旁充满活力的会面场所。灵活的首层空间连接公园与街道,使场地成为一个可达且清晰可读的城市场所。
▼城市模型 1:500(方案阶段),Urban model 1:500 (preliminary design)


Simply and precisely articulated buildings form a loosely composed ensemble. In dialogue with the surrounding context, a diversity of scales and atmospheres emerges, creating the conditions for urbanity. The intersection of Wehntalerstrasse and Hofwiesenstrasse—long difficult to read as an urban node—is redefined through a mixed-use ensemble comprising a residential and commercial development with kindergarten (DOSCRE), primary school (Weyell Zipse), and park (Atelier Loidl). The design responds to a dispersed urban condition with the precise placement of simple volumes. Oriented towards Wehntalerstrasse while opening space along Hofwiesenstrasse, the ensemble defines a new neighbourhood park, shields it from noise, and connects it to existing open-space networks. Rotating the residential buildings create a widening opposite the tram stop, forming a small neighbourhood square and a sequence of distinct public places. A high degree of porosity replaces introverted courtyard typologies. Commercial uses address the square directly, establishing a lively meeting point at the tram stop. Flexible ground floors connect park and street, reinforcing the site as an accessible and legible urban place.
▼重要城市节点,Important urban node

▼沿街视角,Street view

▼邻里广场界面,Neighbourhood square frontage

可负担与可持续不应彼此矛盾Affordable and sustainable construction should not be a contradiction
由紧凑而简洁的体量组成的整体,最大限度地减少了成本驱动因素,同时实现了丰富的功能与类型多样性。设计策略聚焦于以最少的经济与材料投入,实现强有力的空间与社会影响。项目由市政基金会“Einfach Wohnen!”委托,将可负担住房理解为一种社会责任。减少单位面积消耗是核心目标,但空间缩减意味着在功能、空间、气候与社会层面需具备更高性能。受伊塔洛·卡尔维诺“轻”的概念启发,项目在避免简陋的前提下拥抱简洁,使建筑品质从经济约束中生长,而非在其下崩塌。
An ensemble of compact, simple volumes minimises cost-driving factors while enabling a rich programmatic and typological diversity. Design strategies focus on achieving strong spatial and social impact with minimal economic and material means. Commissioned by the municipal foundation „Einfach Wohnen!“, the project understands affordable housing as a societal responsibility. Reducing floor area consumption is central—but reduced space demands higher performance in functional, spatial, climatic, and social terms. Inspired by Italo Calvino’s concept of “lightness,” the project embraces simplicity without austerity, allowing architectural quality to emerge from economic constraints rather than collapse under them.
▼共享入口平台,Shared entrance platform

▼公寓外立面,Apartment facade

理性的竖向叠加、紧凑的进深以及一致的结构体系实现了高效建造。尽管层高适度、住宅面积符合补贴住房的最小标准,空间的通透组织与精心比例控制的立面带来宽敞感。住宅内部组织中,卧室通过前室向立面延伸,使结构跨度高效。持续采用共用承重墙体系,选择了一种可快速且经济实施的结构类型。尽管理性严谨,住宅依然呈现出丰富的空间层次。即便层高与面积较为节制,依然感受开阔。经济性的建造构件构成克制背景,辅以有选择的强调与可被使用者再诠释的细部。低投资成本最终形成鲜明的建筑表达与高日常使用价值。屋顶露台、宽敞入口空间、共享门槛空间作为有限程度的集体“奢侈”惠及多数人,避免空间的冷漠感。建筑保持一种有意的未完成状态,以吸纳生活痕迹并鼓励使用者再诠释。
Rational stacking, compact building depths, and a consistent structural system enable efficient construction. Despite modest storey heights and minimum apartment sizes, spatial generosity is achieved via through-apartments, clear organisation, and carefully proportioned façades. The internal organisation of the apartments—with a bedroom extending towards the façade via an anteroom—enables efficient spans. This consistent use of party-wall construction selects a structural typology that can be realised quickly and cost-effectively. And yet, despite this rationality, the apartments achieve considerable spatial richness. Even with relatively modest storey heights and minimum sizes in accordance with housing subsidy requirements, they feel generous. Economical construction elements form a restrained background, complemented by selective accents and appropriation-friendly details. Low investment costs result in a distinctive architectural expression and high everyday usability. A limited degree of collective “luxury”—roof terraces, generous entrance spaces, shared thresholds—benefits many and counters the risk of bleakness. The architecture remains deliberately unfinished enough to absorb traces of life and invite appropriation.
▼公寓门厅,Apartment lobby

▼紧凑中的多重空间体验,Multiplicity within compact space


邻里与私密Neighbourhood and Privacy
设计在尊重私密性的同时,也坚信完全退回私人领域蕴含社会风险。回应不断变化的城市居住模式,项目提供差异化的住宅类型与多种共居形式。所有住宅均从公园延伸至街道,获得采光、视野与宁静。小户型围绕共享城市廊台布置,将外廊式交通重新诠释为自愿的社会空间而非强制性的通道。卧室始终朝向安静的公园一侧,起居空间保持灵活与通透。前庭、基座、廊道等精细界定的门槛空间,在私人与集体之间形成过渡。较大的住宅形成自身微型社区,通过外部露台与楼梯进入,鼓励非正式交流。庭院、冬季花园式厨房以及复式类型,为不同面积住宅提供空间丰富性与可适应性。噪声防护不被视为限制,而成为设计驱动力。通过城市布局、进深控制、立面分节以及分层交通空间,既实现安静的内部环境,又保持活跃的街道界面。所有住宅均拥有朝向公园的安静私人户外空间,在噪声环境中强化居住品质。
The design balances respect for privacy with the conviction that complete withdrawal into the private realm carries social risk. In response to changing patterns of urban living, the project offers a differentiated mix of housing types and forms of cohabitation. All apartments extend from park to street, benefiting from light, views, and tranquillity. Smaller units cluster around a shared urban loggia, reinterpreting the access gallery as a voluntary social space rather than an enforced one. Bedrooms consistently face the quiet park side, while living spaces remain flexible and permeable. Carefully articulated thresholds—forecourts, plinths, galleries—mediate between private and collective realms. Larger apartments form their own micro-communities, accessed via external terraces and staircases that encourage informal exchange. Patios, winter-garden kitchens, and maisonette typologies provide spatial richness and adaptability across all apartment sizes. Noise protection is treated not as a constraint but as a design driver. Urban placement, building depth, articulated façades, and layered access spaces create quiet interiors while maintaining active street fronts. All apartments offer quiet private outdoor spaces facing the park, reinforcing liveability in a noise-exposed urban location.
▼带前室的住宅入口,Apartment entrance with anteroom

▼流动的居住空间,Flowing residential layout



▼通透的起居区,Through-plan ventilated living area

整体与自主性Ensemble and Autonomy
整体秩序简洁,但通过与城市的对话生成复杂性。基座构件作为低门槛过渡空间,在建筑表达与公共生活之间发挥作用。从Hofwiesenstrasse望去,住宅建筑形成一对不对称体量,标示邻里之间的过渡。端立面成为面向城市的“面孔”,公园一侧立面界定安静空间边界。加大的石柱、色彩点缀、分节交通作为重复元素在整体中建立一致性,同时赋予每栋建筑自身身份。光伏系统被表达性地整合于立面与屋顶之中,并未隐藏,而是成为建筑语言的一部分。光伏构件同时作为能源发生器、遮阳装置与城市标识,形成一种罕见于标准化住宅或能源设施的场所界面。屋顶系统完善整体能源概念,提供大量现场发电,使后化石能源生产在日常生活中可被感知。
The ensemble’s underlying order is simple, yet its architectural articulation generates complexity through the dialogue with the city. Plinth elements operate as low-threshold transitional spaces, contributing both to the buildings’ expression and to public life. Viewed from Hofwiesenstrasse, the residential buildings form an asymmetrical pair marking the transition between neighbourhoods. Their end façades become “faces” to the city, while park-facing façades define a calm spatial edge. Recurring elements—oversized stone columns, colour accents, articulated circulation—create coherence across the ensemble while allowing each building its own identity. Photovoltaic systems are integrated expressively into façades and roofs, not concealed but made visible as part of the architectural language. PV elements serve simultaneously as energy generators, shading devices, and urban signifiers, contributing to a place-defining façade rarely associated with standardised housing or energy infrastructure. Roof-mounted systems complete the energy concept, supplying a significant share of on-site electricity and making post-fossil energy production perceptible in everyday life.
▼柱廊,Colonnade


▼厨房望向光伏遮阳,PV panels viewed from kitchen

大尺度需要小尺度The Large Scale Needs the Small
幼儿园作为整体一部分,却刻意保持独立。其为低矮单层木结构建筑,在公园与邻里之间形成过渡,同时以自身地址与形象确立公共属性。简洁木结构实现高效预制与清晰空间组织。富有趣味的建筑元素——放大的木柱、廊廓、瓷砖长椅与鲜明色彩——赋予建筑儿童般特质。室内自然材料与强烈色彩营造出坚固而愉悦的环境。户外空间组织为嵌入花园景观的分区游乐场所,提供安静活动、运动与亲近自然的探索机会。幼儿园因此成为社会锚点与城市整体中的重要场所。
The kindergarten is part of the ensemble yet deliberately distinct. As a low, single-storey timber building, it mediates between park and neighbourhood while asserting itself as a public building with its own address. Its simple timber construction allows efficient prefabrication and clear spatial organisation. Playful architectural elements—oversized timber columns, verandas, tiled benches, and vivid colours—lend the building a childlike character. Inside, natural materials and strong colour accents create a robust yet joyful environment. The outdoor space is organised into differentiated play zones embedded in a garden landscape, offering opportunities for quiet play, movement, and nature-based exploration. The kindergarten thus becomes both a social anchor and a formative place within the urban ensemble.
▼幼儿园作为过渡空间,Kindergarten as mediating space



▼面向门廊的幼儿园空间,Kindergarten rooms facing the loggia

场所与“之间空间”Place and In-Between Spaces
精确的城市布局创造出高功能密度的空间,同时保持通透与透明。公共、半公共与私密空间界定清晰,却流动衔接。通透的开放空间概念以邻里公园、遮荫广场及一系列中间空间取代狭窄街道,促进交流与社会互动。大冠幅乔木为铺装空间提供遮荫与气候舒适度。建筑布局既为公园隔离噪声,又使其参与城市生活。邻里广场、平台、自行车广场与公园作为关键集体空间以简洁材料与宽裕尺度界定,鼓励使用者再诠释。自然化溪流提升生物多样性,并在城市环境中提供罕见的亲水体验。绿色屋顶补偿硬化地面,改善微气候,滞留雨水并促进生物多样性。建筑与景观共同形成一个连贯的空间系统,在其中,可负担性、可持续性与城市品质彼此强化,而非相互矛盾。
The precise urban placement creates spaces of high functional density while maintaining permeability and transparency. Public, semi-public, and private realms are clearly distinguished yet fluidly connected. A porous open-space concept replaces narrow streets with a neighbourhood park, a shaded public square, and a sequence of intermediate spaces that foster encounter and social interaction. Large-canopy trees structure paved areas, providing shade and climatic comfort. The arrangement of buildings shields the park from noise while allowing it to participate in urban life. Key collective spaces—the neighbourhood square, terrace, bike plaza, and park—are defined by simple materials and generous proportions, inviting appropriation. A renaturalised stream enhances biodiversity and offers rare opportunities for playful interaction with water in an urban setting. Green roofs compensate for sealed surfaces, improve microclimate, retain rainwater, and contribute to biodiversity. Together, architecture and landscape form a coherent spatial system in which affordability, sustainability, and urban quality reinforce rather than contradict one another.
▼夜景,Night view

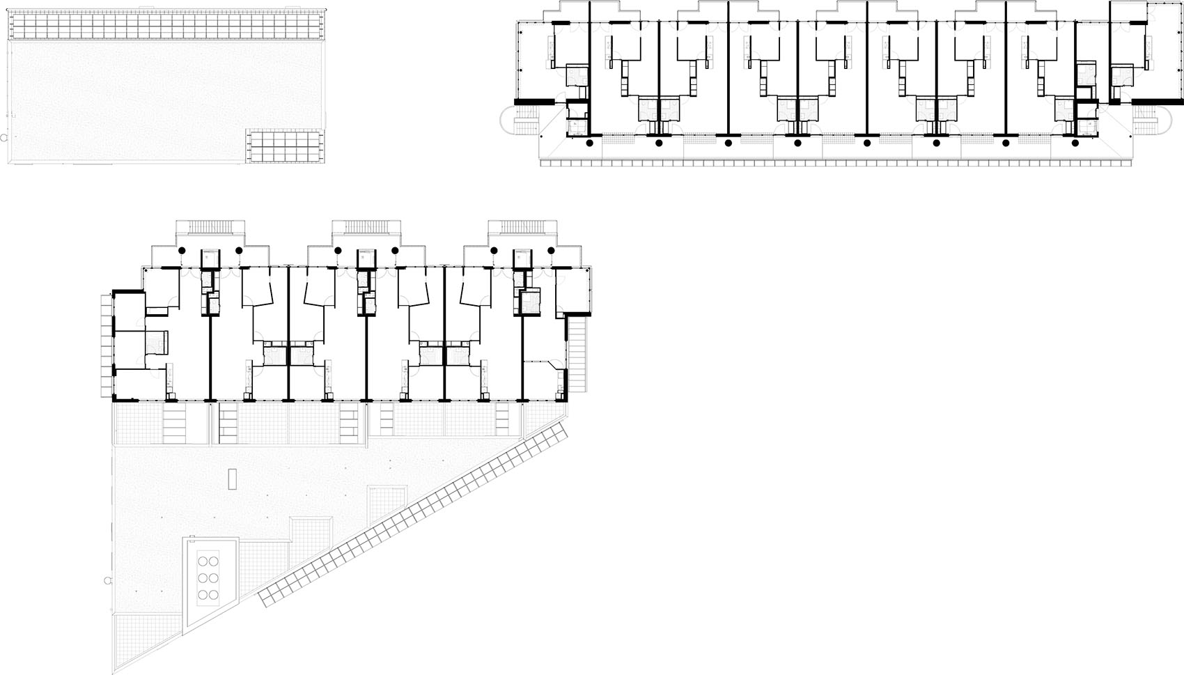
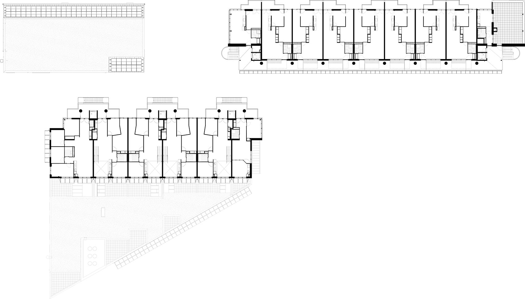
▼总平面图,Figure-ground plan

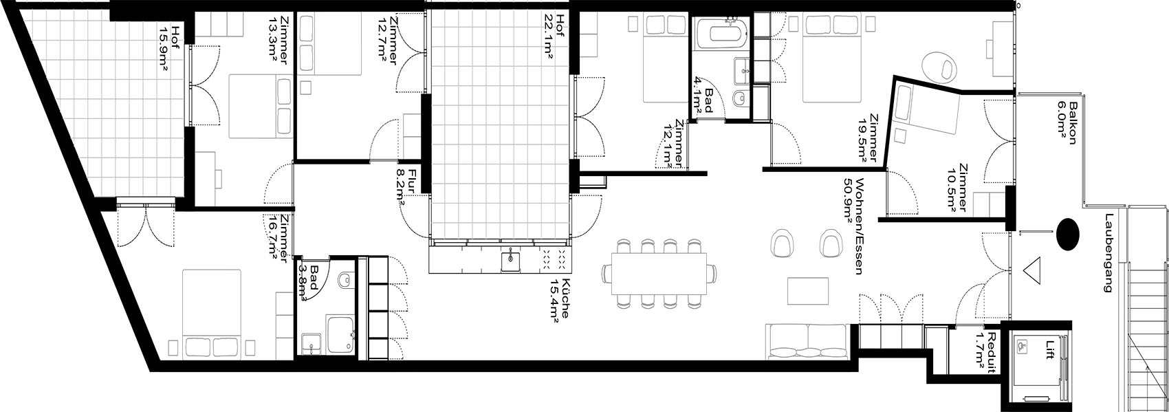
▼首层平面图,Ground floor plan

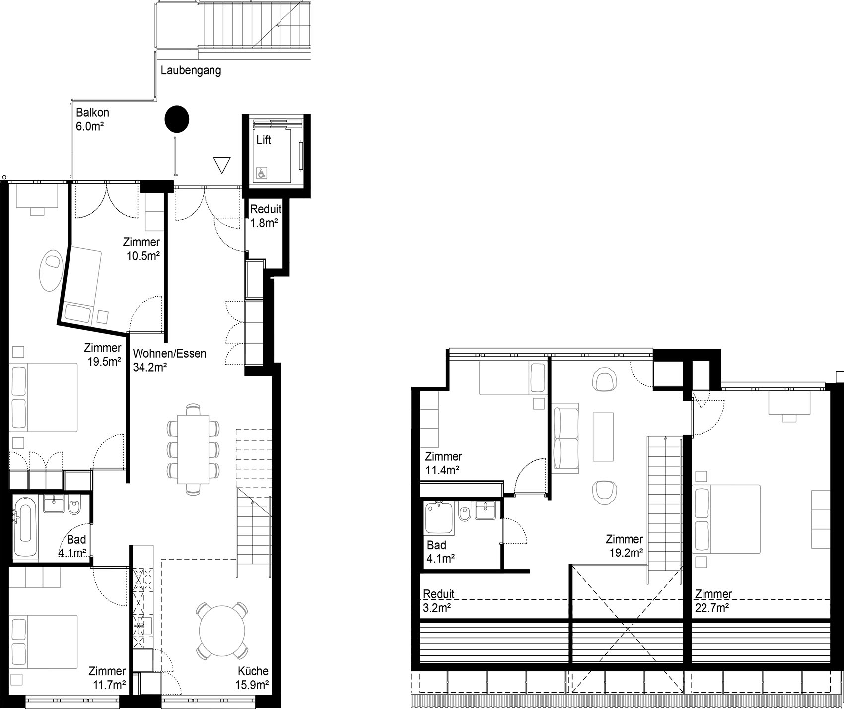
▼二层平面图,First floor plan

▼二至六层平面图,2nd–6th floor plan

▼七层平面图,7th floor plan

▼屋顶层平面图,Roof plan

▼地下层平面图,Basement plan

▼整体剖面图,Overall section

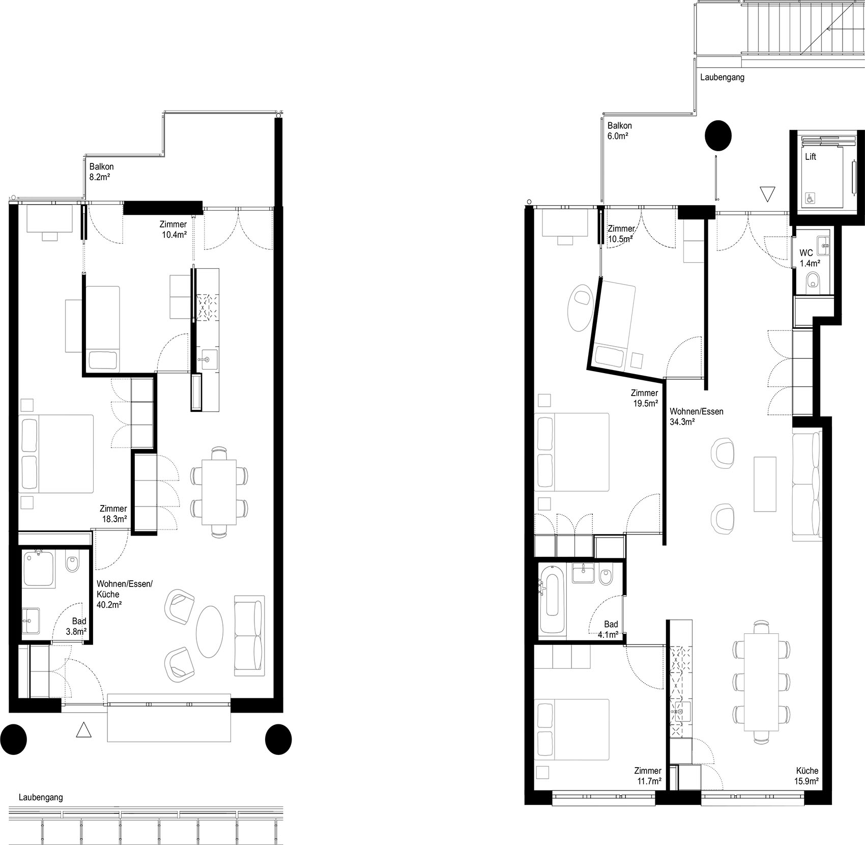
▼可租赁房间 / 单间公寓平面图,Rental room / studio plan

▼两居 / 两居半户型平面图,2- / 2.5-room apartment plan

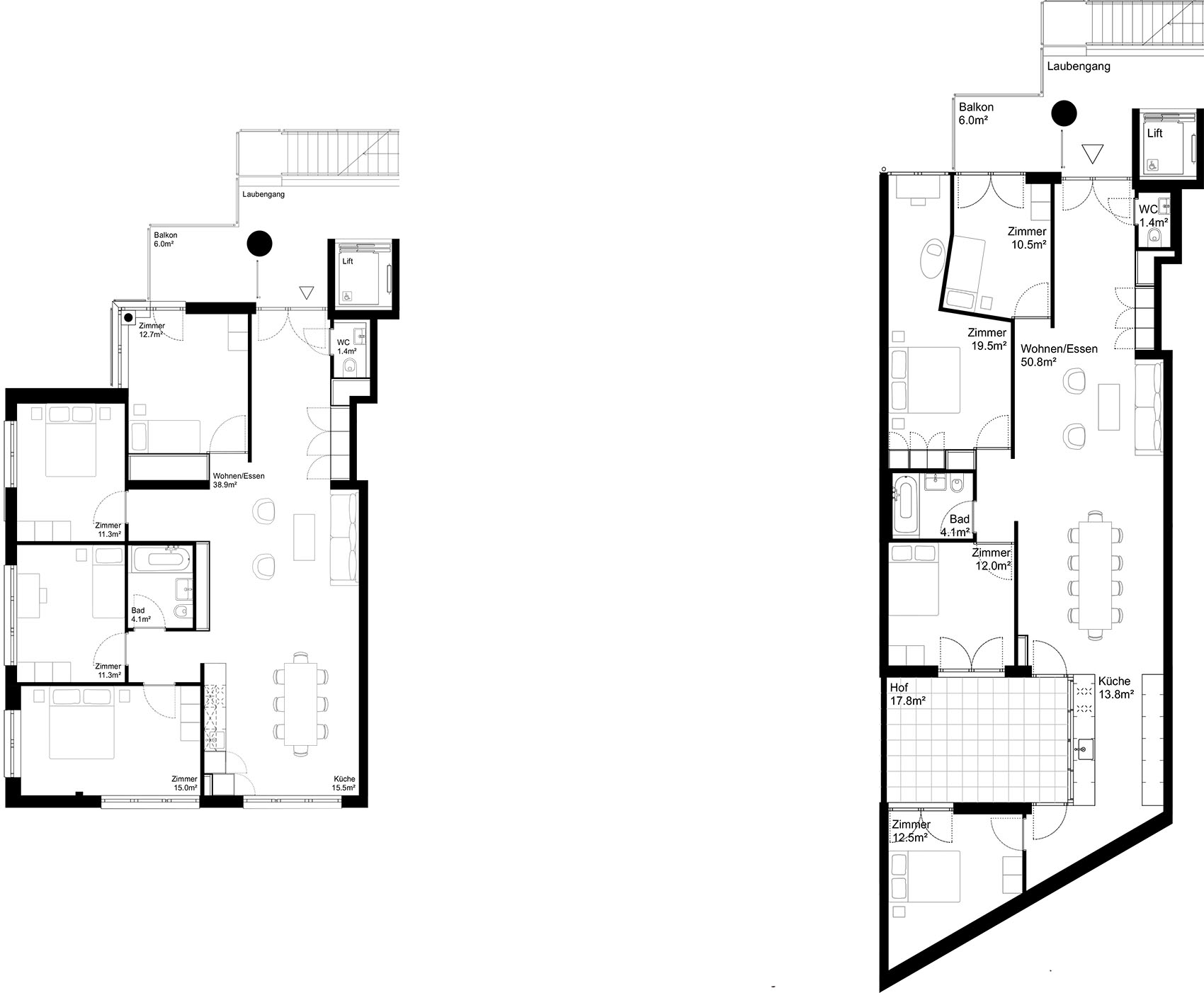
▼三居与四居户型平面图,3- and 4-room apartment plan

▼五居半户型平面图,5.5-room apartment plan

▼庭院式七居半户型平面图,Patio apartment 7.5 rooms plan

▼顶层七居半户型平面图,Attic apartment 7.5 rooms plan

▼A栋东南立面,House A southeast elevation

▼A栋西南 / 东北立面,House A southwest / northeast elevation

▼A栋西北立面,House A northwest elevation

▼B栋东北立面,House B northeast elevation

▼B栋东南立面,House B southeast elevation

▼B栋西南立面,House B southwest elevation

▼B栋西北立面,House B northwest elevation

▼幼儿园横剖面,Kindergarten cross section

▼幼儿园纵剖面,Kindergarten longitudinal section

▼幼儿园西南 / 东北立面,Kindergarten southwest / northeast elevation


▼幼儿园东南 / 西北立面,Kindergarten southeast / northwest elevation


Areal Guggach III
Planning and realisation of the SEW residential part, 2018–2024
Client: Stiftung Einfach Wohnen (SEW)
1st Prize, selective competition for the full site, including school and park, Zürich, 2018
In collaboration with Weyell Zipse Architekten and Atelier Loidl Landscape Architects
Clients: Stiftung Einfach Wohnen (SEW), Amt für Hochbauten Stadt Zürich und Grün Stadt Zürich
Swiss Architecture Yearbook 25/26 – Selected
Auszeichnung Guten Bauten, Stadt Zürich – Honorable Mention
Swiss Arc Award 2025 – Winner Housing
Team:
Donet Schäfer Reimer Architekten
HSSP
Atelier Loidl Landschaftsarchitekten Berlin
Dr. Lüchinger+Meyer Bauingenieure
Waldhauser + Hermann
BLM Haustechnik AG
IBG B. Graf AG Engineering
BAKUS Bauphysik & Akustik
Süss und Partner AG
planbar AG
Rombo GmbH – Räume Mobilität Zukunft
Basler & Hofmann AG
Büro für Nachhaltigkeit am Bau
Planungsbüro Jud














