海宁自然展示中心,浙江 / 森上建筑
1.项目概述Project overview
海宁自然展示中心是海宁国际花卉产业园区内部一座综合性的公共建筑,既可以作为园区组织农业展览的体验馆,也可承接产业对接活动等功能,可以成为周边未来发展的文化艺术中心。自然艺术展示中心作为举办各类产业活动、信息交流发布会及文化艺术展的交流场所,既是乡镇产业振兴成果展示的重要空间,也是田园艺术与生活文化的结合。
The Haining Nature Exhibition Center is a comprehensive public building within the Haining International Flower Industry Park. It can serve as an experience hall for organizing agricultural exhibitions in the park, as well as undertaking industrial docking activities and other functions. It can become a cultural and artistic center for the future development of the surrounding area. The Natural Art Exhibition Center, as a venue for various industrial activities, information exchange conferences, and cultural and artistic exhibitions, is not only an important space for showcasing the achievements of rural industrial revitalization, but also a combination of pastoral art and life culture.
▼外观概览,Overall of the project


▼外观,Exterior view

▼顶视图,Top view

2.回应自然Respond to nature
业主需求数个不同空间大小的多功能厅以应对不同类型与规模的活动,前期以租赁式为主的运营特征决定了其非常驻式展厅的状态。项目的建设用地较为紧张,特殊的供地属性使得建筑由几个方形的盒子紧凑聚拢而成。其内部非开放式与内向型的空间与周围的自然环境有着一定的阻隔,因此设计试图通过由内而外的方式,完成建筑空间和自然环境的相互渗透。不同形式的玻璃幕墙与采光井为这种形式创造了条件。
▼分析图,Analysis diagram

Client requires multiple multifunctional halls of different space sizes to accommodate various types and scales of activities. The initial operational characteristics, mainly based on leasing, determine the status of their non resident exhibition halls. The construction land for the project is relatively tight, and the special land supply attribute makes the building compact and composed of several square boxes. The non open and inward facing space inside has a certain barrier to the surrounding natural environment, so the design attempts to achieve mutual infiltration between the architectural space and the natural environment through an inside out approach. Different forms of glass curtain walls and lighting wells create conditions for this form.
▼外观近景,Closer view

▼庭院天井,Patio courtyard

▼景观视野,Landscape view

3.转化自然Transformation of nature
建筑的边界是设计关注的重点。主要交通系统围绕建筑边界生成,设计希望回应周边的种植基地与农田,创造更加开放、渗透与互动的流动性空间。建筑所蕴含的场所精神也通过当地田园游径的转译、光影表情的提取以及多样化的人文得以展露。
The boundary of the building is the focus of design attention. The main transportation system is generated around the boundaries of the building, and the design aims to respond to the surrounding planting bases and farmland, creating a more open, permeable, and interactive flow space.The spirit of the place contained in the architecture is also revealed through the translation of local rural paths, the extraction of light and shadow expressions, and the diversity of humanities.
▼场地鸟瞰,Aerial view

▼远景,Viewing the project at distance

▼自然展示中心与周边的农田,
The Natural Exhibition Center and the surrounding farmland

▼几何元素和色彩构成源于周边的自然环境,
The geometric elements and colors are derived from the surrounding natural environment

曲折的游线将外部田园游径的蜿蜒轨迹转化为建筑的交通区域,贯穿了展示中心的所有展厅并通向屋顶。
The winding routes transform the winding trajectory of the external rural paths into the transportation area of the building, running through all exhibition halls in the exhibition center and leading to the roof.
▼自然艺术游线,Nature Art Tour Route

▼立面近景,Closer view of the facade

▼花谷中庭的对望,The mutual gaze in the atrium of the flower garden

▼通道,Pathway

▼楼梯盘旋向上,The staircase


▼剖面-大面积的玻璃幕墙与入口的中庭造型使建筑的边界变得模糊,拉进室内外的关系,The large-scale glass curtain wall and the atrium design at the entrance make the boundary of the building ambiguous, bringing the indoor and outdoor spaces closer together

▼楼梯盘旋向上直至屋面并在行进中与外界环境互动,The staircase winds upwards until it reaches the roof and interacts with the surrounding environment during its ascent

▼花谷中庭的对望,The mutual gaze in the atrium of the flower garden

▼几何元素和色彩构成源于周边的自然环境,The geometric elements and colors are derived from the surrounding natural environment

几个展厅被设计成不同开放密度的容器,立面与屋顶开口的设计,不同季节与气候条件下的光影和田园通过丰富变化的方式引入内部空间,行进中的漫步流线与农田间劳作的农民产生有趣的对话。三角形铝板幕墙采用几何拼接的方式,营造出富有变化和层次感的图案效果,从而将产业文化转化为一种可见性的表达。令人反思自然与农业之于现代社会的重要性,感知生命与人造自然之间交互的力量。
▼剖面- 周边环境与阳光影响了建筑的开窗布局与造型,Section – The surrounding environment and sunlight have influenced the layout and design of the windows of the building

Several exhibition halls are designed as containers with different open densities, with facade and roof openings. The light and shadow of different seasons and climate conditions, as well as the countryside, are introduced into the interior space in a varied way. The walking flow lines create interesting conversations with farmers working in the fields. The triangular aluminum panel curtain wall adopts geometric splicing to create a varied and layered pattern. thereby transforming industrial culture into a visible expression. Reflecting on the importance of nature and agriculture in modern society, and perceiving the power of interaction between life and artificial nature.
▼一层-二层通高展厅:夕阳之光-环境色,First floor – second floor high-ceiling exhibition hall: Sunlight of the Sunset – Environmental Color

▼一层展厅:洞穴之光-漫反射与折射的光线渲染艺术,First Floor Exhibition Hall: Cave Light – Light Rendering Art of Diffuse Reflection and Refraction


▼三层展厅:彩虹之光,Three-story exhibition hall: Rainbow Light


▼四层展厅:光的隧道-天光通过墙体的瞬间,Fourth-floor exhibition hall: The Tunnel of Light – The moment when natural light passes through the walls

▼会议厅,Conference Hall

▼一层展厅,First Floor Exhibition Hall

▼交通流线:矩阵之光-延伸的动态,Traffic Flow Lines: Matrix of Light – Extended Dynamics


▼三层多功能展厅:漂浮的光,Three-story multi-functional exhibition hall: Floating Light

▼天光展墙的光影互动,The interactive light and shadow effect of the sky light projection wall


▼光的圆缺-花瓣造型的变幻,The Shape of Light – The Transformation of Petal Form

4.思考自然Thoughts on Nature
自然展示中心构建了自然生态与当代空间的对话,通过自然研学,农业科普与产业展览,成为开展自然环境教育与美育的创新载体,培养公众尤其是青少年的生态意识,增强周边社区居民在地认同与归属感,激发他们对于产业重要性的重新思考,以产业旅游为纽带,带动周边乡村特色产业发展,助力乡村振兴战略的实施,并通过自然艺术中心的使用重新审视自然环境之于我们的重要意义。
The Natural Exhibition Center has established a dialogue between natural ecology and contemporary space. Through natural research, agricultural science popularization, and industrial exhibitions, it has become an innovative carrier for carrying out natural environment education and aesthetic education, cultivating the ecological awareness of the public, especially young people, enhancing the local identity and sense of belonging of surrounding community residents, and inspiring them to rethink the importance of industries. With industrial tourism as a link, it drives the development of characteristic industries in surrounding rural areas, assists in the implementation of rural revitalization strategies, and re examines the important significance of the natural environment to us through the use of the Natural Art Center.
▼自然展示中心周边的农田耕作,Agricultural cultivation around the Natural Display Center


▼不同季节下的农业景观变化,The changes in agricultural landscapes during different seasons

▼为研学和活动打造的休闲区、会议厅、沙龙区,A leisure area, conference hall and salon area specially designed for study tours and activities



▼总平面图,site plan

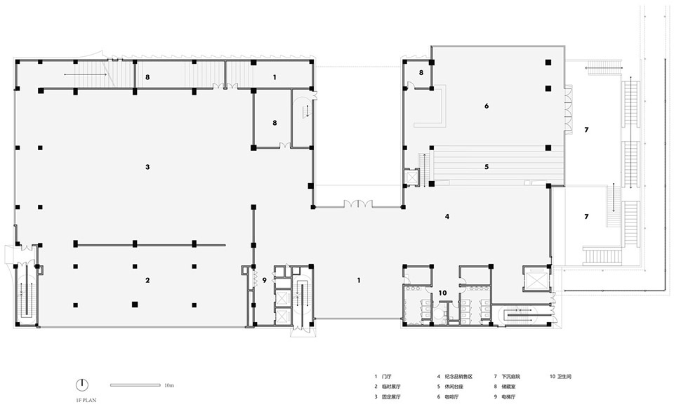
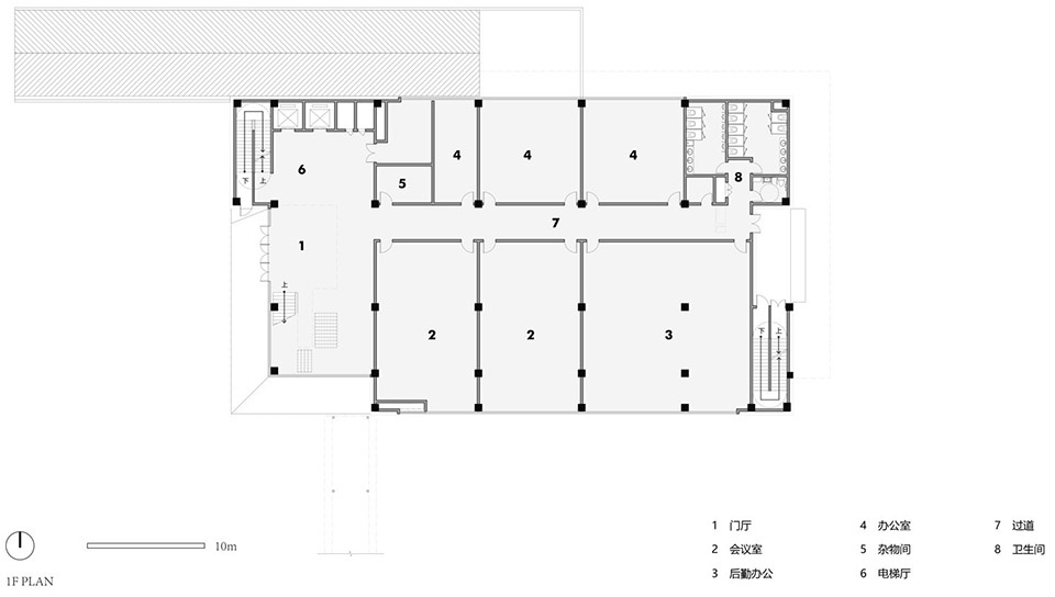
▼主馆一层平面图,1F plan of the main exhibition hall

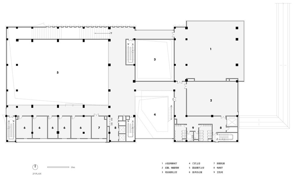
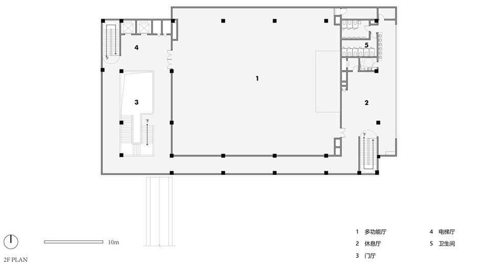
▼主馆二层平面图,2F plan of the main exhibition hall

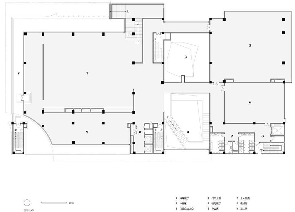
▼主馆三层平面图,3F plan of the main exhibition hall

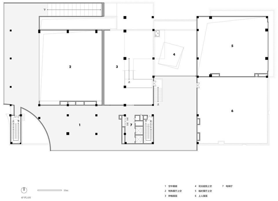
▼主馆四层平面图,4F plan of the main exhibition hall

▼副馆一层平面图,1F plan of the secondary exhibition hall

▼副馆二层平面图,2F plan of the secondary exhibition hall

▼主馆立面图,Elevations of the main exhibition hall


▼副馆立面图,Elevations of the secondary exhibition hall


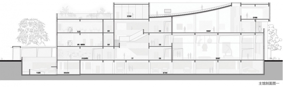
▼主馆剖面图,Sections of the main exhibition hall


▼副馆剖面图,Sections of the secondary exhibition hall

Project type:Collection of nature——Haining Natural Exhibition Center
Design: Sens Architects
Project type: Architectural design&interior design
Website: http://www.sens-arch.com/
Contact e-mail: senshang@qq.com
Design year: 2020.07
Completion Year: 2025.09
Leader designer : Zhang Juntian,Sun Hongfei,Wangxin
Professional advisor: Architecture-Wu Xiaofan,Structure-Su Qinjun,Equipment-Liu Jianpo, Parametric Design-Xu Weishun
Cooperative design institute:GMAID
Construction drawing design Institute:Hong Xiang Architectural design institute
Project location:Zhejiang ,Haining
Gross built area: 20000㎡
Photo credit: Wu Qingshan
Clients:Changhe Tourism Development Co. LTD
Materials: aluminium panel,stone,Glass curtain wall














