倒置的农舍,瑞典 / BARD YERSIN architects
本项目对一座典型的19世纪地区农舍进行了改造。该建筑原本在同一屋顶下整合了居住与农业功能。随着农业用途的消失,且建筑位于建筑区之外,在可允许的居住面积十分有限的情况下,这一体量异常庞大的建筑逐渐变得难以维护。在这样的背景下,业主提出的“居住+永续农业”的复合使用计划,为整个建筑的整体性再利用提供了难得的契机。
The project transforms a 19th-century farmhouse typical of the region, which brings together dwelling and agricultural functions beneath a single roof. Deprived of its farming use and located outside the building zone, this exceptionally large volume has become difficult to maintain given the limited habitable floor area permitted. In this context, the client’s mixed housing/permaculture program represents a rare opportunity for a coherent requalification of the whole.
▼建筑外景,Exterior of the building

▼原农舍结构下的半室外活动空间,
Covered semi-outdoor space beneath the original farmhouse roof



▼圆形拱门入口,Circular arch entrance



▼花园内洗手池,Washbasin in the garden

由于原有住宅部分仅为单层,其面积已无法满足业主的居住需求,项目因此对原有功能进行了“反转”:原本的农业空间被改造为新的住宅,而朝南的住宅部分则被完全腾空,改造为一座用于永续农业种植的温室。由于谷仓空间对于住宅功能而言仍显过大,设计策略在既有建筑围护结构内部设置了一个相对独立、向内退让的体量。由此形成的中间空间被用作种植区域或住宅的半室外遮蔽空间。
As the single-storey surface of the existing dwelling is insufficient for the owner’s needs, the project reverses the original uses: the former agricultural volume accommodates the new home, while the south-facing dwelling is completely emptied and converted into a greenhouse dedicated to permaculture. Since the barn space remains oversized for domestic requirements, the design strategy introduces a self-contained volume set back from the existing envelope. The resulting intermediate areas alternately serve planting zones and covered outdoor spaces for the house.
▼吊灯,Pendant light

▼回廊,Cloister



▼客厅空间,Livingroom

▼火炉,Fireplace

为了使新住宅在结构逻辑上与原建筑相衔接,其结构被设计为一个木结构网格体系,按照既有屋顶结构的模数进行布置,并辅以木材与玻璃构成的围护墙体。该系统既能有效承载屋顶荷载,又尽量减少新增体量在既有建筑中的“外来性”。
To anchor the new dwelling in the building’s constructive logic, it is conceived as a timber structural grid, set out on the module of the existing roof structure and complemented by timber and glass walls. This system efficiently transfers the roof loads while limiting the exogenous character of the inserted volume.
▼与花园连接的厨房,The kitchen connected to the garden



▼隐藏在推拉门后的洗手间,
Hidden restroom behind sliding doors

▼淋浴间,Shower room

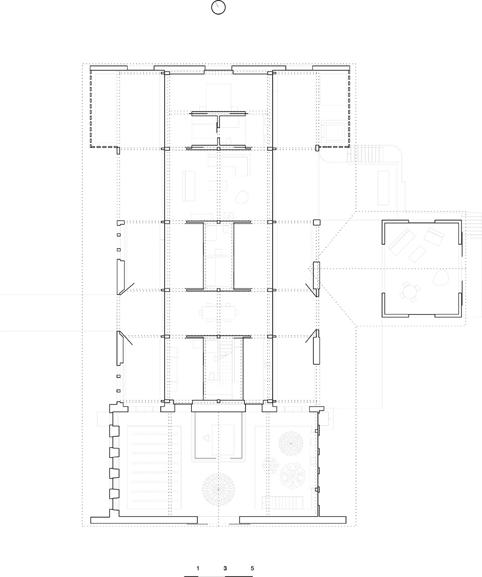
平面组织遵循原有结构的节奏:与旧干草阁楼对应的开间容纳主要空间,拥有通高空间与贯通的视线;而与旧马厩及储藏空间对应的部分,则通过陶土砖砌筑的核心体量进行分隔,内部设置服务功能空间。侧向的串联式空间序列连接各个房间,进一步强化了人们对建筑巨大尺度的感知。
The plan organization follows the rhythm of the original structure: the bays corresponding to former haylofts accommodate the main spaces, benefiting from double-height volumes and through spaces, while the segments aligned with the former stables and storage areas are subdivided by terracotta brick cores housing the service spaces. Lateral enfilades connect the different rooms, reinforcing the perception of the building’s exceptional dimensions.
▼大面积开窗引入充足自然光,Large openings introduce abundant natural light


▼总平面图,Master plan

▼平面图,Plan


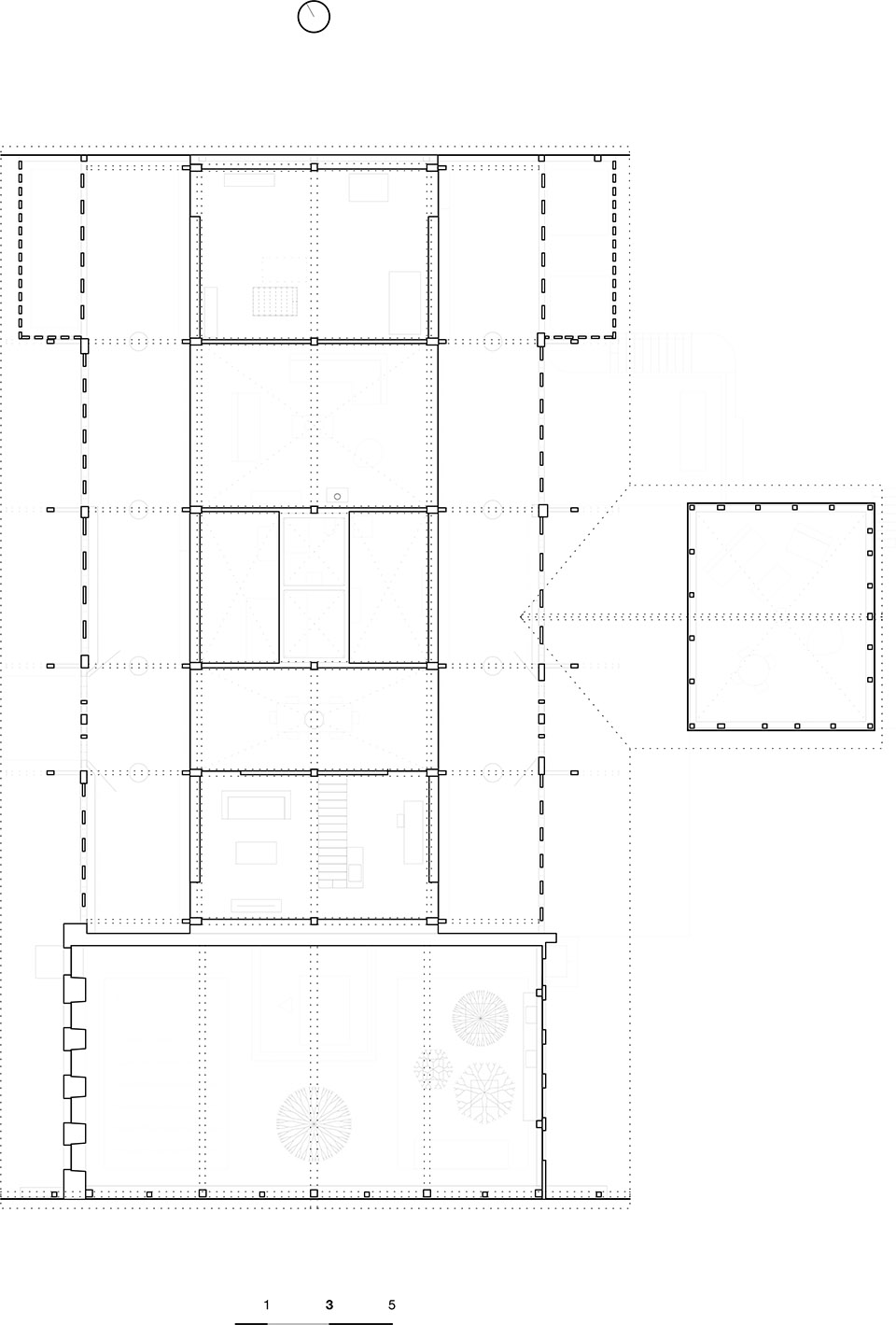
▼顶层平面图,Roof plan

▼立面图,Elevation

▼剖面图,Section















