My Front Yard零售社区,泰国 / Architectkidd
“My Front Yard” 是一个充分利用商业建筑中传统上被忽视空间的零售社区。通过优先考虑屋顶、露天流线和邻里规划,该项目摒弃了单一庞大的”大盒子”零售模式,转而采用分散式、低层展馆式建筑,激发人们的探索欲和好奇心。
“My Front Yard” is a retail community that utilizes space that is traditionally neglected in commercial architecture. By prioritizing roof tops, open-air circulation and neighborhood planning, the project avoids the monolithic “big box” retail approach for decentralized, low-rise pavilions that invite exploration and curiosity.
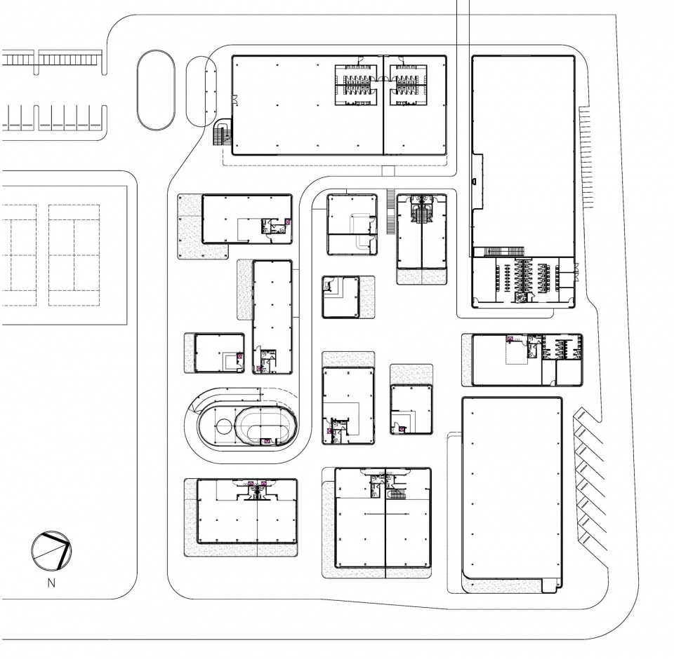
▼鸟瞰平面,Aerial view of the plan

该项目位于普吉岛一处山前坡地,其布局采用了非线性的建筑排布方式。通过将零售功能切分为更小的体块,Architectkidd 创造了一系列庭院和景观节点。地面层路径与架空步道相结合,引导使用者融入悠闲、宜人的步行环境。建筑间的空隙与巷道,以及绿色”小岛”的设置,也促进了自然通风,这对于热带气候而言是必不可少的。
Situated in front of a hillside in Phuket, the layout of My Front Yard utilizes a non-linear arrangement of buildings. By breaking the retail program into smaller blocks, Architectkidd created a series of courtyards and landscaped pockets. Ground-level paths along with an elevated bridge encourage users to adopt a leisurely and pedestrian environment. Voids and laneways between buildings and the inclusion of green “islands” also facilitate natural ventilation, a necessity for tropical climates.
▼零售体块,Retail building

黄色屋顶与路径 Yellow Rooftops and Pathways
一座架空步道作为项目的动脉,蜿蜒穿行于白色建筑之间,连接起各个零售区域与流线。屋顶通常是商业建筑中被忽视的空间——而在 My Front Yard,屋顶被重新构想为步道、平台和活动空间。这座黄色的步道与中性的白色建筑结构及周围的绿色景观形成了高对比度的对话。它同时提供了第二层的参与界面,让访客能够从多个视角体验这个社区”邻里”,同时为其下方的步道和巷道提供遮荫。
An elevated bridge serves as the project’s artery, weaving between white buildings to connect various retail zones and circulation. Roofs are often neglected spaces in commercial architecture – at My Front Yard, rooftops are reimagined as walkways, platforms and event spaces. The yellow bridge creates a high-contrast dialogue with the neutral white structures and the surrounding green landscape. The bridge also provides a second level of engagement, allowing visitors to experience the community “neighborhood” from multiple perspectives while offering shaded walkways and laneways below.
▼屋顶被重新构想,Rooftops are reimagined


▼高对比度的颜色,High-contrast color

▼绿色景观,Surrounding green landscape

零售单元被设计为简洁的白色体量,拥有圆润的边角和带遮阳设施的店面。这种柔化的几何形态营造出一种动感,并防止建筑给人造成压迫感。宽阔的白色墙面为醒目的图形标识提供了干净的背景,使得各个品牌的个性得以展现,而不会让场地显得杂乱。
The retail units are designed as clean, white volumes with rounded corners and shaded storefronts. This softened geometry creates a sense of movement and prevents the architecture from feeling imposing. Expansive white walls function as a clean backdrop for bold graphic signage, allowing individual brand identities to be expressed without cluttering the site.
▼黄色步道,Yellow walkway


▼屋顶平台,Rooftop platform



Architectkidd 对普吉岛 My Front Yard 项目的设计重点,是通过关注公共与私人区域之间的过渡,来创造有效的社交和公共空间。通过将整个场地视为一个”前院”,该建筑成为了社交互动的框架。在这里,日常的路径体验——走过步道、眺望山景、发现一家新的咖啡馆或餐馆——与零售目的地本身同等重要。
Architectkidd’s focus on the design of My Front Yard in Phuket is to create effective social and communal spaces by focusing on the transitions between public and private areas. By treating the entire site as a “front yard”, the architecture serves as a framework for social interaction, where every day journeys – the walk across the bridge, the view of the mountains, and the discovery of a new café or eatery – is as important as the retail destination itself.
▼夜览,Nightview


▼平面图,Plan

▼立面图,Elevation

Project: My Front Yard
Location: Phuket, Thailand
Program: Commercial & Retail Community
Building area: 5,000 square meters
Architect: Architectkidd














