TAM住宅,智利 / Iván Bravo Architects
TAM住宅是一次在不断“重写”中的住宅更新实践。项目对一栋此前已经历两次扩建和改造的房屋进行了整体翻新。介于新建与“重写本”(palimpsest)之间,设计在原有平面碎片的基础上延展出新的空间连续性,并将其与后期改造所形成的轴线交织在一起。
Casa Tam is one more iteration in a sequence of rewritings. It is a comprehensive renovation of a house already expanded and altered on two prior occasions. Somewhere between new construction and palimpsest, the project takes fragments of original layouts and extends them into new spatial continuities, intertwining them with axes from later interventions.
▼街景,street view

▼场地入口,entrance of the site

▼街景,street views


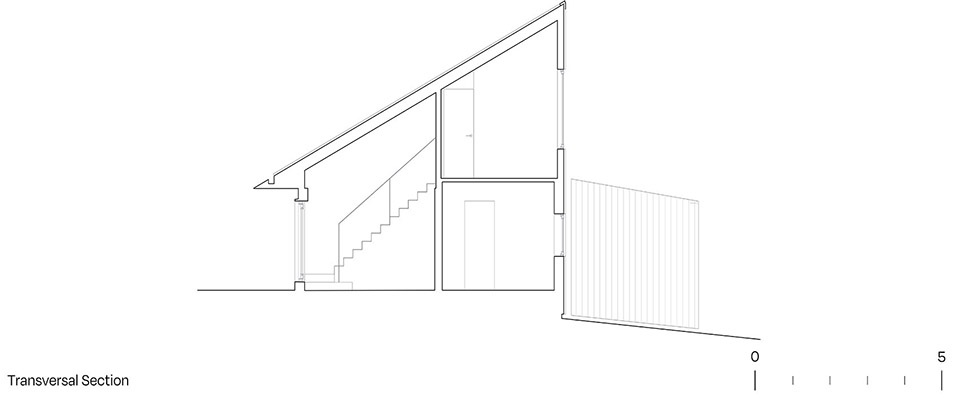
住宅位于安第斯山麓、圣地亚哥郊外。建筑抬起朝向街道的正立面,呈现出一种具有城市性的姿态,同时将背面转向群山。屋顶顺应前方的坡度向下倾斜,几乎延伸至地面,使后立面缩减为一条半埋入地面的细长界面,与花园形成紧密联系。
Located on the foothills of the Andes, on the outskirts of Santiago, the house raises its front façade—a gesture of urban character—while turning its back to the mountains. Its roof mirrors the slope it faces, descending nearly to meet the ground and reducing the rear elevation to a thin, semi-buried strip intimately connected to the garden.
▼立面,facade of the house


▼入口,entrance


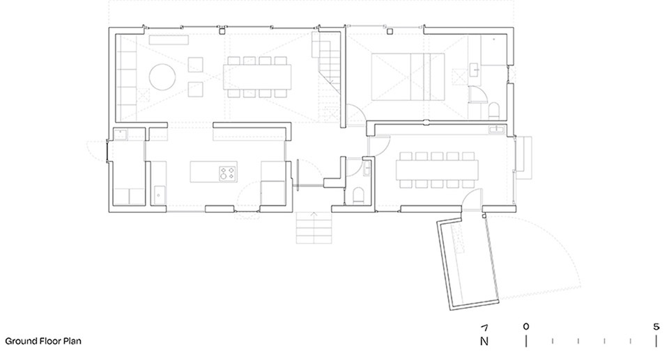
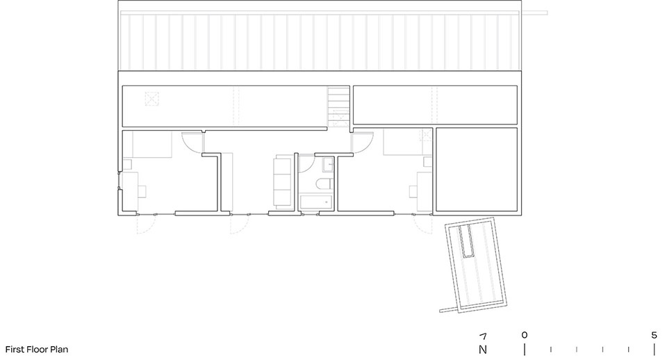
面向内部花园的开敞双层空间容纳了客厅与餐厅以及主卧;另一半朝向街道,布置厨房等服务空间以及屋主的陶艺工作室。二层设有两个儿童卧室,中间由一个共享的学习空间连接。
The open, double-height area facing the interior garden contains the living-dining room and the main bedroom. The other half, facing the street, accommodates service areas like the kitchen and the owner’s ceramics workshop. Upstairs, two children’s bedrooms are joined by a central shared studio.
▼花园与泳池,garden and pool

▼泳池,pool

在下层空间中,设计通过钢筋混凝土构件将房屋历史中不同阶段形成的多种结构体系整合在一起。上层则采用轻型结构,以避免对原本只为单层建筑设计的基础造成额外负担。
In the lower level, the intervention uses reinforced concrete elements that tie together the various construction systems layered across the house’s history. The upper floor is a lightweight construction to avoid overburdening the original foundations, designed for a single story.
▼屋顶采用轻型结构,the upper floor is a lightweight construction


住宅内部仍然保留着不同历史层次之间的对比:材料在各处表面发生变化,仅通过一层白色涂料加以统一。开口被切入内外墙体之中,显露出墙体原有的结构痕迹,坦率地呈现出改造的过程。与之相对,建筑外部整体包覆以立缝金属板,使体量呈现出一种单一材料、整体化的形象。室内展示时间叠加的痕迹,而外部则读作一个完整的整体。
The contrast between the different layers of the house’s past remains visible in its interior. Shifts in material appear on surfaces, unified only by a coat of white paint. Openings—cut through interior and exterior walls—reveal their original wall past, embracing the honesty of the intervention. Outside, the entire house is clad in a standing seam metal skin. While the interior exposes the layering of time, the exterior reads as a monolithic, single-material volume.
▼玄关,entrance

▼双层通高的生活空间,double-height living space

▼保留的混凝土横梁,the reserved concrete beams


▼厨房入口,entrance of the kitchen

▼厨房,kitchen


▼工作室,studio


▼陶艺工作室,the ceramic studio


▼展架,the display shelves

▼细部,details


在主立面前方,唯一完全新增的体量是窑房。它以木材覆面并刷成白色,成为这次最新改造的标志——既是空间形态上的表达,也是这座住宅再次“重写”的功能性印记。
In front of the main façade, the only entirely new addition emerges: the kiln room. Clad in wood and painted white, it stands as the signature of this most recent reinvention—a plastic and programmatic trace of the latest rewriting of this home.
▼窑房, the kiln room


▼夜景,night view

▼场地平面图,site plan

▼底层平面图,ground floor plan

▼二层平面图,first floor plan

▼屋顶平面图,roof plan

▼立面图,elevations




▼剖面图,sections


Location: El Arrayán, Chile
Project: 2023
Completion: 2025
Plot surface: 1850 sqm
Built surface: 174 sqm
Programme: Single-family house
Architect Ivan: Bravo Architects
Associate architect: Martín Rojas Ortiz
Collaborator: Juan Oyarzún
Photography: BARO
IG: @comodoroo
WEB: http://www.ivanbravo.cl/














