利托米什尔之上瞭望塔,捷克 / atelier-r
利托米什尔是一座拥有鲜明“场所精神”的小城。其城堡与宫殿综合体于1999年被列入联合国教科文组织世界文化遗产名录。在捷克语境中,利托米什尔的建筑堪称罕见。它是将现代建筑与历史建筑相结合的典范,同时也展示了如何在历史城区中延续充满活力的生活。
Litomyšl is a small town with an unmistakable genius loci. Its castle and chateau complex were inscribed on the UNESCO World Cultural Heritage List in 1999. The architecture in Litomyšl is a true rarity in the Czech context. It is a model example of how to combine modern and historical architecture, and how to preserve a vibrant life even in a historic town center.
▼项目远景,Site overview



“旅途的目的地”(Destinations of Journeys)是利托米什尔市发起的一项长期项目。市政府邀请曾获捷克建筑奖的事务所设计一处位于城郊的景观设施,以激励市民与徒步者走向户外。城市西北边缘被选为最具吸引力的选址。在这里,徒步者可以尽览城市景观,包括主要地标。傍晚时分,西侧阳光为此处赋予一种近乎魔幻的光影效果。我们的目标是通过一座瞭望塔强化这一场所的魅力,使人们从全新的视角观赏这座城市。该结构的概念基于业主需求与预算限制而制定。我们达成共识:建筑应具备环境友好性,并且整体方案应具备可逆性,即未来可将场地恢复至原始状态。
Destinations of Journeys is a long-term project of the Litomyšl Town. The Town invited Czech Architecture Award-winning studios to design a suburban landscape element that would inspire Litomyšl residents and hikers to go outside. The northwest edge of Litomyšl was chosen as the most attractive location. A hiker can enjoy a full view of the townscape, including the main landmarks. In the evening, this spot is magically lit by the sun from the west. Our goal was to enhance the charm of this place with a watchtower, so people get to see the town from another perspective. The concept of the structure is based on the investor’s requirements and a financial limit. We agreed that the structure should be environmentally considerate and that the overall solution should be reversible, meaning the site could be returned to its original form in the future.
▼建筑与自然,Architecture and nature


▼位于城市西北边缘的观景塔,远眺利托米什尔全景,
Lookout tower on the northwest edge overlooking Litomyšl



本项目的理念在于创造一件既非传统又能映射时代特征的作品。我们关注全球化带来的影响——它在简化诸多事物的同时削弱了独特性;关注交通——人类大部分活动赖以运转的基础;以及生态——我们试图通过生态手段在前两者之间取得平衡,并寻找更为环保的替代路径。工作室将重点放在诸如在新语境中再利用既有物件等替代策略上。
The philosophy of our project is to create a work that is unconventional while reflecting the phenomena of our time. We consider the influences of globalization, which simplifies many things at the cost of uniqueness; transportation, on which most human activity depends; and ecology, through which we attempt to balance the first two phenomena and look for eco-friendly alternatives. Our studio focused on alternatives such as reusing existing objects in a new context.
▼多层观景平台提供不同高度的视角体验,
Multi-level viewing platforms offering varied vantage points


▼建筑入口,Entrance of the building

集装箱恰好契合上述所有条件。它在全球范围内流转,承担货物运输功能。通过再利用旧集装箱,我们能够节约自然资源与能源。将一个20英尺长的集装箱熔炼为新的原材料,最多需要消耗8兆瓦时的能量。瞭望塔的基础采用钢筋混凝土底座结构。在竖向集装箱下方,设置了一块呈台阶状的厚重基础板。
A shipping container ticks all the boxes mentioned above. It travels around the world, transporting goods. By reusing old containers, we can save natural resources and energy sources. Melting down a 20-foot-long shipping container to obtain new raw materials consumes up to 8MWh of energy. The foundations of the lookout tower are reinforced concrete base structures. Beneath the vertical container, a massive footing in the form of a stepped slab was created.
▼切割后的水平集装箱悬挑于竖向体之上,
Cut horizontal container cantilevered atop the vertical volume

▼钢结构加固系统连接两组集装箱,
Reinforcing steel structure connecting the container units

建筑的承重结构由一对相互连接的45英尺PW集装箱组成。其基本尺寸为:长度13,715毫米,宽度2,550毫米,高度2,633毫米。集装箱为购置的报废单元,并通过由封闭型钢构件组成的加固钢结构进行连接。竖向集装箱的稳定性由内部嵌入的钢结构加以保证,该结构同时支撑内部钢制楼梯。水平布置的集装箱通过沿与道路轨迹平行的平面切割其面向路径的一侧进行改造。较短的一段被固定在竖向集装箱顶部,从而增加整体高度。
The supporting structure of the building consists of a pair of interconnected 45 ft PW shipping containers. The basic dimensions of the containers are: length 13,715 mm, width 2,550 mm, height 2,633 mm. The containers were purchased as discarded units. They are interconnected by a reinforcing steel structure made of closed steel profiles. The stability of the vertical container is ensured by an inserted steel structure, which also supports the inserted steel staircase. The horizontal container is modified by cutting the side facing the path along a plane parallel to the trajectory of the road. The shorter part is then anchored to the top of the vertical container, thereby increasing its height.
▼嵌入式钢楼梯贯穿内部空间,
Inserted steel staircase within the container structure

▼项目鸟瞰,Aerial view of the project


▼傍晚时分观景塔与城市景观形成对话,
Tower engaging with the townscape in evening light

楼梯由沿周边布置的钢板折制梯梁构成,其间嵌入由钢格栅制成的踏步与平台。最终通向一个多层观景平台。不同高度与层级的观景面使得四周景观皆可观览,并兼具停留与休憩的功能。这些集装箱采用耐候钢COR-TEN制造。为保持其真实性,集装箱保留原有表面状态,未进行特别清洗或涂装,仅对新增的加固结构施加防护涂层。避雷针由奥洛穆茨雕塑家简·多斯塔尔创作,作为一件名为“米卡多”(Mikado)的艺术作品进行设计与制作。
The staircase consists of perimeter steel stringers made of sheet metal, between which we inserted steps and landings made of grating. It ends with a multi-level viewing platform. The different heights and levels of the platforms allow views in all directions and provide seating. The shipping containers are made of COR-TEN – corrosion-resistant steel. To preserve authenticity, the containers were left in their original surface finish. They were not specially cleaned or painted. Coatings were applied only to the newly added reinforcing structures. The lightning conductor was designed and created by the Olomouc sculptor Jan Dostál as an artwork titled Mikado.
▼人与建筑,Human and architecture


▼在瞭望塔上眺望远方,Looking out from the tower

▼项目区位图,Site plan

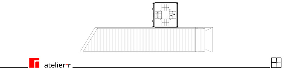
▼一层平面图,First level floor plan

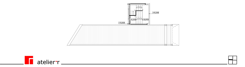
▼楼梯与看台平面图,Floor plan of the staircase and viewpoint


▼剖面图,Section


▼北立面图,Elevation north

▼南立面图,Elevation south

▼东立面图,Elevation east

▼西立面图,Elevation west

Studio: atelier-r
Author: Miroslav Pospíšil
Contact E-mail: atelier-r@atelier-r.cz
Website:www.atelier-r.cz
Social media:www.instagram.com/atelier.r.olomouc
www.facebook.com/atelier.r.olomouc
Studio address: tř. Spojenců 748/20, 779 00 Olomouc, Czech Republic
Co-author: Martin Karlík
Project location: výhledNa, Litomyšl
49.8818153N, 16.3077514E
Project country: Czech Republic
Project year:2022-23
Completion year:2025
Built-up area:37,5 m²
Gross floor area:57,5 m²
Usable floor area:53,5 m²
Plot size:119 m²
Dimensions:length × width: 13,6 × 5,1m
height: 15,25 m [above ground]
Cost:61 500 €
Client:Town of Litomyšl
Client’s e-mail:antonin.dokoupil@litomysl.cz
Client’s website:www.litomysl.cz
Photographer:BoysPlayNice, www.boysplaynice.com, info@boysplaynice.com
Collaborators and suppliers: Statics: LOstade CZ, www.lostade.cz
Lightning calculation, earthing: Radim Blaťák
Mikado – lightning conductor system artwork: Jan Dostál, www.jandostal.com
Main contractor: Zámečnictví Sloupský
Mikado artwork realization: DOSTAL SCULPTURE [Jan Dostál], www.jandostal.com














