阿利坎特多功能体育馆扩建,西班牙 / Estudio Úbeda Valero
建筑介入包括通过占用现有壁球场中的第二个空间,对一座多功能体育建筑进行扩建,从而完成由原有混凝土墙体所界定的H形几何结构。项目对这一既有结构进行修复与强化,在新建部分中采用相同材料,以确保建筑的一体化与连续性,同时保留其记忆。
▼模型,Model

The intervention consists of the extension of a multipurpose sports building by occupying the second of the existing squash courts, completing the H-shaped geometry defined by the original concrete walls. The project recovers and enhances this pre-existing structure, using the same material in the new construction to ensure architectural integration and continuity, while preserving its memory.
▼外观概览,Exterior overview


新空间朝向远处的阿利坎特农田景观展开,建立与周边环境的视觉联系。南立面被设计为一个深邃的包裹界面,用以过滤直接日照,在底层形成门廊,在一层形成露台,从而将室内空间向外延伸,并强化与环境及景观之间的关系。扩建设计引入了一个新的主入口和一个中央中庭,用以组织到达、流线以及新旧空间之间的连接,同时也提供自然采光与通风。中庭营造出一种温和的空间氛围,并作为一个参照性元素,提升空间的导向性、可达性以及整体使用体验。
▼轴测分析图,Axonometric diagram

The new spaces open toward the distant landscape of the Alicante huerta, establishing a visual connection with the surroundings. The south façade is conceived as a deep envelope that filters direct solar radiation, creating a porch at ground level and a terrace on the first floor, which extend the interior spaces outward and reinforce the relationship with the environment and the landscape. The extension introduces a new main entrance and a central atrium that organizes arrival, circulation, and the connection between the existing and new spaces, while also providing natural lighting and ventilation. The atrium creates a tempered atmosphere and acts as a reference element, improving orientation, accessibility, and the overall user experience.
▼外观近景,Exterior close view



▼檐廊,Veranda

▼楼梯,Staircase

▼入口,Entrance

▼室内空间概览,Interior overview






▼走廊细部,Corridor detail


▼室内一角,A corner of interior


该项目在扩展既有设施功能容量的同时,重新界定了整体建筑的性格及其与周边环境的关系,旨在将一个原本碎片化的整体转变为一种与语境相连的整合性当代建筑。
The project expands the functional capacity of the existing facilities while redefining the character of the complex and its relationship with its surroundings, seeking to transform a previously fragmented ensemble into an integrative and contemporary architecture connected to its context.
▼夜景概览,Overall night view

▼檐廊夜景,Veranda night view

▼总平面图,Site plan

▼首层平面图,Ground floor plan

▼二层平面图,First floor plan

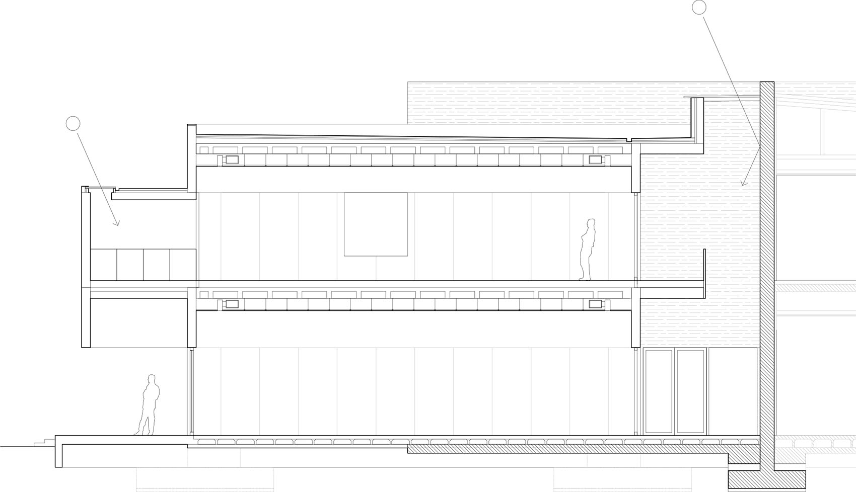
▼剖面图,Sections



Location: Alicante (Spain)
Architects: Estudio Úbeda Valero, Roque Carlos Valero
Client: C.A. Montemar
Address: Carlle Virgili, 25, 03016 Alicante, Alicante
Contractor: ENE Construcción
Area: 1,000 m²
Year: 2023–2025
Photography: Del Río Bani
Website: https://www.ubedavalero.com/


![场地[去]殖民的一系列实践探索,阿根廷 / EFEEME architects](https://www.iecwww.com/uploads/images/20260324002/20260324002001.jpg)











