京西学校音乐教室改造,北京 / Studio Vapore(蔚魄)
Studio Vapore(蔚魄)完成了京西学校音乐教室的改造项目。该项目作为校园整体更新计划的一部分,在既有建筑条件下,通过对空间、声学与色彩的重新组织,回应当代音乐教育中多样化的教学与学习方式。
▼轴测图,axonometric diagram

Beijing-based design office studio vapore has completed the renovation of the music classrooms at the Western Academy of Beijing. The project forms part of a broader campus upgrade and reworks existing spaces to support different modes of music education, from individual practice to group rehearsal.
▼项目概览,overall of the project

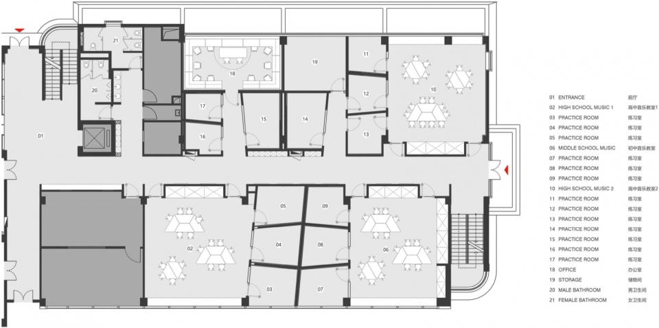
空间组织:连续的教学与练习体系 Layout and spatial organisation
音乐教室区域围绕一条共享走廊展开,形成清晰而连续的空间序列。每间教室对应一位教师,并配备多个相邻的练习室,构成“教学—练习”相互支撑的空间单元。
The department is organised as a sequence of classrooms connected by a shared corridor. Each classroom is assigned to a specific teacher and is paired with multiple adjacent practice rooms.
▼共享走廊,shared corridor

▼走廊一角,a corner of the corridor

主教室用于课堂教学、小组活动及合奏排练,练习室则为个体或小组提供更为专注的练习环境。两者之间通过玻璃界面相连,在保证视觉通透的同时,也使教师能够在不同空间之间进行有效管理,并支持多种教学活动同时进行。这一布局使教学、排练与个体练习能够在同一时间发生,在紧凑的空间中形成持续而高效的使用状态。
Classrooms accommodate teaching, group work, and ensemble rehearsals, while practice rooms support individual or small group practice. Glass partitions connect the two, maintaining visual continuity and enabling supervision while allowing simultaneous activities. This arrangement allows teaching, rehearsal, and individual practice to take place at the same time within a compact layout.
▼主教室,Classrooms




声音:在空间中流动的学习体验 Sound as a shared condition
声学设计贯穿整个项目。Studio Vapore 与声学顾问密切协作,将声学处理整合于墙面、顶面、地面及内置构件之中,以控制混响并减少空间之间的声音干扰。
Acoustic performance is a key parameter in the project. Developed in collaboration with acoustic engineers, treatments are integrated across walls, ceilings, floors, and built-in elements to manage reverberations and limit sound transfer between rooms.
▼玻璃界面,Glass partitions

与此同时,空间并未被完全隔离。声学控制被设定在一个适度的范围内,使声音能够在空间之间产生有限的渗透。行走于走廊之中,可以听到来自不同房间的乐器声与排练片段,使音乐从单一空间中被延展,成为贯穿整个区域的感知体验。
However, the spaces are not fully isolated. Sound insulation is calibrated to allow a controlled overlap of music across the department. Movement through the corridor is accompanied by the sound of instruments and rehearsals from adjacent rooms, extending the presence of music beyond individual spaces.
▼练习室,practice rooms



色彩:组织与能量的双重线索 Colour as an organising layer
色彩作为项目中的另一条组织线索,参与空间的识别与构建。三个主要教室分别以红、橙、黄为主色,对应不同年龄段的使用群体。在走廊中,这些色彩以高饱和度呈现在入口处,形成连续而清晰的空间节奏,同时为使用者提供直观的方向指引。音乐区域的入口同样通过色彩被强化,使其在整体建筑中具有明确的存在感。
Colour structures the department as a second layer. The three main classrooms are each assigned distinct tones — red, orange, and yellow — corresponding to different age groups. From the corridor, these colours mark each entrance, creating a clear sequence of thresholds and supporting orientations. The entrance to the music area is also defined by a saturated field of colour, extending this identity to the broader building.
▼主教室细部,classroom details

▼主教室一角,a corner of the classroom

进入教室内部,空间整体保持相对中性的基调,以适应多样化的教学需求。沿窗一侧引入一条明确的色彩带,将教室与其对应的练习室在视觉上建立联系。此类空间的照明均匀而稳定,满足日常教学使用。
Inside the classrooms, teaching areas remain largely neutral. A band of strong colour is introduced along the window side, linking each classroom to its associated practice rooms. Lighting in these spaces is even and consistent.
▼练习室细部,practice rooms details

与之形成对比的是练习室。空间被完整包裹于综合色彩之中,通过毛毡、织物及三维声学构件在不同色阶中的组合,形成连续且具有层次的界面。更为温暖的照明进一步强化了空间的专注氛围。
In contrast, the practice rooms are fully saturated. Each room develops its assigned colour through variations in tone and material. Felt panels, fabrics, and three-dimensional acoustic elements are produced in coordinated shades, while warmer lighting reinforces a more focused atmosphere for rehearsal.
▼毛毡、织物及三维声学构件,
Felt panels, fabrics, and three-dimensional acoustic elements



三维声学模块通过其设计与布置方式参与空间构成,在影响声音表现的同时,形成具有节奏感的视觉序列,使空间在感知上与音乐的结构产生呼应。
The three-dimensional acoustic tiles are designed and positioned to influence sound within the space, while their arrangement introduces a visual rhythm that references the structure of music.
▼夜景,night view


从中性空间到学科表达 A defined identity for the music department
本次改造将原本相对中性的教室转化为具有明确学科属性的学习空间。通过对空间布局、色彩系统与声学策略的整合,Studio Vapore(蔚魄)构建了一个既支持个体专注,也鼓励共享交流的音乐环境。空间不再仅作为教学的容器,而成为与音乐学习过程相互作用的一部分,在日常使用中持续传递其节奏与能量。
The renovation transforms previously neutral classrooms into spaces with a clear identity connected to music. Through the integration of layout, colour, and acoustic considerations, studio vapore organises the department to support both focused practice and shared learning.
▼平面,plan

项目技术信息
Techncial sheet
Project Name: Music Classrooms at The Western Academy of Beijing
Client: The Western Academy of Beijing
Location: Beijing, China
Scope: Interior Renovation
Program: Educational
Size: 700sqm
Designer: studio vapore
Design Director: Erica Borsa
Design Team: Erica Borsa, Yumi Zhang, Hongyu Yu, Martin Zhou
MEP: Yin Xueqin
Acoustic Engineering: Delhom Acoustics
Lighting Design & Consultant: Studio Vapore & Beijing Mostar Technology
General Contractor: Beijing Xiangyang Hongda Construction Co., Ltd.
Custom Furniture Contractor: LMFU Furniture
Photography: Vincent Wu & Shawn Koh














