Pirules住宅,墨西哥 / Escobedo Soliz
Pirules住宅是位于墨西哥圣米格尔德阿连德最古老社区之一,Valle del Maíz边缘的六栋住宅之一。场地地形陡峭,植被以本土树种为主,主要包括胡椒树、金合欢、豆科灌木以及仙人掌。该社区保留了其原始的城市结构布局:街道沿等高线平行展开,地块则顺应自然坡度呈纵向下倾。这种传统组织方式源于水利与农业的需求,使雨水径流得以被有效利用于灌溉。与近年来城市扩张中常见的封闭式社区形成对比,该项目的设计意在融入Valle del Maíz既有的空间与生活肌理。住宅在尺度与比例上延续周边地块特征,确保每一栋建筑都能直接面向街道,并与场地的形态、植被与地域特征建立一种克制而尊重的对话关系。
▼场地轴测图,Site axonometric diagram

Casa Pirules is one of six houses located on the edge of Valle del Maíz, one of the oldest neighborhoods in San Miguel de Allende (Mexico). The site has a steep topography and is populated by predominantly native trees and vegetation—mainly pepper trees, huizaches, mesquites and nopales. The neighborhood retains the original layout of its urban structure, with streets running parallel to the contour lines and plots that slope longitudinally down following the natural incline of the land. This traditional organization responded to hydraulic and agricultural criteria that allowed for the use of runoff for irrigation. In contrast to the new gated communities that characterize the city’s recent growth, the design seeks to integrate with the pre-existing dynamics of Valle del Maíz. The houses maintain the scale and proportion of the neighboring plots, ensuring that each one retains a direct connection to the street and establishes a respectful dialogue with the morphology, vegetation, and identity of the surroundings.
▼建筑正立面,Building front facade

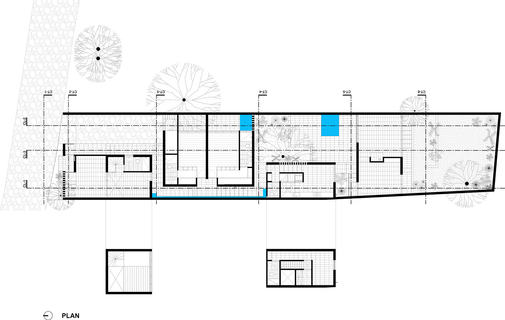
每栋住宅由四个体量构成,以容纳完整的建筑功能。从街道向后依次为:商铺体量、卧室体量、厨房及服务体量,以及起居与餐厅体量。六栋住宅在体量的尺寸与比例上保持一致,不同之处在于它们在各自地块中的具体位置,以适应既有树木的分布。体量之间的流线通过庭院、柱廊、楼梯与花园被串联起来,在行进过程中逐步展开。标高变化、不同的光照强度、水体元素与植被共同界定了室内与室外多样化的空间环境。
Each house comprises four volumes that accommodate the architectural program. From the street to the back, the spatial sequence is organized as follows: the shop volume, followed by the bedroom volume, the kitchen and service volume, and finally the living-dining room volume. In all six houses, the volumes maintain the same dimensions and proportions; what varies is their location within each lot, adapting to the position of the existing trees. Circulation between volumes is articulated through patios, porticoes, staircases, and gardens that are revealed along the way. Changes in height, varying light intensities, water features, and vegetation define the diverse interior and exterior environments of the house.
▼体量组合与庭院,Volumetric composition and Courtyards



▼庭院一角,A corner of courtyard space




▼檐下灰空间,Semi-outdoor space under the eaves


▼室内看向庭院,Interior viewing towards courtyard



砖被选作墙体的主要材料,因为其作为标准模数单元,便于调节空间高度与平台标高。同时,它也是墨西哥中部Bajío地区广泛使用的一种本地且经济的材料。每个体量的外墙被设计为更为厚重的围护结构,承担结构与技术功能:整合设备系统、提供声学与热工性能,并保护室内空间免受外部环境影响。
Brick was chosen as the ideal material for the walls, as it allows for modulating heights and platform levels using the brick as the standard unit. Furthermore, it is a local and economical material, widely used in the Bajío region, in central Mexico. The exterior walls of each pavilion are designed to be more robust, fulfilling structural and technical functions: housing facilities, providing acoustic and thermal insulation, and protecting the interior spaces from external conditions.
▼起居室,Living room

▼餐厅,Dining room


▼起居室与餐厅间的过渡空间,Transitional space between living room and dining room

▼厨房与楼梯,Kitchen and staircase

▼错层楼梯,Split-level staircase




▼卫生间,Bathroom

▼砖墙与自然采光,Brick wall and natural lighting


▼一层平面图,Ground floor plan

▼剖面图,Sections




Credits
Architecture: Escobedo Soliz (Pavel Escobedo, Andrés Soliz, Lorane Bellier, Joe McKenzie & Gabriel Angélico)
Construction: Juan Pablo Gónzalez de Cossio
Developer: Cuarto Piso (Francisco Septién & Rafael Urquiza)
Landscape: Matorral
Lighting fixture: Ciro López
Carpentry: La Metropolitana
Structure: Adalberto Estrada
Engineering Projects: Sergio Ayala














