GA住宅,意大利 / Archiplan Studio
采用预制混凝土建造、覆以白色金属板屋顶的建筑,延续了波河流域农业景观的传统,该地区历史上以由简单欧几里得几何形体构成的基础体量为特征。
The prefabricated concrete building with a white sheet metal roof renews the tradition of the Po Valley agricultural landscape, historically characterized by the presence of elementary volumes defined by simple Euclidean geometries.
▼住宅外观,building exterior

▼住宅外观近景,building exterior close view


▼建筑立面近景,building facade close view


建筑粗粝而具物质感的外表,与温暖且简洁的室内空间形成对比。日常生活的仪式性空间与外部环境建立起亲密而精准的关系,并沿一条视觉轴线进行组织,该轴线同时作为一条路径,将起居空间的内部庭院与主卧相连接。
The building’s harsh, material surface contrasts with a cozy and simple interior space. The ritual spaces of domestic life establish intimate and precise relationships with the outside and are organized along a visual axis, which also serves as a path, connecting the internal patio of the living area to the master bedroom.
▼建筑立面细部,building facade close view

▼庭院,courtyard

▼室内看向庭院,viewing towards courtyard from interior

▼室内起居空间,living space


▼餐厨空间,kitchen dining area

▼餐厨空间一角,a corner of kitchen dining area


▼卧室,Bedroom

▼卫生间,Bathroom



▼过道,corridor

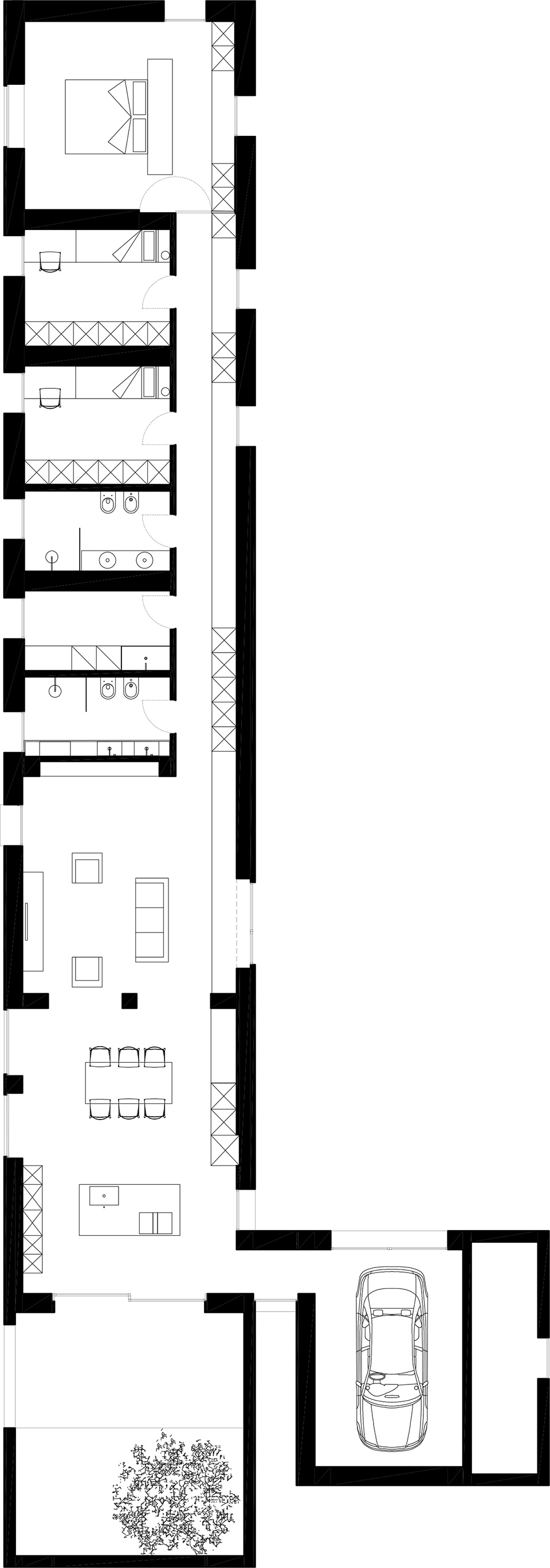
▼平面图,floor plan

▼入口书架平面与立面,entrance bookshelf plan and elevation


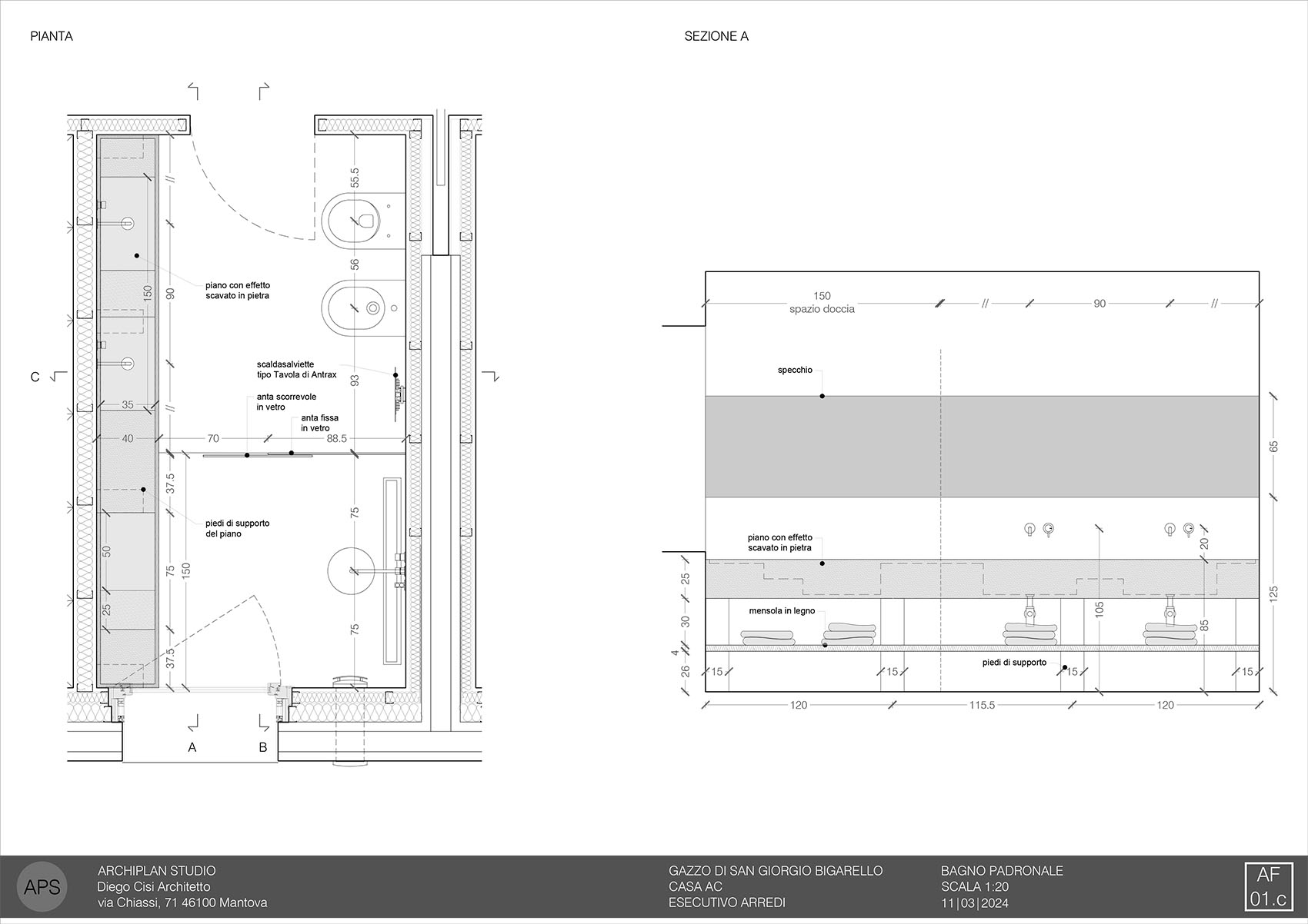
▼主卫平面与剖面,bathroom plan and section


▼客卫平面与立面,guest bathroom plan and elevation

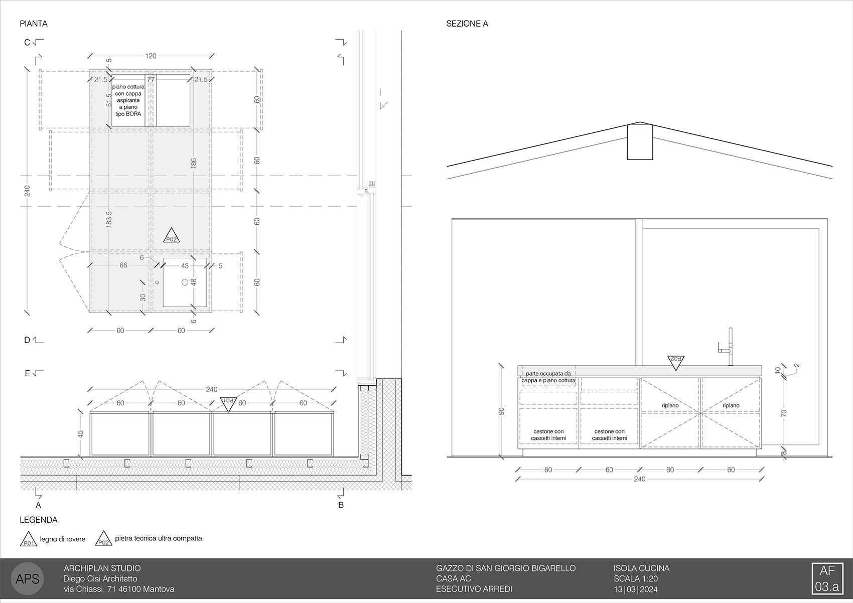
▼厨房岛台平面与剖面,kitchen island plan and section


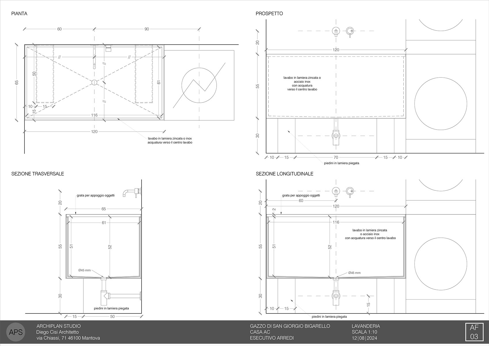
▼洗衣房平面与立面,laundry plan and elevation

▼洗手台立面与剖面,sink elevation and section

▼厨房柜体剖面,kitchen cabinet sections















