雷纳·索菲亚博物馆影厅与剧院,西班牙 / BACH / Jaume Bach, Anna & Eugeni Bach
该项目提出将雷纳·索菲亚博物馆原有礼堂改造为一个用于视听媒介的新空间。为实现这一目标,除了为这一标志性博物馆空间赋予新的特质之外,还需对入口与观众席区域进行改造。同时,还需对空间的材料构成进行干预,以提升其声学性能,并安装全新的影像与音响系统。
The project proposes the transformation of the former auditorium of the Museo Reina Sofía into a new space for audiovisual formats. To achieve this, in addition to giving a new character to this emblematic museum space, it is necessary to modify both the entrance and the seating area. As well as intervene in the materiality of the hall to improve its acoustic performance and install a new image and sound system.
▼项目概览,overview of the project

雷纳·索菲亚博物馆(西班牙国家索菲亚王后现代艺术中心)位于马德里原总医院建筑内,该建筑建于18世纪,由何塞·德·埃尔莫西利亚与弗朗西斯科·萨巴蒂尼设计。经过多次改造,并在被列为具有纪念碑地位的文化遗产之后,该馆于1992年作为博物馆正式启用,并于2005年扩建。如今,它是欧洲最重要的现代与当代艺术中心之一。
The Museo Nacional Centro de Arte Reina Sofía is located in the building of the former General Hospital of Madrid, an 18th-century construction designed by José de Hermosilla and Francisco Sabatini. After several interventions and following its designation as a Cultural Heritage Site with the status of Monument, it was inaugurated as a museum in 1992 and expanded in 2005. Nowadays, it is one of the leading centers for modern and contemporary art in Europe.
▼入口,entrance

▼大厅,hall


这座原医院建筑,被称为萨巴蒂尼楼(Sabatini Building),其中包含一个由Jaume Bach与Gabriel Mora于1987年建造的礼堂,用于博物馆的各类会议与活动。随着馆区扩建,机构新增了两个礼堂,使原有礼堂得以转变为影厅与剧院空间。
The building of the former hospital, known as the Sabatini building, included an auditorium built in 1987 by Jaume Bach and Gabriel Mora, which served all the museum’s conferences and events. With the expansion of the center, the institution gained two new auditoriums, which allowed the existing one to be converted into a cinema and auditorium.
▼红色走廊,red corridor



该方案旨在保留Bach与Mora项目中的标志性元素:入口处组织并划分流线的三角形放映室,以及悬置于舞台上方、原本作为混响装置的三角体。与之形成对比的是,现有的翻译间被拆除,因为当代技术已不再需要专门空间;座椅区域被调整以增加坡度并改善观影视线;而标志性的悬挂三角体则被转化为一个大型声学屏幕,用于遮蔽中央扬声器。
The proposal seeks to preserve the iconic elements of Bach and Mora’s project: the triangular projection room that organizes and divides circulation at the entrance and the triangle suspended above the stage, which functioned as a reverberation device. In contrast, the existing translation booths are removed, as current technology does not require a dedicated space; the seating area is modified to increase its slope and improve visibility of the screen, and the emblematic suspended triangle is transformed into a large acoustic screen that conceals the central speakers.
▼三角形放映室,the triangular projection room



通过这一策略,项目旨在在保持原始“几何体”空间构成的前提下,适应其新的使用需求——正如原始设计所设想的那样:在一个大型穹顶空间之下,如同“星空”般布置的几何体量,其下承载不同类型的活动。
With this strategy, the aim is to adapt the hall’s conditions to its new use while maintaining the character of “geometric objects” arranged under a large, vaulted space, as envisioned in the original project: a starry sky under which different events were organized.
▼影厅与剧院空间,cinema and auditorium


原医院的窗洞被封闭,并以带有雕刻雨滴纹样的木板覆盖,细腻地营造出一种仿若置身室外的感受。项目进一步强化这一理念,将穹顶设定为蓝色(象征夜空)。同时,也重新引入了影院与剧院历史中经典的红色元素,并特别参考了斯德哥尔摩的斯坎迪亚影院以及马德里的多雷电影院。
The old hospital windows were closed with wooden panels featuring carved motifs evoking raindrops, subtly generating the feeling of being outdoors. The project reinforces this idea by establishing blue as the color of the vault (the night sky). It is also reclaiming the classic red of many cinemas and theaters throughout architectural history, with a special reference to Erik Gunnar Asplund’s Skandia Cinema in Stockholm and the Cine Doré in Madrid.
▼三角形混响装置,the triangular reverberation device

天空的蓝色与地毯的红色唤起经典剧院的意象,在空间功能(需要使用深色以避免反射)与电影及戏剧传统之间建立联系,尤其是在这样一座新古典主义建筑之中。为在这两种色调之间形成过渡,设置于窗洞凹位中的吸音表面被转化为柔和的光源,强调这些开口,使其呈现出类似室外空间的体量,从而增强“身处户外”的感受。
▼手绘,sketch

The blue of the sky and the red of the carpet recall classical theaters, establishing a link between the function of the space (which requires dark colors to avoid reflections) and the tradition of cinema and theater, especially since it is located in a neoclassical building. To mediate between these two tones, the absorbent surfaces placed in the window niches become points of soft lighting, highlighting these openings and turning them into outdoor-like volumes, enhancing the sensation of being outside.
▼材料细部,material details

在入口门厅中,新增了一项元素:一个三角形储物装置,其几何形态与放映室相呼应,有助于引导人流向大厅深处。原有的塞利利亚(Serliana)拱廊被保留,所有表面统一为单一的红色调。该空间作为一个独特的视觉元素迎接访客,在厚重的天鹅绒帘幕后揭示新的影厅,并唤起广阔的电影宇宙——从路易斯·布努埃尔到大卫·林奇,从佩德罗·阿莫多瓦到阿基·考里斯马基。
In the entrance lobby, a new element is added: a triangular storage unit that dialogues with the geometry of the projection booth helps guide circulation toward the back of the hall. The existing serliana is preserved, and all surfaces are unified in a single red tone. It appears as a distinctive element that welcomes visitors and reveals the new hall behind dense velvet curtains, evoking wide cinematic universes ranging from Luis Buñuel to David Lynch and from Pedro Almodóvar to Aki Kaurismäki.
▼区位,location

▼平面初始状态,floor plan-initial state

▼平面,floor plan

▼剖面初始状态,section-initial state

▼剖面,section

▼剖面,section

▼顶篷细部,acoustic canopy details

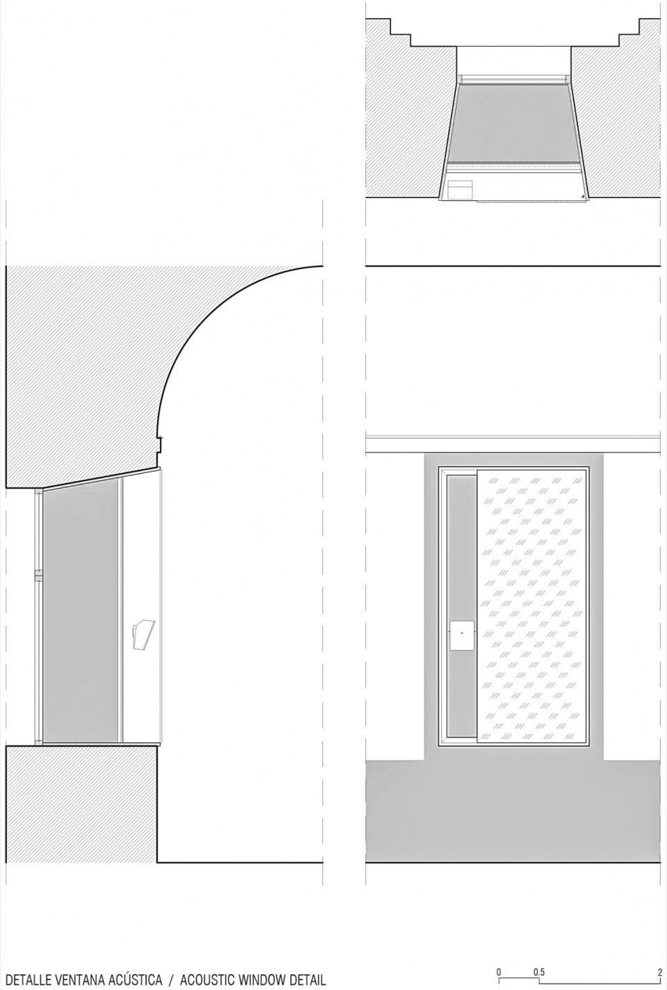
▼窗户细部,window details

Architects: BACH / Jaume Bach, Anna & Eugeni Bach
Collaborators: Roger Molas, Silvia Ripoll, Evangelos Evangelou (architects Bach).
Provitec, Juan Manuel Martín (sound and image engineering),
PRC Ingeniería, Pere Ramis (engineering),
BetArq, Helena Roca (quantity surveyor)
Tecnics G3, Victor Martín (Construction management)
Segipsa, Rubén Rodríguez (Project Management)
Completion date: 2025
Built surface: 520 m2
Promoter: Museo Nacional Centro de Arte Reina Sofía
Constructor: Elecnor
Address: MNCARS / c. Santa Isabel, 52. 28012 Madrid, España
Photographs: Eugeni Bach













