平山小学拆除重建九年一贯制学校,深圳 / 悉地国际-东西影工作室
区位分析 Location Analysis
大沙河生态长廊流经基地西侧入海,以水为纽带串联起各教育及城市公共设施。平山学校依托大沙河的整治完善,成为大沙河北端的重要空间节点。
The Dasha River Ecological Corridor flows along the western side of the site and empties into the sea, using water as a link to connect various educational and urban public facilities. Leveraging the improvement of the Dasha River, Pingshan School has become a significant spatial node at the northern end of the Dasha River.
▼项目鸟瞰,aerial view of the project

▼西侧鸟瞰,aerial view from the west side



▼西侧鸟瞰,aerial view from the west side

▼项目鸟瞰,aerial view from the project

“桥”作为风景的锚固 The Bridge as an Anchor of the Landscape
海德格尔认为:桥是人在大地上诗意栖居的符号,它使没有意义的场地转化为富有含义的场所。
▼概念大轴测,concept axonometric

Heidegger believed that the bridge is a symbol of humans’ poetic dwelling on the earth, transforming a site without meaning into a place rich with significance.
▼西侧廊桥,west side bridge


▼廊道,corridor

基地西侧紧邻大沙河生态长廊,景观资源非常优越。根据校园的功能,我们理性的把各教室南北向按合理的间距排布。西侧设置则辅助及功能教室,通过东西向的双廊串联各个教室单元,廊道同时也成为西侧遮阳水平构件。
▼功能轴测图,function axonometric

The site is adjacent to the Dasha River Ecological Corridor on its west side, offering superior landscape resources. According to the campus’s functions, we have rationally arranged the classrooms in a north-south orientation at appropriate intervals. Auxiliary and functional classrooms are positioned on the west side, connected to each classroom unit by an east-west double corridor. This corridor also serves as a horizontal shading element on the west side.
▼庭院,courtyard

▼庭院,courtyard

▼庭院,courtyard

西侧建筑量体自北向南退台,可观远处南边而来的大沙河景观,南侧转角处对街道空间退让,北侧局部挖空,形成交通节点,中间局部放大,形成多层通高空间,通过开放楼梯连接,成为学生的交往空间、课间十分钟休憩的场所。
▼分期分析图,phase analysis

The building mass on the west side is stepped back from north to south, providing views of the Dasha River landscape flowing in from the south in the distance. The southern corner of the building is set back from the street space, while the northern portion is partially hollowed out to form a transportation node. The central section is partially expanded to create a multi-story atrium space connected by open staircases, serving as a social and interaction area for students and a place for short breaks between classes.
▼连接学生的交往空间,serving as a social and interaction area for students

▼庭院,courtyard

▼东侧庭院,courtyard


▼庭院,courtyard


南北向的廊道作为连接作用是“桥”的功能性体现,当它与大沙河会面,“桥”则作为场地的锚固,成为场所的媒介。而课间的活动,便提供了一个自然对望的场所,抽离出“课堂”,同时也提供了一个新的教育的场所。齐美尔说桥的美在于通过离地,实现解放。大沙河边上的这处场地,也因此处空间的营造,又仿佛是对场地的抽离场与超越,让人体验到真正的自由与自在。
The north-south corridor serves as a connection, embodying the functional aspect of a “bridge.” When it meets the Dasha River, the “bridge” acts as an anchor for the site, becoming a medium of place. Meanwhile, activities between classes provide a space for natural encounters, allowing students to step away from the “classroom” and offering a new venue for education. Georg Simmel noted that the beauty of a bridge lies in its ability to achieve liberation by elevating above the ground. The space created in this site along the Dasha River thus feels like a detached realm, transcending the physical location and allowing people to experience genuine freedom and ease.
▼视野分析示意图,view analysis diagram

近年深圳有大量的立交桥边上种植了勒杜鹃,每年的3、4月天气回暖后,春暖花开之时,以紫花、水红颜色为主的簕杜鹃就会在立交桥旁疯狂生长,成为城市的一道风景线。我们以此为原型,在廊道的边缘处设置花槽,种植三角梅,也希望在大沙河边上编制一条立体的“花桥”,当春天到来,这里也能成为大沙河上的风景:平日我看大沙河,春日大沙河看我。
In recent years, a large number of overpasses in Shenzhen have been planted with bougainvillea. Every year around March and April, as the weather warms and spring blooms, the bougainvillea—predominantly in shades of purple and pink—bursts into vibrant growth along the overpasses, forming a distinctive urban landscape. Inspired by this, we have designed planter boxes along the edges of the corridor, planting bougainvillea to create a three-dimensional “flower bridge” along the Dasha River. When spring arrives, this too will become a scenic highlight on the Dasha River: on ordinary days, I gaze upon the Dasha River; in spring, the Dasha River gazes back at me.
▼在廊道的边缘处设置花槽,种植三角梅,we have designed planter boxes along the edges of the corridor, planting bougainvillea


结构作为理性的表现 Structure as the expression of rationality
法国建筑师勒·杜克在谈到结构理性时曾说:保持功能的真实是为了满足实际使用的需求,保持建造过程的真实是为了发挥材料的特性。设计中利用南北教室间距,在一层和负一层,由南至北依次放置图书馆,报告厅,游泳馆,风雨操场与食堂的公共大空间功能。由于要避让首层的大空间,局部结构柱子合并,上部形成斜柱,满足功能需求,形成空间暗示。游泳馆和风雨操场居中,采用开敞式设计,有利于通风,不影响首层架空层空间的流动性,顶部采用井字梁楼盖实现大跨空间结构。因为斜向的网格布置能提高结构25%的效率,于是我们把井字梁的角度扭转了45°,使得顶部的结构更加独立,同时均匀的斜向混凝土格构梁把人的视线水平延申至校园其他空间,直至消融在周边的自然环境中。
The French architect Eugène Viollet-le-Duc, when discussing structural rationality, once said: “Maintaining functional truth is to meet the needs of practical use, while maintaining the truth of the construction process is to utilize the characteristics of materials.” In the design, the spacing between the north and south classrooms is utilized to accommodate large public spaces such as the library, auditorium, swimming pool, indoor sports hall, and canteen, arranged sequentially from south to north on the ground floor and the floor below. To avoid interference with the large spaces on the ground floor, some structural columns are merged, creating inclined columns above to meet functional requirements and provide spatial implications. The swimming pool and indoor sports hall are centrally located and designed to be open, facilitating ventilation without disrupting the spatial flow of the ground floor’s elevated area. A waffle slab system is used for the roof to achieve a large-span spatial structure. Since a diagonal grid layout can improve structural efficiency by 25%, the angle of the waffle slab is rotated by 45 degrees, making the roof structure more independent. Meanwhile, the evenly distributed diagonal concrete grid beams horizontally extend the visual focus to other areas of the campus, eventually blending into the surrounding natural environment.
▼体育馆边庭院,courtyard near the gym

▼体育馆,the gym

▼游泳馆,swimming pool


▼图书馆,library

共享、开放式校园 Open and Shared Campus
沿大沙河设置共享“T”型轴,使其成为学生展示活力面貌的校园“T”台。所有共享设施均沿“T”型轴布置,供南北两侧的小学与初中组团共同使用。西侧采用双廊形式,开敞外廊局部放大,便于学生课间就近活动,同时也可利用外廊下方的架空空间开展室外教学活动。
▼延伸空间分析,Extended space analysis

A shared “T”-axis is established along the Dasha River, transforming it into a campus “stage” that showcases vibrant student activities. All shared facilities are arranged along the “T”-axis, serving both the elementary and middle school clusters on the northern and southern sides. The western side adopts a double-corridor design, with sections of the open gallery expanded to facilitate student activities between classes. Additionally, the elevated space beneath the gallery can be utilized for outdoor teaching and learning activities.
▼庭院,courtyard

▼廊道,corridor

原地腾挪,无缝链接的分期校园建设模式 On-site reorganization and seamless phased integration campus construction model
该模式在分期建设与规划布局阶段,已充分考虑施工期间学校的正常使用需求。通过设计与施工措施的协同优化,确保在不影响日常教学秩序的前提下,顺利完成校园重建工程。此外,在建设过程中,学校可按分时段统筹方式,使用北侧的社区体育设施。
This model, during the phased construction and planning layout stages, has fully considered the school’s need for normal operation during the construction period. Through the collaborative optimization of design and construction measures, it ensures the smooth completion of the campus reconstruction project without disrupting daily teaching activities. Furthermore, during the construction process, the school can utilize the community sports facilities on the northern side through a scheduled sharing arrangement.
▼傍晚剪影,shadow at dusk

▼大沙河周边环境分析,Great Sand River context analysis

▼模型,model


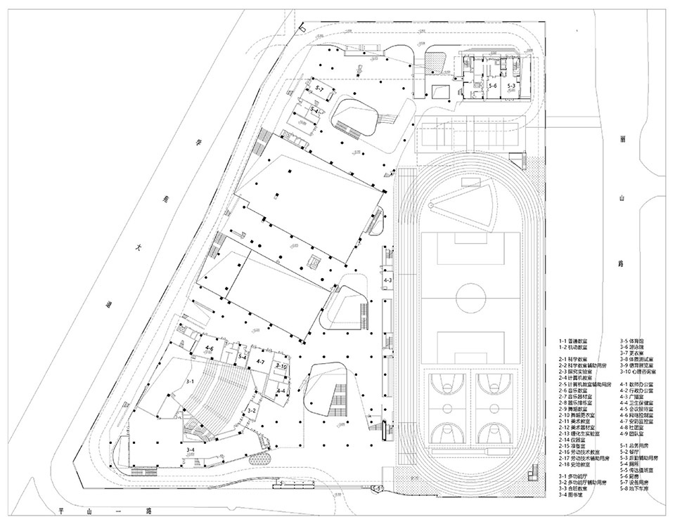
▼总图,site plan

▼地下一层平面图,basement plan

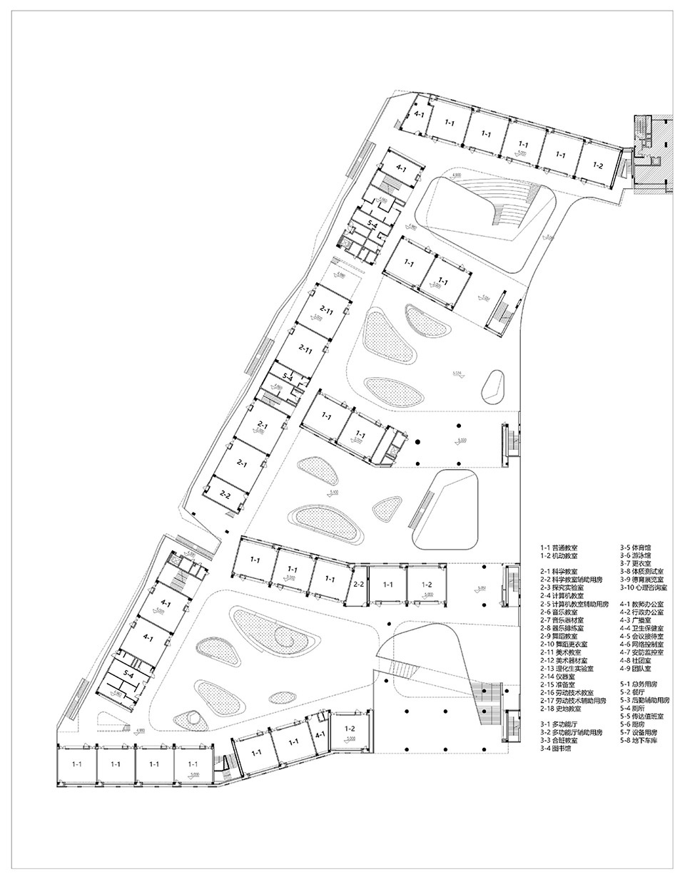
▼一层平面图,ground floor plan

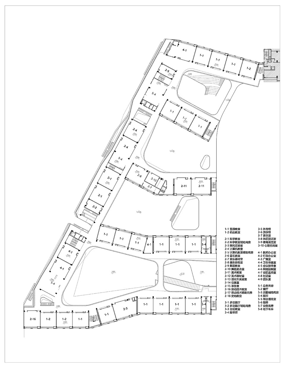
▼二层平面图,first floor plan

▼三层平面图,third floor plan

▼剖透视,pespective section

Project name: Redevelopment of Pingshan Elementary School into a Nine-Year Integrated School
Project type:Educational Architecture
Design:CCDI DongXiYing Studio
Contact e-mail:1035613115@qq.com
Design year:2019-2021
Construction Period: 2020–2024
Leader designer & Team: Leader Designer: Zhu Xiongyi, Wang Zhaoming
Design Team:
Scheme Design: Mo Langheng, Li Xin, Liu Lei, Li Daifu, Zhou Jiaxu, Zhang Yinong, Ye Yizhe
Construction Drawing Design: Cao Jianwei, Zhu Dalong, Guan Wei, Huang Chuan, Luo Tao, Wang Wentao, Cao Shaohui, Hu Yingsong, Shao Linjie, Zhu Yongbin, Huang Jiawei, Yang Jichao, Kang Shaojun
Landscape Design: Yue Qinghua, Wang Ruiqing, Yang Lin
Interior Design: Feng Minqiang, Zhang Wan
Project location:Northeast corner of the intersection of Xueyuan Avenue and Pingshan 1st Road, Taoyuan Subdistrict, Nanshan District, Shenzhen.
Gross built area: 63981.67㎡
Photo credit:Zhu Xiongyi, Wang Zhaoming, Xu Yanjie, Fang Fang
Partner:Shenzhen Youdu Landscape Design Studio (Landscape)
Guangdong Jinglong Construction Group Co., Ltd. (Interior)
Clients:Shenzhen Nanshan Public Works Bureau
Construction Management: Hainan CITIC Urban Development and Operation Co., Ltd.












