LaMartine酒店,墨西哥 / PPAA
项目位于Mexico City最为活跃的区域之一,LAMARTINE通过空间、自然光与热舒适性的综合运用,重新定义了酒店建筑的表达方式。建筑建于一块临街面狭窄的地块之上,容纳10间客房,每一间均以功能性、优雅气质与空间敏感性为设计核心。
Located in one of Mexico City’s most active areas, LAMARTINE is a project that redefines hospitality architecture through the use of space, natural light, and thermal comfort. Built on a narrow-front lot, the building accommodates 10 rooms, each designed with a focus on functionality, elegance, and spatial sensitivity.
▼酒店外观,facade of the hotel


▼酒店街景,street view of the hotel

从项目伊始,主要挑战便十分明确:在受限的场地条件下最大化自然采光。解决方案来自上方——一个中央天窗结合覆以金属表皮的楼梯,形成一条垂直光井,将自然光引入建筑深处。这一建筑策略不仅解决了采光问题,也成为项目在结构与诗意层面上的核心。
From the outset, the main challenge was clear: to optimize natural lighting within the constraints of a limited site. The solution came from above: a central skylight that, together with a metal-clad staircase, acts as a vertical shaft that draws daylight deep into the building. This architectural gesture not only solves the lighting challenge but also becomes the poetic and structural core of the project.
▼形成一条垂直光井,acts as a vertical shaft


▼将自然光引入建筑深处,draws daylight deep into the building


面向街道的主立面在开放性与私密性之间取得平衡。带阳台的客房通过一层半透明金属网进行保护,这一设计实现了两重效果:对外提供视觉遮蔽,对内则保持开阔视野。除视觉与空间作用外,该金属网还通过形成微气候来调节温度,有效降低直射阳光带来的热量积聚。
Facing the street, the main façade strikes a balance between openness and privacy. Rooms with balconies are protected by a semi-transparent metal mesh, designed to offer two key benefits: visual privacy from the outside and unobstructed views outward for the guests. Beyond its visual and spatial role, this mesh also helps regulate temperature by creating a microclimate that reduces heat gain in rooms exposed to direct sunlight.
▼面向街道的主立面,the main facade facing the street


▼体现公共空间的优雅气质,the public space on the ground floor focus on elegance


▼体现公共空间的优雅气质,the public space on the ground floor focus on elegance


▼长桌休息区,Long table rest area


LAMARTINE同样体现了一种可持续的城市策略。项目设置了雨水收集系统,并在场地后部优先布置绿化空间,通过开放花园与植被营造自然氛围,同时提升被动降温效果。
LAMARTINE also embraces a sustainable urban approach. The project features a rainwater harvesting system and prioritizes green areas at the rear of the site, where open garden spaces and vegetation enhance the natural atmosphere and contribute to passive cooling.
▼通过开放花园与植被营造自然氛围,open garden spaces and vegetation enhance the natural atmosphere


以克制而精致的立面语言呈现,LAMARTINE在波兰科(Polanco)的城市肌理中构建出一个低调却有力的地标。
With a timeless façade that blends restraint and sophistication, LAMARTINE positions itself as a discreet yet powerful landmark within the urban fabric of Polanco.
▼客房空间,guest room

▼客房空间,guest room

▼后院引入自然光线,backyard introduces natural lights


▼朴素纯粹的客房空间,simple and pure guest room space



▼浴室空间,bathroom


LAMARTINE不仅是一座建筑,更是一种精确而富有性格的空间体验——它以光为核心,尊重环境,并以纯粹的方式提升当代生活的品质。
LAMARTINE is not just a building; it is an intimate architectural experience designed with precision and character that honors light, respects its environment, and elevates contemporary living in its purest form.
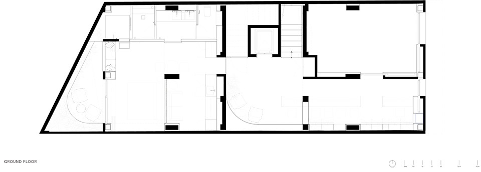
▼一层平面图,ground floor plan

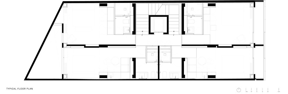
▼标准层平面图,typical floor plan

▼三层平面图,level 3 plan

▼屋顶平面图,roof plan

▼立面图,elevation

▼剖面图,section















