BELVEDERE餐厅,阿根廷 / Grizzo Studio + RO.MA
Belvedere项目始于一个清晰的意图:在保留并强化建筑原有立面的同时,尊重其历史价值以及在转角地块上的强烈存在感。这一初始策略建立起一种有意识的对比——古典的外部形象与当代的室内空间相互并置,在后者中,材料、肌理与光线共同营造出温暖而具有居家感的氛围。
The Belvedere project began with a clear intention: to preserve and highlight the building’s original façade, respecting its historical value and strong presence on the corner lot. This initial gesture established a deliberate contrast between the classical exterior and a contemporary interior, where materials, textures, and light come together to create a warm, domestic atmosphere.
▼餐厅外观,facade of the restaurant


▼餐厅外观,facade of the restaurant


▼外卖档口,take out window


▼立面细部,facade detail

在室内,设计精心选择了陶土色调,以呼应并强化原有的酒红色花岗岩地面。这一决定构建出统一且温暖的色彩体系,使整个空间在视觉上连贯一致,并进一步强化其整体气质。顾客区围绕一个L形吧台展开,吧台表面采用棋盘格图案——这一设计直接借鉴传统桌布意象,唤起家庭用餐、阿根廷bodegón餐馆以及意大利家常料理的记忆。该元素既是空间的功能核心,也承载着象征意义。
Inside, terracotta tones were carefully chosen to complement and enhance the existing burgundy granite flooring. This decision informed a cohesive and warm color palette that visually unifies the entire space and reinforces its character. The customer area is organized around an L-shaped counter clad in a checkerboard pattern—a direct reference to traditional tablecloths that evoke family meals, Argentine bodegones, and Italian home cooking. This element serves as both a functional and symbolic centerpiece of the space.
▼室内概览,overview of the interior space


▼构建出统一且温暖的色彩体系,
informed a cohesive and warm color palette


为强调原有层高并凸显商业空间的重要性,设计在主空间中设置了一条贯穿全屋的吊顶。其几何形态为空间引入了深度、方向与节奏,同时在无需实体隔断的情况下,微妙地界定了厨房区域。该结构强化了空间的连续性与流动感。
To emphasize the original ceiling height and lend importance to the commercial area, a sharply defined dropped ceiling was designed to run along the length of the main room. Its geometry introduces depth, direction, and rhythm, subtly framing the kitchen area without the need for partitions. The structure enhances the sense of continuity and flow within the space.
▼贯穿全屋的吊顶,a sharply defined dropped ceiling


▼贯穿全屋的吊顶,a sharply defined dropped ceiling


▼为空间引入了深度、方向与节奏,
introduces depth, direction, and rhythm


▼装饰细部,decoration detail




Belvedere呈现的是一种朴素而真诚的体验,这种体验通过精确的材料选择、情感性的文化参照以及旨在提升日常生活的建筑语言共同塑造。每一个元素都以营造亲密感为目标,避免不必要的装饰性表达。在这里,建筑作为一种克制的背景存在,承载着人与人之间的相遇、用餐与共享的记忆。
Belvedere offers a simple and honest experience, shaped through precise material choices, emotional references, and an architectural language that seeks to elevate the everyday. Every element was conceived to foster a sense of closeness, avoiding unnecessary decorative gestures. Here, architecture acts as a quiet backdrop for encounters, meals, and shared memories.
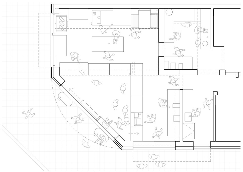
▼平面图,plan


▼立面图,elevation


▼剖面图,section

Project and Direction: GRIZZO STUDIO + RO. MA
Surface area :80 m²
Location: Villa Devoto, Bueno Aires
Delivery of the project :2025












