北京永恒胡同住宅,北京/室内设计
北京的二环内现存很多中国传统的庭院型建筑–四合院。由于政府将原有四合院进行了细小分区,形成了多户居民共同居住在内的杂院。有的同时存在着几户独立的厨房和卫生间。居民的居住面积变小,居住环境变差。这些有的有着百年历史的传统建筑由于这种居住状态而得不到有效保护。居民各自扩建的混乱状态,使建筑原有的外观肌理被破坏。原建筑物本身的木结构和砖墙由岁月积累所散发的魅力是新建的结构无论如何也不会具有的。
In Beijing, the traditional courtyard houses dominate the neighborhoods inside the second road. In most cases, the courtyard house is shared by several families with private kitchens and bathrooms squeezed in the courtyard, leaving narrow paths in-between. The unguided self-extensions not only radically reduce the life quality of the resident but also increase the challenges of conserving these valuable architectures. Yet although the facades are ruins, the charm of the traditional wood and brick structure can never be replicated by the modern architectures.
▼ 空间中植入的方形体量重整空间功能,The different functions of modern life are integrated in the cubic volume
这次设计,我们将住户需求的现代生活空间在有限的原空间内做了整理安排,通过上下空间的运用使其在原有空间内最大程度的合理有序化。同时对原有的砖墙及木结构进行精心的整修,保留了其独有历史痕迹。即满足现代人的生活需求,也使老房所具有的独特魅力得以呈现。
The different functions of modern life are integrated in the cubic volume, which vertically divide and organize the limiting space. By inserting such volume odd manage to maximum the functionalities of the house without destroying the sense of form of the original space. The fine conservation of the brick wall and wood structure shows the respect to the history. The project shows the unique artistic charm of the old house while meets the needs of modern daily life.
▼ 前侧为厨房空间,The kitchen locates in the front
▼ 位于后侧的衣帽间,The dressing room locates at the rear
▼ 卧室则利用空间高度,置于二层,The bedroom locates at the loft floor
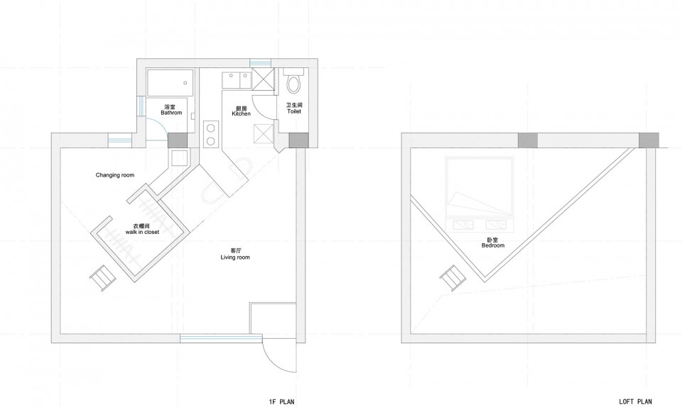
▼ 平面图,Plan
项目信息
项目名称:北京永恒胡同住宅
文章分类:室内设计-住宅
设计公司:odd建筑设计
项目地址:北京
项目规模:40㎡
设计团队:冈本庆三、出口勉
Project information
Project Name: Beijing Yongheng Hutong residence
Article category: Interior Design - Residence
Design company: odd architectural design
Project address: Beijing
Project scale: 40 ㎡
Design team: Keizo Okamoto, export Mian




















