和平村 – 住宅A,北京/室内设计
项目介绍 | Project Introduction
该项目位于北京市朝阳区,位于整栋建筑的第一层,面积约140平米,是为一家三口设计的居所,屋主爱好阅读与美食。
This project, total 140㎡, is positioned in Chaoyang District, Beijing, the ground floor of the building. It is a residence for a family of three, whose host is in hobby of reading and cooking.
▼室内空间一览,overall view of the interior
设计理念 | Philosophy of Design
在合理安置细化各种生活需求的同时,将一些封闭空间敞开,将更多自然光线引入居室内,维持着私密与敞开的平衡,同时也在有限的空间内营造宽敞的空间感觉,化零为整,通过灰色调营造柔和的生活场景,深色木纹材质搭配增添稳重气质。
In the principle of reasonable distribution of life appliance, the design opens some of the closed spaces for exposure of more natural lights, so as to maintain a balance between privacy and openness. This design creates a sense of space within a limited area. Grey colors makes a gentle daily life atmosphere. Wooden textures in the house provides more air of dignity.
▼在有限的空间内营造宽敞的空间感觉,creates a sense of space within a limited area
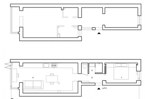
「改造前」
是一套3居室的户型,各个空间相对独立,因防盗门直接对着一层公共电梯间,所以玄关缺少区域感和私密性,两个卫生间均无自然采光,厨房门在起居室主视觉立面的中间位置,有些尴尬。
Before Alternation
This is a house with three independent bedrooms. As the security door is facing public elevator, the entrance-hall is lack of feelings of area and privacy. Both bathrooms have no natural illuminations. At the same time, the kitchen door is at the center of main vision of vertical view of bedrooms, which makes the view a bit awkward.
「改造后」
1:用隔断将玄关区域明确,同时加强餐厅的隐私感。
2:释放出一部分厨房空间,作为西厨房与起居室与餐厅形成更多互动关系。
3:释放出一部分次卫生间空间,将洗手台分离出来,补充玄关的使用功能。
4:释放出一部分次卧室空间,让廊与卧室概念模糊,将自然光引入到走廊内。
5:主卧室细化出休闲区、休息区、衣帽间、以及三分离浴室功能。
After Alternation
1. Clarify the hall door area and the canteen with a partition
2. Release part of the area in kitchen so as to provide more interactions with bedroom and canteen.
3. Release part of the areas of secondary bathroom, make an independent area for washing sink, as an additional function for the hall.
4. Release part of the areas of secondary bedroom. Mix the concept of bedroom and hall, allowing more natural lights into the hallway.
5. Make functional areas of leisure, refreshing, clothing and sub-divided bathroom.
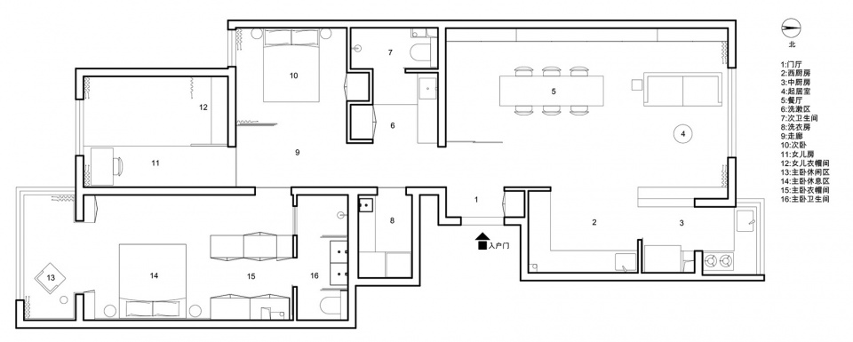
▼户型图,floor plan
玄关 | Entrance
入户门面对是两扇可移动的隔断,屏蔽视线,保护隐私,墙面材料使用的水泥条纹砖,从门厅延伸至餐厅,凸显细腻的质感。
Two fold-able partition at the entrance are provided to block the view. The wall be made of cement texture bricks, extending from door hall to the canteen, presenting fine qualities.
▼玄关,entrance hall
▼由起居空间看玄关,viewing the entrance hall from the living space
起居室与厨房 | Living room & Kitchen
起居室与餐厅与西厨房共处一个空间,同时也保持了相对的独立性,一整面的高柜子,整合了超多收纳需求,书柜、展示柜、餐边柜、客厅杂物柜,采用电动移门,关上门的同时提供了一个完整的平面背景,一种安静的秩序感。定制了一个岩板材质的餐桌,台面长度2800mm,也是一个多功能的大台面,餐边柜功能整合在一侧的高柜内,一点绿色植物点缀空间的氛围。
The living room is practically in the same space with canteen and kitchen while it maintains its independence. The tall cabinet provides plenty of possibilities of storage. Electrical sliding door will be used for the book shelf, the display cabinet, sideboard cabinet and storage cabinet in saloon. While closing the doors, it will provide a perfectly flat background that makes a sense of order. A multi-functional granite table at length of 2800MM is customized for the canteen. The side board cabinet is integrated into the tall cabinet on the side. Green plant makes a more live air for the space.
▼起居室整面的高柜子提供了一个完整的平面背景,The full-sided tall cabinet provides a complete flat background
▼餐厅,dining area
▼起居室与餐厅细部,details of the living room and the dining room
▼餐厅细部,details of the dining room
西厨留出更多的活动空间,作为起居室的一部分,让餐厅与起居室有更宽敞的空间,墙面材料延续使用水泥条纹砖,增加整体感。玻璃移门将自然光线从中厨房引入西厨房。
There will more space for the kitchen, as part of living room. This will create more space for canteen and living room. The wall will be made of cement texture bricks to make a sense of completeness. A glass sliding door introduces natural lights into the western kitchen.
▼由起居空间看厨房,viewing the kitchen from the living room
▼厨房,kitchen
卧室 | Bedroom
卧室是朝南,这里是全家日然光线最好的地方,是可以慵懒阅读的角落。床头使用了水泥条纹砖,增加了层次感。用两组深色木纹柜子将原来的垭口概念取代。衣帽间拉开了主卧室床与卫生间的距离,衣帽间的柜子双侧开门,方便通勤使用,衣柜遮挡住了主卧室床头与门的视线,更加隐私。
The master bedroom is facing south. As the area that enjoys the best natural lights, the host may read in the room while showering natural illuminations. Wooden textured cement bricks are used in the bed wall to add air of layers. Two sets of dark colored cabinets are positioned in the bedroom to take the place of pass. The cloakroom makes a space between the master bedroom and bathroom. While facilitating accommodations, the cloakroom provides more privacy by blocking views between the bed and the door.
▼主卧室,master bedroom
▼床头使用了水泥条纹砖,Wooden textured cement bricks are used in the bed wall
▼主卧是全家日然光线最好的地方,The master bedroom is facing south that enjoys the best natural lights
次卧室作为客人与保姆的临时休息空间,通过开启隔断移门,让卧室与走廊空间融为一体,形成一个更大的敞开式空间,一个小衣柜摆放在中间,两侧墙面对称。女儿房门做成隐形门,与墙面护墙板形成一个整面,一侧的玻璃隔断门,若隐若现的透着一些光。
As the area for refresh of guest or babysitters, the secondary bedroom is separated from the hall with a sliding partition door. This larger open area is centered with a small cabinet, whose walls on sides are symmetrical. The door for the daughter room is made invisible, which is integrated into the wall. The glass partition on the side introduces indistinct lights.
▼次卧室与走廊空间融为一体,the secondary bedroom is separated from the hall with a sliding partition door
▼隔断移门,sliding partition door
卫生间 | Toilet
玄关处,洗手盆区域单独划分出来,进门就可以洗手消毒,延展的台面,适合进门放些手提的物品,也适合拆开快递使用,一组大衣柜放日常穿着的衣物,这里是第二玄关的功能。主卧室卫生间三个功能独立划分开,马桶区、淋浴区、洗漱区分离使用的模式,可双人同时洗漱的洗漱台。玻璃隔断将自然光引入主卫生间内。
Separate the sink area, for the host to wash hands and sterilize on entering the house. The extended platform would be used for putting up things or opening couriers. The cabinet in the secondary hallway is used for storage of daily clothes. The independent functioning areas of toilet, bathing area and washing area allows simultaneous use of two in the bathroom. The glass partition introduces more natural lights into the master bathroom.
▼洗漱区前的储物柜,The cabinet in front of the toilet
▼卫生间,toilet
▼材质细部,details of the material







































