杭州龙湖江与城售楼处,杭州/建筑
龙湖江与城项目位置正处于杭州市城市发展主轴,国家级创新区大江东产业聚集区的核心位置,交通便利,产业人群基数丰富,坐享钱塘江时代区域红利。项目位于在建7 号北二路站地铁上盖,交通便利;集商务办公、金融商贸、展览展示、公共服务为一体,是新区功能和形象核心。
The Longfor River City Project is located in the main axis of Hangzhou’s urban development, the core position of the Great Jiangdong Industrial Cluster in the national innovation area, with convenient transportation and rich industrial population base, enjoying the regional bonus of Qiantang River era. The project is located on the subway roof of No. 7 North Second Road Station under construction, with convenient transportation. It integrates business office, financial business, exhibition and public service, and is the core of the new district’s function and image.
▼售楼处外观,view of the building
内向型围合空间 | Introverted enclosed space
项目利用周边地块挖土,抬高地基,使场地内形成自然的高差。沿城市界面,采用将地形与建筑紧密结合的地景建筑形式,结合自然场地的同时还融合了当地的文化、人文等元素。塑造堆坡式景墙,隔绝周围不良环境。植入功能体块,形成内向型围合空间,同时加以庭院、廊架、影壁等元素,丰富内部空间层次。使示范区在周围喧嚣的环境中依然可以获得内部空间的宁静。
The project uses the surrounding plots to dig earth and raise the foundation so as to form a natural elevation difference in the site. Along the city interface, the landscape architecture form that closely combines the terrain with the architecture is adopted, combining with the natural site while also integrating the local culture, humanities and other elements. Shaping the slope-like view wall to isolate the bad surrounding environment. Implant functional blocks to form an inward enclosed space, and add elements such as courtyard, porch and shadow wall to enrich the internal space. So that the demonstration area can still obtain the tranquility of the inner space in the surrounding noisy environment.
▼鸟瞰图,围合的空间,aerial view of the enclosed space
▼形体生成,form generation
丰富的空间流线 | Abundant spatial streamlines
示范区借鉴中式园林,采用景观递进和步移景异的设计手法,在有限的用地内创造丰富的空间感受。示范区由山门进入,山水影壁映入眼帘,进而转入小庭院,通过水中步道到达售楼处。售楼处与样板间中间通过下沉式庭院相连,起承转合,一气呵成,仿佛置身山水之间。五进院落,四重转折,起承转合,营造多重场景体验。
The demonstration area uses the Chinese garden for reference and adopts the design method of landscape progression and landscape variation to create rich space feeling in the limited land. The demonstration area is entered by the mountain gate, and the landscape screen wall comes into view, then turns into a small courtyard and reaches the sales office through the water trail. The center of the sales office and the model room are connected by a sunken courtyard, which is connected with each other in one go as if it were between mountains and rivers. Five into the courtyard, four turns, starting from the beginning to the end, creating a multi-scene experience.
▼空间流线分析,Spatial streamline analysis
▼轻盈舒展,拾级而上,首重见山,Lightweight stretch up the stairs to see the mountain first
▼松柏影绰,月朗星稀,而后见壁,The pines and cypresses are thick with the moon and the stars are thin and then see the wall.
▼曲折婉转,水影斑斓,次而见水,The twists and turns of Shui Ying’s colorful scenery bring water to the eye.
▼纯净的水面倒影出起起伏伏的屋面形式,穿孔板星星点点的肌理,给人以无限的遐想
The reflection of the pure water surface shows the ups and downs of the roof form, as well as the dotted texture of the perforated plate, giving people infinite reverie
▼水边的庭院,courtyard
▼水面上的石板步道,walkway above the water
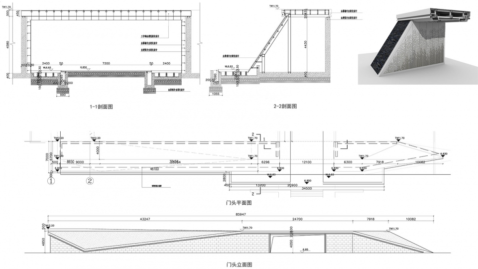
建筑形式语言 | Architectural form language
建筑形式语言和地域文脉结合,取意杭州夕照山的自然轮廓,售楼处屋顶的山形折板将建筑串联成一个整体。局部透空的处理,使建筑景观互相交融。透过格栅的形式,使光影富于变化,塑造轻盈通透之感,营造舒适又惬意的空间。
The combination of architectural form, language and regional context takes the natural outline of Hangzhou Xizhao Mountain and the mountain flap on the roof of the sales office connects the buildings in series into a whole. The treatment of partial air penetration makes the architectural landscape blend with each other. Through the form of grille, the light and shadow can be changed to create a light and transparent feeling and create a comfortable and comfortable space.
▼从售楼处望向水景,view of the waterscape from the sales office
▼穿孔金属板营造独特的光影效果,unique light shadow effects created by the perforated panels
































