北京五道口宇宙中心广场改造,北京/景观
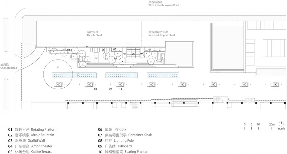
在北京五道口宇宙中心一个商业中心前广场的改造中,我们设计了一个转盘喷泉。简单的一排旱喷,一排树,几排座凳。尽头的一组喷泉和树在圆盘里,可以转动。这个转动有五十分钟,当转盘里的这组泉和树回到原来的位置时,泉水开始涌动。这个喷水持续十分钟。
然后继续下一个五十分钟的转动。
然后等待下一个十分钟。
时间的度量结合在空间设计上,产生仪式化的效果。
生活需要一点仪式化。
The U-Center is a famous shopping center located at the corner of a crowded intersection next to Wudaokou subway station in Beijing. It is within walking distance to surrounding office buildings & several well-known universities such as Peking Univerisity, Tsinghua University and Beijing Forestry University. Z+T Studio was commissioned to rejuvenate a linear passageway to the east of U-Center building. The goal is to create a dynamic and inviting place for the pedestrians and the people from the nearby neighborhoods to spend quality time there, and the U-Center could benefit from the crowd to open more retail spaces on the east side of the complex.
The design team was inspired by the nickname of the Wudaokou intersection – the Center of the Universe and developed a daring idea of a rotating turntable. It plays like the center of the universe as a forceful focal point of the entire space. This landscape feature breaks down the monotonous feeling of the linear space. The people have started to use the place beyond a passageway.
A series of planters and wood benches are placed along the linear water fountain through the site. It invites people to sit down to rest and interact with water features. The 17-meter diameter turntable is placed at the entry of the plaza. It houses partial of the linear water fountain, light fixture and a planter with wood seats. The turntable takes 50 minutes to finish one rotation cycle. The alignment of the part of the fountain on the turntable with the rest of the fountain intrigues the spray of the fountains. The water show lasts for 10 minutes and the turntable will begin another rotating cycle.
▼ 圆盘中可以转动的喷泉与树,The turntable with trees and fountains
▼ 当转盘里的这组泉和树回到原来的位置时,泉水开始涌动,The alignment of the part of the fountain on the turntable with the rest of the fountain intrigues the spray of the fountains
▼ 转动中的圆盘,The turnable in its circle
▼ 喷泉旁的座椅区划分了广场与停车场空间,The seating area along the fountains separate the plaza from the parking
▼ 轴测图,Axonometric drawing
(二)
宇宙。时间。生命。
据说宇宙有无数的银河系;银河系有无数的像太阳、地球一样的星球;宇宙并不是一个空间,而是由物质组成的像胶状物一样的引力场……——那么生命不只是渺小,生命在宇宙中到底是什么?
爱因斯坦还猜测,时间是一个变量。也就是说,一秒钟可能很长;距离太阳远近,时间是不同的;双胞胎住在山上的和住在海边的会老的快慢不一样;当然还有双胞胎悖论…..——那么生命在不定的时间里是怎样存在的?如果快慢是相对的……
The 1 hour movement cycle gives unique sense of time on the site. The U-Center Plaza has become a place for peope to sit, observe, play with water or simply feel the pass of time. Since the completion of the project, the site has quickly become very popular civic space for the local community.
The people come to meet with friends, the family come to play with water and just simply chill in the summer. To experience the rotating turntable and the magic of the sudden spray of water have become a ritual for many locals. The plaza also has served as a platform and stage for fashion shows and performances. The project demonstrates how the unique rotating fountain has animated and transformed a back-of-the house type of passageway to an urban sensation.
▼ 夜晚的喷泉广场气氛活跃,The dynamic plaza at night


























