威海里口山下的拾贰间美学堂与琴舍,山东/建筑
王家疃村位于山东省威海市环翠区张村镇,距离市中心约30分钟车程;村庄属于里口山风景区,是入山的山口之一,地理位置便利且重要。村庄位于一个东西向的沟谷中,南北高,中间有溪流穿村而过;村庄形态狭长,周边自然生态完好,农业景观资源丰富,村东侧有一座近年来复建的庙宇——广福寺,香火颇旺。村庄聚落原始结构完整,保留有大量的毛石砌筑的传统民居,以及拴马石、门头、石墩等携带历史信息的物品,是典型的胶东地区浅山区传统村落。
Wangjiatuan village is located in Zhangcun town, Huancui District, Weihai city, Shandong province. It’s about a 30-minute drive from the city center. The village belongs to the scenic area of Likou mountain, which is one of the passes into the mountain. Its geographical location is convenient and important. The village is located in an east-west valley, North-south high, with streams running through it.The village form is long and narrow, the surrounding natural ecology is intact, the agricultural landscape resources are rich. There is a temple rebuilt in recent years on the east side of the village. The original structure of the village settlement is complete, with a large number of traditional dwellings built by rubble stone masonry, as well as objects carrying historical information such as Teama stone, gate head, and stone pier. It is a typical traditional village in shallow mountainous areas of Jiaodong region.
王家疃村现状已具备一定的旅游基础,在周末或者开花季节,威海本地居民会来此处踏青观光;村中也已经有一些旅游配套设施,但规模小,不系统,且空间条件相对较差,业态也以农家乐为主,缺乏层次和影响力。作为里口山区域“美丽乡村”项目的一个重要组成部分,规划中将王家疃村定位为依托周边自然资源和广福寺人文资源的中国传统文化与休闲体验村落。村庄未来业态将围绕亲子休闲体验,国学文化展开,并以“孔子六艺”(礼乐射驭书数)和“君子八雅”(琴棋书画诗酒花茶)为主要经营主题。
The village has a certain basis of tourism function. On weekends or in the flowering season, local residents of Weihai will come here for sightseeing. There are already some tourism supporting facilities in the village, but the scale is small, not systematic, and the space conditions are relatively poor, and the format of business is mainly farmhouse, lack of hierarchy and influence. As an important part of the “beautiful village” project in Likoushan area, the planning defines Wangjiatuan village as a traditional Chinese culture and leisure experience village relying on the surrounding natural resources and the cultural resources of Guangfu temple. The future format of the village will focus on the parent-child leisure experience and traditional Chinese culture, with the main business themes of “Confucius six arts”and “gentlemen eight arts”.
1. 环境整治,提升风貌,在村庄原有肌理的基础上,对村落结构进行了梳理,对村庄景观,特别是水系进行了改善和提升,对部分带有典型胶东民居特色的民居进行了整理和修复;
2. 改造建筑,打造亮点,在村庄中选取多个建筑,根据建筑特点进行改造,形成具有王家疃村独特性格的,具有传播力的空间节点,如拾贰间美学堂、白石酒吧、琴舍等;根据村庄整体定位,赋予空间节点以合适的使用功能,服务本地居民和外来宾客;
3. 引入社会资本,多元发展,通过政府前期工作,完善村庄基础设施和节点的方案设计,之后引入社会资本,形成良性互动,完成乡村振兴;
4. 文创跟进,丰富服务,结合王家疃自身特点,结合本次工作中的建筑改造和未来业态,设计一系列文创产品,服务未来的旅游休闲服务。
1. Environment improvement and style improvement: based on the original texture of the village, the designer sorted out the village structure, improved and improved the village landscape (especially the water system), and sorted out and restored some typical dwellings in Jiaodong.
2. Reconstruction of buildings to create highlights: the designer selects a number of buildings in the village and transforms them according to the architectural characteristics to form a spatial node with the unique character of Wangjiatuan and the propagation force. Such as 12-Bay Art School, Mica-Bar, Chin House, etc. According to the overall positioning of the village, the designer endows space nodes with appropriate functions to serve local residents and foreign guests.
3. Introduction of social capital and diversified development: based on the work completed by the government in the early stage, the designer improves the scheme design of village infrastructure and nodes, and then introduces social capital to form benign interaction and complete the rural revitalization.
4. Cultural and creative follow-up and enrichment of services: in combination with the characteristics of Wangjiatuan village and the architectural transformation and future business form in this work, the design team designs a series of cultural and creative products to serve future tourism and leisure services.
“拾贰间美学堂”,是王家疃整体工作的重要组成部分,也是“六艺”主题的载体之一。它是一个老建筑改造项目,原建筑是典型的胶东民居形制,瓦顶、毛石外墙,它曾作为乡村小学教室使用,但改造前已经闲置。因为有十二开间,当地人称之为“十二间房”。原建筑分为三个独立的部分,分别为六开间、三开间和三开间;十二间沿街一字排开,形成了区域的主要街道立面,也定义了村庄的主要风貌。建筑背身毗邻一崖壁,且与崖壁之间形成三角形空地;崖壁山石形态奇峻、自然,很有中国传统美学意境。建筑东侧为村内近年加建的公共厕所,形象欠佳,且使用率不高。
12-Bay Art School is an important part of Wangjiatuan’s overall work and also one of the carriers of the theme of “six arts”.It is an old building renovation project, the original building is a typical Jiaodong residential form, tile roof, rubble outside wall.It was once used as a rural primary school classroom, but it was left unused before the renovation.Because there are twelve rooms, the locals call them “12 bay”.The original building is divided into three independent parts, namely six rooms, three rooms and three rooms;Twelve rooms line the street, forming the main street facade of the area and defining the main features of the village.The back of the building is adjacent to a cliff and forms a triangular space between it and the cliff.The cliff rock form is fantastic, natural, has the Chinese traditional esthetics artistic conception very much.On the east side of the building are the public toilets added in the village in recent years, with poor image and low utilization rate.
因为建筑风貌特征鲜明,且保留完好,建筑质量也较好,所以设计团队希望在保留原有建筑风貌的基础上,对建筑适度改造,使之适应新的使用功能,并具有时代气质。在功能方面,新建筑将作为拾贰间美学堂被使用。原本隔绝的三个空间被打通,整个空间被分为教室、展览区、阅读区三个部分。其中教室区域相对私密,与展览和阅读区域有门分隔;展览区和阅读区是新建筑的公共区域,开放、通透但又有层次,呈现出欢迎公众姿态的同时,又尽量保留原建筑厚重的民居特征。
Because the architectural style and features are distinctive and well preserved, and the architectural quality is also good, the design team hopes to moderately transform the building on the basis of retaining the original architectural style, so as to make it adapt to the new use function and have the temperament of The Times. Functionally, the new building will be used as a rural beauty school. Three originally isolated Spaces were opened up, and the whole space was divided into three parts: classroom, exhibition area and reading area. The classrooms are relatively private, separated from the exhibition and reading areas by doors;The exhibition area and the reading area are public areas of the new building, open, transparent and yet layered, showing a welcoming attitude to the public while trying to retain the heavy residential features of the original building.
建筑的流线跟随功能进行重新的梳理,被重新设计和定义的主入口被安排在展示区域,设计师采用了黑色钢板,建构一个半露天的门头,一方面给予了建筑入口标志性,另一方面新旧的对比又进一步提示了两个独立的建造年代。展览区不大,空间也相对单纯,“白盒子”的处理模式更有利于未来展品的布置和展示,入口的“影壁”既适当组合视线,又为前言和展墙提供了依托。展厅北侧外墙开一个洞口,将原来封闭的室内空间与建筑背侧的山石形成对视,材料也使用黑色钢板,与南侧的入口遥相呼应,暗示了新元素的贯穿性,以及设计师希望将人引向建筑背后山石区域的意图。
The main entrance, which was redesigned and defined, was arranged in the exhibition area. The designer used black steel plates to construct a semi-open-air door head, which on the one hand gave the entrance a symbol, and on the other hand, the contrast between the old and new further indicated two independent construction ages. The exhibition area is small and the space is relatively simple. The “white box” treatment mode is more conducive to the layout and display of future exhibits. The “screen wall” at the entrance not only properly combines the sight line, but also provides a support for the preface and exhibition wall.A hole is opened in the north wall of the exhibition hall to make the previously closed interior space face to face with the mountains and stones on the back of the building. Black steel plates are also used to echo the entrance on the south side, suggesting the penetration of new elements and the designer’s intention to lead people to the mountains and stones behind the building.
展览区的一侧是阅读区,两个区域之间由双坡顶建筑剖面形的哑巴口(无门的洞口)分隔。阅读区布置有书架和展桌,用于摆放与区域和国学有关的书籍和文创产品。北侧墙面结合原有的窗户,将书架与座椅一起设计,形成了人、建筑与物品之间的契合关系。原建筑的屋顶被保留,并部分暴露,结合新的室内饰面材料,形成新旧对比和明暗对比。
On one side of the exhibition area is the reading area, which is separated from the two areas by a double-sloped building with a cross-section of mute openings.The reading area is equipped with bookshelves and exhibition tables for books and cultural and creative products related to regional and sinology.The north wall is combined with the original Windows, and the designer combines the bookshelf with the seat, forming a fit relationship between people, buildings and objects.The roof of the original building is retained and partially exposed, combining new interior finishes to create a contrast between the old and the new, as well as light and shade.
建筑的外部环境也是改造的重要组成部分。面向街道的一侧,建筑与街道之间的不规则用地被规整,利用高程形成了一个高于路面的平台,使用者可以在平台上闲坐、休息、观看、交谈,但不受交通的干扰。建筑背侧的外部空间是本次设计的一大发现,原本这里是被遗忘的角落,村民在这里养鸡。在踏勘中,设计师发现建筑背后的山石很具审美价值,而且山石和老建筑之间的“缝隙”形成了天然的内观式空间,符合中国传统修身的意境。于是设计巧妙利用了这个“背身”,将地面稍作平整,铺设防腐木;山石不做任何改动,只是将其展现在此,作为“面壁”的对景;一个与原建筑垂直的半开放亭子被安置在背后区域的西侧,作为该区域的界限,也为后续使用提供了相对舒适的空间。
The external environment of the building is also an important part of the renovation.On the side facing the street, the irregular land between the building and the street is organized. The designer uses the elevation to design a platform higher than the road, on which users can sit, rest, watch and talk, but not be disturbed by the traffic.The exterior space on the back of the building is a major discovery of this design. Originally it was a forgotten corner where villagers raised chickens.During the exploration, the designer found that the rocks behind the building are of great aesthetic value, and the “gap” between the rocks and the old building forms a natural interior space, which conforms to the artistic conception of Chinese traditional self-cultivation.Then the design made clever use of this “carry body”, make the ground a little level off, laid anticorrosive wood;Rocks do not do any change, just show it here, as the “face wall” of the scene;A semi-open pavilion perpendicular to the original building is placed on the west side of the rear area, serving as the boundary of the area and providing a relatively comfortable space for subsequent use.
原建筑东侧的公共卫生间是本次设计必须解决的问题之一。不能拆除,但又有碍观瞻,怎么办?设计使用了巧劲,利用方通格栅将公共卫生间罩起来,格栅构建的尺度、形式来自于旁边的“十二间房”,于是在低矮简陋的公共厕所变身为美学堂的延续,黑色格栅的处理既延续了旁边主体建筑的尺度,也延续了整个项目改造的手法。卫生间与美学堂之间的缝隙被利用起来,一个仅供一人通过的楼梯被安置在此处,一个略微突出建筑立面的小观景台与之相连,为公众提供了一个登高远眺和近距离观察原建筑屋顶的地点;卫生间屋顶也被利用起来成为可以暂时驻足的屋顶平台,它与楼梯、观景台一起形成了建筑外部的小趣味。
The public toilet on the east side of the original building is one of the problems that must be solved in this design.Cannot tear down, but affect beautiful appearance again, how to do? Designer uses grid to cover public toilet rise.The scale and form of the grid construction come from the “twelve rooms” nearby.As a result, low humble public toilets into a continuation of the school of beauty.The treatment of black grille not only continues the scale of the main building next to it, but also continues the transformation of the whole project.The gap between the toilet and the beauty school is utilized. A staircase for only one person is installed here, and a small viewing platform that slightly highlights the building’s facade is connected to it, providing a place for the public to climb the height, have a distant view and have a close look at the roof of the original building.Toilet roof also is used rise to become the roof platform that can stop temporarily, it formed the small interest outside the building together with stair, watch tower.
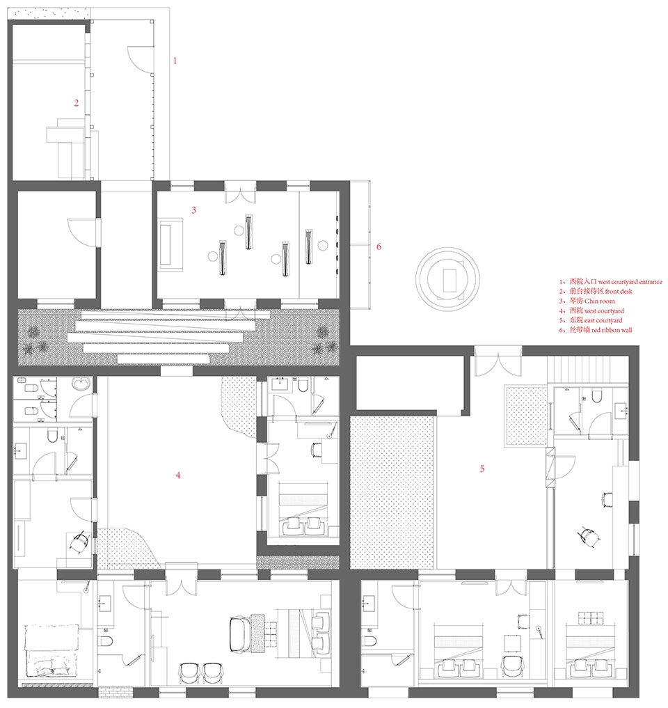
“琴舍”是一处民宿,由两套具有当地特色的合院修缮改造而成,它是王家疃空间提升计划中的第一个具有住宿功能的节点。“琴舍”的前身院落位于王家疃村中部,紧邻村内休闲水系核心节点,原状为毗邻的两个独立合院,西院的年代较为久远,主要墙体材质为青砖,两进院,保留有倒座门头、影壁等典型传统民居元素。东院建于1970年代,为单进院格局,东侧有一平屋顶厢房,原建筑外观为水泥抹灰墙面,与古村落面貌不太协调。
设计团队希望在设计中延续村落总体规划中“六艺·八雅”的主题。于是,“乐”成为这个建筑的主题,古琴则作为“乐”的具体体现。
Chin House is a hostel, which is renovated by two sets of courtyard with local characteristics. It is the first node with accommodation function in the Wangjiatuan space promotion plan. The former courtyard of Chin House is located in the middle of Wangjiatuan village, close to the core node of the water system in the village. In its original state, it is two adjacent independent courtyards.The west courtyard has a long history and the main wall material is blue brick.It is two into the courtyard pattern, retaining the door head, screen wall and other typical traditional residential elements.The east courtyard was built in the 1970s as a single courtyard with a flat roof wing on the east side. The original appearance of the building was cement plastered wall, which was not in harmony with the appearance of ancient villages.
The design team hopes to use the theme of “six arts · eight arts” in the overall village planning in the design.Therefore, “music” becomes the theme of this building, and the Chin is the embodiment of “music”.
建筑空间被重新划分:前台接待区、琴房,以及5间拥有独立卫生间的客房被改造出来,形成了一处雅致乡舍。在保留现有院落格局的前提下,设计团队重新梳理了空间流线,在原房屋西北侧新增了轻钢结构的入口空间,有别于厚重的毛石/砖墙立面,新加建部分采用了U型玻璃作为立面材料,既保证了内部空间的采光,还具有适度的私密性。在内透灯光的作用下,空间的内部活动被投射在外立面上,形成迷离的影像,与古朴的原建筑本体产生戏剧化的对比效果。东院的东厢房靠近村落核心景观,设计团队在东厢房顶上增设了观景平台,既满足了使用者的观景和户外活动需求,又增加了空间的高程变化和趣味性。
The space has been rezoned: the reception area, the piano room, and the five guest rooms with their own bathrooms have been transformed into an elegant cottage.On the premise of retaining the existing courtyard pattern, the design team rearranged the spatial streamline and added the entrance space of light steel structure in the northwest of the original house.Unlike the heavy brick facade, the new addition USES u-shaped glass as the facade material, which not only ensures the lighting of the internal space, but also has the appropriate privacy.Under the effect of internal light, the internal activities of the space are projected on the external facade, forming a blurred image, which has a dramatic contrast effect with the primitive original building.The east wing of the east courtyard is close to the core landscape of the village. The design team added a viewing platform on the roof of the east wing, which not only meets the user’s needs for viewing and outdoor activities, but also increases the elevation change and interest of the space.
▼琴舍平面图,plan of the Chin House
西院的东侧山墙是建筑的主要立面之一,从村庄景观可以清晰看到这里;但原建筑安放有附近8户居民的电表箱,且强弱电线杂乱,这为新民宿的经营带来了麻烦。最初,设计团队希望将电箱移除,但由于工程影响广泛,不可实施,最终设计团队决定在电箱外侧加设一个钢丝网罩子,对原山墙进行一定的遮挡。然而,实施之后发现遮挡效果仍旧不理想,钢丝网的密度过低使遮蔽效果微乎其微。怎么办?设计团队必须在有限的条件内快速做出调整。一个“公共艺术”计划被提了出来:设计师购买了大量的红丝带,请村民们将它们绑在钢丝网罩子上。红丝带既遮挡了后面的负面景观元素,又有祈福的意味,结果这个“亡羊补牢”的措施反而使这里成了村中最受欢迎的“景点”,许多游客在这个丝带墙前合影,同时也带动了邻居老伯“同心锁”生意的兴旺,可谓塞翁失马。
The east gable of the west courtyard is one of the main facades of the building, which can be clearly seen from the village view.However, the original building housed the electricity meter boxes of eight nearby households, and the power lines were disorderly, which caused problems for the operation of the new home stay facility.At first, the design team hoped to remove the electric box, but due to the extensive influence of the project, it was impossible to implement. Finally, the design team decided to add a steel wire mesh cover on the outside of the electric box.However, after the implementation, it is found that the shielding effect is still not ideal, the density of the wire mesh is so low that the shielding effect is minimal.How to do?The design team must quickly make adjustments in limited circumstances.A “public art” project was proposed: designers bought large quantities of red ribbons and asked villagers to tie them to steel mesh covers.The red ribbon not only blocks out the negative landscape elements behind, but also has the meaning of blessing. As a result, this “better late than never” measure has become the most popular “scenic spot” in the village.
▼接待区,reception
在室内氛围营造上,设计也对原室内空间进行了调整。在进行了屋面修缮,增加防水保温处理后,设计团队拆除了原室内空间加设的二次装修吊顶,露出了原始建筑极具特色的三角木桁架。空间高度得以增加的同时,舒适度和风貌也得到提升。刻意保留的拆除痕迹,粗糙的黄泥墙面,灰色水泥地面,及回收的老木料等等元素,构成了略显粗野的空间基底和随性的农舍氛围;与之形成对比的是精细的木作,温暖的壁炉和舒适的家具软装。设计团队希望同时满足使用者视觉和触觉的不同体验:在视觉层面,要随性、野趣;但在人手可触摸的区间内,务必精致、舒适、柔软,给使用者带来良好的体验。这就是琴舍希望给使用者传达的气质。
In terms of creating an indoor atmosphere, the designer also adjusted the interior space.After roofing repairs and adding a waterproof insulation treatment, the design team removed the original interior space’s decorative ceiling, revealing the original building’s distinctive triangular wooden trusses. As the height of the space increases, the comfort level and appearance are also improved.The designer deliberately left traces of demolition: rough yellow mud walls, grey cement floors, and recycled old wood and other elements, forming a slightly rough space base and casual farmhouse atmosphere.In contrast to these marks are fine woodwork, warm fireplaces and comfortable upholstery.The design team hopes to do this to satisfy the user’s different visual and tactile experiences.However, it must be delicate, comfortable and soft within the touchable range to bring users a good experience.This is what Chin House hopes to convey to users.
中华民族是一个以和为贵的民族,自古以来一个完整的生命受自身、家庭、社会、自然、哲学等诸多方面的和谐。对此,设计团队在改造过程中尽量保持原建筑本来的面貌,通过“微改造”的设计手法尊重胶东民居的典型文化特征。设计团队巧妙利用自然环境和原建筑的关系,实现建筑与环境的共生。假期将至,旅游已成为众多家庭的不二休闲方式。设计师希望这次王家疃村改造能够为大众带来一场难以忘怀的国学文化之旅,在山水之间放下心事,在文字音乐间忘却自己。
Since ancient times, a complete life is subject to harmony in itself, family, society, nature, philosophy and many other aspects.In this regard, the design team tried to maintain the original appearance of the original building in the renovation process, and respected the typical cultural characteristics of Jiaodong dwellings through the design method of “micro-renovation”.The design team skillfully utilized the relationship between the natural environment and the original building to achieve the symbiosis between the building and the environment.As the holiday season approaches, travel has become a leisure activity for many families.The designer hopes that this transformation can bring an unforgettable journey of Chinese culture to the public, where people can let their minds rest between mountains and rivers and forget themselves between literature and music.
项目名称:拾贰间美学堂、琴舍
地点:山东省威海市环翠区张村镇王家疃村
业主:山东省威海市环翠区张村镇政府
设计公司:三文建筑/何崴工作室
主持建筑师:何崴
设计团队:陈龙、张皎洁、桑婉晨、李强、吴礼均
驻场代表:刘卫东
软装顾问:白冰
建筑面积:学堂(包括庭院)850平方米,琴舍420平方米
设计时间:2017年12月至2018年4月
建设时间:2018年
合作单位:北京华巨建筑规划设计院有限公司
Project name: 12-Bay Art School & Chin House
Location: Wangjaituan Town, Weihai , Shandong Province、
Design Company: 3andwich Design / He Wei Studio
E-mail: contact_3andwich@126.com
Principal Architect: He Wei
Design Team: Chenlong, Zhang Jiaojie,Sang Wanchen,Liqiang,Wu Lijun
On-site:Representative: Liu Weidong
Soft outfit counselor: Baibing
Building area:1270 sqm
Cooperation company: Beijing VAGE Institute of Architectural Design & Planning Co., Ltd
Period of Design: Dec. 2017 – Apri 2018
Period of Construction: 2018









































