你是我的虚荣 – 广州24小时文艺生活社区,广州/建筑
“你是我的虚荣”名字来自创始人作家蒲荔子的同名新书。它是一个24小时文艺生活社区,一个包含住宿、精酿酒吧和图书室的空间。项目坐落在广州的东山口,东山口是一个容易让人迷路的地方,自行车轮压过的每一寸都有故事。这里是大都市不加粉饰的存在,有着车水马龙的新广州没有的坦荡和底气。这是一个有着百年历史的老建筑,先后经历了多次改建,设计师在三楼和四楼为整个空间安排了7个不同的房间和2个公共空间,每个房间都分配了一个露台,每一个露台都有不同的景观面,因为建筑自身的历史条件和环境的发展因素,从室内的每一个窗户望出去都有不同的景观,有的是粉色的有点脱落的墙,有的是纷繁热闹的市井生活,有的是隔壁院子里探出的三角梅,还有楼上垂落满墙的绿藤植物金银花。
“You Are My Vanity” is name after author Pu Lizi’s new book. The 24 hours literature and art community contains accommodations, craft beer and book. The project is located in Dong Shan kou, Guang Zhou. Dong shan kou is a fascinating place where are full of stories even in a corner. Dong Shan Kou is unvarnished compared with Guangzhou and filled with confidence. The century-old building had been renovated many times. We planned seven rooms and two public spaces at 3rd and 4th floor. Each room has its special view from balcony as the building is full of characteristics. Nice views such as pink walls, scenes of living, bougainvillea and green vines are blended with interior.
▼大厅一览,overall view of the lobby
设计师以业主蒲荔子的《你是我的虚荣》这本书中的“书”为空间的设计元素,以“虚荣”为空间的设计灵魂,用书本身的气质和方形的元素,再加以环境的氛围解读每一个空间。市井,读书,品酒,文艺,让这里成为众多都市青年寻觅的地方。入口门厅建筑师们用书做渲染,在书架的一面做了一个小小的入口,营造出一种文艺,安静,神秘的氛围。客房区的通道,则利用镜面解决了狭小而黑暗的不良现状,同时营造了一个时光隧道的体验空间。
The “book” of author Mr Pu Lizi is the design element for the space. The temperament and shape of book is used for creating the “vanity” space. Local life, reading, wine tasting, literature and arts make a popular place here. We put an entrance next to the book shelves, in order to create a artistic, quite and mysterious atmosphere. Mirrors are used at guest room corridor to address the situation that there is no sunlight. Meanwhile, designer created a scene of time tunnel by using physical properties of mirror and decorative lighting.
▼设在书架中的小小入口,entrance next the the book shelves
▼以“书”为空间设计元素的公共空间,”book” as the main design element in the public space
▼客房区通道,由镜面组成的时光隧道,the use of mirrors makes the guest room corridor like a time tunnel
整个民宿的落成,并没有浮华的修饰和贵重的材料,仅在寻找空间的地理属性和自身的现状,再加以适合的材料,为空间探索一种新的可能性。设计上,用了最简单的白色,灰绿色,深灰色等不同颜色的涂料,借了窗外朱红的墙,满墙的绿藤植物金银花,或是窗外市井的生活,结合窗外不同的场景,让每一个房间都不尽相同,或绿或白,或木或熟,让每一个房间都有一个属于它自身的虚荣故事。
Designers attempted to refine regional properties and site background in this space rather than using luxury materials. Reasonable materials such as white, greyish-green and wallpaper are used to created new possibilities for different rooms. Views outside also should not be ignored such as vermillion walls, green vines and living scene. All of these factors give each room an unique story of vanity.
▼房间“愤怒”,room wrath
▼房间“怠惰”,room sloth
▼房间“嫉妒”,room envy
▼轴测图,axon
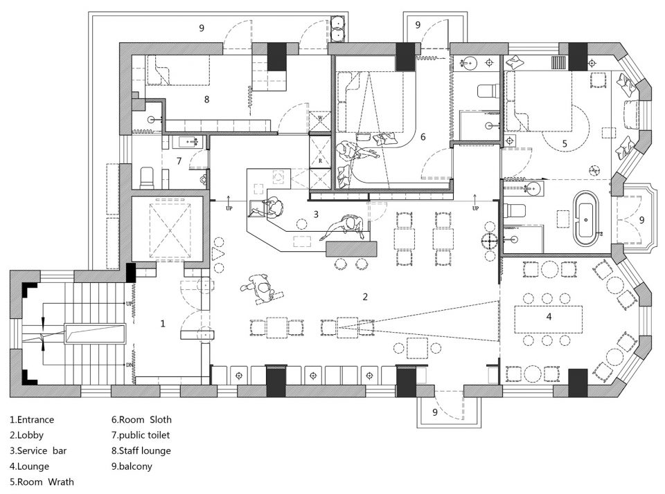
▼三层平面图,3F plan
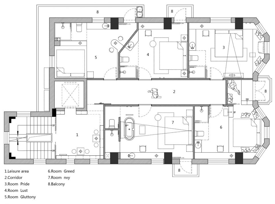
▼四层平面图,4F plan
项目名称:你是我的虚荣 – 广州24小时文艺生活社区
项目地址: 广州东山口
项目面积: 280平方米
设计公司: 继景设计(上海)
设计主创: 范继景、张齐、林利达、柴润知
摄影: Eiichi Kano
主要材料: 橡木板、涂料、镜面、墙纸
Project Name: you are my vanity - Guangzhou 24-hour literary and artistic life community
Project address: Dongshankou, Guangzhou
Project area: 280 square meters
Design company: Jijing design (Shanghai)
Main creators: Fan Jijing, Zhang Qi, Lin Lida, Chai Runzhi
Photograph: Eiichi Kano
Main materials: Oak board, paint, mirror, wallpaper


























