
刘家琨
********
********
四川省成都市武侯区
建筑不仅仅是为了“看”,建筑中有许多东西需要用心或有一定的专业知识才能感知,还有一些部分确实不可见,但强烈影响人的感受和行为。而细部自有其作用,专业人也明白。我希望我的建筑有全方位的建筑学品质,继续努力吧。
文里·松阳三庙文化交流中心,浙江 / 建筑
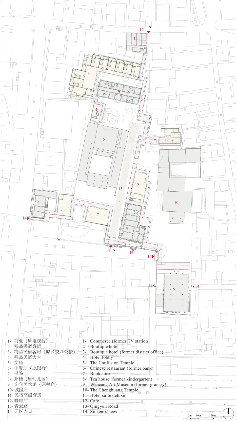
文庙城隍庙街区位于松阳县城正中,自古便是松阳人的公共活动场所与精神中心,历经百年变迁,遗存有不同历史时期建造的各色建筑。但数十年来,这一曾经的精神文化中心日渐衰落,环境杂乱,业态凋敝,缺乏活力。
Situated right in the center of Songyang County, the Confusion Temple and Chenghuang Temple district has been a public activity center and spiritual center for Songyang people since the ancient time, which contains characterized buildings of different historical periods. However, this once spiritual and cultural center was deprived of vitality for decades due to environmental chaotic and business declining.
来自不同年代的建筑与环境要素是蔚为珍贵的时间痕迹,它们记录并形塑着老城中心的功能演变与生活情景。如何处理新与旧的关系,令昔日的精神文化中心重新链接当代生活,成为设计重点。
设计中对现存建筑进行细致评估和分级保护,力图呈现完整连续的历史断层,使不同时空的物质遗存与场所记忆得以交融共生。
The architectural and environmental elements from different ages are precious traces of time, which have witnessed and shaped the functional evolution and life scenarios of this old city. When the transformation begins, how to deal with the relationship between the new and the old so that the former spiritual and cultural center will re-link contemporary life, becomes the focus of design.
This project aims to present a complete and continuous historical segment. It carefully evaluates conditions as well as accommodability of the existing buildings, and protects them correspondingly with hierarchical strategies, so that the remains of different time and space and the memory of the site can blend and coexist.
在梳理场地时反复与居民协商,于一尺一寸的进退中切削出场地边界,疏解后期加建以恢复原有街区肌理。此外,设计着重释放两庙前的公共空间,并打通街区与周边社区连通的巷道“孔隙” 。
Through the repeated negotiation with local residents, the boundary of the site was defined by the means of the one-foot-one-inch advance and retreat. The design restores the original urban texture and focuses on regenerating the public space around two temples and opening up surrounding pathways into the city circulations.
在梳理后的基地内植入更新系统——一个蜿蜒连续的深红色耐候钢廊道。廊道对于现状树木和保留遗存进行了审慎退让。窄处为廊,串联保留老建筑;宽处为房,容纳新增业态。整体营造出一个既公共开放又富于传统情致的当代园林。
廊道于疏解后的街区蜿蜒穿梭,有如“泥鳅钻豆腐”:疏解后的老街区“厚”而“松”,作为基质;新介入的廊道蜿蜒灵动,打通联系,并在临街界面探出触角。新旧碰撞出“空”的自然形态,记录下动态的生成痕迹。藤树草苔的生长与纠缠,模糊着廊道与空地或建筑遗存的边界,新旧界面不再截然分离,而是混沌地共融共济。
An updated system —— a corridor with weathering resistant steel, is embedded into the newly arranged site. With different breadths, the corridor makes a deliberate concession to the existing plantation and the retained relics. The narrower sections act as hallways connecting preserved buildings while the wider ones turn into rooms accommodating new business. The whole building complex is therefore transformed into an open modern garden yet still holds a traditional flavor.
The corridor meanders through the deconstructed neighborhood, just like the cooking process of “Loach Tofu Soup”. The deconstructed neighborhood is ‘thick’ and ‘loose’, serving as a substrate while the newly intervened corridor is more flexible, opening up connections and protruding tentacles at the street interface. The new and the old collide with a natural form of “emptiness”, recording the trace of the dynamic generation. The growth and entanglement of vines, trees, grass and moss blur the boundary between the corridor and the open space, or the buildings remained. The interface of the old and the new is no longer completely separated, but fuses together.
廊道整体均为一层,高度低于老建筑檐口,如低平的“ 展台”衬托作为“展品”的保留建筑。新旧并存,原真表达。更新系统作为结构整体“轻落”在场地上,如船浮于水面,避免深基础对于场地的破坏。
The height of the newly-built corridor is slightly lower than the cornice of preserved existing buildings, like the ‘booth’ serves as a foil to the ‘exhibit’. The new and the old coexist with an authentic illustration. The updated system is like the floating boat to water, lightly placed on the site as the whole, avoiding possible damages of historical relics.
延续两庙街区原有的庙堂文化和市井文化脉络,植入书店、咖啡、美术馆、非遗工坊、民宿等业态,为周边社区乃至整个松阳提供一个公共的文化交流活动场所。
The new system continues the local context of the temple culture and the civil culture, and enriches the original business with programs such as bookstore, cafe, museum, and intangible cultural heritage workshops, in order to offer flexible space to hold public events ranging from community activities to international seminars.
恢复并强化青云路为轴、两庙为翼的传统格局。失落的老庙经修缮,继续延续市井烟火,成为人们文化活动的舞台。新旧界面的交互间,生活长卷次第展开,重聚老城人气。整个街区转型为展示绵延百年的建筑遗存与动态文化生活的泛博物馆,以开放之姿拥抱周边社区,再度成为松阳的精神中心。
The renovation restores and strengthens the traditional pattern where Qingyun Road is the central axis and two temples are the wings. The newly built open corridor threads and pierces through surrounding pathways and joins once closed neighborhood to the urban environment. The old temples are reactivated, becoming the cultural lounge for varies folk activities.
The new and the old interfaces intertwine through daily scenes; the picture of local life is slowly unfolding, reuniting this old city’s popularity. The whole architecture complex is transformed into a pan-museum displaying dynamic cultural life and buildings with hundred – of – year history. It embraces the surrounding neighborhood with an open attitude and has once again become the spiritual center of Songyang.
项目名称:文里·松阳三庙文化交流中心
地点:浙江省丽水市松阳县
客户:北京同衡思成投资有限公司 / 松阳思成文里文化发展有限公司
主持建筑师:刘家琨
设计团队:陈瞰、杨鹰、张灿、刘速、何强、易慧中、李文婷
照明设计:清华同衡规划设计研究院光环境规划设计研究所
总承建:浙江宏信建设有限公司
场地面积:9,813㎡
总建筑面积(包括): 更新部分: 2,378㎡ / 保留改造部分: 2,335㎡
层数:一层(更新系统)
摄影:存在建筑、彭海东、吴博、曹宇钧、孟宁
Project Name: Culture Neighborhood·Songyang Three-Temple Cultural Communication Center
Location: Songyang County, Lishui City, Zhejiang China
Client: Beijing Tongheng Sicheng Investment Co., Ltd / Songyang Sicheng Wenli Cultural Development Co., Ltd.
Principal Architect: LIU Jiakun
Team: CHEN Kan, YANG Ying, ZHANG Can, LIU Su, HE Qiang, YI Huizhong, LI Wenting
Lighting: Dept. of Lighting Planning & Design, Tsinghua Tongheng Urban Planning & Design Institute
General Contractor: ZhejiangHongxin Construction Co., Ltd.
Site Area:9,813㎡
Total Floor Area (incl.): Regenerated: 2,378㎡ / Remained: 2,335㎡
Floors: One (regenerated system)
Photographer: Arch-Exist, PENG Haidong, WU Bo, CAO Yujun, MENG Ning
























