
刘家琨
********
********
四川省成都市武侯区
建筑不仅仅是为了“看”,建筑中有许多东西需要用心或有一定的专业知识才能感知,还有一些部分确实不可见,但强烈影响人的感受和行为。而细部自有其作用,专业人也明白。我希望我的建筑有全方位的建筑学品质,继续努力吧。
水井街酒坊遗址博物馆,成都/建筑
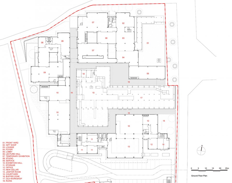
水井坊遗址位于成都市水井坊历史文化街区内,基地周围为保留民居(后周边民居被逐步拆除,拟仿造翻建)。基地内有古井、门楼、民国时期木屋架酿酒生产车间、元代酒窖遗址等文物古迹。
Located in a historical neighborhood of Chengdu, Shuijingfang Museum exhibit the heritage site of wine-making in Yuan density.
水井坊遗址博物馆属于酒类主题博物馆,主要功能是展示水井坊的悠久历史和珍贵出土文物,保护与传承传统工业文明遗产。水井坊遗址博物馆既展示了成都平原传统酒文化,又提升了整个水井坊片区的社区文化氛围。
The museum demonstrate the traditional wine culture in Chengdu Plain while enhancing the quality of the whole neighborhood.
建筑整体以民居建筑尺度为基础,采用聚合的小体量,缝合相邻历史街区肌理。设计师以错动的手法柔化建筑边界,使之与保护区肌理平滑过渡,融为一体。屋顶以周边民居重叠往复的屋顶为原型,进行变形错动,以连续折线的坡屋顶,形成与民居肌理一致的屋顶景观,使建筑融入水井坊历史文化街区。
The museum adopts the size and style of the surrounding residential buildings, which makes it blend into the neighborhood perfectly.
基地内部有文物建筑——民国时期的酿酒作坊厂房和明清时期晾堂挖掘遗址现场,其中的酒窖仍在使用中,是博物馆展示工业文明遗产的重要部分。这些重要的文物一起构成了博物馆的遗址展示区。一切以对文物遗址的保护与尊重为前提,进行的稳妥谦逊的加建设计,既不能简单仿造以假乱真,又不能突兀张扬喧宾夺主,应在继承传统气质的基础上有所创新,探讨新旧共处的关系。
There are cultural relics in the base - the winery workshop in the Republic of China and the excavation site of the drying hall in the Ming and Qing dynasties. The wine cellar is still in use, which is an important part of the museum's display of industrial civilization heritage. Together, these important cultural relics form the site exhibition area of the museum. All the prudent and modest construction designs based on the protection and respect of cultural relics and sites should not be simply imitated to confuse the real with the fake, nor should they be blatantly publicized. They should be innovative on the basis of inheriting the traditional temperament and explore the relationship between the old and the new.
新建博物馆以“衬托”为原则,新建部分与老作坊之间的保护带,形成与老民居片区相似纵横街巷,以“合抱”的姿态对遗址展示区进行保护。新建建筑以单一的材料弱化立面表现性,达到衬托文物本体(原有厂房及遗址)的目的。木构架老厂房内部仍以传统酿酒工艺进行生产,当代酿酒工艺被置于新建混凝土厂房内。新建厂房采用清水混凝土和单向梁框架结构,而不是原有厂房的传统木构架。新建筑的“狮子口”屋顶形式是老厂房采光口的提炼与组合,以形成与老厂房一致的通风、采光环境(窖菌的发酵依赖特定的空气、光照、土壤条件),光线幽暗,糟香氤氲,新老建筑共同延续了酿酒工艺的历史发展脉络,使水井坊遗址博物馆成为集保护、展示、生产、交流于一体的活着的文化遗产。
Based on the principle of "setting off", the new museum will build a protective belt between the new part and the old workshop, forming a similar crisscross street and lane with the old residential area, and protect the site exhibition area with a "embracing" attitude. The newly-built buildings weaken the facade performance with a single material to achieve the purpose of setting off the cultural relics (original factory buildings and sites). The old workshop with wooden frame is still produced with traditional brewing technology, and the contemporary brewing technology is placed in the new concrete workshop. The new factory building adopts the fair-faced concrete and one-way beam frame structure, instead of the traditional wooden frame of the original factory building. The "Shizikou" roof form of the new building is the extraction and combination of the lighting openings of the old plant to form the same ventilation and lighting environment as the old plant (the fermentation of cellar bacteria depends on specific air, light and soil conditions), with dark light and dense fragrance. The new and old buildings continue the historical development of the brewing technology, making the Shuijingfang Ruins Museum a living cultural heritage integrating protection, display, production and exchange.
博物馆沿街设置矮墙,结合现状槐树,保持原有街道尺度,维持水井坊街区尺度和氛围。博物馆入口谦逊平和,其尺度接近民居。矮墙与入口围合出入口庭院。院内以旧砖铺地,形成喧闹城市一角安静之地。沿参观流线交替设置的天井院落与展厅,营造了气氛张弛有度的参观节奏。各具特色的天井也成为丰富蜀文化的载体。古井庭院、牌坊庭院,均设置有独立的院落天井,既强调了文物的重要性,也是转换室内外空间、丰富参观体验的重要手段。
The entrance of the museum fits into the neighborhood perfectly. Adopting the traditional architectural element of Sichuan, the atriums become a highlight in the overall design.
参观流线按照两条线索设置:一是酿酒工艺的先后顺序,二是从传统到当代的时间顺序。参观栈道架空于酒窖区与遗址之上,栈道下生产可顺利进行,生产流线与参观流线互不交叉干扰。沿参观流线可纵览酒窖发酵、基酒储存、勾兑、包装等生产全过程。遗址展示区北侧为酒文化中心,以天井为主题进行空间组织,形式灵活多变,可以用作临时主题展览、学术会议交流活动等,并设计有单独的出入口,方便独立运作。
Visitors can follow the visiting circulation system and walk through the museum without interrupting the production process of the wine. Next to the permanent exhibition area there is a wine culture center, where allows temporary exhibition or academic conference happened.
建筑采用当代材料“转译”传统材料,以再生砖对应青砖,重竹对应木板,瓦板岩对应小青瓦,是对传统建筑气质的继承和更新,以此构建出手法现代、韵味传统的建筑群落。
The walls are made of rebirth bricks and anti-corrosive bamboo who appear to like traditional construction material but actually modern.
项目名称: 水井街酒坊遗址博物馆
地点: 中国四川省成都市锦江区水津街17-23号
类别: 公共建筑
业主: 四川水井坊股份有限公司
建筑面积: 8670 m²
基地面积: 12148 m²
设计时间: 08/2008 – 09/2011
施工时间: 09/2011 – 04/2013
结构: 钢筋混凝土框架
表现材料: 再生砖、防腐重竹
设计单位: 家琨建筑设计事务所
主设计师: 刘家琨
设计团队: 蔡克非、华益、杨东
摄影: 存在建筑
Project Name: Shuijingfang Museum
Location: 17-23 Shuijing St, Jinjiang District, Chengdu, Sichuan Province, China
Type: Public Buildings
Client: Sichuan Shuijingfang Company Ltd.
Building Area: 8670 m²
Site Area: 12148 m²
Design: 08/2008 – 09/2011
Construction: 09/2011 – 04/2013
Structure: Reinforced concrete frame
Material: Rebirth brick and antiseptic consolidated bamboo
Designer: Jiakun Architects
Principle Architect: LIU Jiakun
Team: CAI Kefei, HUA Yi, YANG Dong etc.
Photography: ARCHEXIST



















